Andrew Wireless System IONM7P ION-M7P Repeater User Manual User s Manual for ION M Remote Unit
Andrew Wireless System ION-M7P Repeater User s Manual for ION M Remote Unit
user manual

Optical Remote Unit
ION™-M7P
(M-cabinet)
Manual
MF0143A8A

Manual for ION™-M7P
Page 2 MF0143A8A.doc
© Copyright 2011 CommScope, Inc.
All rights reserved.
Andrew Solutions is a trademark of CommScope, Inc.
All information contained in this manual has been revised thoroughly. Yet Andrew
Solutions accepts no liability for any omissions or faults.
Andrew Solutions reserves the right to change all hard- and software characteristics
without notice.
Names of products mentioned herein are used for identification purposes only and
may be trademarks and / or registered trademarks of their respective companies.
No parts of this publication may be reproduced, stored in a retrieval system,
transmitted in any form or by any means, electronical, mechanical photocopying,
recording or otherwise, without prior written permission of the publisher.
Andrew Wireless Systems GmbH, 20-October-2011

Page 3
TABLE OF CONTENTS
1. GENERAL 7
1.1. USED ABBREVIATIONS 7
1.2. HEALTH AND SAFETY WARNINGS 8
1.3. ABOUT ANDREW SOLUTIONS 10
1.4. INTERNATIONAL CONTACT ADDRESSES FOR CUSTOMER SUPPORT 11
2. FUNCTIONAL DESCRIPTION 13
2.1. PURPOSE 13
2.2. THE ION-M7P (INTELLIGENT OPTICAL NETWORK; MMR) 13
2.3. COMPONENTS OF THE ION-M7P REMOTE UNIT 14
2.3.1. Fan-Protection Kit 14
2.3.2. Accessories 14
3. COMMISSIONING 15
3.1. MECHANICAL INSTALLATION 15
3.1.1. General 15
3.1.2. Wall-Mounting Procedure 16
3.1.3. Pole-Mounting Procedure 17
3.1.4. Mounting of Fan Protection 19
3.2. ELECTRICAL INSTALLATION 20
3.2.1. General 20
3.2.2. Connections 21
3.2.3. Grounding 22
3.3. CONNECTION OF THE ANTENNA CABLES 23
3.4. POWER CONNECTION 24
3.5. OPTICAL-FIBER-CABLE CONNECTION - RULES 25
3.5.1. Protective Plug 27
3.5.2. Protective-Tube Kit 29
3.6. COMMISSIONING 31
4. ALARMS 34
4.1. BITE AND ALARMS 34
4.2. HANDLING OF ALARMS 34
4.3. ALARM STATUS 34

Manual for ION™-M7P
Page 4 MF0143A8A.doc
4.4. STATUS LED ALARMS 35
4.5. EXTERNAL ALARM INPUTS AND OUTPUTS 36
4.6. TROUBLESHOOTING 37
5. MAINTENANCE 38
5.1. GENERAL 38
5.2. REPLACING THE FAN UNIT 39
5.3. CLEANING THE HEAT SINK 41
6. APPENDIX 42
6.1. ILLUSTRATIONS 42
6.2. SPECIFICATIONS 43
6.2.1. Electrical Specifications 43
6.2.2. Mechanical Specifications 43
6.2.3. Environmental and Safety Specifications 43
6.3. SPARE PARTS 44
7. INDEX 45

Page 5
FIGURES AND TABLES
figure 3-1 Wall mounting, (metric dimensions).......................................................... 16
figure 3-2 Pole-mounting kit...................................................................................... 17
figure 3-3 Pole mounting (metric dimensions) .......................................................... 18
figure 3-4 Mounting procedure for fan protection, (metric dimensions)..................... 19
figure 3-5 Connector flange of ION-M7P .................................................................. 21
figure 3-6 RS485 connector...................................................................................... 22
figure 3-7 Grounding bolt with loosened hex nut ...................................................... 22
figure 3-8 Grounding bolt, schematic view................................................................ 22
figure 3-9 AC mains plug .......................................................................................... 24
figure 3-10 DC mains plug........................................................................................ 24
figure 3-11 Protective-plug assembly ....................................................................... 27
figure 3-12 Tube-kit installation................................................................................. 30
figure 4-1 Flange connector, 5 poles ........................................................................ 36
figure 4-2 Flange connector, 7 poles ........................................................................ 36
figure 4-3 Alarm inputs and outputs, standard.......................................................... 37
figure 6-1 Installation drawing................................................................................... 42
table 1-1 List of international contact addresses....................................................... 12
table 3-1 RS485 connector, PIN assignment............................................................ 22
table 4-1 Status LED alarms..................................................................................... 35

Manual for ION™-M7P
Page 6 MF0143A8A.doc
For your notes:
1. GENERAL
1.1. USED ABBREVIATIONS
3GPP 3rd Generation Partnership Project
AC/DC Alternating current / Direct Current
AIMOS Andrew Integrated Management and Operating System
ALC Automatic Level Control
BITE Built-In Test Equipment
BTS Base Transceiver Station
CE "Conformité Européenne" ("European Conformity")
CD Compact Disk
CPD Channel Power Detection
DL Downlink
DoC Declaration of Conformity
EDGE Enhanced Data Rates for GSM Evolution
EN European Norm
EP Extension Port
ESD Electrostatic Discharge
ETS European Telecommunication Standard
EU Extension Unit
GSM Global System for Mobile Communication
GND Ground
GUI Graphical User Interface
ICP3 Intercept Point 3rd order
ID No Identification Number
ION Intelligent Optical Network
IP Ingress Protection
ISO International Organization for Standardization
LED Light Emitting Diode
LMT Local Maintenance Terminal
LTE Long Term Evolution
MIMO Multiple Input Multiple Output
MS Mobile Station
MU Main Unit
NF Noise Figure
OTRx Optical Transceiver = SRMU (Subrack Master Unit)
PG Packing Gland
PIM Passive Intermodulation
R&TTE Radio & Telecommunications Terminal Equipment
Rev Revision
RF Radio Frequency
RU Remote Unit
RX Receiver
SNMP Simple Network Management Protocol
TS Technical Specification
TX Transmitter
UL Uplink
UMTS Universal Mobile Telecommunication System
UPS Uninterruptible Power Supply
VSWR Voltage Standing Wave Ratio
WCDMA Wideband Code Division Multiple Access
WDM Wavelength Division Multiplex

1.2. HEALTH AND SAFETY WARNINGS
1. Only suitably qualified personnel is allowed to work on this unit and only after
becoming familiar with all safety notices, installation, operation and maintenance
procedures contained in this manual.
2. Read and obey all the warning labels attached to the unit. Make sure that the
warning labels are kept in a legible condition and replace any missing or
damaged labels.
3. Obey all general and regional installation and safety regulations relating to work
on high voltage installations, as well as regulations covering correct use of tools
and personal protective equipment.
4. Keep operating instructions within easy reach and make them available to all
users.
5. It is the responsibility of the network provider to implement prevention measures
to avoid health hazards which may be associated to radiation from the antenna(s)
connected to the unit.
6. Note for a Class A digital device or peripheral:
This equipment has been tested and found to comply with the limits for a
Class A digital device, pursuant to part 15 of the FCC Rules. These limits
are designed to provide reasonable protection against harmful interference
when the equipment is operated in a commercial environment. This
equipment generates, uses, and can radiate radio frequency energy and, if
not installed and used in accordance with the instruction manual, may
cause harmful interference to radio communications. Operation of this
equipment in a residential area is likely to cause harmful interference in
which case the user will be required to correct the interference at his own
expense.
7. Make sure, access is restricted to qualified personnel.
8. Only licence holders for the respective frequency range are allowed to operate
this unit.
9. Corresponding local particularities and regulations must be observed. For national
deviations please refer to the respective documents included in the manual CD
delivered.
10. Use this equipment only for the purpose specified by the manufacturer. Do not
carry out any modifications or fit any spare parts which are not sold or
recommended by the manufacturer. This could cause fires, electric shock or other
injuries.
11. Due to power dissipation, the repeater may reach a very high temperature. Do not
operate this equipment on or close to flammable materials.
Page 8 MF0143A8A.doc

12. Before opening the unit, disconnect mains.
13. ESD precautions must be observed! Before commencing maintenance work, use
the available grounding system to connect ESD protection measures.
14. This unit complies with European standard EN60950.
15. Make sure the repeater settings are according to the intended use (see also
product information of manufacturer) and regulatory requirements are met.
16. Although the repeater is internally protected against overvoltage, it is strongly
recommended to earth the antenna cables close to the repeater’s antenna
connectors for protection against atmospheric discharge.
17. Laser radiation! Do not stare into the beam; do not view it directly or with optical
instruments.

Page 10 MF0143A8A.doc
1.3. ABOUT ANDREW SOLUTIONS
Andrew Wireless Systems GmbH based in Buchdorf/ Germany, is a leading
manufacturer of coverage equipment for mobile radio networks, specializing in high
performance, RF and optical repeaters. Our optical distributed networks and RF
repeater systems provide coverage for every application: outdoor use, indoor
installations, tunnels, subways and many more.
Andrew Wireless Systems GmbH has unparalleled experience in providing RF
coverage and capacity solution for wireless networks in both indoor and outdoor
environment and belongs to Andrew Solutions, a CommScope Company.
Andrew Solutions is the foremost supplier of one-stop, end-to-end radio frequency
(RF) solutions. Our products are complete solutions for wireless infrastructure from
top-of-the-tower base station antennas to cable systems and cabinets, RF site
solutions, signal distribution, and network optimization.
Andrew Solutions has global engineering and manufacturing facilities. In addition, it
maintains field engineering offices throughout the world.
We operate a quality management system in compliance with the requirements of
ISO 9001. All equipment is manufactured using highly reliable material. In order to
ensure constant first-rate quality of the products, comprehensive quality monitoring is
conducted at all fabrication stages. Finished products leave the factory only after a
thorough final acceptance test, accompanied by a test certificate guaranteeing
optimal operation.
Note: Exceptions of and national deviations from this intended use may be
possible. To observe corresponding local particularities and
regulations, please refer to the respective documents (also in
national language) which are included in the manual CD delivered.
To make the most of this product, we recommend you carefully read the instructions
in this manual and commission the system only according to these instructions.
For technical assistance and support, please also contact the local office or Andrew
Solutions directly at one of the addresses listed in the following chapter.

1.4. INTERNATIONAL CONTACT ADDRESSES FOR CUSTOMER SUPPORT
Americas:
Canada United States
Andrew Solutions Canada Andrew Solutions,
Andrew LLC, A CommScope Company
Mail 620 North Greenfield Parkway
Garner, NC 27529
U.S.A. Mail 620 North Greenfield Parkway
Garner, NC 27529
U.S.A.
Phone +1-905-878-3457 (Office)
+1-416-721-5058 (Mobile) Phone +1-888-297-6433
Fax +1-905-878-3297 Fax +1-919-329-8950
E-mail Peter.Masih@commscope.com,
WIsupport.us@commscope.com
E-mail WIsupport.us@commscope.com
Brazil & South America Mexico, Central America &
Caribbean region
CommScope Cabos do Brasil Ltda. Andrew Corporation Mexico,
SA DE CV
Mail
Av. Com. Camilo Julio 1256
Zonal Industrial CP 597
Sorocaba SP 18086-000
Brazil
Mail
Av. Insurgentes Sur 688, Piso 6
Col. Del Valle, CP: 03100
Mexico City
Mexico
Phone + 55-15-9104-7722 Phone
+52-55-1346-1900 (Office)
+52-1-55-5419-5260 (Mobile)
Fax + 55-15-2102-4001 Fax +52-55-1346-1901
E-mail WIsupport@commscope.com
E-mail WIsupport@commscope.com
APAC Countries:
China, India and Rest of Asia Australia & New Zealand
Andrew International Corporation Andrew Corporation (Australia) Pty Ltd.
Mail
Room 915, 9/F
Chevalier Commercial Centre
8 Wang Hoi Rd
Kowloon Bay
Hong Kong
Mail
Unit 1
153 Barry Road
Campbellfield
VIC 3061
Australia
Phone +852-3106-6100 Phone +613-9300-7969
Fax +852-2751-7800 Fax +613-9357-9110
E-mail WIsupport.China@commscope.com
E-mail WIsupport.Australia@commscope.com

Page 12 MF0143A8A.doc
Europe:
United Kingdom France
Andrew Solutions UK Ltd CommScope France
Mail
Unit 15, Ilex Building
Mulberry Business Park
Fishponds Road
Wokingham Berkshire
RG41 2GY
England
Mail
Immeuble Le Lavoisier
4, Place des Vosges
92052 Courbevoie
France
Phone +44-1189-366-792 Phone +33-1 82 97 04 00
Fax +44-1189-366-773 Fax +33-1 47 89 45 25
E-mail WIsupport.uk@commscope.com
E-mail WIsupport@commscope.com
Germany Czech Republic
Andrew Wireless Systems GmbH Andrew Solutions Czech Republic
C-Com, spol. s r.o
Mail Industriering 10
86675 Buchdorf
Germany Mail U Moruší 888
53006 Pardubice
Czech Republic
Phone +49-9099-69-0 Phone +420-464-6280-80
Fax +49-9099-69-930 Fax +420-464-6280-94
E-mail WIsupport@commscope.com
E-mail WIsupport@commscope.com
Austria Switzerland
Andrew Wireless Systems (Austria) GmbH Andrew Wireless Systems AG
Mail Weglgasse 10
2320 Wien-Schwechat
Austria Mail Tiergartenweg 1
CH-4710 Balsthal
Switzerland
Phone +43-1706-39-99-10 Phone +41-62-386-1260
Fax +43-1706-39-99-9 Fax +41-62-386-1261
E-mail WIsupport.austria@commscope.com
E-mail WIsupport.ch@commscope.com
Italy Spain and Portugal
Commscope Italy S.r.l., Faenza, Italy Andrew Solutions España S.A.
A Commscope Company
Mail Via Mengolina, 20
48018 Faenza (RA)
Italy Mail
Avda. de Europa, 4 - 2ª pta.
Parque Empresarial La Moraleja
28108 Alcobendas (Madrid)
Spain
Phone +39-0546-697111 Phone +34-91-745-20 40
Fax +39-0546-682768 Fax +34-91-661-87 02
E-mail WIsupport.italia@commscope.com
E-mail WIsupport.iberia@commscope.com
table 1-1 List of international contact addresses

2. FUNCTIONAL DESCRIPTION
2.1. PURPOSE
Cellular telephone systems transmit signals in two directions between base
transceiver station (BTS) and mobile stations (MS) within the signal coverage area.
If weak signal transmissions occur within the coverage area because of indoor
applications, topological conditions or distance from the transmitter, extension of the
transmission range can be achieved by means of an optical distribution system.
Such a system contains an optical Master Unit and several Remote Units. The
number of the Remote Units depends on the hardware and software configuration.
The Remote Units are connected to the Master Unit with optical links. The optical
loss must be less than 10 dB inclusive optical couplers or splitters.
The Master Unit is the connection to the base transceiver stations. The configuration
of a Master Unit depends on the number of the Remote Units and the frequency
range.
WDM (Wave Division Multiplex) filters are integrated in the optical modules. For the
UL, a wavelength within 1540 nm – 1562 nm is used. For the DL, a wavelength of
1310 ±20 nm is used. The maximum output power for the UL and DL is 5.7 mW.
2.2. THE ION-M7P (INTELLIGENT OPTICAL NETWORK; MMR)
The fibre-optic distribution system is designed for LTE 700 MHz services. Each fibre
is able to operate services of up to four providers. One Master Unit can operate up to
124 Remote Units.
An auto-levelling function for compensating different fibre losses and a
comprehensive supervision concept are implemented. Auto-levelling in the DL works
with optical power measurement, in the UL a 10.7 MHz signal is used for measuring
the optical loss.
The Remote Unit ION-M7P is connected to a central Master Unit via optical fibre
lines. Specific customer designs for lamp pole or wall mounting are available. Thus,
the system provides many advantages in view of easy site acquisition.

Page 14 MF0143A8A.doc
2.3. COMPONENTS OF THE ION-M7P REMOTE UNIT
2.3.1. Fan-Protection Kit
In order to protect the fan unit (e.g. against rain), a protective cover to be mounted
over the air inlet is delivered with the unit. For more details see chapter 3.1.4
Mounting of Fan Protection.
Mounting of the fan-protection kit is only mandatory for outdoor applications,
however, not mandatory for indoor applications.
2.3.2. Accessories
For the accessories available for the Remote Unit, e.g. overcoat housing, connecting
box or iso-trafo kit, a separate manual is available.

3. COMMISSIONING
3.1. MECHANICAL INSTALLATION
3.1.1. General
Read the health and safety warnings in chapter 1.2 Health and Safety Warnings.
1. Do not install the unit in a way or at a place where the specifications
outlined in the Environmental and Safety Specifications leaflet of the
supplier are not met.
2. It is recommended only to use the mounting hardware delivered by the
supplier. If different mounting hardware is used, the specifications for
stationary use of the Remote Unit must not be exceeded.
Note: Exceeding the specified load limits may cause the loss of warranty!
3. The unit is considerably heavy. Make sure that a suitable mounting surface
is used. Ensure there is adequate manpower to handle the weight of the
system.
4. Due to power dissipation, the Remote Unit may reach a very high
temperature. Ensure sufficient airflow for ventilation as specified in the
individual mounting procedures.
5. When connecting and mounting the cables (RF, optical, mains, ...) ensure
no water can penetrate into the unit through these cables.
6. Also observe all additional rules or restrictions regarding mounting that
depend on the type of Remote Unit. For details refer to chapter 7.2.2
Mechanical Specification. Install the unit vertically with the fan unit at the
top. A maximum tilt angle of 25° from a vertical position must be kept, as in
the following illustrations:

7. A spacing of 40 mm (1.58 inch) around the unit is required.
8. To ensure sufficient airflow when mounting the unit in enclosed spaces, two
lid openings (one for the air inlet and the other for the air outlet) have to be
provided. Do not block these air inlets and outlets when mounting the
Remote Unit. The size of each opening must equal at least 12 x 12 cm (144
cm2). Make sure, too, there is no thermal short circuit between the air inlet
and air outlet.
3.1.2. Wall-Mounting Procedure
Check the suitability of the wall-mounting kit and the wall.
Mark the position of the drilling
holes (for measurements refer to
figure 3-1 Wall mounting). Drill
four holes at the marked positions
and insert dowels *.
Use a cap nut or lock nut to screw
the four dowel screws into the
dowels and put the distance tubes
over the screws.
Hang the mounting brackets of the
Remote Unit into the screws, and
fasten them immediately using the
washers and nuts.
Ensure that there is free access to
the electrical connections as well
as to the cabinet. The approved
bending radius of the connected
cables must not be exceeded.
Wall mounting with active cooling kit
4.0 0.50
4
Mains supply
9
80 ± 0.50
122 ± 0.50
18
796 ± 1.00
G0946Z0
figure 3-1 Wall mounting, (metric dimensions)
* The dowels are not part of the delivery since the suitable type depends on the on-site conditions
(material of wall). Therefore, use dowels that are appropriate for the mounting surface.
Page 16 MF0143A8A.doc

3.1.3. Pole-Mounting Procedure
Standard mounting hardware cannot be used to mount the Remote Unit to a pole, a
column or other similar structures. Additional hardware must be used for this type of
installation. Such a pole-mounting kit could include two threaded rods M8, two
U-beams and mounting material like bolts and nuts.
figure 3-2 Pole-mounting kit
Use the screw bands to fasten the two U-beams to the pole as illustrated in figure
3-3 Pole mounting.
Note: When fastening the U-beams make sure that they are installed
congruently and not at an angle to each other. To determine the
distance between the beams refer to 3.1.2 Wall-Mounting Procedure
for measurements.
Hang the mounting brackets of the Remote Unit into the threaded bolts of the
U-beam, and fasten them immediately using the washers and nuts.
Ensure that there is free access to the electrical connections as well as to the
cabinet. The approved bending radius of the connected cables must not be
exceeded.

G0764M6
Lock for folding
screw band ES 119 TESPA screw band,
stainless, 11 mm
Optical
Remote Unit
Washer DIN 125
Form B Ø 8.0
Lock washer for M8.0 DIN 127
A2 Form B
Hexagon nut M8
DIN 934
Pole
Pole
Pole-mounting
bracket
Ø140
Ø40
figure 3-3 Pole mounting (metric dimensions)
Page 18 MF0143A8A.doc

3.1.4. Mounting of Fan Protection
Since the fan protection is required for the outdoor usage of a stand-alone Remote
Unit, the mounting of this optional equipment is also described in this manual.
To install the protective cover of the fan protection kit, first unscrew the four
screws with the respective lock washers from the cover of the air inlet of the
Remote Unit, and instead, screw in the four spacing bolts M4.0x30 with the four
lock washers M4.0 DIN125 that are part of the fan protection kit.
Place the protective cover into the right position by fitting its four bore holes over
the spacing bolts and fasten it using the original lock washers and screws of the
Remote Unit. (These lock washers and screws are also part of the fan protection
kit and can be used as spare parts in case of loss.)
2x M4.0x8
fillister-head screws
2x lock washers
remove the screw
and the lock washer!
2x lock washers
2x M4.0x8
fillister-head screws
remove the screw
and the lock washer!
2x M4.0x8
fillister-head screws
1x rain protective cover
2x lock washers
2x M4.0x8
fillister-head screws
2x M4.0x8 fillister-head screws
2x lock washers
remove the screw
and the lock washer!
2x washers
2x washers
156
152 171
20
AIR STREAM
2x M4.0x30
spacing bolts
G0496MF
figure 3-4 Mounting procedure for fan protection, (metric dimensions)

3.2. ELECTRICAL INSTALLATION
3.2.1. General
Read the health and safety warnings in chapter 1.2.
1. This unit contains dangerous voltages. Loss of life, severe personal injury or
property damage can be the result if the instructions contained in this manual are
not followed.
2. Ground the unit before connecting power supply. A grounding bolt is provided on
the cabinet to connect the ground-bonding cable.
3. Although the Remote Unit is internally protected against over-voltage, it is
strongly recommended to earth the antenna cables close to the antenna
connectors of the Remote Unit for protection against atmospheric discharge. In
areas with strong lightning it is highly recommended to insert additional lightning
protection.
4. If the mains connector of the Remote Unit is not easily accessible, a disconnect
device in the mains circuit must be provided within easy reach.
5. Before connecting or disconnecting the mains connector at the Remote Unit,
ensure that mains supply is disconnected.
6. Make sure that an appropriate circuit breaker and an over-current limiting device
are connected between mains and Remote Unit.
7. A connection of mains supply to a power socket requires the power socket to be
nearby the Remote Unit.
8. Incorrectly wired connections can destroy electrical and electronic components.
9. To avoid corrosion at the connectors caused by electrochemical processes, the
material of the cable connectors must not cause a higher potential difference than
0.6 V (see electrochemical contact series).
10. Use an appropriate torque wrench for the coupling torque of N-type connectors
(2 N-m / 20 in lb), with 13/16 in opening to tighten the N-type antenna connectors.
For example, use torque wrench of item no. 244379 available from the Andrew e-
catalog. Do NOT use your hands or any other tool (e.g. a pair of pliers)! This
might cause damage to the connector and lead to a malfunction of the Remote
Unit.
11. Use a voltage limiting device for unstabilized electric networks that frequently
generate spikes.
Page 20 MF0143A8A.doc

12. The unit complies with the surge requirement according to EN 61000-4-5 (fine
protection); however, it is recommended to install an additional medium (via local
supply connection) and/or coarse protection (external surge protection),
depending on the individual application, in order to avoid damage caused by
overcurrent.
13. Observe the labels on the front panels before connecting or disconnecting any
cables.
3.2.2. Connections
figure 3-5 Connector flange of ION-M7P
For detailed description of the external alarms please refer to chapter 4.5 External
Alarm Inputs and Outputs.
Alarm
output
Mains
connector Control connector (RS485)
for Extension Unit (EU) External
alarm input Optical-fibre
connector
RF-connector for EU
Status LED
N-connector mobile
Grounding bolt

3.2.2.1. Control Connector (RS485 / RS232) for Extension Unit
This 8-pin male connector (type: Binder Series 712) primarily supports control of the
Extension Unit via RS485 bus.
PIN Assignment
1 not connected
2 RS232 Rx
3 RS232 Tx
4 not connected
5 GND (RS232)
6 RS485 R+/D+
7 RS485 GND
8 RS485 R-/D-
figure 3-6 RS485 connector table 3-1 RS485 connector, PIN assignment
3.2.3. Grounding
Grounding must be carried out. Connect an earth-bonding cable to the grounding
connection provided at the outside of the Remote Unit (see chapter 3.2.2
Connections). Do not use the grounding connection to connect external devices.
figure 3-7 Grounding bolt with
loosened hex nut figure 3-8 Grounding bolt, schematic view
After loosening the hex nut, connect the earth-bonding cable between the two
washers as illustrated in the figures above. Then, fasten all parts again with the hex
nut.
Page 22 MF0143A8A.doc

3.3. CONNECTION OF THE ANTENNA CABLES
The Remote Unit has 7/16-type antenna connectors. For its location please refer to
chapter 3.2.2 Connections. For mounting the cable connectors, it is recommended to
refer to the corresponding documentation of the connector manufacturer. The
bending radius of the antenna cables must remain within the given specifications.
For the selection of cable and antenna it should be considered that, on the one hand,
a cable with higher loss is less expensive but, on the other hand, it impairs
performance.
Use an appropriate torque wrench for the coupling torque of N-type
connectors (2 N-m / 20 in lb), with 13/16 in opening to tighten the N-type
antenna connectors. For example, use torque wrench of item no. 244379
available from the Andrew e-catalog. Do NOT use your hands or any
other tool (e.g. a pair of pliers)! This might cause damage to the
connector and lead to a malfunction of the Remote Unit.
To minimize passive inter-modulation (PIM) distortion, attention has to
be paid to the physical condition of the connector junctions. Do not use
connectors that show signs of corrosion on the metal surface. Prevent
the ingress of water into the connector. Attach and torque the
connectors properly.

3.4. POWER CONNECTION
Before connecting electrical power to the units, the system must be grounded as
described in the previous chapter.
Mains power must be connected at the mains connector of the unit (see chapter
3.2.2 Connections).
The power supply plug is part of the delivery. The correct wiring of the power supply
plug is as follows:
figure 3-9 AC mains plug figure 3-10 DC mains plug
For the AC power supply connection, a minimum cross section of 1.5
mm2 is required, and for the DC power supply connection a minimum
cross section of 2.5 mm2 is required. Each wire must observe the
applicable national regulations regarding loop impedance, voltage drop,
and methods of installation. Make sure to connect the correct voltage to
the unit.
Note: Do not connect or disconnect the power cord at the mains connector
while power is on. Turn off mains power * before connecting the
power cord at the Remote Unit, then, engage mains again.
* Mains power must be interruptible with an external mains breaker. For the mains breaker,
observe the following recommendation:
120 Volt / 20 Amp max. or 240 Volt / 16 Amp, single-phase, 50 / 60 Hz AC service is needed,
i.e. the external AC breaker should be 20 Amps max. for 120-Volt service or 16 Amps for 240-
Volt service.
For the DC power supply, observe the local regulations of the DC service provider.
Page 24 MF0143A8A.doc

3.5. OPTICAL-FIBER-CABLE CONNECTION - RULES
Main optical system parameters:
Fiber:
Single mode fiber, type is E9/125 µm
Attenuation: <0.36 dB / km @ 1310 nm / <0.26 dB / km @ 1550 nm
Dispersion: <3.5 ps / nm km @ 1310 nm / <18.0 ps / nm km @ 1550 nm
Fibre-cable connectors E2000APC8°
ION-M system:
The specified bending radius ( < 4 cm) of the optical fibers must not be
exceeded.
The pigtails for the connection between Master Unit and Remote Unit must
have a sufficient length. A protection for the feeding into units must be given.
The system attenuation of the optical fibers, including the connectors, must
not exceed 10 dB.
System attenuation and attenuation of optical components must be determined. This
can be achieved by measuring attenuation and reflection with an appropriate
measuring instrument. For pigtails, a total value of < 0.4 dB (measured to a reference
plug) can be assumed due to the dead zone of the reflectometer. These
measurements must be made with a sufficient length of optical fiber, at the input and
output of the device which has to be measured.
Fiber-System Installation:
Fiber-cable connectors have to be of the same type (E2000APC8°) as the
connectors used for the unit. The fiber-optic cables are connected to the optical
transceiver.
Angled connectors are not compatible with straight optical connectors;
non-compatibility of connectors will result in permanent damage to
both connectors.
Before connecting the fiber cables, follow the procedure below to ensure optimized
performance. It is important for these procedures to be carried out with care:
Remove fiber-optic protective caps.
Do not bend the fiber-optic cable in a tight radius (< 4 cm) as this may cause
cable damage and interrupt transmission.
Using high-grade alcohol and lint-free cotton cleaning swabs, clean the end of
the fiber-optic cable that will be inserted in the optical connectors on the donor
interface box. Use a fiber end-face inspection tool to scan both, the class fiber
and its surrounding area.

Check for dirt on the cladding, chips/pits, dirt on the ferrule, and scratches.
Connect the fiber-optic cables by inserting the cable end into the laser
receptacle and aligning the key (on the cable end) with the keyed slot.
Do not use any index-matching gels or fluids of any kind in these connectors.
Gels are intended for laboratory use and attract dirt in the field.
Note: Care should be taken when connecting and disconnecting fiber-
optic cables - use the connector housing to plug or unplug a fiber.
Scratches and dust significantly affect system performance and
may permanently damage the connector. Always use protective
caps on fiber-optic connectors not in use.
Cleaning Procedure for Fiber-Optical Components:
Any contamination in the fiber connection results in additional optical transmission
loss which could cause whole system failure. It is thus recommended that every fiber
connector be inspected and cleaned prior to mating.
The goal is to eliminate any dust or contamination and to provide a clean
environment for the fiber-optic connection.
When you clean fiber components, always complete the following steps carefully:
1. Turn off the ION system (laser sources) before you inspect fiber connectors.
Never look into a fiber while the system lasers are on!
2. Check the connectors or adapters with a fiberscope before cleaning.
3. If the connector is dirty, clean it with a lint-free wipe (dry cleaning).
4. Inspect the connector.
5. If the connector is still dirty, repeat the dry cleaning technique.
6. Inspect the connector.
7. If the connector is still dirty, clean it with 99% isopropyl alcohol (wet cleaning)
followed immediately with a dry clean in order to ensure no residue is left on
the endface.
8. Repeat steps 5 through 7 until endface is clean.
Note: For a more detailed description please refer to:
http://www.cisco.com/en/US/tech/tk482/tk876/technologies_white_paper09186
a0080254eba.shtml
Page 26 MF0143A8A.doc

3.5.1. Protective Plug
Connection:
A protective plug is provided for the connection of the fibre-optic cables.
figure 3-11 Protective-plug assembly
Note: Only high-quality connectors must be used for this type of plug.
Qualified brands are Diamond or Huber & Suhner.

For plug assembly, observe the following instruction:
1. Pass one or two contacts through the
backshell and the clamp ring.
2. Place the contact(s) on the lower insulation body by pushing the groove of the
contact into the cavity. If there is only one contact, cavity A must be used. *
3. Then, mount the upper insulation body on the lower insulation body. **
4. Bring the insulator into the plug. The narrow groove of the insulator must be fitted
into the stamp of the plug.
Page 28 MF0143A8A.doc
* To release the contact for disassembling, push the inner snap to the side and pull the contact out.
** To release upper and lower insulation bodies for disassembling, use a small screwdriver and
carefully open the snap-connections at the left and the right side of the insulator without
damaging them.
5. Fasten the insulator by screwing the
backshell tight onto it. Use a spanner
with opening 32 to screw the
backshell tight (no gap).
6. Place the appropriate seal parts (with
one groove for one contact or two
grooves for two contacts) over the
cable(s) and push them into the
backshell.
Seals with
one groove
No gap
Cavity B
Upper insulation body
Cavity A

7. Bring the plastic ring over the cable(s), push it into the backshell and compress
the seals and plastic ring by screwing the clamp ring tight (no gap) using a
spanner with opening 20. ***
8. Connect the plug to the optical-fibre
connector of the Remote Unit, again
by fitting a stamp on the plug into the
groove of the connector.
9. To lock the connector, push the black
locking ring forward.****
Screw tight until gap is closed
*** For disassembling, release the clamping ring and remove the seals and the plastic ring first.
**** Locking mechanism: The system of locking the plug is based on a “push-pull” mechanism. The
locking ring has to be pushed forward to lock the connector and pulled back to free the
connection.
3.5.2. Protective-Tube Kit
As additional protection for the optical fibers, this connector type can be
supplemented by a special tube kit. To fasten the tube correctly, first unscrew the
clamp ring (if already installed) of the original plug kit.
Then, proceed according to the following instruction:
Groove Push forward to lock, pull
back to free connection

Page 30 MF0143A8A.doc
Screw the reducer to
the protective plug
backshell without any
gap!
Place the appropriate seal
parts (with) one groove for
one contact or two grooves
for two contacts) over the
cable(s) and push them into
the backshell! Protective tube
Reducer
Coupling
Protective plug
Fiber cable
Ring 3/4
G1055M0
figure 3-12 Tube-kit installation
Push the fiber-optic cable carefully
through the tube until it comes out
at the other end.
3.6. COMMISSIONING
Read the health and safety warnings in chapter 1.2 Health and Safety Warnings as
well as the description carefully to avoid mistakes and proceed step by step as
described!
Do not operate the Remote Unit without terminating the antenna connectors.
The antenna connectors may be terminated by connecting them to their
respective antennas or to a dummy load.
Only qualified personnel should carry out the electrical, mechanical,
commissioning and maintenance activities that require the unit to be powered
on when open.
When opening the Remote Unit do not damage the warranty labels on the
internal devices. The warranty is void if the seals are broken.
Ensure that all connections have been performed according to chapter 3.2.2
Connections.

Commissioning an ION-M Remote Unit
Start
Mechanical installation
Fasten wall or pole mounting kit to wall or
pole.
Manual for Remote
Unit
Electrical connections
Connect grounding cable and
ground the RU.
Mains
Switch mains power on.
Philips
screwdriver
Screw driver
Spanner, size
13 mm
Electrical connections
Connect AC (DC) power to the power
cable. Ensure there is a circuit breaker
between mains and RU.
RF connection
Connect antenna cable to antenna port.
Optical connections
Mount the optical fibre with E2000 APC8°
connector into the connector. Plug the
connector into the RU.
Mechanical installation
Mount RU to mounting kit, ensure suffient
air flow and avoid thermal short circuits.
Preperation
Unpack RU, RU accessories and
mounting kit.
External devices
Connect external devices to the external
in or alarm out connectors, or to the
connecting board inside the RU.
G1055Z
0
G1055Z0
Mounting kit
Spanner, size
13 mm
Drilling
machine
Dowels
Screw driver
Grounding cable
Spanner 13 mm
Mains cable
Connecting kit
Alarm kit
(M-cabinet)
E2000 APC8° connector
Spanner with opening 32
Page 32 MF0143A8A.doc
For your notes:

Page 34 MF0143A8A.doc
4. ALARMS
4.1. BITe AND ALARMS
The Built-In Test (BITe) concept comprises the monitoring of the power supplies, the
power amplifiers and the optical interface.
All alarms occurring can be checked via software at the Master Unit.
4.2. HANDLING OF ALARMS
A message is transmitted to the Master Unit when the software acknowledges a valid
alarm.
A new alarm message will not be repeated if the reason for the alarm is cleared or if
the alarm continues.
A new alarm message will be generated if the alarm is interrupted for at least five
seconds after acknowledgement.
4.3. ALARM STATUS
Refer to the corresponding software documentation of the Master Unit for details.

4.4. STATUS LED ALARMS
For local supervision, a status LED on the connector flange of the remote unit gives
an indication of possible reasons for alarms. This table shows possible on-site
measures that could be checked before referring to the master unit alarm list.
Status LED Indication Alarms Possible on-site measures
Green No alarm
Status ok
Door alarm Close the door (RUs with door).
Alarms not directly related to RU:
External alarms Check externally connected devices.
Optical alarm Rx
Check fibre loss of optical link.
Check optical connectors.
Clean optical connectors.
(MU: Check optical output power of
corresponding OTRx at master unit).
Orange
ALC alarm (MU: Decrease DL input power of
affected band).
Alarms directly related to RU:
Power 28 V Change power supply (RUs with door).
Replace the affected remote unit.
Temperature Reduce environmental temperature.
Eliminate thermal short circuit.
Fan Disconnect and connect mains. Fans
should run. If not, replace the fans at
RU.
I²C Disconnect and connect mains.
Optical alarm Tx Exchange RU.
Red
A
mplifier “Power
Down” (MU: Change amplifier setting at MU
controller).
Status LED off Mains
Check power switch inside of RU (RUs
with door).
Check mains cabling.
Check mains power.
table 4-1 Status LED alarms
For the position of the status LED see chapter 3.2.2 Connections.
Explicit troubleshooting is available in the MU software (software manual or WEB
Interface).

4.5. EXTERNAL ALARM INPUTS AND OUTPUTS
G1038Z0 G1038Z0
figure 4-1 Flange connector, 5 poles figure 4-2 Flange connector, 7 poles
The alarm outputs (open collector output 5 V / 1 mA) are normally low. In case of an
alarm they are high active (5 V). They can be used to monitor alarms with an external
alarm indicator.
The +28 V pin (for its location see figure 4-2 Flange connector, 7 poles) is protected
by a 500 mA thermoswitch. In case of exceeding this current between PIN 7 and
GND and/or in case of a failure of the VSWR module, the thermoswitch turns into a
high-resistive status. In this case no fuse needs to be replaced. Just wait a few
minutes until the thermoswitch reaches the normal operating temperature again.
Note: The manufacturer / supplier of this system accepts no liability for
damage caused by equipment connected to external outputs or by
effects from such equipment.
As accessory equipment the alarm kit is available to connect external devices to the
external alarm inputs and outputs (for ID No see section 6.3 Spare Parts).
Page 36 MF0143A8A.doc

With the external alarm inputs it is possible to monitor the status of connected
devices, e.g. a UPS, via software. All alarm inputs are normally high (5 V) without
connection. The polarity (high/ low) can be set via the software at the Master Unit (for
details please see according software manual).
The device to be monitored must be connected so that the alarm contacts will be
closed in case of an alarm (I max = 8 mA). The alarm inputs are potential-free with
common ground.
Subminiature circular connectors series 712 with five and seven contacts, which are
contained in the alarm kit, can be ordered directly from the Binder Connector Group,
the manufacturer, or indirectly from Andrew Solutions (for ID No of the alarm kit see
section 6.3 Spare Parts).
V1651A1
Alarm output
Alarm GND
Alarm GND
Alarm GND
Alarm GND
Alarm input
ION-M alarm outputs
4700R
+5 V
ION-M alarm inputs
+5 V
560R
figure 4-3 Alarm inputs and outputs, standard
4.6. TROUBLESHOOTING
The status of the Remote Unit can be checked via the Master Unit (for details please
refer to the software manual of the Master Controller). Locally, the status can be
checked at the LED, see chapter 3.2.2 Connections.

Page 38 MF0143A8A.doc
5. MAINTENANCE
5.1. GENERAL
Read the health and safety warnings in chapter 1.2 Health and Safety Warnings.
Note: The Remote Unit does not require preventative maintenance
measures.
Note: To prevent malfunctions of the cooling system due to dirt or
pollution, it is recommended to clean the heat sink at regular
intervals. These cleaning intervals depend mainly on the location
of the Remote Unit and the corresponding degree of pollution.
Maintenance of the ION-M7P should be performed by replacing only components
that are contained in this chapter. In order to maintain warranty, take care not to
damage unintentionally the seals on the modules.
The spare parts list, consequently, contains only units which can be replaced without
tuning or soldering work.
Note: When sending back the unit, use an appropriate packaging, see
chapter 6.2.3 Environmental and Safety Specifications. We
strongly recommend using the original packaging!
Note: Defect parts should only be replaced by original parts from the
supplier. All interventions inside the housing are at one’s own risk.
Note: During maintenance ensure the Remote Unit has been
disconnected from mains.
Note: Before disconnecting any cables, label any unlabelled cables to
ensure correct connection.
For most maintenance procedures appropriate tools are required to ensure correct
handling. All these tools can be ordered from the supplier. For screwing procedures
observe that all our screws have a right-hand thread, i.e. for fastening the screws
turn the tool clockwise and for unscrewing them turn it counter-clockwise.
Due to the design of the Remote Unit the only component recommended to be
replaced is the fan unit. For replacing any other component, please contact the
supplier.

5.2. REPLACING THE FAN UNIT
Replacement of the fan unit is not required as a preventative measure. Only if an
alarm indicates a malfunctioning of a fan must the unit be exchanged.
Note: Please observe that the fan unit can only be replaced as a whole. Do
not remove the fans separately.
Read the health and safety warnings in chapter 1.2 Health and Safety Warnings as
well as the instructions in chapter 5.1 General before starting with the replacement.
1. Switch off the Remote Unit. Make sure mains is disconnected for the
following replacement procedure. Then, proceed as follows:
2. Loosen the four tallow-drop screws
M4x8 by which the fan plate is
screwed to the cabinet. Remove the
four screws and the corresponding
washers.
3. Remove the fan unit – by putting slight
pressure on the fan plate cover – to a
position that allows access to the fan
connector and the earth-bonding
cable.
4. Unscrew the fan connector and then
disconnect the earth-bonding cable.
Fan-unit connector
Earth-bonding cable
Note: To observe the specified torque of 650 Ncm for an M5 thread, use
an appropriate tool for the following screwing procedures.

5. To mount the new fan unit, re-connect the earth-bonding cable and the fan
connector (see step 4). Then, place the fan unit back into its original position and
fix it tight as shown below:
6. Screw the whole fan unit to the cabinet with the four tallow-drop screws M4x8
(see step 2). In order not to exceed the specified torque of 330 Ncm, use an
appropriate tool.
Page 40 MF0143A8A.doc

5.3. CLEANING THE HEAT SINK
Note: Read the health and safety warnings in chapter 1.2 Health and
Safety Warnings as well as the instructions in chapter 5.1 General
before starting with the replacement procedure. Then, proceed as
follows:
1. Switch off the Remote Unit. For the following procedure ensure that mains has
been disconnected before!
3. Use compressed air (max. 5 bar) to
blow out the heat sink from back to
front:
2. Remove the fan plate with the fan unit
from the Remote Unit as described in
chapter 5.2 Replacing the Fan Unit,
steps 1 and 2:
4. In case the dirt cannot be blown out completely and parts of it stick to the ribs of
the heat sink, clean the parts concerned carefully from the front using e.g. a
brush. Take care that the material is not scratched or damaged.
5. After cleaning the heat sink, mount the fan unit again according to chapter 5.2
Replacing the Fan Unit, step 6. Then, switch the Remote Unit back on.
Compressed air
(5
ba
r m
a
x.
)
Brush (not metallic)

6. APPENDIX
6.1. ILLUSTRATIONS
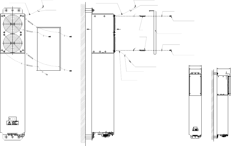
figure 6-1 Installation drawing
Page 42 MF0143A8A.doc

6.2. SPECIFICATIONS
6.2.1. Electrical Specifications
ION-M7P
Electrical
Power supply Mains
power 85 Vac to 264 Vac
115 Vac or 230 Vac
Power consumption 300 Watts
Optical
Connectors E2000/APC 8°
Optical return loss 45 dB minimum
Fiber type Single mode E9/125 mm
Optical link budget 0 to 10 dB
Composite input power @ OTRx
master side 700 MHz 3.0 dBm composite
All data is subject to change without notice.
6.2.2. Mechanical Specifications
Height, width, depth * 831 x 156 x 147 mm (32.7 x 6.1 x 5.8 in)
Weight 20 kg (44.1 Ib)
* A spacing of 40 mm (1.66 inch) around the unit is required.
All data is subject to change without notice.
6.2.3. Environmental and Safety Specifications
Note: For detailed information, please refer to the Environmental and
Safety Specifications leaflet of the supplier, related to ETS 300 019
(European Telecommunication Standard).
Operating temperature range -33°C to +50°C
RF part IP67
Ingress protection Fan part IP55
All data is subject to change without notice.

Page 44 MF0143A8A.doc
6.3. SPARE PARTS
The following lists contain all parts available for the Remote Unit. The configuration of
the delivered unit meets the requirements of the customer and can differ depending
on the state of the delivery.
Maintenance of the ION-M7P should be performed on an FRU (Field Replaceable
Unit) basis only. The following spare parts lists only contain units that can be
replaced without tuning or soldering work. To replace an FRU, use the appropriate
tools. Replacement tools may be ordered from the supplier. If any FRU not contained
in the following list needs to be replaced, please contact customer service for
additional instructions.
Spare Parts List of the Remote Unit ION-M7P
Designation: ID No: FRU
ION-M7P 7622613
Protective Plug E2000 7160013 x
Protective Cap E 2000 7158914 x
Fan Protection Kit 7159097 x
Fan Unit 7158254 x
Protective Tube Kit 7162182 x
Manuals für ION-M7P 7624540-00
Accessories
Wall Mounting
Wall-Mounting Kit 7158078
ISO Trafo Kit 115 V Wall Mounting 7159340
ISO Trafo Kit 230 V Wall Mounting 7158322
Connecting Box Kit Wall Mounting 7159613
Overcoat Housing Kit Wall Mounting 7159625
Pole Mounting
Pole-Mounting Kit 7157782
ISO Trafo Kit 115 V Pole Mounting 7159623
ISO Trafo Kit 230 V Pole Mounting 7159621
Connecting Box Kit Pole Mounting 7159612
Overcoat Housing Kit Pole Mounting 7159624
Alarm Kit 7157396
The manufacturer reserves the right to replace the spare parts listed above by
equivalent substitutes.
7. INDEX
A
Abbreviations.......................................................... 7
Address of Andrew Wireless Systems GmbH....... 12
Alarms
Alarm Status .................................................... 34
Bite and Alarms ............................................... 34
External Inputs........................................... 36, 37
Handling of Alarms .......................................... 34
List ................................................................... 37
Outputs ...................................................... 36, 37
RU ................................................................... 37
Status LED....................................................... 35
Andrew Solutions.................................................. 10
C
Cleaning the Heat Sink......................................... 41
Commissioning
General............................................................ 31
Components
Accessories ..................................................... 14
Fan-Protection Kit............................................ 14
Connection Rules
Optical-Fiber Cables ........................................ 25
Connections
Antenna ........................................................... 23
Connector Flange ............................................ 21
Power .............................................................. 24
Contact Addresses ............................................... 11
Control Connector for EU ..................................... 22
Customer Support Addresses............................... 11
E
Extension Unit
RS485/ RS232 Control Connector (8 PINs)..... 22
External Inputs
Location ........................................................... 21
F
Fiber-Optical Components
Cleaning Procedure ......................................... 26
System Installation........................................... 25
Flange Connector
5 poles ............................................................. 36
7 poles ............................................................. 36
G
Grounding............................................................. 22
H
Health and Safety Warnings................................... 8
I
Illustrations ........................................................... 42
Installation
Electrical.......................................................... 20
Mechanical ...................................................... 15
M
Maintenance......................................................... 38
Mounting
Fan Protection ................................................. 19
Pole (Outside).................................................. 17
Wall.................................................................. 16
O
Optical-Fibre Connection
Protective Plug ................................................ 27
Protective-Tube Kit .......................................... 29
Outputs
Location........................................................... 21
P
Pin Assignment
External Alarms ............................................... 36
R
Replacement of Fan Unit...................................... 39
RS485/ RS232 EU Control Connector ................. 22
S
Spare Parts .......................................................... 44
Specifications
Electrical.......................................................... 43
Environmental and Safety................................ 43
Mechanical ...................................................... 43
T
Troubleshooting.................................................... 37

Page 46 MF0143A8A.doc
For your notes: