Endress and Hauser SE KG FMR5XC Level Radar User Manual Micropilot FMR53 FMR54
Endress and Hauser GmbH and Co Level Radar Micropilot FMR53 FMR54
user manual

DRAFT
Application
Continuous, non-contact level measurement of liquids,
pastes and slurries
Features FMR53:
• Especially suited for small process connections; PTFE
sensors usable in chemically aggressive media
• Rod antenna
• Maximum measuring range: 20 m (66 ft)
• Process connection: 1½" thread or flange
• Temp. range: –40 to +150 °C (–40 to +302 °F)
• Pressure range: –1 to +40 bar (–14.5 to +580 psi)
•Accuracy: ± 6 mm
Features FMR54:
• Ideally suited for measurements in bypasses and
stilling wells
• Horn or planar antenna
• Maximum measuring range: 20 m (66 ft)
• Process connection: flange
• Temp. range: –196 to +400 °C (–321 to +752 °F)
• Pressure range: –1 to +160 bar (–14.5 to +2 320 psi)
•Accuracy: ± 6 mm
Your benefits
• Reliable measurement even for changing product and
process conditions
• Integrated data memory (HistoROM) for high
availability
• Intuitive operating menu in national languages for
easy commissioning
• Simple integration into control or asset management
systems
• Exact diagnostic and process information to assist fast
decisions
• International approvals for use in hazardous areas
• 5-point linearity protocol
• WHG and marine approvals
• SIL2 according to IEC 61508, SIL3 in case of
homogeneous or heterogeneous redundancy
• System integration via HART/PROFIBUS PA (Profile
3.02)/FOUNDATION Fieldbus
Technical Information
Micropilot FMR53, FMR54
Level radar
Level measurement in liquids
TI01041F/00/EN/01.12
71162678

DRAFT
Table of contents Micropilot FMR53, FMR54
2 V. 1, Rev. 7, 26-10-2012 Endress+Hauser
Table of contents
Important document information ................ 4
Document conventions ........................... 4
Function and system design .................... 6
Measuring principle ............................. 6
Input ..................................... 8
Measured variable .............................. 8
Measuring range ............................... 8
Operating frequency ............................ 11
Transmitting power ............................ 11
Output ................................... 12
Output signal ................................ 12
Signal on alarm ............................... 13
Linearization ................................ 13
Galvanic isolation ............................. 13
Protocol-specific data ........................... 13
Power supply ............................. 17
Terminal assignment ........................... 17
Device plug connectors .......................... 24
Supply voltage ............................... 25
Power consumption ............................ 27
Current consumption ........................... 27
Power supply failure ............................ 28
Potential equalization ........................... 28
Terminals .................................. 28
Cable entries ................................ 28
Cable specification ............................. 28
Overvoltage protection .......................... 29
Performance characteristics ................... 30
Reference operating conditions ..................... 30
Maximum measured error ........................ 30
Measured value resolution ........................ 30
Reaction time ................................ 30
Influence of ambient temperature ................... 30
Influence of gas layer ........................... 30
Gas phase compensation with external pressure sensor
(PROFIBUS PA, in preparation) ..................... 31
Installation ............................... 32
Installation conditions ........................... 32
Measuring conditions ........................... 36
Installation in vessel (free space) .................... 37
Installation in stilling well ........................ 42
Installation in bypass ........................... 45
Vessels with heat insulation ....................... 48
Environment .............................. 49
Ambient temperature range ....................... 49
Ambient temperature limits ....................... 49
Storage temperature ............................ 58
Climate class ................................ 58
Geometric height according to IEC61010-1 Ed.3 .......... 58
Degree of protection ............................ 58
Vibration resistance ............................ 58
Cleaning the antenna ........................... 58
Electromagnetic compatibility (EMC) ................. 59
Process .................................. 60
Process temperature range ........................ 60
Process pressure range .......................... 60
Dielectric constant ............................. 61
Mechanical construction ..................... 62
Dimensions ................................. 62
Weight .................................... 66
Materials ................................... 67
Operability ............................... 72
Operating concept ............................. 72
Local operation ............................... 72
Operation with remote display and operating module FHX50 .. 73
Remote operation ............................. 73
Integration in tank gauging system ................... 77
System integration via Fieldgate ..................... 78
Certificates and approvals .................... 79
CE mark ................................... 79
C-Tick symbol ............................... 79
Ex approval ................................. 79
Dual seal according to ANSI/ISA 12.27.01 .............. 79
Functional Safety .............................. 79
Sanitary compatibility ........................... 79
AD2000 ................................... 79
Pressure Equipment Directive ...................... 79
Marine certificate (in preparation) ................... 79
Radio standard EN302372-1/2 ..................... 79
FCC / Industry Canada .......................... 79
CRN approval ................................ 80
Track record ................................ 80
Other standards and guidelines ..................... 80
Ordering information ........................ 81
Ordering information ........................... 81
5-point linearity protocol (in preparation) ............... 81
Customized parametrization ....................... 82
Accessories ............................... 83
Device-specific accessories ........................ 83
Communication-specific accessories .................. 85
Service-specific accessories ........................ 86
System components ............................ 86
Documentation ............................ 87
Standard documentation ......................... 87
Supplementary documentation ..................... 87
Safety Instructions (XA) .......................... 87
Registered trademarks ....................... 88

DRAFT
Micropilot FMR53, FMR54
4 V. 1, Rev. 7, 26-10-2012 Endress+Hauser
Important document information
Document conventions Safety symbols
Symbol Meaning
DANGER
A0011189-EN
DANGER!
This symbol alerts you to a dangerous situation. Failure to avoid this situation will result in serious
or fatal injury.
WARNING
A0011190-EN
WARNING!
This symbol alerts you to a dangerous situation. Failure to avoid this situation can result in serious
or fatal injury.
CAUTION
A0011191-EN
CAUTION!
This symbol alerts you to a dangerous situation. Failure to avoid this situation can result in minor
or medium injury.
NOTICE
A0011192-EN
NOTICE!
This symbol contains information on procedures and other facts which do not result in personal
injury.
Electrical symbols
Symbol Meaning
A0011197
Direct current
A terminal to which DC voltage is applied or through which direct current flows.
A0011198
Alternating current
A terminal to which alternating voltage is applied or through which alternating current flows.
A0017381
Direct current and alternating current
• A terminal to which alternating voltage or DC voltage is applied.
• A terminal through which alternating current or direct current flows.
A0011200
Ground connection
A grounded terminal which, as far as the operator is concerned, is grounded via a grounding system.
A0011199
Protective ground connection
A terminal which must be connected to ground prior to establishing any other connections.
A0011201
Equipotential connection
A connection that has to be connected to the plant grounding system: This may be a potential
equalization line or a star grounding system depending on national or company codes of practice.
Symbols for certain types of information
Symbol Meaning
A0011182
Allowed
Indicates procedures, processes or actions that are allowed.
A0011183
Preferred
Indicates procedures, processes or actions that are preferred.
A0011184
Forbidden
Indicates procedures, processes or actions that are forbidden.
A0011193
Tip
Indicates additional information.
A0011194
Reference to documentation
Refers to the corresponding device documentation.


DRAFT
Micropilot FMR53, FMR54
6 V. 1, Rev. 7, 26-10-2012 Endress+Hauser
Function and system design
Measuring principle The Micropilot is a "downward-looking" measuring system, operating based on the time-of-flight method
(ToF). It measures the distance from the reference point (process connection) to the product surface. Radar
impulses are emitted by an antenna, reflected off the product surface and received again by the radar system.
F
L
D
E
R
0%
100%
A0017871
å 1 Setup parameters of the Micropilot
RReference point of the measurement (lower edge of the flange or threaded connection)
E Empty calibration ( = zero)
F Full calibration (= span)
D Measured distance
L Level (L = E - D)
Input
The reflected radar impulses are received by the antenna and transmitted into the electronics. A
microprocessor evaluates the signal and identifies the level echo caused by the reflection of the radar impulse
at the product surface. The unambiguous signal identification is accomplished by the PulseMaster® eXact
software together with the Multi-echo tracking algorithms, based on many years of experience with time-of-
flight technology.
The distance D to the product surface is proportional to the time of flight t of the impulse:
D = c · t/2,
with c being the speed of light.
Based on the known empty distance E, the level L is calculated:
L = E – D
The reference point R of the measurement is located at the process connection. For details see the
dimensional drawing:
•FMR53: (® ä 63)
•FMR54: (® ä 64)
The Micropilot is equipped with functions to suppress interference echoes. The user can activate these
functions. Together with the multi-echo tracking algorithms they ensure that interference echoes (i.e. from
edges and weld seams) are not interpreted as level echo.

DRAFT
Micropilot FMR53, FMR54
Endress+Hauser V. 1, Rev. 7, 26-10-2012 7
Output
The Micropilot is commissioned by entering an empty distance "E" (=zero), a full distance "F" (=span) and
application parameters. The application parameters are automatically adapt into the instrument to the
process conditions. For models with a current output, the factory adjustment for zero point "E" and span "F"
is 4 mA and 20 mA. For digital outputs and the display module, the factory adjustment for zero point "E" and
span "F" is 0 % and 100 %.
A linearization with max. 32 points, based on a table entered either manually or semi-automatically, can be
activated locally or remotely. This function provides a measurement in engineering units and a linear output
signal for spheres, horizontal cylindrical tanks and vessels with conical outlet.
Life cycle of the product
Engineering Procurement Installation Commissioning Operation Maintenance Retirement
A0013773-EN
å 2 Life cycle
Engineering
• Universal measuring principle
• Measurement unaffected by medium properties
• Hardware and software developed according to SIL IEC 61508
Procurement
• Endress+Hauser being the world market leader in level measurement guarantees asset protection
• Worldwide support and service
Installation
• Special tools are not required
• Reverse polarity protection
• Modern, detachable terminals
• Main electronics protected by a separate connection compartment
Commissioning
• Fast, menu-guided commissioning in only a few steps on site or from the control room
• Plain text display in national languages reduces the risk of error or confusion
• Direct local access of all parameters
• Short instruction manual at the device
Operation
• Multi-echo tracking: Reliable measurement through self-learning echo-search algorithms taking into
account the short-term and long-term history in order to check the found echoes for plausibility and to
suppress interference echoes.
• Diagnostics in accordance with NAMUR NE107
Maintenance
• HistoROM: Data backup for instrument settings and measured values
• Exact instrument and process diagnosis to assist fast decisions with clear details concerning remedies
• Intuitive, menu-guided operating concept in national languages saves costs for training, maintenance and
operation
• Cover of the electronics compartment can be opened in hazardous areas
Retirement
• Order code translation for subsequent models
• RoHS-conforming (Restriction of certain Hazardous Substances), unleaded soldering of electronic
components
• Environmentally sound recycling concept

DRAFT
Micropilot FMR53, FMR54
8 V. 1, Rev. 7, 26-10-2012 Endress+Hauser
Input
Measured variable The measured variable is the distance between the reference point and the product surface.
Subject to the empty distance entered "E" the level is calculated.
Alternatively, the level can be converted into other variables (volume, mass) by means of linearization (32
points).
Measuring range Maximum measuring range
Device Maximum measuring range
FMR53 20 m (66 ft)
FMR54 20 m (66 ft)
Usable measuring range
The usable measuring range depends on the size of the antenna, the reflectivity of the medium, the
mounting location and eventual interference reflections.
The following tables describe the groups of media as well as the achievable measuring range as a function of
application and media group. If the dielectric constant of a medium is unknown, it is recommended to
assume media group B to ensure a reliable measurement.
Media groups
Media groups DK (er)Example
A1.4 to 1.9 non-conducting liquids, e.g. liquefied gas 1)
B1.9 to 4 non-conducting liquids, e.g. benzene, oil, toluene, …
C4 to 10 e.g. concentrated acids, organic solvents, esters, aniline, alcohol, acetone, …
D> 10 conducting liquids, e.g. aqueous solutions, dilute acids and alkalis
1) Treat Ammonia NH3 as a medium of group A.

DRAFT
Micropilot FMR53, FMR54
Endress+Hauser V. 1, Rev. 7, 26-10-2012 9
Device Storage tank Buffer tank
A0018833
Calm product surface (e.g. intermittent filling, filling from bottom, immersion
tubes)
A0018835
Moving surfaces (e.g. continuous filling, from above, mixing jets)
Antenna type and size Antenna type and size
FMR53 Rod 390 mm (15 in)
Rod 540 mm (21 in)
- Rod 390 mm (15 in)
Rod 540 mm (21 in)
-
FMR54 Horn 150 mm (6 in) Horn 200 mm (8 in)
Horn 250 mm (10 in)
Horn 150 mm (6 in) Horn 200 mm (8 in)
Horn 250 mm (10 in)
BB
10
(33)
20
(66)
15
(49)
CC DD
A0018844
BB
20
(66)
20
(66)
15
(49)
CC DD
A0018845
BB
10
(33)
7.5
(25)
5
(16)
CC DD
A0018846
BB
12.5
(41)
7.5
(25)
10
(33)
CC DD
A0018847
Measuring range [m (ft)]

DRAFT
Micropilot FMR53, FMR54
10 V. 1, Rev. 7, 26-10-2012 Endress+Hauser
Device Process tank with agitator Stilling well Bypass
A0018837
Turbulent surface. Single stage agitator (frot <
1 Hz)
A0018839
A0018840
A
Antenna type and size
Antenna type and size
FMR53 Rod 390 mm (15 in)
Rod 540 mm (21 in)
- - - -
FMR54 Horn 150 mm (6 in) Horn 200 mm (8 in)
Horn 250 mm (10 in)
Horn
80 to 250 mm (3 to 10 in)
Planar
150 to 300 mm (6 to 12 in)
Horn
80 to 250 mm (3 to 10 in)
BB
8
(26)
4
(13) 6
(20)
CC DD
A0018848
BB
10
(33)
6
(20) 8
(26)
CC DD
A0018850
20
(66)
A, B, C, D
A0018851
38
(125)
A, B, C, D
A0018854
20
(66)
C, D
A0018852
Measuring range [m (ft)]

DRAFT
Micropilot FMR53, FMR54
Endress+Hauser V. 1, Rev. 7, 26-10-2012 11
Operating frequency C-band (~ 6 GHz)
Up to 8 Micropilot transmitters can be installed in the same tank because the transmitter pulses are
statistically coded.
Transmitting power Distance Average energy density in beam direction
1 m (3.3 ft) < 12 nW/cm2
5 m (16 ft) < 0.4 nW/cm2

DRAFT
Micropilot FMR53, FMR54
12 V. 1, Rev. 7, 26-10-2012 Endress+Hauser
Output
Output signal HART
Signal coding FSK ±0.5 mA over current signal
Data transmission rate 1 200 Bit/s
Galvanic isolation Yes
PROFIBUS PA (in preparation)
Signal coding Manchester Bus Powered (MBP)
Data transmission rate 31.25 kBit/s, voltage mode
Galvanic isolation Yes
FOUNDATION Fieldbus (in preparation)
Signal coding Manchester Bus Powered (MBP)
Data transmission rate 31.25 kBit/s, voltage mode
Galvanic isolation Yes
Switch output
For HART devices, the switch output is available as an option. See product structure, feature 20:
"Power Supply, Output", option B: "2-wire; 4-20mA HART, switch output"
Devices with PROFIBUS PA and FOUNDATION Fieldbus always have a switch output.
Switch output
Function Open collector switching output
Switching behavior Binary (conductive or non-conductive), switches when the programmable switch point is
reached
Failure mode non-conductive
Eectrical connection values U = 10.4 to 35 VDC, I = 0 to 40 mA
Internal resistance RI < 880 W
The voltage drop at this internal resistance has to be taken into account on planning the
configuration. For example, the resulting voltage at a connected relay must be sufficient
to switch the relay.
Insulation voltage floating, Insulation voltage 1 350 VDC to power supply aund 500 VAC to ground
Switch point freely programmable, separately for switch-on and switch-off point
Switching delay freely programmable from 0 to 100 sec. , separately for switch-on and switch-off point
Number of switching cycles corresponds to the measuring cycle
Signal source
device variables
• Level linearized
• Distance
• Terminal voltage
• Electronic temperature
• Relative echo amplitude
• Diagnostic values, Advanced diagnostics
Number of switching cycles unlimited

DRAFT
Micropilot FMR53, FMR54
Endress+Hauser V. 1, Rev. 7, 26-10-2012 13
Signal on alarm Depending on the interface, failure information is displayed as follows:
• Current output (for HART devices)
– Failsafe mode selectable (in accordance with NAMUR Recommendation NE 43):
Minimum alarm: 3.6 mA
Maximum alarm (= factory setting): 22 mA
– Failsafe mode with user-selectable value: 3.59 to 22.5 mA
• Local display
– Status signal (in accordance with NAMUR Recommendation NE 107)
– Plain text display
• Operating tool via digital communication (HART, PROFIBUS PA, FOUNDATION Fieldbus) or service
interface (CDI)
– Status signal (in accordance with NAMUR Recommendation NE 107)
– Plain text display
Linearization The linearization function of the device allows the conversion of the measured value into any unit of length
or volume. Linearization tables for calculating the volume in cylindrical tanks are pre-programmed. Other
tables of up to 32 value pairs can be entered manually or semi-automatically.
Galvanic isolation All circuits for the outputs are galvanically isolated from each other.
Protocol-specific data HART
Manufacturer ID 17 (0x11)
Device type ID 41 (0x28)
HART specification 6.0
Device description files (DTM,
DD)
Information and files under:
•www.endress.com
•www.hartcomm.org
HART load Min. 250 W
HART device variables The measured values can be freely assigned to the device variables.
Measured values for PV (primary variable)
• Level linearized
• Distance
• Electronic temperature
• Relative echo amplitude
• Analog output adv. diagnostics
Measured values for SV, TV, FV (second, third and fourth variable)
• Level linearized
• Distance
• Terminal voltage
• Electronic temperature
• Absolute echo amplitude
• Relative echo amplitude
• Area of incoupling
Supported functions • Burst mode
• Additional transmitter status
PROFIBUS PA (in preparation)
Manufacturer ID 17 (0x11)
Ident number 0x1559
Profile version 3.02
GSD file Information and files under:
•www.endress.com
•www.profibus.org
GSD file version

DRAFT
Micropilot FMR53, FMR54
14 V. 1, Rev. 7, 26-10-2012 Endress+Hauser
Output values Analog Input:
• Level linearized
• Distance
• Terminal voltage
• Electronic temperature
• Absolute echo amplitude
• Relative echo amplitude
Digital Input:
• Extended diagnostic blocks
• Status output PFS Block
Input values Analog Output:
• Analog value from PLC (for sensor block external pressure and temperature)
• Analog value from PLC to be indicated on the display
Digital Output:
• Extended diagnostic block
• Level limiter
• Sensor block measurement on
• Sensor block save history on
• Status output
Supported functions • Identification & Maintenance
Einfachste Geräteidentifizierung seitens des Leitsystems und des Typenschildes
• Automatic Ident Number Adoption
GSD compatibility mode with respect to the preceding product Micropilot M
FMR2xx
• Physical Layer Diagnostics
Installation check of the PRFIBUS segment and the Micropilot FMR5x via the
terminal voltage and telegram surveillance.
• PROFIBUS Up-/Download
Up to 10 times faster writing and reading of parameters via PROFIBUS up-/
download
• Condensed Status
Simple and self-explanatory diagnostic information by categorization of occurring
diagnostic messages.
FOUNDATION Fieldbus (in preparation)
Manufacturer ID 0x452B48
Device type 0x1028
Device Revision 0x01
DD Revision Information and files can be found:
•www.endress.com
•www.fieldbus.org
CFF Revision
Device Tester Version (ITK
Version)
6.0.1
ITK Test Campaign Number IT085300
Link Master (LAS) capable yes
Link Master / Basic Device
selectable
yes; default: Basic Device
Node address Default: 247 (0xF7)
Features supported Following methods are supported:
• Restart
• ENP Restart
• Setup
• Linearization
• Self Check
Virtual Communication Relationships (VCRs)
Number of VCRs 44
Number of Link Objects in VFD 50

DRAFT
Micropilot FMR53, FMR54
Endress+Hauser V. 1, Rev. 7, 26-10-2012 15
Permanent entries 1
Client VCRs 0
Server VCRs 10
Source VCRs 43
Sink VCRs 0
Subscriber VCRs 43
Publisher VCRs 43
Device Link Capabilities
Slot time 4
Min. inter PDU delay 8
Max. response delay 20
Transducer Blocks
Block Content Output values
Setup Transducer Block Contains all parameters for a standard commissioning
procedure
• Level or volume 1)
(Channel 1)
• Distance (Channel 2)
Advanced Setup Transducer
Block
Contains all parameters for a more detailed configuration
of the device
no output values
Display Transducer Block Contains all parameters for the configuration of the
display module
no output values
Diagnostic Transducer Block Contains diagnostic information no output values
Expert Configuration
Transducer Block
Contains parameters which require detailed knowledge
of the functionalities of the device
no output values
Expert Information
Transducer Block
Contains information about the state of the device no output values
Service Sensor Transducer
Block
Contains parameters which can only be operated by
Endress+Hauser service personnel
no output values
Service Information
Transducer Block
Contains information on the state of device which is
relevant for service operations
no output values
Data Transfer Transducer
Block
Contains parameters which allow to backup the device
configuration in the display module and to restore it into
the device.
no output values
1) depending on the configuration of the block
Function Blocks
Block Content Number of
permanent
blocks
Number of
instantiable
blocks
Execution
time
Functionality
Resource Block The Resource Block contains all the data
that uniquely identifies the field device.
It is an electronic version of a nameplate
of the device.
1 0 - enhanced
Multiple
Analog Input
Block
The AI block takes the manufacturer's
input data, selected by channel number,
and makes it available to other function
blocks at its output.
2 3 25 ms enhanced
Discrete Input
Block
The DI block takes a discrete input value
(e.g. indication of an level limit), and
makes it available to other function
blocks at its output.
1 2 20 ms standard

DRAFT
Micropilot FMR53, FMR54
16 V. 1, Rev. 7, 26-10-2012 Endress+Hauser
Block Content Number of
permanent
blocks
Number of
instantiable
blocks
Execution
time
Functionality
PID Block The PID block serves as proportional-
integralderivative controller and is used
almost universally to do closed-loop-
control in the field including cascade and
feedforward.
1 1 25 ms standard
Arithmetic
Block
This block is designed to permit simple
use of popular measurement math
functions. The user does not have to
know how to write equations. The math
algorithm is selected by name, chosen by
the user for the function to be done.
1 1 25 ms standard
Signal
Characterizer
Block
The signal characterizer block has two
sections, each with an output that is a
non-linear function of the respective
input. The non-linear function is
determined by a single look-up table
with 21 arbitrary x-y pairs.
1 1 25 ms standard
Input Selector
Block
The input selector block provides
selection of up to four inputs and
generates an output based on the
configured action. This block normally
receives its inputs from AI blocks. The
block performs maximum, minimum,
middle, average and ‘first good’ signal
selection.
1 1 25 ms standard
Integrator
Block
The Integrator Function Block integrates
a variable as a function of the time or
accumulates the counts from a Pulse
Input block. The block may be used as a
totalizer that counts up until reset or as a
batch totalizer that has a setpoint, where
the integrated or accumulated value is
compared to pre-trip and trip settings,
generating discrete signals when these
settings are reached.
1 1 25 ms standard
Analog Alarm
Block
1 1 25 ms standard
Up to 20 blocks can be instantiated in the device altogether, including the blocks already instantiated
on delivery.

DRAFT
Micropilot FMR53, FMR54
Endress+Hauser V. 1, Rev. 7, 26-10-2012 17
Power supply
Terminal assignment 2-wire: 4-20mA HART
+
–
4...20 mA
4...20 mA
5
5
4
4
1
1
2
2
8
9
3
3
+
+
–
–
1
+
2
4...20mA
HART
10 mm
Spare part
71108xxx
2- wire level
4-20 mA 4-20 mA
HART
[21]
open
-
1
+2
4-20mA
1-channel overvoltage protection
-
71128617
[16]
A
+
–
7
B
6
A0011294
å 3 Terminal assignment 2-wire; 4-20mA HART
AWithout integrated overvoltage protection
B With integrated overvoltage protection
1Active barrier with power supply (e.g. RN221N): Observe terminal voltage (® ä 25)
2HART communication resistor (³250 W): Observe maximum load (® ä 25)
3 Connection for Commubox FXA195 or FieldXpert SFX100 (via VIATOR Bluetooth modem)
4Analog display device: Observe maximum load (® ä 25)
5Cable screen; observe cable specification (® ä 28)
6 Terminals for 4-20mA HART (passive)
7 Overvoltage protection module
8 Terminal for potential equalization line
9 Cable entry

DRAFT
Micropilot FMR53, FMR54
18 V. 1, Rev. 7, 26-10-2012 Endress+Hauser
2-wire: 4-20mA HART, switch output
1
3+
+2
4
4-20mA/
FIELDBUS
4-20mA/
2-channel overvoltage protection
-
-
71128619
[17]
B
1
+
2
4...20 mA
HART
10 mm
Spare part
71108xxx
2- wire
4-20 mA PFS
HART
[02/03]
open
-
A
1
+
2
-
3
+4
-
10
9
8
7
11
+
+
-
-
2
2
3
3
4
4
6
5
5
1
1
4...20 mA
4...20 mA
³ W250
³ W250
3+
3+
4-
4-
+
+
–
–
A0013759
å 4 Terminal assignment 2-wire; 4-20mA HART, switch output
AWithout integrated overvoltage protection
B With integrated overvoltage protection
1Active barrier with power supply (e.g. RN221N): Observe terminal voltage (® ä 25)
2HART communication resistor (³250 W): Observe maximum load (® ä 25)
3 Connection for Commubox FXA195 or FieldXpert SFX100 (via VIATOR Bluetooth modem)
4Analog display device: Observe maximum load (® ä 25)
5Cable screen; observe cable specification (® ä 28)
6 Terminals for 4-20mA HART (passive)
7 Terminals for switch output (open collector)
8 Terminal for potential equalization line
9 Cable entry for 4-20mA HART line
10 Cable entry for switch output line
11 Overvoltage protection module

DRAFT
Micropilot FMR53, FMR54
Endress+Hauser V. 1, Rev. 7, 26-10-2012 19
2-wire: 4-20mA HART, 4-20mA
1
3
+
+2
4
4...20mA
HART
4...20mA
10 mm
Spare part
71108xxx
2- wire level
4-20 mA 4-20 mA
HART
[04/05]
open
-
-
11
A
1
3+
+2
4
4-20mA/
FIELDBUS
4-20mA/
2-channel overvoltage protection
-
-
71128619
[17]
14
13
12
+
+
+
+
+
-
-
-
-
1
1
2
2
3
3
9
9
5
5
8
8
6
6
7
7
4
4
+
+
–
–
+
+
–
–
4...20 mA
4...20 mA
10
B
4...20 mA
4...20 mA
A0013923
å 5 Terminal assignment 2-wire, 4-20 mA HART, 4...20mA
AWithout integrated overvoltage protection
B With integrated overvoltage protection
1 Connection current output 2
2 Connection current output 1
3Supply voltage for current output 1 (e.g. RN221N); Observe terminal voltage (® ä 26)
4Cable screen; observe cable specification (® ä 28)
5HART communication resistor (³ 250 W): Observe maximum load (® ä 26)
6 Connection for Commubox FXA195 or FieldXpert SFX100 (via VIATOR Bluetooth modem)
7Analog display device ; observe maximum load (® ä 26)
8Analog display device ; observe maximum load (® ä 26)
9Supply voltage for current output 2 (e.g. RN221N); Obesrve terminal voltage (® ä 26)
10 Overvoltage protection module
11 Terminals for current output 2
12 Terminal for the potential equalization line
13 Cable entry for current output 1
14 Cable entry for current output 2
This version is also suited for single-channel operation. In this case, current output 1 (terminals 1 and
2) must be used.

DRAFT
Micropilot FMR53, FMR54
20 V. 1, Rev. 7, 26-10-2012 Endress+Hauser
4-wire: 4-20mA HART (10.4 to 48 VDC)
3
1
+
L+ 4
2
4...20 mA
HART
10.4...48 V=
10 mm
Spare part
71108xxx
2- wire
4-20 mA
HART
[08]
open
-
L-
A
13
12
11
910
+
-
2 3 4
6
7
8
5
1
4...20 mA
³ W250
A0011340
å 6 Terminal assignment 4-wire; 4-20mA HART (10.4 to 48 VDC)
1Evaluation unit, e.g. PLC
2HART communication resistor (³250 W): Observe maximum load (® ä 27)
3 Connection for Commubox FXA195 or FieldXpert SFX100 (via VIATOR Bluetooth modem)
4Analog display device: Observe maximum load (® ä 27)
5Signal cable including screening (if required), observe cable specification (® ä 28)
6 Protective connection; do not disconnect!
7Protective earth, observe cable specification (® ä 28)
8 Terminals for 4...20mA HART (active)
9 Terminals for supply voltage
10 Supply voltage: Observe terminal voltage (® ä 27), observe cable specification (® ä 28)
11 Terminal for potential equalization
12 Cable entry for signal line
13 Cable entry for power supply
!CAUTION
To ensure electrical safety:
►Do not disconnect the protective connection (7).
►Disconnect the supply voltage before disconnecting the protective earth (8).
Connect protective earth to the internal ground terminal (8) before connecting the supply voltage. If
necessary, connect the potential matching line to the external ground terminal (12).
In order to ensure electromagnetic compatibility (EMC): Do not only ground the device via the
protective earth conductor of the supply cable. Instead, the functional grounding must also be
connected to the process connection (flange or threaded connection) or to the external ground
terminal.
An easily accessible power switch must be installed in the proximity of the device. The power switch
must be marked as a disconnector for the device (IEC/EN61010).

DRAFT
Micropilot FMR53, FMR54
Endress+Hauser V. 1, Rev. 7, 26-10-2012 21
4-wire: 4-20mA HART (90 to 253 VAC)
3
1
+
L4
2
4...20 mA
HART
90...253 V~
10 mm
Spare part
71108xxx
2- wire
4-20 mA
HART
[09]
open
-
N
A
13
12
11
910
+
-
2 3 4
6
7
8
5
1
4...20 mA
³ W250
A0018965
å 7 Terminal assignment 4-wire; 4-20mA HART (90 to 253 VAC)
1Evaluation unit, e.g. PLC
2HART communication resistor (³250 W): Observe maximum load (® ä 27)
3 Connection for Commubox FXA195 or FieldXpert SFX100 (via VIATOR Bluetooth modem)
4Analog display device: Observe maximum load (® ä 27)
5Signal cable including screening (if required), observe cable specification (® ä 28)
6 Protective connection; do not disconnect!
7Protective earth, observe cable specification (® ä 28)
8 Terminals for 4...20mA HART (active)
9 Terminals for supply voltage
10 Supply voltage: Observe terminal voltage (® ä 27), observe cable specification (® ä 28)
11 Terminal for potential equalization
12 Cable entry for signal line
13 Cable entry for power supply
!CAUTION
To ensure electrical safety:
►Do not disconnect the protective connection (7).
►Disconnect the supply voltage before disconnecting the protective earth (8).
Connect protective earth to the internal ground terminal (8) before connecting the supply voltage. If
necessary, connect the potential matching line to the external ground terminal (12).
In order to ensure electromagnetic compatibility (EMC): Do not only ground the device via the
protective earth conductor of the supply cable. Instead, the functional grounding must also be
connected to the process connection (flange or threaded connection) or to the external ground
terminal.
An easily accessible power switch must be installed in the proximity of the device. The power switch
must be marked as a disconnector for the device (IEC/EN61010).

DRAFT
Micropilot FMR53, FMR54
22 V. 1, Rev. 7, 26-10-2012 Endress+Hauser
PROFIBUS PA / FOUNDATION Fieldbus (in preparation)
1
3+
+2
4
FIELDBUS
2-channel overvoltage protection
-
-
71128619
[17]
4-20mA/
4-20mA/
B
1
1
+
+
2
2
FIELDBUS
Spare part
71023457
PA/FF
[06/07]
FIELDBUS
-
-
1
3
+
+2
4
PA/FF
10 mm
Spare part
71108xxx
2- wire level
4-20 mA PFS
FIELDBUS
[26/27]
open
-
-
A
4
1
1
2
3
6
5
3+
3+
4-
4-
A0011341
å 8 Terminal assignment PROFIBUS PA / FOUNDATION Fieldbus
AWithout integrated overvoltage protection
B With integrated overvoltage protection
1Cable screen: Observe cable specifications (® ä 28)
2 Terminals for switch output (open collector)
3 Terminals PROFIBUS PA / FOUNDATION Fieldbus
4 Terminal for potential equalization line
5 Cable entries
6 Overvoltage protection module

DRAFT
Micropilot FMR53, FMR54
Endress+Hauser V. 1, Rev. 7, 26-10-2012 23
Connection examples for the switch output
For HART devices, the switch output is available as an option. See product structure, feature 20:
"Power Supply, Output", option B: "2-wire; 4-20mA HART, switch output"
Devices with PROFIBUS PA and FOUNDATION Fieldbus always have a switch output.
3+
+
-
4-
A0015909
å 9 Connection of a relay
Suitable relays (examples):
• Solid-state relay: Phoenix Contact OV-24DC/480AC/5 with mounting
rail connector UMK-1 OM-R/AMS
• Electromechanical relay: Phoenix Contact PLC-RSC-12DC/21
3+ 2
1
+
4-
A0015910
å 10 Connection of a digital input
1 Pull-up resistor
2 Digital input

DRAFT
Micropilot FMR53, FMR54
24 V. 1, Rev. 7, 26-10-2012 Endress+Hauser
Device plug connectors For the versions with fieldbus plug connector (M12 or 7/8"), the signal line can be connected without
opening the housing.
Pin assignment of the M12 plug connector
21
3
4
+
–
nc
A0011175
Pin Meaning
1 Signal +
2 not connected
3 Signal -
4 Ground
Pin assignment of the 7/8" plug connector
2
1
4
3
A0011176
Pin Meaning
1 Signal -
2 Signal +
3 Screen
4 Not connected

DRAFT
Micropilot FMR53, FMR54
Endress+Hauser V. 1, Rev. 7, 26-10-2012 25
Supply voltage An external power supply is required.
Various supply units can be ordered from Endress+Hauser: see "Accessories" section (® ä 86)
2-wire, 4-20mA HART, passive
"Power Supply,
Output" 1)
"Approval" 2) Terminal voltage U at
the device
Maximum load R, depending on the supply voltage U0 at the
supply unit
A: 2-wire; 4-20mA HART • Non-Ex
• Ex nA
• Ex ic
• CSA GP
10.4 to 35 V 3)
R [ ]?
U0[V]
10
10.4 21.4
20 30 35
0
500
A0017140
Ex ia / IS 10.4 to 30 V 3)
• Ex d(ia) / XP
• Ex ic(ia)
• Ex nA(ia)
• Ex ta / DIP
12 to 35 V 4)
R [ ]W
U0[V]
10
12 23
20 30 35
0
500
A0019136
Ex ia + Ex d(ia) / IS + XP 12 to 30 V 4)
1) Feature 020 of the product structure
2) Feature 010 of the product structure
3) For ambient temperatures Ta £ -20 °C (-4 °F) a minimum voltage of 15 V is required for the sartup of the device at the MIN error current (3,6 mA). The
startup current can be parametrized. If the device is operated with a fixed current I ³ 5,5 mA (HART multidrop mode), a voltage of U ³ 10,4 V is sufficient
throughout the entire range of ambient temperatures.
4) For ambient temperatures Ta £ -20 °C (-4 °F) a minimum voltage of 16 V is required for the satrtup of the device at the MIN error current (3.6 mA).
"Power Supply, Output" 1) "Approval" 2) Terminal voltage U at
the device
Maximum load R, depending on the supply voltage U0 at the
supply unit
B: 2-wire; 4-20 mA HART,
switch output
• Non-Ex
• Ex nA
• Ex nA(ia)
• Ex ic
• Ex ic(ia)
• Ex d(ia) / XP
• Ex ta / DIP
• CSA GP
12 to 35 V 3)
R [ ]W
U0[V]
10
12 23
20 30 35
0
500
A0019136
• Ex ia / IS
• Ex ia + Ex d(ia) / IS + XP
12 to 30 V 3)
1) Feature 020 of the product structure
2) Feature 010 of the product structure
3) For ambient temperatures Ta £ -30 °C (-22 °F) a minimum voltage of 16 V is required for the satrtup of the device at the MIN error current (3.6 mA).

DRAFT
Micropilot FMR53, FMR54
26 V. 1, Rev. 7, 26-10-2012 Endress+Hauser
"Power Supply, Output" 1) "Approval" 2) Terminal voltage U at the
device
Maximum load R, depending on the supply voltage U0 at the
supply unit
C: 2-wire; 4-20mA HART, 4-20mA any 12 to 30 V 3)
R [ ]?
U0[V]
10
12 23
20 30
0
500
A0017055
1) Feature 020 of the product structure
2) Feature 010 of the product structure
3) For ambient temperatures Ta £ -30 °C (-22 °F) a minimum voltage of 16 V is required for the satrtup of the device at the MIN error current (3.6 mA).
Polarity reversal protection Yes
Admissible residual ripple
at f = 0 to 100 Hz
USS < 1 V
Admissible residual ripple
at f = 100 to 10000 Hz
USS < 10 mV

DRAFT
Micropilot FMR53, FMR54
Endress+Hauser V. 1, Rev. 7, 26-10-2012 27
4-wire, 4-20mA HART, active
"Power supply; Output" 1) Terminal voltage Maximum load Rmax
K: 4-wire 90-253VAC; 4-20mA HART 90 to 253 VAC (50 to 60 Hz),
overvoltage category II
500 Ω
L: 4-wire 10,4-48VDC; 4-20mA HART 10.4 to 48 VDC
1) Feature 020 of the product structure
PROFIBUS PA, FOUNDATION Fieldbus (in preparation)
"Power supply; Output" 1) "Approval" 2) Terminal voltage
E: 2-wire; FOUNDATION Fieldbus, switch output
G: 2-wire; PROFIBUS PA, switch output
• Non-Ex
• Ex nA
• Ex nA(ia)
• Ex ic
• Ex ic(ia)
• Ex d(ia) / XP
• Ex ta / DIP
• CSA GP
9 to 32 V 3)
• Ex ia / IS
• Ex ia + Ex d(ia) / IS + XP
9 to 30 V 3)
1) Feature 020 of the product structure
2) Feature 010 of the product structure
3) Input voltages up to 35 V will not spoil the device.
Polarity sensitive No
FISCO/FNICO compliant
according to IEC 60079-27
Yes
Power consumption "Power supply; Output" 1) Power consumption
A: 2-wire; 4-20mA HART < 0.9 W
B: 2-wire; 4-20mA HART, switch output < 0.9 W
C: 2-wire; 4-20mA HART, 4-20mA < 2 x 0.7 W
K: 4-wire 90-253VAC; 4-20mA HART 6 VA
L: 4-wire 10,4-48VDC; 4-20mA HART 1.3 W
1) Feature 020 of the product structure
Current consumption HART
Nominal current 3.6 to 22 mA, the start-up current for multidrop mode can be parametrized (is set to
3.6 mA on delivery)
Breakdown signal
(NAMUR NE43)
adjustable: 3.59 to 22.5 mA
PROFIBUS PA (in preparation)
Nominal current 14 mA
Error current FDE (Fault
Disconnection Electronic)
0 mA

DRAFT
Micropilot FMR53, FMR54
28 V. 1, Rev. 7, 26-10-2012 Endress+Hauser
FOUNDATION Fieldbus (in preparation)
Device basic current 14 mA
Error current FDE (Fault
Disconnection Electronic)
0 mA
FISCO (in preparation)
Ui17.5 V
Ii550 mA
Pi5.5 W
Ci5 nF
Li10 mH
Power supply failure • Configuration is retained in the HistoROM (EEPROM).
• Error messages (incl. value of operated hours counter) are stored.
Potential equalization No special measures for potential equalization are required.
If the device is designed for hazardous areas, observe the information in the documentation "Safety
Instructions" (XA, ZD).
Terminals •Without integrated overvoltage protection
Plug-in spring terminals for wire cross-sections 0.5 to 2.5 mm2 (20 to 14 AWG)
•With integrated overvoltage protection
Screw terminals for wire cross-sections 0.2 to 2.5 mm2 (24 to 14 AWG)
Cable entries • Cable gland (not for Ex d):
–Plastics M20x1.5 for cable Æ 5 to 10 mm (0.2 to 0.39 in): non-Ex, ATEX/IECEx/NEPSI Ex ia/ic
–Metal M20x1.5 for cable Æ 7 to 10 mm (0.28 to 0.39 in): dust-Ex, FM IS, CSA IS, CSA GP, Ex nA
• Thread for cable entry:
– ½" NPT
– G ½"
– M20 × 1.5
• Connector (only for non-Ex, Ex ic, Ex ia): M12 or 7/8"
Cable specification • Standard device cable is sufficient for the power supply of the device.
•Minimum cross-section: (® ä 28)
•For ambient temperature TU³60 °C (140 °F): use cable for temperature TU +20 K.
HART
• A normal device cable suffices if only the analog signal is used.
• A shielded cable is recommended if using the HART protocol. Observe grounding concept of the plant.
PROFIBUS (in preparation)
Use a twisted, screened two-wire cable, preferably cable type A.
For further information on the cable specifications, see Operating Instructions BA00034S "Guidelines
for planning and commissioning PROFIBUS DP/PA", PNO Guideline 2.092 "PROFIBUS PA User and
Installation Guideline" and IEC61158-2 (MBP).
FOUNDATION Fieldbus (in preparation)
Endress+Hauser recommends using twisted, shielded two-wire cables.
For further information on the cable specifications, see Operating Instructions BA00013S
"FOUNDATION Fieldbus Overview", FOUNDATION Fieldbus Guideline and IEC 61158-2 (MBP).

DRAFT
Micropilot FMR53, FMR54
Endress+Hauser V. 1, Rev. 7, 26-10-2012 29
Overvoltage protection If the measuring device is used for level measurement in flammable liquids which requires the use of
overvoltage protection according to DIN EN 60079-14, standard for test procedures 60060-1 (10 kA, pulse
8/20 ms), overvoltage protection has to be ensured by an integrated or external overvoltage protection
module.
Integrated overvoltage protection
An integrated overvoltage protection module is available for 2-wire HART as well as PROFIBUS PA and
FOUNDATION Fieldbus devices.
Product structure: Feature 610 "Accessory mounted", option NA "Overvoltage protection".
Technical data
Resistance per channel 2 * 0.5 W max
Threshold DC voltage 400 to 700 V
Threshold impulse voltage < 800 V
Capacitance at 1 MHz < 1.5 pF
Nominal arrest impulse voltage (8/20 ms) 10 kA
External overvoltage protection
HAW562 or HAW569 from Endress+Hauser are suited as external overvoltage protection.
For detailed information please refer to the following documents:
• HAW562: TI01012K
• HAW569: TI01013K

DRAFT
Micropilot FMR53, FMR54
30 V. 1, Rev. 7, 26-10-2012 Endress+Hauser
Performance characteristics
Reference operating
conditions
• Temperature = +24 °C (+75 °F) ±5 °C (±9 °F)
• Pressure = 960 mbar abs. (14 psia) ±100 mbar (±1.45 psi)
• Humidity = 60 % ±15 %
• Reflector: metal plate with a minimum diameter of 1 m (40 in)
• No major interference reflections inside the signal beam
Maximum measured error Typical data under reference operating conditions: DIN EN 61298-2, percentage values in relation to the
span.
Device Value Output
digital analog 1)
FMR53/FMR54 Sum of non-linearity,
nonrepeatability and
hysteresis
± 6 mm (0.24 in)
throughout the
complete measuring
range
± 0.02 %
Offset/Zero ± 4 mm (0.2 in) ± 0.03 %
1) Add error of the analogous value to the digital value.
Measured value resolution Dead band according to EN61298-2:
• digital: 1 mm
•analog: 1 mA
Reaction time The reaction time can be parametrized. The following step response times (as per DIN EN 61298-2) 1)are
valid if the damping is switched off:
Tank height Sampling rate Step response time
< 10 m (33 ft) ³ 3.6 s–1 < 0.8 s
< 20 m (66 ft) ³ 2.7 s–1 < 1 s
Influence of ambient
temperature
The measurements are carried out in accordance with EN 61298-3
• Digital (HART, PROFIBUS PA): average TK = 3 mm/10 K; maximum 10 mm
• Analog (current output):
– zero point (4 mA): average TK = 0.02 %/10 K
– span (20 mA): average TK = 0.05 %/10 K
Influence of gas layer High pressures reduce the propagation velocity of the measuring signals in the gas/vapor above the fluid.
This effect depends on the kind of gas/vapor and of its temperature. This results in a systematic measuring
error that gets bigger as the distance increases between the reference point of the measurement (flange) and
the product surface. The following table illustrates this measured error for a few typical gases/vapors (with
regard to distance; a positive value means that too large a distance is being measured):
Gas layer Temperature Pressure
°C °F 1 bar (14,5 psi) 10 bar (145 psi) 50 bar (725 psi) 100 bar (1450 psi) 160 bar (2320 psi)
Air/
Nitrogen
20 68 0.00 % 0.22 % 1.2 % 2.4 % 3.89 %
200 392 –0.01 % 0.13 % 0.74 % 1.5 % 2.42 %
400 752 –0.02 % 0.08 % 0.52 % 1.1 % 1.70 %
Hydrogen 20 68 –0.01 % 0.10 % 0.61 % 1.2 % 2.00 %
200 392 –0.02 % 0.05 % 0.37 % 0.76 % 1.23 %
400 752 –0.02 % 0.03 % 0.25 % 0.53 % 0.86 %
1) According to DIN EN 61298-2 the response time is the time which passes after a sudden change of the input signal until the output signal for the first time
assumes 90% of the steady-state value.

DRAFT
Micropilot FMR53, FMR54
Endress+Hauser V. 1, Rev. 7, 26-10-2012 31
Gas layer Temperature Pressure
°C °F 1 bar (14,5 psi) 10 bar (145 psi) 50 bar (725 psi) 100 bar (1450 psi) 160 bar (2320 psi)
Water
(saturated
steam)
100 212 0.02 % - - - -
180 356 - 2.1 % - - -
263 505,4 - - 8.6 % - -
310 590 - - - 22 % -
364 687 - - - - 41.8 %
When the pressure is known and constant, this measured error can, for example, be compensated by
means of a linearization.
Gas phase compensation with
external pressure sensor
(PROFIBUS PA, in
preparation)
PROFIBUS devices can receive the signal of an external pressure sensor through the bus and use it to
perform a pressure dependent time-of-flight correction. In the case of saturated steam in the temperature
range from 100 to 350 °C (212 to 662 °f), for example, the measuring error of the distance measurement
can be reduced by this method from up to 29 % (without compensation) to less than 3 % (with
compensation).

DRAFT
Micropilot FMR53, FMR54
32 V. 1, Rev. 7, 26-10-2012 Endress+Hauser
Installation
Installation conditions Mounting position
A
1 2 3
A0016882
• Recommended distance A from wall to outer
edge of nozzle: ~ 1/6 of tank diameter.
Nevertheless the device should not be installed
closer than 30 cm (11.8 in) to the tank wall.
• Not in the center (2), as interference can cause
signal loss.
• Not above the fill stream (3).
• It is recommended to us a weather protection
cover (1) in order to protect the device from
direct sun or rain.
Vessel installations
A0018944
Avoid any installations (limit switches, temperature
sensors, braces, vacuum rings, heating coils, baffles
etc.) inside the signal beam. Take into account the
beam angle (® ä 35):

DRAFT
Micropilot FMR53, FMR54
Endress+Hauser V. 1, Rev. 7, 26-10-2012 33
Reduction of interference echoes
A0016890
Metallic screens mounted at a slope spread the
radar signal and can, therefore, reduce
interference echoes.
Measurement in a plastic vessel
If the outer wall of the vessel is made of a non-conductive material (e.g. GRP), microwaves can also be
reflected off interfering installations outside the signal beam (e.g. metallic pipes (1), ladders (2), grates
(3), ...). Therefore, there should be no such interfering installations in the signal beam. Please contact
Endress+Hauser for further information.
2
3
1
A0017123

DRAFT
Micropilot FMR53, FMR54
34 V. 1, Rev. 7, 26-10-2012 Endress+Hauser
Optimization options
• Antenna size
The bigger the antenna, the smaller the beam angle a and the fewer interference echoes (® ä 35).
• Mapping
The measurement can be optimized by means of electronic suppression of interference echoes.
• Antenna alignment
Take into account the marker on the flange or threaded connection (® ä 37) (® ä 39) .
• Stilling well
A stilling well can be applied to avoid interferences (® ä 42).
• Metallic screens mounted at a slope (3)
They spread the radar signals and can, therefore, reduce interference echoes.

DRAFT
Micropilot FMR53, FMR54
Endress+Hauser V. 1, Rev. 7, 26-10-2012 35
Beam angle
a
D
W
a
D
_
=2
2. . tan
W
A0016891
å 11 Relationship between beam angle a, distance D and beamwidth diameter W
The beam angle is defined as the angle a where the energy density of the radar waves reaches half the value
of the maximum energy density (3-dB-width). Microwaves are also emitted outside the signal beam and can
be reflected off interfering installations.
Beam diameter W as a function of beam angle a and measuring distance D:
FMR53
Beam angle a23°
Measuring distance (D) Beamwidth diameter W
3 m (9.8 ft) 1.22 m (4 ft)
6 m (20 ft) 2.44 m (8 ft)
9 m (30 ft) 3.66 m (12 ft)
12 m (39 ft) 4.88 m (16 ft)
15 m (49 ft) 6.1 m (20 ft)
20 m (66 ft) 8.14 m (27 ft)
FMR54 - Horn antenna
Antenna size 150 mm (6 in) 200 mm (8 in) 250 mm (10 in)
Beam angle a23° 19° 15°
Measuring distance (D) Beamwidth diameter W
3 m (9.8 ft) 1.22 m (4 ft) 1 m (3.3 ft) 0.79 m (2.6 ft)
6 m (20 ft) 2.44 m (8 ft) 2.01 m (6.6 ft) 1.58 m (5.2 ft)
9 m (30 ft) 3.66 m (12 ft) 3.01 m (9.9 ft) 2.37 m (7.8 ft)
12 m (39 ft) 4.88 m (16 ft) 4.02 m (13 ft) 3.16 m (10 ft)
15 m (49 ft) 6.1 m (20 ft) 5.02 m (16 ft) 3.95 m (13 ft)
20 m (66 ft) 8.14 m (27 ft) 6.69 m (22 ft) 5.27 m (17 ft)

DRAFT
Micropilot FMR53, FMR54
36 V. 1, Rev. 7, 26-10-2012 Endress+Hauser
Measuring conditions • In case of boiling surfaces, bubbling or tendency for foaming use FMR53 or FMR54. Depending on its
consistence, foam can either absorb microwaves or reflect them off the foam surface. Measurement is
possible under certain conditions. For FMR50, FMR51 and FMR52, the additional option "Advanced
dynamics" is recommended in these cases (feature 540: "Application Package", option EM).
• In case of heavy steam development or condensate, the maximum measuring range of FMR50,
FMR51 and FMR52 may decrease depending on density, temperature and composition of the steam ®
use FMR53 or FMR54.
• For the measurement of absorbing gases such as ammonia NH3 or some fluorocarbons 2), please use
Levelflex or Micropilot FMR54 in a stilling well.
• The measuring range begins, where the beam hits the tank bottom. Particularly with dish bottoms or
conical outlets the level cannot be detected below this point.
• For stilling well applications, the zero should be positioned at the end of the tube, as the electromagnetic
waves do not propagate completely outside the tube. It must be taken into account that the accuracy may
be reduced in the area C. In order to guarantee the required accuracy in these cases, it is recommended to
position the zero-point at a distance C above the end of the tube (see figure).
•In case of media with a low dielectric constant (er = 1.5 to 4) 3) the tank bottom can be visible through the
medium at low levels (low height C). Reduced accuracy has to be expected in this range. If this is not
acceptable, we recommend positioning the zero point at a distance C (see figure) above the tank bottom
in these applications.
• In principle it is possible to measure up to the tip of the antenna with FMR51, FMR53 and FMR54.
However, due to considerations regarding corrosion and build-up, the end of the measuring range should
not be chosen any closer than A (see figure) to the tip of the antenna.
• When using FMR54 with planar antenna, especially for media with low dielectric constants, the end of
the measuring range should not be closer than 1 m (3.28 ft) to the flange.
• The smallest possible measuring range B depends on the antenna version (see figure).
• The tank diameter should be greater than D (see figure), the tank height at least H (see figure).
100%
0%
BA
C
H
øD
A0018872
Device A [mm (in)] B [m (ft)] C [mm (in)] D [m (ft)] H [m (ft)]
FMR53 50(1.97) > 0.5 (1.6) 150 to 300 (5.91 to 11.8) > 1 (3.3) > 1.5 (4.9)
FMR54
2) Affected compounds are e.g. R134a, R227, Dymel 152a.
3) Dielectric constants of important media commonly used in the industry are summarized in the document SD106F, which can be downloaded from the
Endress+Hauser web page (www.endress.com).

DRAFT
Micropilot FMR53, FMR54
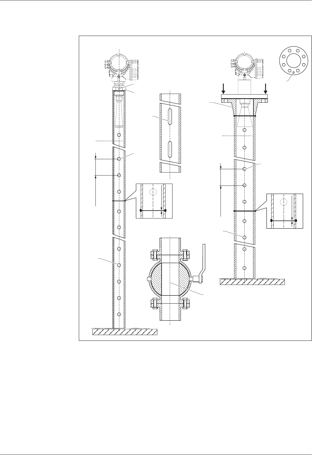
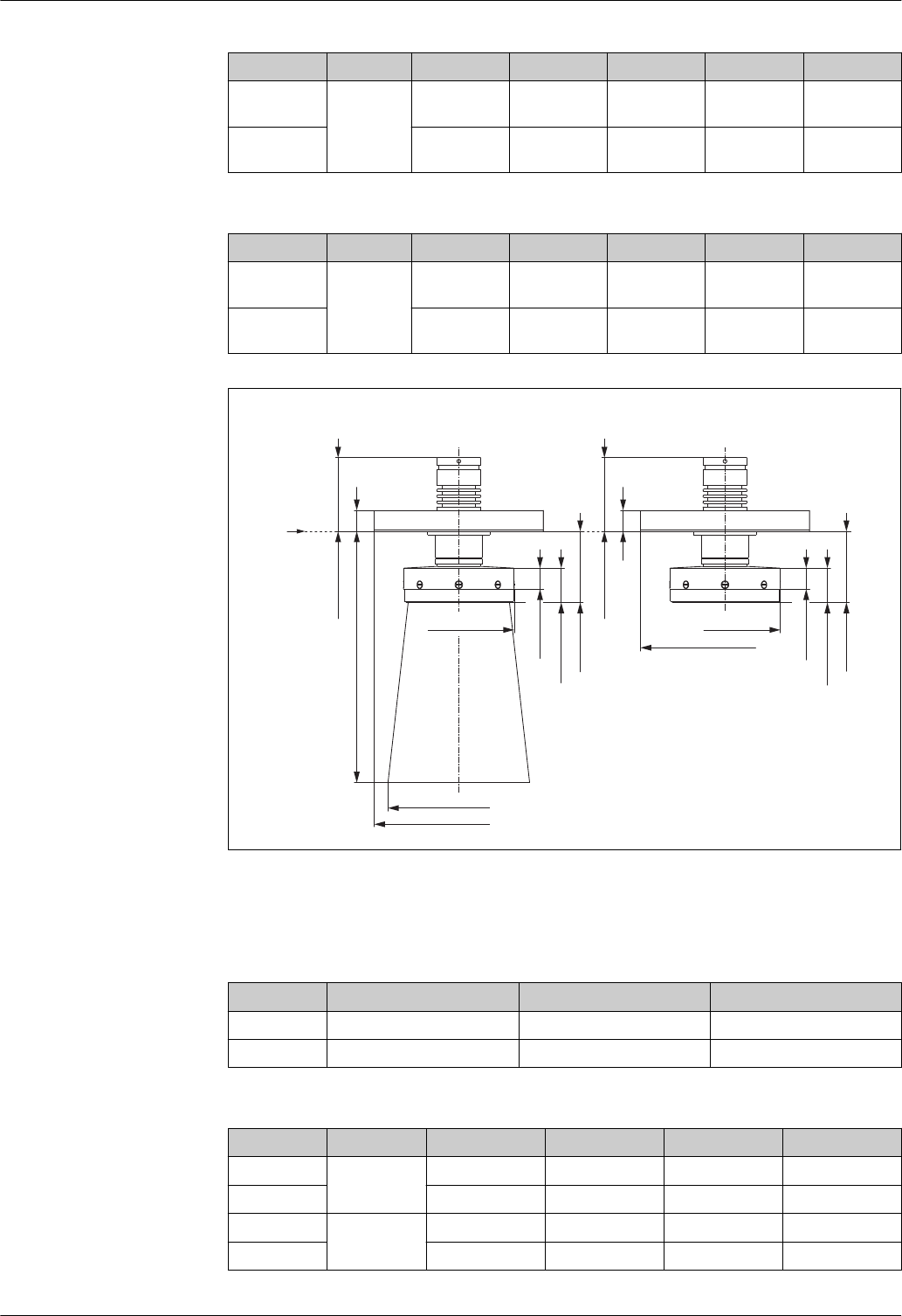
Endress+Hauser V. 1, Rev. 7, 26-10-2012 37
Installation in vessel (free
space)
Rod antenna (FMR53)
Alignment
• Align the antenna vertically to the product surface.
• A marking at the flange or the boss enables axial alignment of the antenna. This marking must be aligned
towards the tank wall.
90°
90°
90°
90°
90°
90°
90°
90°
90°
90°
AB
A0018974
Nozzle mounting
H
H
2
2
1
1
3
A0016821
å 12 Nozzle height an diameter for the rod antenna (FMR53)
1Inactive lengthof the antenna
2 Beam launched here
3 Spring washers
Antenna length 390 mm (15.4 in) 540 mm (21.3 in)
H< 100 mm (3.94 in) < 250 mm (9.84 in)

DRAFT
Micropilot FMR53, FMR54
38 V. 1, Rev. 7, 26-10-2012 Endress+Hauser
The inactive part (1) of the rod antenna must extend below the nozzle.
For flanges with PTFE cladding: Use spring washers (see figure) to compensate for the sagging of the
cladding.
It is recommended to tighten the the flange bolts periodically, depending on process temperature and
pressure.
Recommended torque: 60 to 100 Nm (44.25 to 73.75 lbf ft)
Threaded connection
• Tighten with the hexagonal nut only.
• Tool : Hexagonal wrench 55 mm
• Maximum permissible torque
– Thread PVDF: 35 Nm (26 lbf ft)
– Thread 316L: 60 Nm (44 lbf ft)

DRAFT
Micropilot FMR53, FMR54
Endress+Hauser V. 1, Rev. 7, 26-10-2012 39
Horn antenna (FMR54)
Alignment
• Align the antenna vertically to the product surface.
• A marking at the flange enables axial alignment of the antenna. This marking must be aligned towards the
tank wall.
90°
90°
90°
90°
90°
90°
90°
90°
90°
90°
AB
A0018974
Nozzle mounting
The horn antenna must extend below the nozzle; if necessary select the device version with antenna
extension 100 to 400 mm (4 to 16 in) 4).
H
1
øD
A0016822
å 13 Nozzle height and diameter for the horn antenna (FMR54)
1Mounting nozzle
Antenna size 150 mm (6 in) 200 mm (8 in) 250 mm (10 in)
D146 mm (5.75 in) 191 mm (7.52 in) 241 mm (9.49 in)
H< 205 mm (8.07 in) < 290 mm (11.4 in) < 380 mm (15 in)
4) See product structure: feature 610 "Accessory Mounted", options OM, ON, OR, OS.

DRAFT
Micropilot FMR53, FMR54
40 V. 1, Rev. 7, 26-10-2012 Endress+Hauser
Measurement from the outside through plastic walls
• If possible use the 250 mm (10 in) antenna.
• The distance between the lower edge of the antenna and the tank should be about 100 mm (4 in).
• If possible, avoid mounting location where condensation or build-up might occur.
• In case of outdoor mounting, the space between antenna and vessel has to be protected from the
elements.
• Do not mount any potential reflectors (e.g. pipes) outside the tank in the signal beam.
Suitable thickness of the tank ceiling
Penetrated material PE PTFE PP Plexiglas
DK / er2.3 2.1 2.3 3.1
Optimum thickness 16 mm (0.65 in) 17 mm (0.68 in) 16 mm (0.65 in) 14 mm (0.56 in)

DRAFT
Micropilot FMR53, FMR54
42 V. 1, Rev. 7, 26-10-2012 Endress+Hauser
Installation in stilling well
1
90°
A0016841
å 14 Installation in stilling well
1Marking for antenna alignment
• For horn antenna: Align the marking towards the slots of the stilling well.
• No alignment is required for planar antennas.
• Measurements can be performed through an open full bore ball valve without any problems.
• After mounting, the housing can be turned 350° in order to simplify access to the display and the terminal
compartment.

DRAFT
Micropilot FMR53, FMR54
Endress+Hauser V. 1, Rev. 7, 26-10-2012 43
Recommendations for the stilling well
• Metal (no enamel coating; plastic on request).
• Constant diameter.
• Diameter of stilling well not larger than antenna diameter.
• Weld seam as smooth as possible and on the same axis as the slots.
• Slots offset 180° (not 90°).
• Slot width or diameter of holes max. 1/10 of pipe diameter, de-burred. Length and number do not have
any influence on the measurement.
• Select horn antenna as big as possible. For intermedaite sizes (e.g. 180 mm (7 in)) select next larger
antenna and adapt it mechanically (for horn antennas)
• At any transition (i.e. when using a ball valve or mending pipe segments), no gap may be created
exceeding 1 mm (0.04 in).
•The stilling well must be smooth on the inside (average roughness Rz ≤ 6.3 mm (248 min)). Use extruded
or parallel welded stainless steel pipe. An extension of the pipe is possible with welded flanges or pipe
sleeves. Flange and pipe have to be properly aligned at the inside.
• Do not weld through the pipe wall. The inside of the stilling well must remain smooth. In case of
unintentional welding through the pipe, the weld seam and any unevenness on the inside need to be
carefully removed and smoothened. Otherwise, strong interference echoes will be generated and material
build-up will be promoted.
• Particularly on smaller nominal widths it needs to be observed that flanges are welded to the pipe such
that they allow for a correct orientation (marker aligned toward slots).
The performance of Micropilot FMR54 with planar antenna is not dependent on the alignment or
geometry of standard stilling wells. No special alignment is required. However, make sure that the
planar antenna is installed vertically relative to the stilling well axis.

DRAFT
Micropilot FMR53, FMR54
44 V. 1, Rev. 7, 26-10-2012 Endress+Hauser
Examples for the construction of stilling wells
100%
0%
100%
0%
AB
A A
A-A
150…500
(5.91...19.7)
150…500
(5.91...19.7)
mm (in)
2
1
4
4
C
D
5
6
6
7
1
3
1 (0.04)≤
1 (0.04)≤
A0019009
AMicropilot FMR50/FMR51: Horn 40mm(1½")
B Micropilot FMR50/FMR51/FMR52/FMR54: Horn 80mm(3")
C Stilling well with slots
D Full bore ball valve
1 Marking for axial alignment
2 Threaded connection
3 e.g. welding neck flange DIN2633
4Æ hole max. 1/10 Æ stilling well
5Æ hole max. 1/10 Æ stilling well; single sided or drilled through
6 Inside of holes deburred
7 Diameter of opening of ball valve must always be equivalent to pipe diameter; avoid edges and constrictions.

DRAFT
Micropilot FMR53, FMR54
Endress+Hauser V. 1, Rev. 7, 26-10-2012 45
Installation in bypass
1
2
2
90°
90°
A0019446
å 15 Installation in bypass
1Marking for antenna alignment
2 Tank connectors
• Alighn the marker perpendicular (90°) to the tank connectors.
• Measurements can be performed through an open full bore ball valve without any problems.
• After mounting, the housing can be turned 350° in order to simplify access to the display and the terminal
compartment.

DRAFT
Micropilot FMR53, FMR54
46 V. 1, Rev. 7, 26-10-2012 Endress+Hauser
Recommendations for the bypass pipe
• Metal (no plastic or enamel coating).
• Constant diameter.
• Select horn antenna as big as possible. For intermediate sizes (e.g. 95 mm (3.5 in)) select next larger
antenna and adapt it mechanically (for horn antennas).
• At any transition (i.e. when using a ball valve or mending pipe segments), no gap may be created
exceeding 1 mm (0.04 in).
•In the area of the tank connections (~ ±20 cm (7.87 in)) ia reduced accuracy of the measurement has to
be expected.

DRAFT
Micropilot FMR53, FMR54
Endress+Hauser V. 1, Rev. 7, 26-10-2012 47
Example for the construction of a bypass
100%
0%
A
A A
A-A
mm (in)
200
(7.87)
200
(7.87)
200
(7.87)
200
(7.87)
B
5
4
4
1
2
C
3
3
≤ 1 (0.04)
A0019010
AMicropilot FMR50/FMR51/FMR52/FMR54: Horn 80mm(3")
B Full bore ball valve
C Minimum distance to upper connection pipe: 400 mm (15,7 in)
1 Marking for axial alignment
2 e.g. welding neck flange DIN2633
3 Diameter of the connection pipes as small as possible
4 Do not weld through the pipe wall; the inside of the bypass must remain smooth.
5 Diameter of opening of ball valve must always be equivalent to pipe diameter. Avoid edges and constrictions.

DRAFT
Micropilot FMR53, FMR54
48 V. 1, Rev. 7, 26-10-2012 Endress+Hauser
Vessels with heat insulation
1
2
A0019142
If process temperatures are high, the device must be included in normal tank insulation to prevent the
electronics heating up as a result of heat radiation or convection. The insulation may not exceed beyond the
neck of the housing.

DRAFT
Micropilot FMR53, FMR54
Endress+Hauser V. 1, Rev. 7, 26-10-2012 49
Environment
Ambient temperature range Measuring device –40 to +80 °C (–40 to +176 °F); –50 °C (–58 °F) with manufacturer declaration on
request
Local display –20 to +70 °C (–4 to +158 °F), the readability of the display may be impaired at
temperatures outside the temperature range.
When operating the device in the open with strong sunlight:
• Mount the device in a shady position.
• Avoid direct sunlight, especially in warmer regions.
• Use a weather protection cover (see accessories).
Ambient temperature limits The following diagrams take into account only function requirements. There may be further restrictions
for certified device versions. Please refere to the separate Safety Instructions (® ä 87).
With a temperature (Tp) at the process connection the admissible ambient temperature (Ta) is reduced
according to the following diagram (temperature derating):
Information concerning the derating tables
Option Meaning
A 2-wire; 4-20 mA HART
B 2-wire; 4-20 mA HART, switch output
C 2-wire; 4-20 mA HART, 4-20 mA
E 2-wire; FF, switch output
G 2-wire; PA, switch output
K 4-wire 90-253VAC; 4-20 mA HART
L 4-wire 10, 4-48VDC; 4-20 mA HART
FMR53
Process connection: Thread PVDF
Housing: GT18 (316 L)
Temperature unit: °C (°F)
Tp
P5 P4
P3
P2
P1 Ta
A0019351
Power Supply; Output (Pos. 2 of
the product structure)
P1 P2 P3 P4 P5 P6
TpTaTpTaTpTaTpTaTpTaTpTa
A -40
(-40)
80
(176)
80
(176)
80
(176)
80
(176)
80
(176)
80
(176)
-40
(-40)
-40
(-40)
-40
(-40)
- -
B
Switch output not used
-40
(-40)
80
(176)
80
(176)
80
(176)
80
(176)
80
(176)
80
(176)
-40
(-40)
-40
(-40)
-40
(-40)
- -
B
Switch output used
-40
(-40)
77
(171)
77
(171)
77
(171)
80
(176)
76
(169)
80
(176)
-40
(-40)
-40
(-40)
-40
(-40)
- -
C
Channel 2 not used
-40
(-40)
80
(176)
80
(176)
80
(176)
80
(176)
80
(176)
80
(176)
-40
(-40)
-40
(-40)
-40
(-40)
- -
C
Channel 2 used
-40
(-40)
79
(174)
79
(174)
79
(174)
80
(176)
79
(174)
80
(176)
-40
(-40)
-40
(-40)
-40
(-40)
- -
E, G
Switch output not used
-40
(-40)
80
(176)
80
(176)
80
(176)
80
(176)
80
(176)
80
(176)
-40
(-40)
-40
(-40)
-40
(-40)
- -
E, G
Switch output used
-40
(-40)
78
(172)
78
(172)
78
(172)
80
(176)
78
(172)
80
(176)
-40
(-40)
-40
(-40)
-40
(-40)
- -
K, L -40
(-40)
77
(171)
77
(171)
77
(171)
80
(176)
77
(171)
80
(176)
-40
(-40)
-40
(-40)
-40
(-40)
- -

DRAFT
Micropilot FMR53, FMR54
50 V. 1, Rev. 7, 26-10-2012 Endress+Hauser
FMR53
Process connection: Thread PVDF
Housing: GT19 (Plastics PBT)
Temperature unit: °C (°F)
Tp
P5 P4
P3
P2
P1 Ta
A0019351
Power Supply; Output (Pos. 2 of
the product structure)
P1 P2 P3 P4 P5 P6
TpTaTpTaTpTaTpTaTpTaTpTa
A -40
(-40)
80
(176)
80
(176)
80
(176)
80
(176)
80
(176)
80
(176)
-40
(-40)
-40
(-40)
-40
(-40)
- -
B
Switch output not used
-40
(-40)
76
(169)
76
(169)
76
(169)
80
(176)
75
(167)
80
(176)
-40
(-40)
-40
(-40)
-40
(-40)
- -
B
Switch output used
-40
(-40)
60
(140)
60
(140)
60
(140)
80
(176)
58
(136)
80
(176)
-40
(-40)
-40
(-40)
-40
(-40)
- -
C
Channel 2 not used
-40
(-40)
80
(176)
80
(176)
80
(176)
80
(176)
80
(176)
80
(176)
-40
(-40)
-40
(-40)
-40
(-40)
- -
C
Channel 2 used
-40
(-40)
74
(165)
74
(165)
74
(165)
80
(176)
73
(163)
80
(176)
-40
(-40)
-40
(-40)
-40
(-40)
- -
E, G
Switch output not used
-40
(-40)
79
(174)
79
(174)
79
(174)
80
(176)
79
(173)
80
(176)
-40
(-40)
-40
(-40)
-40
(-40)
- -
E, G
Switch output used
-40
(-40)
63
(145)
63
(145)
63
(145)
80
(176)
60
(140)
80
(176)
-40
(-40)
-40
(-40)
-40
(-40)
- -
FMR53
Process connection: Thread PVDF
Housing: GT20 (Alu, coated)
Temperature unit: °C (°F)
Tp
P5 P4
P3
P2
P1 Ta
A0019351
Power Supply; Output (Pos. 2 of
the product structure)
P1 P2 P3 P4 P5 P6
TpTaTpTaTpTaTpTaTpTaTpTa
A -40
(-40)
80
(176)
80
(176)
80
(176)
80
(176)
80
(176)
80
(176)
-40
(-40)
-40
(-40)
-40
(-40)
- -
B
Switch output not used
-40
(-40)
80
(176)
80
(176)
80
(176)
80
(176)
80
(176)
80
(176)
-40
(-40)
-40
(-40)
-40
(-40)
- -
B
Switch output used
-40
(-40)
77
(171)
77
(171)
77
(171)
80
(176)
76
(169)
80
(176)
-40
(-40)
-40
(-40)
-40
(-40)
- -
C
Channel 2 not used
-40
(-40)
80
(176)
80
(176)
80
(176)
80
(176)
80
(176)
80
(176)
-40
(-40)
-40
(-40)
-40
(-40)
- -
C
Channel 2 used
-40
(-40)
79
(174)
79
(174)
79
(174)
80
(176)
79
(174)
80
(176)
-40
(-40)
-40
(-40)
-40
(-40)
- -
E, G
Switch output not used
-40
(-40)
80
(176)
80
(176)
80
(176)
80
(176)
80
(176)
80
(176)
-40
(-40)
-40
(-40)
-40
(-40)
- -
E, G
Switch output used
-40
(-40)
78
(172)
78
(172)
78
(172)
80
(176)
78
(172)
80
(176)
-40
(-40)
-40
(-40)
-40
(-40)
- -
K, L -40
(-40)
77
(171)
77
(171)
77
(171)
80
(176)
77
(171)
80
(176)
-40
(-40)
-40
(-40)
-40
(-40)
- -

DRAFT
Micropilot FMR53, FMR54
Endress+Hauser V. 1, Rev. 7, 26-10-2012 51
FMR53
Process connection:
• Thread 316L
• Flange
Housing: GT18 (316 L)
Temperature unit: °C (°F)
Tp
P5 P4
P3
P2
P1 Ta
A0019351
Power Supply; Output (Pos. 2 of
the product structure)
P1 P2 P3 P4 P5 P6
TpTaTpTaTpTaTpTaTpTaTpTa
A -40
(-40)
81
(178)
81
(178)
81
(178)
150
(302)
65
(149)
150
(302)
-40
(-40)
-40
(-40)
-40
(-40)
- -
B
Switch output not used
-40
(-40)
82
(180)
82
(180)
82
(180)
150
(302)
66
(151)
150
(302)
-40
(-40)
-40
(-40)
-40
(-40)
- -
B
Switch output used
-40
(-40)
77
(171)
77
(171)
77
(171)
150
(302)
59
(138)
150
(302)
-40
(-40)
-40
(-40)
-40
(-40)
- -
C
Channel 2 not used
-40
(-40)
82
(180)
82
(180)
82
(180)
150
(302)
66
(151)
150
(302)
-40
(-40)
-40
(-40)
-40
(-40)
- -
C
Channel 2 used
-40
(-40)
79
(174)
79
(174)
79
(174)
150
(302)
62
(144)
150
(302)
-40
(-40)
-40
(-40)
-40
(-40)
- -
E, G
Switch output not used
-40
(-40)
82
(180)
82
(180)
82
(180)
150
(302)
67
(153)
150
(302)
-40
(-40)
-40
(-40)
-40
(-40)
- -
E, G
Switch output used
-40
(-40)
78
(172)
78
(172)
78
(172)
150
(302)
61
(142)
150
(302)
-40
(-40)
-40
(-40)
-40
(-40)
- -
K, L -40
(-40)
77
(171)
77
(171)
77
(171)
150
(302)
60
(140)
150
(302)
-40
(-40)
-40
(-40)
-40
(-40)
- -
FMR53
Process connection:
• Thread 316L
• Flange
Housing: GT19 (Plastics PBT)
Temperature unit: °C (°F)
Tp
P5 P4
P3
P2
P1 Ta
A0019351
Power Supply; Output (Pos. 2 of
the product structure)
P1 P2 P3 P4 P5 P6
TpTaTpTaTpTaTpTaTpTaTpTa
A -40
(-40)
80
(176)
80
(176)
80
(176)
150
(302)
55
(131)
150
(302)
-40
(-40)
-40
(-40)
-40
(-40)
- -
B
Switch output not used
-40
(-40)
76
(169)
76
(169)
76
(169)
150
(302)
55
(131)
150
(302)
-40
(-40)
-40
(-40)
-40
(-40)
- -
B
Switch output used
-40
(-40)
60
(140)
60
(140)
60
(140)
150
(302)
37
(99)
150
(302)
-40
(-40)
-40
(-40)
-40
(-40)
- -
C
Channel 2 not used
-40
(-40)
82
(180)
82
(180)
82
(180)
150
(302)
55
(131)
150
(302)
-40
(-40)
-40
(-40)
-40
(-40)
- -
C
Channel 2 used
-40
(-40)
74
(165)
74
(165)
74
(165)
150
(302)
54
(129)
150
(302)
-40
(-40)
-40
(-40)
-40
(-40)
- -
E, G
Switch output not used
-40
(-40)
79
(174)
79
(174)
79
(174)
150
(302)
55
(131)
150
(302)
-40
(-40)
-40
(-40)
-40
(-40)
- -
E, G
Switch output used
-40
(-40)
63
(145)
63
(145)
63
(145)
150
(302)
40
(104)
150
(302)
-40
(-40)
-40
(-40)
-40
(-40)
- -

DRAFT
Micropilot FMR53, FMR54
52 V. 1, Rev. 7, 26-10-2012 Endress+Hauser
FMR53
Process connection:
• Thread 316L
• Flange
Housing: GT20 (Alu, coated)
Temperature unit: °C (°F)
Tp
P5 P4
P3
P2
P1 Ta
A0019351
Power Supply; Output (Pos. 2 of
the product structure)
P1 P2 P3 P4 P5 P6
TpTaTpTaTpTaTpTaTpTaTpTa
A -40
(-40)
81
(178)
81
(178)
81
(178)
150
(302)
68
(154)
150
(302)
-40
(-40)
-40
(-40)
-40
(-40)
- -
B
Switch output not used
-40
(-40)
82
(180)
82
(180)
82
(180)
150
(302)
69
(156)
150
(302)
-40
(-40)
-40
(-40)
-40
(-40)
- -
B
Switch output used
-40
(-40)
77
(171)
77
(171)
77
(171)
150
(302)
63
(145)
150
(302)
-40
(-40)
-40
(-40)
-40
(-40)
- -
C
Channel 2 not used
-40
(-40)
82
(180)
82
(180)
82
(180)
150
(302)
69
(156)
150
(302)
-40
(-40)
-40
(-40)
-40
(-40)
- -
C
Channel 2 used
-40
(-40)
79
(174)
79
(174)
79
(174)
150
(302)
65
(149)
150
(302)
-40
(-40)
-40
(-40)
-40
(-40)
- -
E, G
Switch output not used
-40
(-40)
83
(181)
83
(181)
83
(181)
150
(302)
70
(158)
150
(302)
-40
(-40)
-40
(-40)
-40
(-40)
- -
E, G
Switch output used
-40
(-40)
78
(172)
78
(172)
78
(172)
150
(302)
64
(147)
150
(302)
-40
(-40)
-40
(-40)
-40
(-40)
- -
K, L -40
(-40)
77
(171)
77
(171)
77
(171)
150
(302)
64
(147)
150
(302)
-40
(-40)
-40
(-40)
-40
(-40)
- -
FMR54
Horn antenna
Seal:
• Viton
• EPDM
• Kalrez
Housing: GT18 (316 L)
Temperature unit: °C (°F)
Tp
P5 P4
P3
P2
P1 Ta
A0019351
Power Supply; Output (Pos. 2 of
the product structure)
P1 P2 P3 P4 P5 P6
TpTaTpTaTpTaTpTaTpTaTpTa
A -40
(-40)
81
(178)
81
(178)
81
(178)
200
(392)
52
(126)
200
(392)
-40
(-40)
-40
(-40)
-40
(-40)
- -
B
Switch output not used
-40
(-40)
82
(180)
82
(180)
82
(180)
200
(392)
52
(126)
200
(392)
-40
(-40)
-40
(-40)
-40
(-40)
- -
B
Switch output used
-40
(-40)
77
(171)
77
(171)
77
(171)
200
(392)
46
(115)
200
(392)
-40
(-40)
-40
(-40)
-40
(-40)
- -
C
Channel 2 not used
-40
(-40)
82
(180)
82
(180)
82
(180)
200
(392)
52
(126)
200
(392)
-40
(-40)
-40
(-40)
-40
(-40)
- -
C
Channel 2 used
-40
(-40)
79
(174)
79
(174)
79
(174)
200
(392)
49
(120)
200
(392)
-40
(-40)
-40
(-40)
-40
(-40)
- -
E, G
Switch output not used
-40
(-40)
83
(181)
83
(181)
83
(181)
200
(392)
52
(126)
200
(392)
-40
(-40)
-40
(-40)
-40
(-40)
- -
E, G
Switch output used
-40
(-40)
78
(172)
78
(172)
78
(172)
200
(392)
48
(118)
200
(392)
-40
(-40)
-40
(-40)
-40
(-40)
- -
K, L -40
(-40)
77
(171)
77
(171)
77
(171)
200
(392)
47
(117)
200
(392)
-40
(-40)
-40
(-40)
-40
(-40)
- -

DRAFT
Micropilot FMR53, FMR54
Endress+Hauser V. 1, Rev. 7, 26-10-2012 53
FMR54
Horn antenna
Seal:
• Viton
• EPDM
• Kalrez
Housing: GT19 (Plastics PBT)
Temperature unit: °C (°F)
Tp
P5 P4
P3
P2
P1 Ta
A0019351
Power Supply; Output (Pos. 2 of
the product structure)
P1 P2 P3 P4 P5 P6
TpTaTpTaTpTaTpTaTpTaTpTa
A -40
(-40)
80
(176)
80
(176)
80
(176)
200
(392)
29
(84)
200
(392)
-40
(-40)
-40
(-40)
-40
(-40)
- -
B
Switch output not used
-40
(-40)
76
(169)
76
(169)
76
(169)
200
(392)
29
(84)
200
(392)
-40
(-40)
-40
(-40)
-40
(-40)
- -
B
Switch output used
-40
(-40)
60
(140)
60
(140)
60
(140)
200
(392)
23
(73)
200
(392)
-40
(-40)
-40
(-40)
-40
(-40)
- -
C
Channel 2 not used
-40
(-40)
82
(180)
82
(180)
82
(180)
200
(392)
29
(84)
200
(392)
-40
(-40)
-40
(-40)
-40
(-40)
- -
C
Channel 2 used
-40
(-40)
74
(165)
74
(165)
74
(165)
200
(392)
29
(84)
200
(392)
-40
(-40)
-40
(-40)
-40
(-40)
- -
E, G
Switch output not used
-40
(-40)
79
(174)
79
(174)
79
(174)
200
(392)
29
(84)
200
(392)
-40
(-40)
-40
(-40)
-40
(-40)
- -
E, G
Switch output used
-40
(-40)
63
(145)
63
(145)
63
(145)
200
(392)
26
(79)
200
(392)
-40
(-40)
-40
(-40)
-40
(-40)
- -
FMR54
Horn antenna
Seal:
• Viton
• EPDM
• Kalrez
Housing: GT20 (Alu, coated)
Temperature unit: °C (°F)
Tp
P5 P4
P3
P2
P1 Ta
A0019351
Power Supply; Output (Pos. 2 of
the product structure)
P1 P2 P3 P4 P5 P6
TpTaTpTaTpTaTpTaTpTaTpTa
A -40
(-40)
81
(178)
81
(178)
81
(178)
200
(392)
57
(135)
200
(392)
-40
(-40)
-40
(-40)
-40
(-40)
- -
B
Switch output not used
-40
(-40)
82
(180)
82
(180)
82
(180)
200
(392)
58
(136)
200
(392)
-40
(-40)
-40
(-40)
-40
(-40)
- -
B
Switch output used
-40
(-40)
77
(171)
77
(171)
77
(171)
200
(392)
52
(126)
200
(392)
-40
(-40)
-40
(-40)
-40
(-40)
- -
C
Channel 2 not used
-40
(-40)
82
(180)
82
(180)
82
(180)
200
(392)
58
(136)
200
(392)
-40
(-40)
-40
(-40)
-40
(-40)
- -
C
Channel 2 used
-40
(-40)
79
(174)
79
(174)
79
(174)
200
(392)
54
(129)
200
(392)
-40
(-40)
-40
(-40)
-40
(-40)
- -
E, G
Switch output not used
-40
(-40)
83
(181)
83
(181)
83
(181)
200
(392)
58
(136)
200
(392)
-40
(-40)
-40
(-40)
-40
(-40)
- -
E, G
Switch output used
-40
(-40)
78
(172)
78
(172)
78
(172)
200
(392)
54
(129)
200
(392)
-40
(-40)
-40
(-40)
-40
(-40)
- -
K, L -40
(-40)
77
(171)
77
(171)
77
(171)
200
(392)
53
(127)
200
(392)
-40
(-40)
-40
(-40)
-40
(-40)
- -

DRAFT
Micropilot FMR53, FMR54
54 V. 1, Rev. 7, 26-10-2012 Endress+Hauser
FMR54
Horn antenna
Seal: Graphite –196 to 280 °C (–321 to 536 °F)
Housing: GT18 (316 L)
Temperature unit: °C (°F)
Tp
P6
P5 P4
P3
P2
P1 Ta
A0019344
Power Supply; Output (Pos. 2 of
the product structure)
P1 P2 P3 P4 P5 P6
TpTaTpTaTpTaTpTaTpTaTpTa
A -196
(-321)
81
(178)
81
(178)
81
(178)
280
(536)
46
(115)
280
(536)
-40
(-40)
-40
(-40)
-40
(-40)
-196
(-321)
-9
(16)
B
Switch output not used
-196
(-321)
82
(180)
82
(180)
82
(180)
280
(536)
46
(115)
280
(536)
-40
(-40)
-40
(-40)
-40
(-40)
-196
(-321)
-9
(16)
B
Switch output used
-196
(-321)
77
(171)
77
(171)
77
(171)
280
(536)
42
(108)
280
(536)
-40
(-40)
-40
(-40)
-40
(-40)
-196
(-321)
-9
(16)
C
Channel 2 not used
-196
(-321)
82
(180)
82
(180)
82
(180)
280
(536)
46
(115)
280
(536)
-40
(-40)
-40
(-40)
-40
(-40)
-196
(-321)
-9
(16)
C
Channel 2 used
-196
(-321)
79
(174)
79
(174)
79
(174)
280
(536)
44
(111)
280
(536)
-40
(-40)
-40
(-40)
-40
(-40)
-196
(-321)
-9
(16)
E, G
Switch output not used
-196
(-321)
83
(181)
83
(181)
83
(181)
280
(536)
46
(115)
280
(536)
-40
(-40)
-40
(-40)
-40
(-40)
-196
(-321)
-9
(16)
E, G
Switch output used
-196
(-321)
78
(172)
78
(172)
78
(172)
280
(536)
44
(111)
280
(536)
-40
(-40)
-40
(-40)
-40
(-40)
-196
(-321)
-9
(16)
K, L -196
(-321)
77
(171)
77
(171)
77
(171)
280
(536)
43
(109)
280
(536)
-40
(-40)
-40
(-40)
-40
(-40)
-196
(-321)
-9
(16)
FMR54
Horn antenna
Seal: Graphite –196 to 280 °C (–321 to 536 °F)
Housing: GT19 (Plastics PBT)
Temperature unit: °C (°F)
Tp
P6
P5 P4
P3
P2
P1 Ta
A0019344
Power Supply; Output (Pos. 2 of
the product structure)
P1 P2 P3 P4 P5 P6
TpTaTpTaTpTaTpTaTpTaTpTa
A -196
(-321)
80
(176)
80
(176)
80
(176)
280
(536)
13
(55)
280
(536)
-40
(-40)
-40
(-40)
-40
(-40)
-196
(-321)
18
(64)
B
Switch output not used
-196
(-321)
76
(169)
76
(169)
76
(169)
280
(536)
13
(55)
280
(536)
-40
(-40)
-40
(-40)
-40
(-40)
-196
(-321)
18
(64)
B
Switch output used
-196
(-321)
60
(140)
60
(140)
60
(140)
280
(536)
13
(55)
280
(536)
-40
(-40)
-40
(-40)
-40
(-40)
-196
(-321)
18
(64)
C
Channel 2 not used
-196
(-321)
82
(180)
82
(180)
82
(180)
280
(536)
13
(55)
280
(536)
-40
(-40)
-40
(-40)
-40
(-40)
-196
(-321)
18
(64)
C
Channel 2 used
-196
(-321)
74
(165)
74
(165)
74
(165)
280
(536)
13
(55)
280
(536)
-40
(-40)
-40
(-40)
-40
(-40)
-196
(-321)
18
(64)
E, G
Switch output not used
-196
(-321)
79
(174)
79
(174)
79
(174)
280
(536)
13
(55)
280
(536)
-40
(-40)
-40
(-40)
-40
(-40)
-196
(-321)
18
(64)
E, G
Switch output used
-196
(-321)
63
(145)
63
(145)
63
(145)
280
(536)
13
(55)
280
(536)
-40
(-40)
-40
(-40)
-40
(-40)
-196
(-321)
18
(64)

DRAFT
Micropilot FMR53, FMR54
Endress+Hauser V. 1, Rev. 7, 26-10-2012 55
FMR54
Horn antenna
Seal: Graphite –196 to 280 °C (–321 to 536 °F)
Housing: GT20 (Alu, coated)
Temperature unit: °C (°F)
Tp
P6
P5 P4
P3
P2
P1 Ta
A0019344
Power Supply; Output (Pos. 2 of
the product structure)
P1 P2 P3 P4 P5 P6
TpTaTpTaTpTaTpTaTpTaTpTa
A -196
(-321)
81
(178)
81
(178)
81
(178)
280
(536)
54
(129)
280
(536)
-40
(-40)
-40
(-40)
-40
(-40)
-196
(-321)
-15
(+5)
B
Switch output not used
-196
(-321)
82
(180)
82
(180)
82
(180)
280
(536)
54
(129)
280
(536)
-40
(-40)
-40
(-40)
-40
(-40)
-196
(-321)
-15
(+5)
B
Switch output used
-196
(-321)
77
(171)
77
(171)
77
(171)
280
(536)
49
(120)
280
(536)
-40
(-40)
-40
(-40)
-40
(-40)
-196
(-321)
-15
(+5)
C
Channel 2 not used
-196
(-321)
82
(180)
82
(180)
82
(180)
280
(536)
54
(129)
280
(536)
-40
(-40)
-40
(-40)
-40
(-40)
-196
(-321)
-15
(+5)
C
Channel 2 used
-196
(-321)
79
(174)
79
(174)
79
(174)
280
(536)
51
(124)
280
(536)
-40
(-40)
-40
(-40)
-40
(-40)
-196
(-321)
-15
(+5)
E, G
Switch output not used
-196
(-321)
83
(181)
83
(181)
83
(181)
280
(536)
54
(129)
280
(536)
-40
(-40)
-40
(-40)
-40
(-40)
-196
(-321)
-15
(+5)
E, G
Switch output used
-196
(-321)
78
(172)
78
(172)
78
(172)
280
(536)
50
(122)
280
(536)
-40
(-40)
-40
(-40)
-40
(-40)
-196
(-321)
-15
(+5)
K, L -196
(-321)
77
(171)
77
(171)
77
(171)
280
(536)
50
(122)
280
(536)
-40
(-40)
-40
(-40)
-40
(-40)
-196
(-321)
-15
(+5)
FMR54
Horn antenna
Seal: Graphite –196 to 400 °C (–321 to 752 °F)
Housing: GT18 (316 L)
Temperature unit: °C (°F)
Tp
P6
P5 P4
P3
P2
P1 Ta
A0019344
Power Supply; Output (Pos. 2 of
the product structure)
P1 P2 P3 P4 P5 P6
TpTaTpTaTpTaTpTaTpTaTpTa
A -196
(-321)
81
(178)
81
(178)
81
(178)
400
(752)
31
(88)
400
(752)
-40
(-40)
-40
(-40)
-40
(-40)
-196
(-321)
-13
(+9)
B
Switch output not used
-196
(-321)
82
(180)
82
(180)
82
(180)
400
(752)
31
(88)
400
(752)
-40
(-40)
-40
(-40)
-40
(-40)
-196
(-321)
-13
(+9)
B
Switch output used
-196
(-321)
77
(171)
77
(171)
77
(171)
400
(752)
29
(84)
400
(752)
-40
(-40)
-40
(-40)
-40
(-40)
-196
(-321)
-13
(+9)
C
Channel 2 not used
-196
(-321)
82
(180)
82
(180)
82
(180)
400
(752)
31
(88)
400
(752)
-40
(-40)
-40
(-40)
-40
(-40)
-196
(-321)
-13
(+9)
C
Channel 2 used
-196
(-321)
79
(174)
79
(174)
79
(174)
400
(752)
31
(88)
400
(752)
-40
(-40)
-40
(-40)
-40
(-40)
-196
(-321)
-13
(+9)
E, G
Switch output not used
-196
(-321)
83
(181)
83
(181)
83
(181)
400
(752)
31
(88)
400
(752)
-40
(-40)
-40
(-40)
-40
(-40)
-196
(-321)
-13
(+9)
E, G
Switch output used
-196
(-321)
78
(172)
78
(172)
78
(172)
400
(752)
31
(88)
400
(752)
-40
(-40)
-40
(-40)
-40
(-40)
-196
(-321)
-13
(+9)
K, L -196
(-321)
77
(171)
77
(171)
77
(171)
400
(752)
30
(86)
400
(752)
-40
(-40)
-40
(-40)
-40
(-40)
-196
(-321)
-13
(+9)

DRAFT
Micropilot FMR53, FMR54
56 V. 1, Rev. 7, 26-10-2012 Endress+Hauser
FMR54
Horn antenna
Seal: Graphite –196 to 400 °C (–321 to 752 °F)
Housing: GT19 (Plastics PBT)
Temperature unit: °C (°F)
Tp
P6
P5 P4
P3
P2
P1 Ta
A0019344
Power Supply; Output (Pos. 2 of
the product structure)
P1 P2 P3 P4 P5 P6
TpTaTpTaTpTaTpTaTpTaTpTa
A -196
(-321)
80
(176)
80
(176)
80
(176)
400
(752)
-19
(-2)
400
(752)
-40
(-40)
-40
(-40)
-40
(-40)
-196
(-321)
11
(52)
B
Switch output not used
-196
(-321)
76
(169)
76
(169)
76
(169)
400
(752)
-19
(-2)
400
(752)
-40
(-40)
-40
(-40)
-40
(-40)
-196
(-321)
11
(52)
B
Switch output used
-196
(-321)
60
(140)
60
(140)
60
(140)
400
(752)
-19
(-2)
400
(752)
-40
(-40)
-40
(-40)
-40
(-40)
-196
(-321)
11
(52)
C
Channel 2 not used
-196
(-321)
82
(180)
82
(180)
82
(180)
400
(752)
-19
(-2)
400
(752)
-40
(-40)
-40
(-40)
-40
(-40)
-196
(-321)
11
(52)
C
Channel 2 used
-196
(-321)
74
(165)
74
(165)
74
(165)
400
(752)
-19
(-2)
400
(752)
-40
(-40)
-40
(-40)
-40
(-40)
-196
(-321)
11
(52)
E, G
Switch output not used
-196
(-321)
79
(174)
79
(174)
79
(174)
400
(752)
-19
(-2)
400
(752)
-40
(-40)
-40
(-40)
-40
(-40)
-196
(-321)
11
(52)
E, G
Switch output used
-196
(-321)
63
(145)
63
(145)
63
(145)
400
(752)
-19
(-2)
400
(752)
-40
(-40)
-40
(-40)
-40
(-40)
-196
(-321)
11
(52)
FMR54
Horn antenna
Seal: Graphite –196 to 400 °C (–321 to 752 °F)
Housing: GT20 (Alu, coated)
Temperature unit: °C (°F)
Tp
P6
P5 P4
P3
P2
P1 Ta
A0019344
Power Supply; Output (Pos. 2 of
the product structure)
P1 P2 P3 P4 P5 P6
TpTaTpTaTpTaTpTaTpTaTpTa
A -196
(-321)
81
(178)
81
(178)
81
(178)
400
(752)
42
(108)
400
(752)
-40
(-40)
-40
(-40)
-40
(-40)
-196
(-321)
-19
(-2)
B
Switch output not used
-196
(-321)
82
(180)
82
(180)
82
(180)
400
(752)
42
(108)
400
(752)
-40
(-40)
-40
(-40)
-40
(-40)
-196
(-321)
-19
(-2)
B
Switch output used
-196
(-321)
77
(171)
77
(171)
77
(171)
400
(752)
39
(102)
400
(752)
-40
(-40)
-40
(-40)
-40
(-40)
-196
(-321)
-19
(-2)
C
Channel 2 not used
-196
(-321)
82
(180)
82
(180)
82
(180)
400
(752)
42
(108)
400
(752)
-40
(-40)
-40
(-40)
-40
(-40)
-196
(-321)
-19
(-2)
C
Channel 2 used
-196
(-321)
79
(174)
79
(174)
79
(174)
400
(752)
41
(106)
400
(752)
-40
(-40)
-40
(-40)
-40
(-40)
-196
(-321)
-19
(-2)
E, G
Switch output not used
-196
(-321)
83
(181)
83
(181)
83
(181)
400
(752)
42
(108)
400
(752)
-40
(-40)
-40
(-40)
-40
(-40)
-196
(-321)
-19
(-2)
E, G
Switch output used
-196
(-321)
78
(172)
78
(172)
78
(172)
400
(752)
40
(104)
400
(752)
-40
(-40)
-40
(-40)
-40
(-40)
-196
(-321)
-19
(-2)
K, L -196
(-321)
77
(171)
77
(171)
77
(171)
400
(752)
40
(104)
400
(752)
-40
(-40)
-40
(-40)
-40
(-40)
-196
(-321)
-19
(-2)

DRAFT
Micropilot FMR53, FMR54
Endress+Hauser V. 1, Rev. 7, 26-10-2012 57
FMR54
Planar antenna
Housing: GT18 (316 L)
Temperature unit: °C (°F)
Tp
P5 P4
P3
P2
P1 Ta
A0019351
Power Supply; Output (Pos. 2 of
the product structure)
P1 P2 P3 P4 P5 P6
TpTaTpTaTpTaTpTaTpTaTpTa
A -40
(-40)
81
(178)
81
(178)
81
(178)
150
(302)
69
(156)
150
(302)
-40
(-40)
-40
(-40)
-40
(-40)
- -
B
Switch output not used
-40
(-40)
82
(180)
82
(180)
82
(180)
150
(302)
69
(156)
150
(302)
-40
(-40)
-40
(-40)
-40
(-40)
- -
B
Switch output used
-40
(-40)
77
(171)
77
(171)
77
(171)
150
(302)
63
(145)
150
(302)
-40
(-40)
-40
(-40)
-40
(-40)
- -
C
Channel 2 not used
-40
(-40)
82
(180)
82
(180)
82
(180)
150
(302)
70
(158)
150
(302)
-40
(-40)
-40
(-40)
-40
(-40)
- -
C
Channel 2 used
-40
(-40)
79
(174)
79
(174)
79
(174)
150
(302)
66
(151)
150
(302)
-40
(-40)
-40
(-40)
-40
(-40)
- -
E, G
Switch output not used
-40
(-40)
83
(181)
83
(181)
83
(181)
150
(302)
71
(160)
150
(302)
-40
(-40)
-40
(-40)
-40
(-40)
- -
E, G
Switch output used
-40
(-40)
78
(172)
78
(172)
78
(172)
150
(302)
65
(149)
150
(302)
-40
(-40)
-40
(-40)
-40
(-40)
- -
K, L -40
(-40)
77
(171)
77
(171)
77
(171)
150
(302)
64
(147)
150
(302)
-40
(-40)
-40
(-40)
-40
(-40)
- -
FMR54
Planar antenna
Housing: GT19 (Plastics PBT)
Temperature unit: °C (°F)
Tp
P5 P4
P3
P2
P1 Ta
A0019351
Power Supply; Output (Pos. 2 of
the product structure)
P1 P2 P3 P4 P5 P6
TpTaTpTaTpTaTpTaTpTaTpTa
A -40
(-40)
80
(176)
80
(176)
80
(176)
150
(302)
60
(140)
150
(302)
-40
(-40)
-40
(-40)
-40
(-40)
- -
B
Switch output not used
-40
(-40)
76
(169)
76
(169)
76
(169)
150
(302)
60
(140)
150
(302)
-40
(-40)
-40
(-40)
-40
(-40)
- -
B
Switch output used
-40
(-40)
60
(140)
60
(140)
60
(140)
150
(302)
41
(106)
150
(302)
-40
(-40)
-40
(-40)
-40
(-40)
- -
C
Channel 2 not used
-40
(-40)
82
(180)
82
(180)
82
(180)
150
(302)
60
(140)
150
(302)
-40
(-40)
-40
(-40)
-40
(-40)
- -
C
Channel 2 used
-40
(-40)
74
(165)
74
(165)
74
(165)
150
(302)
57
(135)
150
(302)
-40
(-40)
-40
(-40)
-40
(-40)
- -
E, G
Switch output not used
-40
(-40)
79
(174)
79
(174)
79
(174)
150
(302)
60
(140)
150
(302)
-40
(-40)
-40
(-40)
-40
(-40)
- -
E, G
Switch output used
-40
(-40)
63
(145)
63
(145)
63
(145)
150
(302)
44
(111)
150
(302)
-40
(-40)
-40
(-40)
-40
(-40)
- -

DRAFT
Micropilot FMR53, FMR54
58 V. 1, Rev. 7, 26-10-2012 Endress+Hauser
FMR54
Planar antenna
Housing: GT20 (Alu, coated)
Temperature unit: °C (°F)
Tp
P5 P4
P3
P2
P1 Ta
A0019351
Power Supply; Output (Pos. 2 of
the product structure)
P1 P2 P3 P4 P5 P6
TpTaTpTaTpTaTpTaTpTaTpTa
A -40
(-40)
81
(178)
81
(178)
81
(178)
150
(302)
71
(160)
150
(302)
-40
(-40)
-40
(-40)
-40
(-40)
- -
B
Switch output not used
-40
(-40)
82
(180)
82
(180)
82
(180)
150
(302)
72
(162)
150
(302)
-40
(-40)
-40
(-40)
-40
(-40)
- -
B
Switch output used
-40
(-40)
77
(171)
77
(171)
77
(171)
150
(302)
66
(151)
150
(302)
-40
(-40)
-40
(-40)
-40
(-40)
- -
C
Channel 2 not used
-40
(-40)
82
(180)
82
(180)
82
(180)
150
(302)
72
(162)
150
(302)
-40
(-40)
-40
(-40)
-40
(-40)
- -
C
Channel 2 used
-40
(-40)
79
(174)
79
(174)
79
(174)
150
(302)
68
(154)
150
(302)
-40
(-40)
-40
(-40)
-40
(-40)
- -
E, G
Switch output not used
-40
(-40)
83
(181)
83
(181)
83
(181)
150
(302)
73
(163)
150
(302)
-40
(-40)
-40
(-40)
-40
(-40)
- -
E, G
Switch output used
-40
(-40)
78
(172)
78
(172)
78
(172)
150
(302)
68
(154)
150
(302)
-40
(-40)
-40
(-40)
-40
(-40)
- -
K, L -40
(-40)
77
(171)
77
(171)
77
(171)
150
(302)
67
(153)
150
(302)
-40
(-40)
-40
(-40)
-40
(-40)
- -
Storage temperature –40 to +80 °C (–40 to +176 °F)
Climate class DIN EN 60068-2-38 (test Z/AD)
Geometric height according
to IEC61010-1 Ed.3
Up to 2 000 m (6 600 ft) above MSL.
Can be expanded to 3 000 m (9 800 ft) above MSL by application of an overvoltage protection, e.g. HAW562
or HAW569.
Degree of protection • With closed housing tested according to:
– IP68, NEMA6P (24 h at 1.83 m under water surface)
– For plastic housing with transparent cover (display module): IP68 (24 h at 1.00 m under water
surface) 5)
– IP66, NEMA4X
• With open housing: IP20, NEMA1 (also ingress protection of the display)
Degree of protection IP68 NEMA6P applies for M12 PROFIBUS PA plugs only when the PROFIBUS
cable is plugged in and is also rated IP68 NEMA6P.
Vibration resistance DIN EN 60068-2-64 / IEC 68-2-64: 20 to 2 000 Hz, 1 (m/s2)2/Hz
Cleaning the antenna The antenna can get contaminated, depending on the application. The emission and reception of microwaves
can thus eventually be hindered. The degree of contamination leading to an error depends on the medium
and the reflectivity, mainly determined by the dielectric constant er.
If the medium tends to cause contamination and deposits, cleaning on a regular basis is recommended. Care
has to be taken not to damage the antenna in the process of a mechanical or hose-down cleaning. The
material compatibility has to be considered if cleaning agents are used! The maximum permitted
temperature at the flange should not be exceeded.
5) This restriction is valid if the following options of the product structure have been selected at the same time: 030("Display, Operation") = C("SD02") or
E("SD03"); 040("Housing") = A("GT19").

DRAFT
Micropilot FMR53, FMR54
Endress+Hauser V. 1, Rev. 7, 26-10-2012 59
Electromagnetic compatibility
(EMC)
Electromagnetic compatibility to all relevant requirements of the EN 61326- series and NAMUR
recommendation EMC (NE21). For details see declaration of conformity. 6).
If only the analogue signal is used, unshielded interconnection lines are sufficient for the installation. In case
of using the digital signal (HART/ PA/ FF) use shielded interconnection lines. Use a shielded cable when
working with a digital communications signal.
Max. fluctuations during EMC- tests: < 0.5 % of the span. As an exception to this, the maximum
fluctuations may amount to 2 % of the span for devices with plastic housing and see-through lid (integrated
display and operating module SD02 or SD03) if strong electromagnetic interferences in the frequenency
range of 1 to 2 GHz are present.
6) Can be downloaded from www.endress.com.

DRAFT
Micropilot FMR53, FMR54
60 V. 1, Rev. 7, 26-10-2012 Endress+Hauser
Process
Process temperature range Sensor Process Connection Process temperature range
FMR53 Thread PVDF –40 to +80 °C (–40 to +176 °F)
Other process connections –40 to +150 °C (–40 to +302 °F)
Sensor Antenna Seal Process temperature range
FMR54 Horn Viton –40 to +200 °C (–40 to +392 °F) 1)
EPDM –40 to +150 °C (–40 to +302 °F)
Kalrez –20 to +200 °C (–4 to +392 °F) 1)
Graphite XT –196 to +280 °C (–321 to 536 °F)
Graphite HT –196 to +400 °C (–321 to 752 °F)
Planar Viton –20 to +150 °C (–4 to +302 °F)
1) bei letifähigen Medien maximal 150 °C (302°F)
Process pressure range Sensor Process connection Process pressure range
FMR53 Thread PVDF prel = –1 to 3 bar (–14.5 to 43.5 psi)
pabs < 4 bar (58 psi)
• Thread 316L
• Flange 316L
prel = –1 to 40 bar (–14.5 to 580 psi)
Sensor Antenna Seal Process pressure range
FMR54 Horn • Viton
• EPDM
• Kalrez
prel = –1 to 64 bar (–14.5 to 928 psi)
Graphite (XT) prel = –1 to 100 bar (–14.5 to 1 450 psi)
Graphite (HT) prel = –1 to 160 bar (–14.5 to 2 320 psi)
Planar Viton depending on the process temperature; see diagram
prel
[bar] ([psi])
[°C] ([°F])
Tp
-20 (-4)
80 (+176)
100 (+212)
120 (+248)
150 (+302)
5 (75)
10 (150)
20 (300)
25 (375)
A0019031
å 16 Admissible process pressure prel as a function of the process temperature TP for FMR54 with planar antenna

DRAFT
Micropilot FMR53, FMR54
Endress+Hauser V. 1, Rev. 7, 26-10-2012 61
This range may be reduced by the selected process connection. The pressure rating (PN) specified on
the flanges refers to a reference temperature of 20 °C, for ASME flanges 100 °F. Pay attention to
pressure-temperature dependencies.
Please refer to the following standards for the pressure values permitted for higher temperatures:
• EN 1092-1: 2001 Tab. 18
With regard to their temperature stability properties, the materials 1.4435 and 1.4404 are grouped
under 13E0 in EN 1092-1 Tab. 18. The chemical composition of the two materials can be identical.
• ASME B 16.5a - 1998 Tab. 2-2.2 F316
• ASME B 16.5a - 1998 Tab. 2.3.8 N10276
• JIS B 2220
Dielectric constant •For liquids
–er ³ 1.9 in free-field applications
–er ³ 1.4 in stilling well
•For bulk solids
er ³ 1.6

DRAFT
Micropilot FMR53, FMR54
62 V. 1, Rev. 7, 26-10-2012 Endress+Hauser
Mechanical construction
Dimensions Dimensions of the electronics housing
144 (5.67)
141.9 (5.59)
115.25 (4.54)
ø108.5 (ø4.27)
78 (3.07) 90 (3.54)
98 (3.86)*
ø103.5 (ø4.07)
R100
A0011666
å 17 Housing GT18 (316L); Dimensions in mm (in)
*This measure is valid for devices with integrated overvoltage protection.
163(6.42)
134.5(5.3)
ø106(ø4.17)
78(3.07) 90(3.54)
99.5(3.92)*
ø106(ø4.17)
R100
A0011346
å 18 Housing GT19 (Plastics PBT); Dimensions in mm (in)
*This measure is valid for devices with integrated overvoltage protection.
144(5.67)
141.5(5.57)
117.1(4.61)
ø111(ø4.37)-1°
ø108.5(ø4.27)
78(3.07) 90(3.54)
97(3.82)*
ø103.5(ø4.07)
R100
A0011665
å 19 Housing GT20 (Alu coated); Dimensions in mm (in)
*This measure is valid for devices with integrated overvoltage protection.

DRAFT
Micropilot FMR53, FMR54
Endress+Hauser V. 1, Rev. 7, 26-10-2012 63
Dimensions FMR53 (process connection/antenna)
R
AB C D
99.5 (3.92)
101.5 (4)
99.5 (3.92)
mm (in)
99.5 (3.92)
b
b
46 (1.81)
46 (1.81)
26 (1.02)
26 (1.02)
øD
ø33
(1.3)
ø33
(1.3)
ø33
(1.3)
ø33
(1.3)
øD
390 (15.4)/540 (21.3)
390 (15.4)/540 (21.3)
390 (15.4)/540 (21.3)
390 (15.4)/540 (21.3)
L2
L2
L2
L2
A0017749
AFlange version
B Flange version, coated
C Threaded connection, stainless steel
D Threaded connection, PVDF
L2 Inactive length
Flanges according to EN1092-1 (suitable for DIN2527)
Dimension Version DN50 DN80 DN100 DN150
bPN16 20 mm (0.79 in) 20 mm (0.79 in) 20 mm (0.79 in) 22 mm (0.87 in)
⌀D⌀165 mm (6.5 in) ⌀200 mm (7.87 in) ⌀220 mm (8.66 in) ⌀285 mm (11.2 in)
bPN40 - 24 mm (0.94 in) - -
⌀D - ⌀200 mm (7.87 in) - -
Flanges according to ANSI B16.5
Dimension Version 2" 3" 4" 6"
b150 lbs 19.1 mm (0.75 in) 23.9 mm (0.94 in) 23.9 mm (0.94 in) 25.4 mm (1 in)
⌀D⌀152.4 mm (6 in) ⌀190.5 mm (7.5 in) ⌀228.6 mm (9 in) ⌀279.4 mm (11 in)
b300 lbs - 28.4 mm (1.12 in) 31.8 mm (1.25 in) -
⌀D - ⌀209.5 mm (8.25 in) ⌀254 mm (10 in) -
Flanges according to JIS B2220
Dimension Version DN50 DN80 DN100 DN150
b10 K 16 mm (0.63 in) 18 mm (0.71 in) 18 mm (0.71 in) 22 mm (0.87 in)
⌀D⌀155 mm (6.1 in) ⌀185 mm (7.28 in) ⌀210 mm (8.27 in) ⌀280 mm (11 in)

DRAFT
Micropilot FMR53, FMR54
64 V. 1, Rev. 7, 26-10-2012 Endress+Hauser
Dimensions FMR54 (process connection/antenna)
R
AB C D
ød
ød
ød ød
øD
øD
øD øD
77(3.03)
77(3.03)
229.6(9.04)
295.6(11.6)
L
LL1
L
L
b
b
b
b
mm (in)
78
(3.07)
A0017809
ACompact version with flange
B Compact version with flange and antenna extension
C Version XT 280°C (536°F) with flange (and with an optional antenna extension)
D Version HT 400° (752°F) with flange (and with an optional antenna extension)
L1 Antenna extension; standard lengths: 100 mm (3.94 in), 200 mm (7.87 in), 300 mm (11.8 in) or 400 mm
(15.7 in)
R Reference point of the measurement
Horn antenna
Dimension 80 mm (3") 100 mm (4") 150 mm (6") 200 mm (8") 250 mm (10")
L 68 mm (2.68 in) 105 mm (4.13 in) 185 mm (7.28 in) 268 mm (10.6 in) 360 mm (14.2 in)
⌀d⌀75 mm (2.95 in) ⌀95 mm (3.74 in) ⌀145 mm (5.71 in) ⌀190 mm (7.48 in) ⌀240 mm (9.45 in)
Flanges according to EN1092-1 (suitable for DIN2527)
Dimension Version DN80 DN100 DN150 DN200 DN250
b
PN16
20 mm
(0.79 in)
20 mm
(0.79 in)
22 mm
(0.87 in)
24 mm
(0.94 in)
26 mm
(1.02 in)
⌀D⌀200 mm
(7.87 in)
⌀220 mm
(8.66 in)
⌀285 mm
(11.2 in)
⌀340 mm
(13.4 in)
⌀405 mm
(15.9 in)
b
PN40
24 mm
(0.94 in)
24 mm
(0.94 in)
- - -
⌀D⌀200 mm
(7.87 in)
⌀235 mm
(9.25 in)
- - -
Flanges according to ANSI B16.5
Dimension Version 3" 4" 6" 8" 10"
b
150 lbs
23.9 mm
(0.94 in)
23.9 mm
(0.94 in)
25.4 mm (1 in) 28.4 mm
(1.12 in)
30.2 mm
(1.19 in)
⌀D⌀190.5 mm
(7.5 in)
⌀228.6 mm
(9 in)
⌀279.4 mm
(11 in)
⌀342.9 mm
(13.5 in)
⌀406.4 mm
(16 in)

DRAFT
Micropilot FMR53, FMR54
Endress+Hauser V. 1, Rev. 7, 26-10-2012 65
Dimension Version 3" 4" 6" 8" 10"
b
300 lbs
28.4 mm
(1.12 in)
31.8 mm
(1.25 in)
- - -
⌀D⌀209.5 mm
(8.25 in)
⌀254 mm
(10 in)
- - -
Flanges according to JIS B 2220
Dimension Version DN80 DN100 DN150 DN200 DN250
b
10 K
18 mm
(0.71 in)
18 mm
(0.71 in)
22 mm
(0.87 in)
22 mm
(0.87 in)
24 mm
(0.94 in)
⌀D⌀185 mm
(7.28 in)
⌀210 mm
(8.27 in)
⌀280 mm
(11 in)
⌀330 mm
(13 in)
⌀400 mm
(15.7 in)
R
A B
øe
øE
øE
94.5 (3.72)
94.5 (3.72)
L1
97(3.82)
97(3.82)
b
b
ø150(5.91)
46.5(1.83)
46.5(1.83)
30(1.18)
30(1.18)
mm (in)
ø150(5.91)
A0017810
APlanar (drip-off) version with flange and horn
B Planar (drip-off) version with flange, without horn
R Reference point of the measurement
Antenna version
Dimension DN200 (8") DN250 (10") DN300 (12")
e 192 mm (7.56 in) 242 mm (9.53 in) 292 mm (11.5 in)
L1 341 mm (13.4 in) 494 mm (19.4 in) 521 mm (20.5 in)
Flanges according to EN1092-1 (suitable for DIN2527)
Dimension Version DN150 DN200 DN250 DN300
bPN16 22 mm (0.87 in) 24 mm (0.94 in) 26 mm (1.02 in) 28 mm (1.1 in)
⌀E⌀285 mm (11.2 in) ⌀340 mm (13.4 in) ⌀405 mm (15.9 in) ⌀460 mm (18.1 in)
bPN25 28 mm (1.1 in) 30 mm (1.18 in) - -
⌀E⌀300 mm (11.8 in) ⌀360 mm (14.2 in) - -

DRAFT
Micropilot FMR53, FMR54
66 V. 1, Rev. 7, 26-10-2012 Endress+Hauser
Flanges according to ANSI B16.5
Dimension Version 6" 8" 10" 12"
b150 lbs 25.4 mm (1 in) 28.4 mm (1.12 in) 30.2 mm (1.19 in) 31.8 mm (1.25 in)
⌀E⌀279.4 mm (11 in) ⌀342.9 mm (13.5 in) ⌀406.4 mm (16 in) ⌀482.6 mm (19 in)
b300 lbs 36.6 mm (1.44 in) 41.1 mm (1.62 in) - -
⌀E⌀317.5 mm (12.5 in) ⌀381 mm (15 in) - -
Flanges according to JIS B2220
Dimension Version DN150 DN200 DN250
b10 K 22 mm (0.87 in) 22 mm (0.87 in) 24 mm (0.94 in)
⌀E⌀280 mm (11 in) ⌀330 mm (13 in) ⌀400 mm (15.7 in)
b20 K 28 mm (1.1 in) 30 mm (1.18 in) -
⌀E⌀305 mm (12 in) ⌀350 mm (13.8 in) -
Weight Housing
Part Weight
Housing GT18 - stainless steel approx. 4.5 kg (9.9 lbs)
Housing GT19 - plastic approx. 1.2 kg (2.7 lbs)
Housing GT20 - aluminium approx. 1.9 kg (4.2 lbs)
Antenna and process connection
Device Weight of antenna and process connection
FMR53 max. 3.0 kg (6.6 lbs) + weight of flange 1)
FMR54 max. 9 kg (19.9 lbs) + weight of flange 1)
1) For the weight of the flange refer to Technical Information TI00426F.

DRAFT
Micropilot FMR53, FMR54
Endress+Hauser V. 1, Rev. 7, 26-10-2012 67
Materials Housing
2.1 1 2.2 5
678
934
A0013788
Housing GT18 - stainless steel, corrosion-resistant
No. Part: material No. Part: material
1 Housing: 316L (CF-3M, 1.4404) 5 Cable entry
• Sealing: EMPB
• Cable gland: 316L (1.4404)
• Adapter: 316L (1.4435)
2.1 Cover of the electronics compartment
• Cover: 316L (CF-3M, 1.4404)
• Window: glass
• Cover seal: EPDM
2.2 Cover of the terminal compartment
• Cover: 316L (CF-3M, 1.4404)
• Cover seal: EPDM
6 Dummy plug: 316L (1.4404)
7 Pressure relief stopper: 316L (1.4404)
3 Cover lock
• Screw: A4
• Clamp: 316L (1.4404)
8 Ground terminal
• Screw: A4
• Spring washer: A4
• Clamp: 316L (1.4404)
• Holder: 316L (1.4404)
4 Turn housing
• Screw: A4-70
• Clamp: 316L (1.4404)
9 Identification
• Nameplate: 304 (1.4301)
• Groove pin: A2
Housing GT19 - plastic
No. Part: material No. Part: material
1 Housing: PBT 5 Cable entry
• Sealing: EMPB
• Cable gland: polyamide (PA), nickel-plated brass (CuZn)
• Adapter: 316L (1.4435)
2.1 Cover of the electronics compartment
• Cover:
– PA (see-through cover)
– PBT (non-transparent cover)
• Cover seal: EPDM
2.2 Cover of the terminal compartment
• Cover: PBT
• Cover seal: EPDM
6 Dummy plug: nickel-plated brass (CuZn)
7 Pressure relief stopper: nickel-plated brass (CuZn)
4 Turn housing
• Screw: A4-70
• Clamp: 316L (1.4404)
8 Ground terminal
• Screw: A2
• Spring washer: A4
• Clamp: 304 (1.4301)
• Holder: 304 (1.4301)
9 Identification
Nameplate: sticker

DRAFT
Micropilot FMR53, FMR54
68 V. 1, Rev. 7, 26-10-2012 Endress+Hauser
Housing GT20 - die-cast aluminum, powder-coated, seawater-resistant
No. Part: material No. Part: material
1 Housing: AlSi10Mg(<0.1% Cu)
Coating: polyester
5 Cable entry
• Sealing: EMPB
• Cable gland: polyamide (PA), nickel-plated brass (CuZn)
• Adapter: 316L (1.4435)
2.1 Cover of the electronics compartment
• Cover: AlSi10Mg(<0.1% Cu)
• Window: glass
• Cover seal: EPDM
2.2 Cover of the terminal compartment
• Cover: AlSi10Mg(<0.1% Cu)
• Cover seal: EPDM
6 Dummy plug: nickel-plated brass (CuZn)
7 Pressure relief stopper: nickel-plated brass (CuZn)
3 Cover lock
• Screw: A4
• Clamp: 316L (1.4404)
8 Ground terminal
• Screw: A2
• Spring washer: A2
• Clamp: 304 (1.4301)
• Holder: 304 (1.4301)
4 Turn housing
• Screw: A4-70
• Clamp: 316L (1.4404)
9 Identification
Nameplate: sticker
Antenna and process connection
FMR53
AB
1 1
2
4
5
3
6 6
A0018954
AFlange version
B Version with threaded connection
Pos. Part Material
1 Housing adapter 316L (1.4404)
2 Connection 316L (1.4404)
3 Connection 316L (1.4404)
PVDF
4 Flange 316L (1.4404/1.4435)

DRAFT
Micropilot FMR53, FMR54
Endress+Hauser V. 1, Rev. 7, 26-10-2012 69
Pos. Part Material
5 Cladding PTFE
6 Rod antenna PTFE
FMR54 mit Hornantenne
ABC
4
2 2
1
1
3
2
6
5
1
4
4
A0018956
ACompact version
B Version with antenna extension
C High temperature version
Pos. Part Material
1 Sensor adapter 316L (1.4404)
2 Flange 316L (1.4404/1.4435)
3 Antenna extension 316L (1.4435)
Screw A4
Spring-lock washer A4
4 Horn antenna 316L (1.4404)
Screw A4
Spring-lock wahser (compact) A4
Nordlock washer (XT and HT version) A4
Process separation cone Compact version:
PTFE
Hight temperature version:
Al2O3
Seal Compact version:
FKM, FFKM, EPDM
High temperature version:
Graphite
5 Process separation 316L (1.4404)
6 Temperature reduction 316L (1.4404)

DRAFT
Micropilot FMR53, FMR54
70 V. 1, Rev. 7, 26-10-2012 Endress+Hauser
FMR54 with planar or drip-off antenna
A B
1 1
2 2
3
A0018957
AVersion with horn
B Version without horn
Pos. Part Material
1 Flange 316L (1.4404/1.4435)
Adapter 316L (1.4404)
2 Housing adpater 316L (1.4404)
Sensor adapter 316L (1.4404)
Housing and retaining ring 316L (1.4404)
Screw A2
Planar antenna PTFE
Sealing ring FKM
3 Horn antenna 316L (1.4404)

DRAFT
Micropilot FMR53, FMR54
Endress+Hauser V. 1, Rev. 7, 26-10-2012 71
Weather protection cover
1
2.1
3.1
3.2
4
5.1
5.2
4
6
2.2
2.2
2.1
A0015473
Weather protection cover
Nr. Part: material Nr. Part: material
1 Protection cover: 304 (1.4301) 4 Bracket: 304 (1.4301)
2.1 Washer: A2 5.1 Cheese head screw: A2-70
2.2 Cheese head screw: A4-70 5.2 Nut: A2
3.1 Washer: A2 6 Ground terminal
• Screw: A4
• Spring washer: A4
• Clamp: 316L (1.4404)
• Holder: 316L (1.4404)
3.2 Tightening screw: 304 (1.4301)

DRAFT
Micropilot FMR53, FMR54
72 V. 1, Rev. 7, 26-10-2012 Endress+Hauser
Operability
Operating concept Operator-oriented menu structure for user-specific tasks
• Commissioning
• Operation
• Diagnostics
• Expert level
Quick and safe commissioning
• Guided menus ("Make-it-run" wizards) for applications
• Menu guidance with brief explanations of the individual parameter functions
Reliable operation
• Local operation in different languages (see product structure, feature "Additional Operation Language")
• Standardized operation at the device and in the operating tools
• Data storage device (HistoROM) for process and measuring device data with event logbook available at all
times - even if electronics modules are replaced
Efficient diagnostics increase measurement reliability
• Remedy information is integrated in plain text
• Diverse simulation options and line recorder functions
Local operation Order code for "Display; Operation", option C "SD02" Order code for "Display; Operation", option E "SD03"
(in preparation)
+E
–
1
A0015544
1
+E
–
A0015546
1 Operation with pushbuttons 1 Operation with touch control
Display elements
• 4-line display
• In the case of order code for "Display; Operation", option E: white background lighting; switches to red in
event of device errors (in preparation)
• Format for displaying measured variables and status variables can be individually configured
•Permitted ambient temperature for the display: –20 to +60 °C (–4 to +140 °F)
The readability of the display may be impaired at temperatures outside the temperature range.
Operating elements
• In the case of order code "Display; Operation", Option C: local operation with 3 push buttons ( , ,
E
)
• In the case of order code for "Display; Operation", option E: external operation via touch control; 3 optical
keys: , ,
E
(in preparation)
• Operating elements also accessible in various hazardous areas
Additional functionality
• Data backup function
The device configuration can be saved in the display module.
• Data comparison function
The device configuration saved in the display module can be compared to the current device
configuration.
• Data transfer function
The transmitter configuration can be transmitted to another device using the display module.

DRAFT
Micropilot FMR53, FMR54
Endress+Hauser V. 1, Rev. 7, 26-10-2012 73
Operation with remote
display and operating module
FHX50
3
2
1
A0013137
å 20 FHX50 operating options
1 Housing of the remote display and operating module FHX50
2 Display and operating module SD02, push buttons; cover must be removed
3 Display and operating module SD03, optical keys; can be operated through the glass of the cover (in preparation)
Remote operation Via HART protocol
1
2
4 5 7
9
6 8
3
A0013764
å 21 Options for remote operation via HART protocol
1PLC (programmable logic controller)
2 Transmitter power supply unit, e.g. RN221N (with communication resistor)
3 Connection for Commubox FXA191, FXA195 and Field Communicator 375, 475
4 Field Communicator 375, 475
5 Computer with operating tool (e.g. FieldCare, AMS Device Manager, SIMATIC PDM)
6 Commubox FXA191 (RS232) or FXA195 (USB)
7 Field Xpert SFX100
8 VIATOR Bluetooth modem with connecting cable
9 Transmitter

DRAFT
Micropilot FMR53, FMR54
74 V. 1, Rev. 7, 26-10-2012 Endress+Hauser
Via PROFIBUS PA protocol (in preparation)
ENDRESS + HAUSER
T
PROFIBUSDP
PROFIBUSPA
1
23
5
4 4 4
A0015775
1Segment coupler
2 Computer with Profiboard/Proficard and operating tool (e.g. FieldCare)
3 PLC (Progrommable Logic Controller)
4 Transmitter
5 Additional functions (valves etc.)

DRAFT
Micropilot FMR53, FMR54
Endress+Hauser V. 1, Rev. 7, 26-10-2012 75
Via FOUNDATION Fieldbus (in preparation)
FF-H1
FF-H1
BT
BT
PS
3
4
PS
BT
SB
BT
FF-HSE
IN
LD
ENDRESS + HAUSER
E
+–
%
1
1
2
2
A0017188
å 22 FOUNDATION Fieldbus system architecture with associated components
IN Industrial network
FF-
HSE
High Speed Ethernet
FF-
H1
FOUNDATION Fieldbus-H1
LD Linking Device FF-HSE/FF-H1
PS Bus Power Supply
SB Safety Barrier
BT Bus Terminator
1 FFblue Bluetooth modem
2 Field Xpert SFX100
3 FieldCare
4 NI-FF interface card

DRAFT
Micropilot FMR53, FMR54
76 V. 1, Rev. 7, 26-10-2012 Endress+Hauser
Via service interface (CDI)
+E
–
12
3
A0014019
1Service interface (CDI) of the measuring device (= Endress+Hauser Common Data Interface)
2 Commubox FXA291
3 Computer with "FieldCare" operating tool

DRAFT
Micropilot FMR53, FMR54
Endress+Hauser V. 1, Rev. 7, 26-10-2012 77
Integration in tank gauging
system
The Endress+Hauser Tank Side Monitor NRF590 provides integrated communications for sites with multiple
tanks, each with one or more sensors on the tank, such as radar, spot or average temperature, capacitive
probe for water detection and/or pressure sensors. Multiple protocols out of the Tank Side Monitor
guarantee connectivity to nearly any of the existing industry standard tank gauging protocols. Optional
connectivity of analog 4...20 mA sensors, digital I/O and analog output simplify full tank sensor integration.
Use of the proven concept of the intrinsically safe HART bus for all on-tank sensors yields extremely low
wiring costs, while at the same time providing maximum safety, reliability and data availability.
NXA820
16...253 VAC
1 2 3
4
6
7
8
5
A0017982
å 23 The complete measuring system consists of:
1Tankvision workstation
2 Commubox FXA195 (USB) - optional
3 Computer with operating tool (ControlCare) - optional
4 Level measuring device
5 Temperature measuring device
6 Tank Side Monitor NRF590
7 Pressure measuring device
8 Tankvision Tank Scanner NXA820

DRAFT
Micropilot FMR53, FMR54
78 V. 1, Rev. 7, 26-10-2012 Endress+Hauser
System integration via
Fieldgate
Vendor Managed Inventory
By using Fieldgates to interrogate tank or silo levels remotely, suppliers of raw materials can provide their
regular customers with information about the current supplies at any time and, for example, account for
them in their own production planning. For their part, the Fieldgates monitor the configured level limits and,
if required, automatically activate the next supply. The spectrum of options here ranges from a simple
purchasing requisition via e-mail through to fully automatic order administration by coupling XML data into
the planning systems on both sides.
Remote maintenance of measuring equipment
Fieldgates not only transfer the current measured values, they also alert the responsible standby personnel, if
required, via e-mail or SMS. In the event of an alarm or also when performing routine checks, service
technicians can diagnose and configure connected HART devices remotely. All that is required for this is the
corresponding HART operating tool (e.g. FieldCare, ...) for the connected device. Fieldgate passes on the
information transparently, so that all options for the respective operating software are available remotely.
Some on-site service operations can be avoided by using remote diagnosis and remote configuration and all
others can at least be better planned and prepared.
-
ENDRESS+HAUSER
RN 221N
ENDRESS+HAUSER
RN 221N
.
20...45VDC
FXN520
FXN520
1 1 2
A0011278
å 24 The complete measuring system consists of devices and:
1Fieldgate FXA520
2 Multidrop Connector FXN520
The number of instruments which can be connected in mutidrop mode can be calculated by the
"FieldNetCalc" program. A description of this program can be found in Technical Information TI 400F
(Multidrop Conncector FXN520). The program is available form your Endress+Hauser sales
organisation or in the internet at: www.de.endress.com/Download (text search = "Fieldnetcalc").

DRAFT
Micropilot FMR53, FMR54
Endress+Hauser V. 1, Rev. 7, 26-10-2012 79
Certificates and approvals
CE mark The measuring system meets the legal requirements of the applicable EC guidelines. These are listed in the
corresponding EC Declaration of Conformity together with the standards applied.
Endress+Hauser confirms successful testing of the device by affixing to it the CE mark.
C-Tick symbol The measuring system meets the EMC requirements of the "Australian Communications and Media
Authority (ACMA)".
Ex approval • ATEX
• IEC Ex
• CSA (in Vorbereitung)
• FM (in Vorbereitung)
• NEPSI (in Vorbereitung)
• TIIS (in Vorbereitung)
Additional safety instructions must be observed for applications in hazardous areas. They are contained in
the separate "Safety Instructions" (XA) document, which is included in the scope of delivery. Reference is
made to the XA on the nameplate of the device.
Details on the available certificats as well as the associated XAs can be found in the Associated
documentation chapter in the Safety instructions section: (® ä 87).
Dual seal according to
ANSI/ISA 12.27.01
The devices Micropilot FMR5x have been designed according to ANSI/ISA 12.27.01 as dual seal devices,
allowing the user to waive the use and save the cost of installing external secondary process seals in the
conduit as required by the process sealing sections of ANSI/NFPA 70 (NEC) and CSA 22.1 (CEC). These
instruments comply with the North-American installation practice and provide a very safe and cost-saving
installation for pressurized applications with hazardous fluids.
Further information can be found in the control drawings of the relevant devices.
Functional Safety Used for level monitoring (MIN, MAX, range) up to SIL 3 (homogeneous or inhomogeneous redundancy),
independently assessed by TÜV Rhineland as per IEC 61508. Other information see documentation
SD01087F: "Functional Safety Manual".
Sanitary compatibility FMR53 with antenna made of PTFE conforms to FDA 21 CFR 177.1550 and USP <88> Class VI.
AD2000 The pressure retaining material 316L (1.4435/1.4404) corresponds to AD2000 - W2/W10.
Pressure Equipment Directive The Micropilot is not subject to the scope of the Pressure Equipment Directive 97/23/EC, as it does not
have a pressure-bearing housing according to article 1, section 2.1.4 of the directive.
Marine certificate (in
preparation)
in preparation
Radio standard
EN302372-1/2
The devices Micropilot FMR50, FMR51, FMR52, FMR53, FMR54, FMR56 and FMR57 are conform with
the TLPR (Tanks Level Probing Radar) standard EN302372-1/2 and can always be used in closed tanks or
bins. For installation, points a to f in Annex B of EN302372-1 have to be taken into account.
FCC / Industry Canada This device complies with Part 15 of the FCC rules. Operation is subject to the following two conditions: (1)
This device may not cause harmful interference, and (2) this device must accept any interference received,
including interference that may cause undesired operation.
Canada CNR-Gen Section 7.1.3
This device complies with Industry Canada licence-exempt RSS standard(s). Operation is subject to the
following two conditions: (1) This device may not interference, and (2) this device must accept any
interference, including interference that may cause undesired operation of the device.
Le présent appareil est conforme aux CNR d'Industrie Canada applicables aux appareils radio exempts de
licence. L'exploitation est autorisée aux deux conditions suivantes : (1) l'appareil ne doit pas produire de
brouillage, et (2) l'utilisateur de l'appareil doit accepter tout brouillage radioélectrique subi, même si le
brouillage est susceptible d'en compromettre le fonctionnement.

DRAFT
Micropilot FMR53, FMR54
80 V. 1, Rev. 7, 26-10-2012 Endress+Hauser
[Any] changes or modifications not expressly approved by the party responsible for compliance could void the
user's authority to operate the equipment.
CRN approval in preparation
Track record FMR5x is the upgrade model of the corresponding FMR2xx series.
Other standards and
guidelines
• EN 60529
Degrees of protection by housing (IP code)
• EN 61010-1
Protection Measures for Electrical Equipment for Measurement, Control, Regulation and Laboratory
Procedures.
• IEC/EN 61326
"Emission in accordance with Class A requirements". Electromagnetic compatibility (EMC requirements)
• NAMUR NE 21
Electromagnetic compatibility (EMC) of industrial process and laboratory control equipment.
• NAMUR NE 43
Standardization of the signal level for the breakdown information of digital transmitters with analog output
signal.
• NAMUR NE 53
Software of field devices and signal-processing devices with digital electronics
• NAMUR NE 107
Status classification as per NE107
• NAMUR NE 131
Requirements for field devices for standard applications
• IEC61508
Functional safety of electrical/electronic/programmable electronic safety-related systems

DRAFT
Micropilot FMR53, FMR54
Endress+Hauser V. 1, Rev. 7, 26-10-2012 81
Ordering information
Ordering information Detailed ordering information is available from the following sources:
•In the Product Configurator on the Endress+Hauser website: www.endress.com ® Select country ®
Instruments ® Select device ® Product page function: Configure this product
• From your Endress+Hauser Sales Center: www.endress.com/worldwide
Product Configurator - the tool for individual product configuration
• Up-to-the-minute configuration data
• Depending on the device: Direct input of measuring point-specific information such as measuring
range or operating language
• Automatic verification of exclusion criteria
• Automatic creation of the order code and its breakdown in PDF or Excel output format
• Ability to order directly in the Endress+Hauser Online Shop
5-point linearity protocol (in
preparation)
The following notes must be taken into account if option F4 ("5 point linearity protocol") has been
selected in feature 550 ("Calibration").
The five points of the linearity protocol are evenly distributetd across the measuring range (0% to 100%). In
order to define the measuring range, Empty calibration (E) and Full calibration (F) have to be specified 7).
The following restrictions have to be taken into account when defining E and F:
R R
A
A
F
F
200 (7.87)
200 (7.87)
mm (in)
E
E
A0019161
Minimum distance between reference point (R) and
100% level
Minimum span Maximum value for "empty
calibration"
A ³ Length of antenna + 200 mm (8 in)
Minimum value: 400 mm (16 in)
F ³ 400 mm (16 in) E £ 20 m (66 ft)
The linearity is checked under reference conditions.
The selected values of Empty calibration and Full calibration are only used to record the linearity
protocol and are reset to their antenna specific default values thereafter. If values different from the
default are required, they must be ordered as a customized parametrization (® ä 82).
7) If E and F are not specified, antenna dependent default values will be used instead.

DRAFT
Micropilot FMR53, FMR54
82 V. 1, Rev. 7, 26-10-2012 Endress+Hauser
Customized parametrization If the option IJ "Customized parametrization HART", IK "Customized parametrization PA" or IL "Customized
parametrization FF" has been selected in feature 570 "Service", customer specific presettings can be selected
for the following parameters:
Parameter Communication Selection list / range of
values
Setup ® Distance unit • HART
• PA
• FF
• in
• mm
Setup ® Empty calibration • HART
• PA
• FF
0 to 70 m (0 to 230 ft)
Setup ® Full calibration • HART
• PA
• FF
0 to 70 m (0 to 230 ft)
Setup ® Adv. Setup ® Current output 1/2 ® Damping HART 0 to 999,9 s
Setup ® Adv. Setup ® Current output 1/2 ® Failure mode HART • Min
• Max
• Last valid value
Expert ® Comm. ® HART config. ® Burst mode HART • Off
• On

DRAFT
Micropilot FMR53, FMR54
Endress+Hauser V. 1, Rev. 7, 26-10-2012 83
Accessories
Device-specific accessories
Accessory Description
Weather protection cover
222 (8.74)
mm (in)
A0015466
55°
35°
b
164(6.46)
273.8(10.8)
155(6.1)
65°
255.1(10)
mm(in)
298.5(11.8)
a
A0015472
a37.8 mm (1.49 in)
b 54 mm (2.13 in)
The weather protection cover can be ordered together with the device (product structure, feature 620 "Accessory Enclosed",
option PB "Weather Protection Cover").
Alternatively, it can be separately ordered as an accessory; order code 71132889.

DRAFT
Micropilot FMR53, FMR54
84 V. 1, Rev. 7, 26-10-2012 Endress+Hauser
Accessory Description
Antenna extension FAR10
(for FMR54)
L1 mm (in)
ø40 (ø1.57)
ø62 (ø2.44)
ø44.5 (ø1.75)
ø78 (ø3.07)
1 2
A0018879
1Instrument connection
2 Horn connection
Material:
• 316L (1.4404)
• Alloy B2
• Alloy C4
Length L1:
• 100 mm (4 in)
• 200 mm (8 in)
• 300 mm (12 in)
• 400 mm (16 in)
Detailed ordering information is available from the following sources:
•In the Product Configurator on the Endress+Hauser website: www.endress.com ® Select country ® Instruments ® Select
device ® Product page function: Configure this product
• From your Endress+Hauser Sales Center: www.endress.com/worldwide

DRAFT
Micropilot FMR53, FMR54
Endress+Hauser V. 1, Rev. 7, 26-10-2012 85
Accessory Description
Remote display FHX50
A0019128
• Material:
– Plastics PBT
– 316L (in preparation)
• Suitable for the display modules:
– SD02 (push buttons)
– SD03 (touch control) (in preparation)
• Connection cable:
– Cable with M12 plug; supplied with the FHX50; up to 30 m (98 ft)
– Customer supplied standard cable; up to 60 m (196 ft)
• If the remote display is to be used, the Micropilot must be ordered in the version "Prepared for display FHX50" (feature
030, option L or M). For the FHX50, on the other hand, the option A: "Prepared for display FHX50" has to be selected in
feature 050: "Option Measurement Device".
• If a Micropilot has not been ordered in the version "Prepared for display FHX50", but is nevertheless to be equipped with
an FHX50, it is essential to select the option B: "Not prepared for display FHX50" in feature 050: "Option Measurement
Device" of the FHX50. In this case, a retrofit kit, needed to prepare the Micropilot for the remote display, is supplied
together with the FHX50.
For details refer to the document SD01007F.
Communication-specific
accessories
Accessory Description
Commubox FXA195 HART For intrinsically safe HART communication with FieldCare via the USB interface.
For details refer to Technical Information TI00404F
Accessory Description
Commubox FXA291 Connects Endress+Hauser field devices with CDI interface (= Endress+Hauser Common
Data Interface) to the USB interface of a computer.
For details refer to Technical Information TI00405C
Accessory Description
HART Loop Converter
HMX50
Evaluates the dynamic HART variables and converts them to analog current signals or
limit values.
For details refer to Technical Information TI00429F and Operating Instructions
BA00371F

DRAFT
Micropilot FMR53, FMR54
86 V. 1, Rev. 7, 26-10-2012 Endress+Hauser
Accessory Description
WirelessHART Adapter
SWA70
Connects field devices to a WirelessHART network.
The WirelessHART adapter can be mounted directly at a HART device and is easly
integrated into an existing HART network. It ensures safe data transmission and can be
operated in parallel with other wireless networks.
For details refer to Operating Instructions BA00061S
Accessory Description
Fieldgate FXA320 Gateway for remote monitoring of connected 4-20mA measuring devices via web
browser.
For details refer to Technical Information TI00025S and Operating Instructions
BA00053S
Accessory Description
Fieldgate FXA520 Gateway for remote diagnosis and parametrization of connected HART measuring devices
via web browser.
For details refer to Technical Information TI00025S and Operating Instructions
BA00051S
Accessory Description
Field Xpert SFX100 Compact, flexible and robust industry handheld terminal for remote parametrization and
measured value inspection via the HART output or via FOUNDATION Fieldbus .
For details refer to Operating Instructions BA00060S
Service-specific accessories Accessory Description
FieldCare Endress+Hauser's FDT-based Plant Asset Management tool.
Helps to configure and maintain all field devices of your plant. By supplying status
information it also supports the diagnosis of the devices.
For details refer to Operating Instructions BA00027S and BA00059S.
System components Accessory Description
Graphic Data Manager
Memograph M
The graphic data manager Memograph M provides information on all the relevant process
variables. Measured values are recorded correctly, limit values are monitored and
measuring points analyzed. The data are stored in the 256 MB internal memory and also
on an SD card or USB stick.
For details refer to Technical Information TI00133R and Operating Instructions
BA00247R
RN221N Active barrier with power supply for safe separation of 4 to 20 mA current circuits.
Provides bi-directional HART transmission.
For details refer to Technical Information TI00073R and Operating Instructions
BA00202R
RNS221 Transmitter supply for 2-wire sensors or transmitters exclusively for non-Ex areas.
Provides bi-directional communication using the HART communication sockets.
For details refer to Technical Information TI00081R and Operating Instructions
KA00110R

DRAFT
Micropilot FMR53, FMR54
Endress+Hauser V. 1, Rev. 7, 26-10-2012 87
Documentation
The following document types are available:
• On the CD supplied with the device
•In the Download Area of the Endress+Hauser Internet site: www.endress.com ® Download
Standard documentation Micropilot FMR53, FMR54
Correlation of documentations to the device:
Device Power supply,
output
Communikation Document type Document code
FMP53 A, B, C, K, L HART Operating Instructions BA01050F/00/EN
Brief Operating Instructions KA01101F/00/EN
Description of Device Parameters GP01014F/00/EN
G PROFIBUS PA
(in preparation)
Operating Instructions BA01126F/00/EN
Brief Operating Instructions KA01130F/00/EN
Description of Device Parameters GP01018F/00/EN
E FOUNDATION Fieldbus
(in preparation)
Operating Instructions BA01122F/00/EN
Brief Operating Instructions KA01126F/00/EN
Description of Device Parameters GP01017F/00/EN
Supplementary
documentation
Device Document type Document code
Fieldgate FXA520 Technical Information TI369F/00/EN
Tank Side Monitor NRF590 Technical Information TI402F/00/EN
Operating Instructions BA256F/00/EN
Description of Device Parameters BA257F/00/EN
Safety Instructions (XA) Depending on the approval, the following Safety Instructions (XA) are supplied with the device. They are an
integral part of the Operating Instructions.
Feature 010 Approval Available for Safety Instructions HART Safety Instructions
PROFIBUS
FOUNDATION Fieldbus
BA ATEX: II 1 G Ex ia IIC T6 Ga • FMR53
• FMR54 XA00677F XA00685F
BB ATEX: II 1/2 G Ex ia IIC T6-T1 Ga/Gb • FMR53
• FMR54 XA00677F XA00685F
BC ATEX: II 1/2 G Ex d [ia] IIC T6-T1 Ga/Gb • FMR53
• FMR54
XA00680F XA00688F
BD ATEX: II 1/2/3 G Ex ic [ia Ga] IIC T6-T1 Ga/Gb/Gc • FMR53
• FMR54
XA00678F XA00686F
BE ATEX: II 1 D Ex ta IIIC T500 xx°C Da FMR54 XA00682F XA00690F
BF ATEX: II 1/2 D Ex ta IIIC Txx°C Da/Db FMR54 XA00682F XA00690F
BG ATEX: II 3 G Ex nA IIC T6-T1 Gc • FMR53
• FMR54 XA00679F XA00687F
BH ATEX: II 3 G Ex ic IIC T6-T1 Gc • FMR53
• FMR54 XA00679F XA00687F
BL ATEX: II 1/2/3 G Ex nA [ia Ga] IIC T6-T1 Ga/Gb/Gc • FMR53
• FMR54
XA00678F XA00686F
B2 ATEX: II 1/2 G Ex ia IIC T6-T1 Ga/Gb
ATEX: II 1/2 D Ex ia IIIC Txx°C Da/Db
• FMR53
• FMR54
XA00683F XA00691F

DRAFT
Micropilot FMR53, FMR54
88 V. 1, Rev. 7, 26-10-2012 Endress+Hauser
Feature 010 Approval Available for Safety Instructions HART Safety Instructions
PROFIBUS
FOUNDATION Fieldbus
B3 ATEX: II 1/2 G Ex d [ia] IIC T6-T1 Ga/Gb
ATEX: II 1/2 D Ex ta IIIC Txx°C Da/Db
• FMR53
• FMR54
XA00684F XA00692F
B4 ATEX:II 1/2 G Ex ia IIC T6-T1 Ga/Gb
ATEX: II 1/2 G Ex d [ia] IIC T6-T1 Ga/Gb
• FMR53
• FMR54
XA00681F XA00689F
IA IECEx: Ex ia IIC T6-T1 Ga • FMR53
• FMR54 XA00677F XA00685F
IB IECEx: Ex ia IIC T6-T1 Ga/Gb • FMR53
• FMR54 XA00677F XA00685F
IC IECEx: Ex d [ia] IIC T6-T1 Ga/Gb • FMR53
• FMR54
XA00680F XA00688F
ID IECEx: Ex ic [ia Ga] IIC T6-T1 Ga/Gb/Gc • FMR53
• FMR54
XA00678F XA00686F
IE IECEx: Ex ta IIIC T500 xx°C Da FMR54 XA00682F XA00690F
IF IECEx: Ex ta IIIC Txx°C Da/Db FMR54 XA00682F XA00690F
IG IECEx: Ex nA IIC T6-T1 Gc • FMR53
• FMR54 XA00679F XA00687F
IH IECEx: Ex ic IIC T6-T1 Gc • FMR53
• FMR54 XA00679F XA00687F
IL IECEx: Ex nA [ia Ga] IIC T6-T1 Ga/Gb/Gc • FMR53
• FMR54
XA00678F XA00686F
I2 IECEx: Ex ia IIC T6-T1 Ga/Gb
IECEx: Ex ia IIIC Txx°C Da/Db
• FMR53
• FMR54
XA00683F XA00691F
I3 IECEx: Ex d [ia] IIC T6-T1 Ga/Gb
IEXEx: Ex ta IIIC Txx°C Da/Db
• FMR53
• FMR54
XA00684F XA00692F
I4 IECEx: Ex ia IIC T6-T1 Ga/Gb
IECEx: Ex d [ia] IIC T6-T1 Ga/Gb
• FMR53
• FMR54
XA00681F XA00689F
For certified devices the relevant Safety Instructions (XA) are indicated on the nameplate.
If the device is prepared for the remote display FHX50 (product structure: feature 030: Display, Operation",
option L or M), the Ex marking of some certificates changes according to the following table 8):
Feature 010 ("Approval") Feature 030 ("Display, Operation") Ex marking
BG L oder M ATEX II 3G Ex nA [ia Ga] IIC T6 Gc
BH L oder M ATEX II 3G Ex ic [ia Ga] IIC T6 Gc
B3 L oder M ATEX II 1/2G Ex d [ia] IIC T6 Ga/Gb,
ATEX II 1/2D Ex ta [ia Db] IIIC Txx°C Da/Db
IG L oder M IECEx Ex nA [ia Ga] IIC T6 Gc
IH L oder M IECEx Ex ic [ia Ga] IIC T6 Gc
I3 L oder M IECEx Ex d [ia] IIC T6 Ga/Gb,
IECEx Ex ta [ia Db] IIIC Txx°C Da/Db
Registered trademarks
HARTÒ
Registered trademark of the HART Communication Foundation, Austin, USA
8) The marking of certificates not mentioned in this table are not affected by the FHX50.

DRAFT
Micropilot FMR53, FMR54
Endress+Hauser V. 1, Rev. 7, 26-10-2012 89
PROFIBUSÒ
Registered trademark of the PROFIBUS User Organization, Karlsruhe, Germany
FOUNDATIONTM Fieldbus
Registered trademark of the Fieldbus Foundation, Austin, Texas, USA
KALREZÒ, VITONÒ
Registered trademark of DuPont Performance Elastomers L.L.C., Wilmington, USA
TEFLONÒ
Registered trademark of E.I. DuPont de Nemours & Co., Wilmington, USA
TRI CLAMPÒ
Registered trademark of Alfa Laval Inc., Kenosha, USA
Patents
This product may be protected by at least one of the following patents.
Further patents are pending.
US Patents EP Patents
5.948.979 882 957
6.087.978 955 527
6.140.940 -
6.155.112 834 722
- 882 955
6.266.022 1 083 413
6.295.874 210 567
6.512.358 1 301 914
6.606.904 -
6.640.628 -
6.679.115 1 360 523
- 1 389 337
6.779.397 -
7.201.050 -
7.412.337 -
7.552.634 -
7.730.760 -
7.819.002 -
- 1 774 616
7.966.141 -
8.040.274 -
8.049.371 -

DRAFT

DRAFT

DRAFT
Instruments International
Endress+Hauser
Instruments International AG
Kaegenstrasse 2
4153 Reinach
Switzerland
Tel.+41 61 715 81 00
Fax+41 61 715 25 00
www.endress.com
info@ii.endress.com
TI01041F/00/EN/01.12
71162678
CCS/EH-COSIMA ProMoDo

