PBE Europe as Axell Wireless CCE-470N3 UHF Signal Enhancer User Manual Manual
Axell Wireless UHF Signal Enhancer Manual
Manual

PBL UHF 1 & 2 Air Interface
Maintenance Handbook
H/book Number:-60-055900HBKM Issue No:-1 Date:-13/02/2003 Page:-1 of 1
Pasedena Metro Radio System
Maintenance Handbook
For Canam Technology Inc.
AFL Works Order No.: Q107519
AFL product part No’s.:
60-055900 PBL Location One UHF1 & UHF2 (This document)
60-056000 Tunnels 1 & 2
60-056100 PBL location TWO & 800MHz BDA

PBL UHF 1 & 2 Air Interface
Maintenance Handbook
H/book Number:-60-055900HBKM Issue No:-1 Date:-13/02/2003 Page:-2 of 2
Table of Contents
AMENDMENT LIST RECORD SHEET...........................................................................................5
INTRODUCTION................................................................................................................................6
SCOPE ............................................................................................................................................................... 6
PURPOSE ........................................................................................................................................................... 6
GLOSSARY OF TERMS........................................................................................................................................ 7
AFL DRAWING SYMBOL KEYS.......................................................................................................................... 8
1. SAFETY CONSIDERATIONS.............................................ERROR! BOOKMARK NOT DEFINED.
1.1 ELECTRIC SHOCK HAZARD..................................................................ERROR! BOOKMARK NOT DEFINED.
1.2 RF RADIATION HAZARD ......................................................................ERROR! BOOKMARK NOT DEFINED.
1.3 CHEMICAL HAZARD.............................................................................................................................. 9
1.4 EMERGENCY CONTACT NUMBERS ...................................................................................................... 10
2. OVERVIEW/SYSTEM DESCRIPTION................................................................................ 11
3. SPECIFICATIONS .................................................................................................................12
3.1 PARTS LISTS........................................................................................................................................ 12
3.1.1 UHF1 & UHF2 Location ONE 60-055900 Parts List........................................................................ 12
3.1.1.1 F/O Air Interface 60-055901 Location ONE-UHF1 Parts List .................................................. 12
3.1.1.2 F/O Air Interface 60-055902 Location ONE, UHF2 Parts List.................................................. 14
3.2 TECHNICAL SPECIFICATIONS .............................................................................................................. 16
3.2.1 UHF ONE to Tunnels 1 & 2 Technical Specification ....................................................................... 16
3.2.2 UHF ONE to Location TWO Technical Specification ...................................................................... 17
3.2.3 UHF TWO to Tunnels 1 & 2 Technical Specification ...................................................................... 18
3.2.4 UHF TWO to Location TWO Technical Specification...................................................................... 19
3.2.5 800MHz Bi-directional Amplifier to Location TWO Technical Specification................................... 20
3.3 MECHANICAL SPECIFICATION (UHF 1 & 2 WALL CASES).................................................................. 21
4. SYSTEM DRAWINGS............................................................................................................22
4.1 DRG. NO. 60-055990, LOCATION ONE, UHF 1 CASE OUTLINE DRAWING......................................... 22
4.2 DRG. NO. 60-055991, LOCATION ONE, UHF 2 CASE OUTLINE DRAWING.......................................... 23
4.3 COMPLETE SYSTEM SKETCH .............................................................................................................. 24
5. SUB-UNIT MODULES........................................................................................................... 25
5.1 UHF 1 AIR INTERFACE (60-055901)................................................................................................... 25
5.1.1 Bandpass Duplexers (02-013401) .................................................................................................... 25
5.1.1.1 Description .............................................................................................................................. 25
5.1.1.2 Technical Specification............................................................................................................ 25
5.1.2 2 & 4 Way UHF Splitters (05-002603 & 05-003401) ....................................................................... 26
5.1.2.1 Description .............................................................................................................................. 26
5.1.2.2 Technical Specification (05-002603)........................................................................................ 26
5.1.2.3 Technical Specification 05-003401 .......................................................................................... 26
5.1.3 ¼Watt 0- -30dB Switched Attenuator (10-000701) .......................................................................... 27
5.1.3.1 General Application................................................................................................................. 27
5.1.3.2 Switched Attenuators............................................................................................................... 27
5.1.4 Low Noise Amplifiers (11-006102, 11-007302 & 11-007402).......................................................... 27
5.1.4.1 Description .............................................................................................................................. 27
5.1.4.2 Technical Specification (11-006102)........................................................................................ 27
5.1.4.3 Drg. No. 11-006102, Low Noise Amplifier General Assembly ................................................. 28
5.1.4.4 Drg. No. 11-006170, LNA RF Circuit Diagram ....................................................................... 29
5.1.4.5 Drg. No. 11-006171, LNA DC Wiring Diagram ...................................................................... 30
5.1.4.6 Drg. No. 11-003971, LNA DC Schematic Diagram.................................................................. 31
5.1.4.7 Technical Specification (11-007302)........................................................................................ 32
5.1.4.8 Drg. No. 11-007302, LNA Assembly With Alarm Relay.......................................................... 33
5.1.4.9 Drg. No. 11-007370, LNA RF Circuit Diagram ....................................................................... 34

PBL UHF 1 & 2 Air Interface
Maintenance Handbook
H/book Number:-60-055900HBKM Issue No:-1 Date:-13/02/2003 Page:-3 of 3
5.1.4.10 Drg. No. 11-007371, LNA DC Wiring Diagram................................................................... 35
5.1.4.11 Technical Specification (11-007402).................................................................................... 36
5.1.4.12 Drg. No. 11-007402, LNA General Assembly ...................................................................... 37
5.1.4.13 Drg. No. 11-007470, LNA RF Circuit Diagram.................................................................... 38
5.1.4.14 Drg. No. 11-007471 LNA DC Wiring Diagram.................................................................... 39
5.1.5 5Watt Power Amplifier (12-001801)................................................................................................ 40
5.1.5.1 Description .............................................................................................................................. 40
5.1.5.2 Technical Specification............................................................................................................ 40
5.1.5.3 Drg. No. 12-001801, 5Watt PA General Assembly Drawing .................................................... 41
5.1.5.4 Drg. No. 12-001870, 5Watt PA Circuit Diagram...................................................................... 42
5.1.5.5 Drg. No. 12-001870C1, 5W PA Component List(1).................................................................43
5.1.5.6 Drg. No. 12-001870C2, 5W PA Component List(2).................................................................44
5.1.5.7 Drg. No. 80-008450, Power Amplifier/Alarm Board DC Wiring Details.................................. 45
5.1.6 3 Stage Amplifier Alarm Boards (12-002201).................................................................................. 46
5.1.6.1 Description .............................................................................................................................. 46
5.1.6.2 Technical Specification............................................................................................................ 47
5.1.6.3 Drg. No. 12-002201, 3 Stage Alarm Board Assembly Drawing & Parts List............................. 48
5.1.6.4 Drg. No. 12-002270, 3 Stage Alarm Board Circuit Diagram .................................................... 49
5.1.6.5 Generic Wall Enclosure Alarm Wiring Sketch......................................................................... 50
5.1.7 DC/DC Converter, 24V in, 12V 8A out (13-003011) ....................................................................... 51
5.1.7.1 Description .............................................................................................................................. 51
5.1.7.2 Technical Specification............................................................................................................ 51
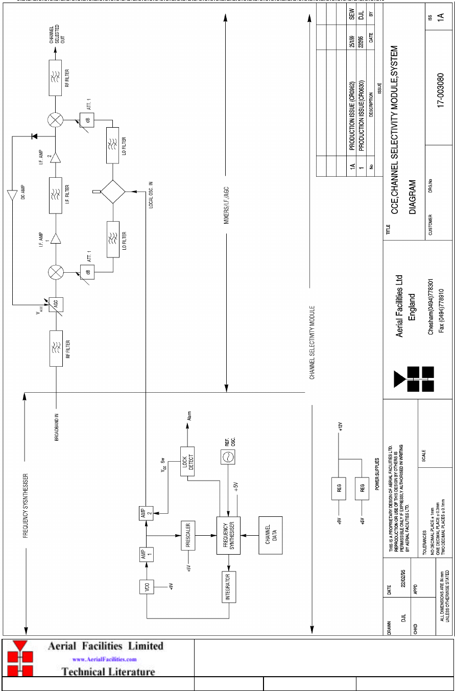
5.1.8 Channel Selective & Channel Control Modules (17-003012 & 17-002101)...................................... 52
5.1.8.1 Channel Selective Module Description..................................................................................... 52
5.1.8.2 Drg. No. 17-003080, Generic Channel Module Block Diagram................................................ 53
5.1.8.3 Channel Selectivity Control Module Description...................................................................... 54
5.1.8.4 Channel Controller DIP Switch Configuration Frequencies...................................................... 54
5.1.8.5 UHF1 Downlink Channel Module Configuration Table............................................................ 55
5.1.8.6 UHF1 Uplink Channel Module Configuration Table ................................................................ 55
5.1.8.7 UHF2 Downlink Channel Module Configuration Table............................................................ 55
5.1.8.8 UHF2 Uplink Channel Module Configuration Table ................................................................ 55
5.1.9 Single & Dual 24Volt Relay Boards (20-001602 & 80-008902) ....................................................... 56
5.1.9.1 24V Relay Boards (20-001602 & 80-008902) Description........................................................ 56
5.1.9.2 Drg. No. 20-001602, Dual 24V Relay Board Assembly Drawing.............................................. 57
5.1.9.3 Drg. No. 20-001671, Dual 24V Relay Board Circuit Diagram.................................................. 58
5.1.9.4 Drg. No. 80-008970, Single Relay Board Circuit Diagram....................................................... 59
5.1.10 SMA coaxial termination (93-930003)......................................................................................... 60
5.1.10.1 Description........................................................................................................................... 60
5.1.11 24V 400W Flat-Pack Power Supply (96-300011) ......................................................................... 60
5.1.11.1 Description........................................................................................................................... 60
5.1.11.2 Technical Specification ........................................................................................................ 60
5.2 UHF 2 AIR INTERFACE (60-055902)................................................................................................... 61
5.2.1 Bandpass Filter (02-013401) See section 5.1.1................................................................................. 61
5.2.2 4 Port Tx Hybrid Combiner (05-003019) ......................................................................................... 61
5.2.2.1 Description .............................................................................................................................. 61
5.2.2.2 Technical Specification............................................................................................................ 61
5.2.3 Four Way Low Power Splitter (05-003401) See section 5.1.2........................................................... 62
5.2.4 ¼Watt 0- -30dB Switched Attenuator (10-000701) See section 5.1.3 ............................................... 62
5.2.5 Low Noise Amplifiers (11-007302 & 11-007402) See section 5.1.4 ................................................. 62
5.2.6 3 Stage Amplifier Alarm Boards (12-002201) See section 5.1.6....................................................... 62
5.2.7 20Watt Power Amplifier (12-004201).............................................................................................. 62
5.2.7.1 Description .............................................................................................................................. 62
5.2.7.2 Technical Specification............................................................................................................ 62
5.2.7.3 Drg. No. 12-004201, PA General Assembly............................................................................. 63
5.2.7.4 Drg. No. 12-004270, PA Circuit Diagram................................................................................ 64
5.2.7.5 Drg. No. 12-004270C1, PA Parts List(1).................................................................................. 65

PBL UHF 1 & 2 Air Interface
Maintenance Handbook
H/book Number:-60-055900HBKM Issue No:-1 Date:-13/02/2003 Page:-4 of 4
5.2.7.6 Drg. No. 12-004270C2, PA Parts List(2).................................................................................. 66
5.2.7.7 Drg. No. 12-003670, PA to Alarm Wiring Details.................................................................... 67
5.2.8 DC/DC Converter, 24V in, 12V 8A out (13-003011) See section 5.1.7 ............................................ 68
5.2.9 Chan. Selec. & Chan. Contr. Mdls (17-003012 & 17-002101) See section 5.1.8 .............................. 68
5.2.10 21MHz IF Filter Board (17-002502) ............................................................................................ 68
5.2.10.1 Description........................................................................................................................... 68
5.2.11 Single & Dual 24Volt Relay Boards (20-001602 & 80-008902) See section 5.1.9 ........................ 68
5.2.12 SMA Coaxial Termination (93-930003) See section 5.1.10.......................................................... 68
5.2.13 24V 400W Flat-Pack Power Supply (96-300011) See section 5.1.11 ............................................ 68
5.2.14 JWS75-15/A PSU (96-300045) .................................................................................................... 68
5.2.14.1 Description........................................................................................................................... 68
5.2.14.2 Technical Specification ........................................................................................................ 68
5.2.15 Single Mode Optical Coupler (98-100001)................................................................................... 69
5.2.15.1 Description........................................................................................................................... 69
5.2.16. Fibre Optic Receiver & Transmitter (98-200003 & 98-300003).................................................... 69
5.2.16.1 Description........................................................................................................................... 69
5.2.16.2 Technical Specification ........................................................................................................ 70
6. INSTALLATION .................................................................................................................... 74
6.1 INITIAL INSTALLATION RECORD ......................................................................................................... 74
6.2 GENERAL............................................................................................................................................ 74
6.3 ELECTRICAL CONNECTIONS ............................................................................................................... 74
6.4 OPTICAL CONNECTIONS ..................................................................................................................... 74
6.5 RF CONNECTIONS .............................................................................................................................. 75
6.6 COMMISSIONING.................................................................................................................................75
7. MAINTENANCE.....................................................................................................................76
7.1 GENERAL PROCEDURES ...................................................................................................................... 76
7.1.1 Fault Finding................................................................................................................................... 76
7.1.2 Downlink ........................................................................................................................................ 77
7.1.3 Uplink ............................................................................................................................................. 77
7.1.4 Fault repair...................................................................................................................................... 77
7.1.5 Checking service ............................................................................................................................. 78
7.1.6 Service Support ............................................................................................................................... 78
7.2 TOOLS & TEST EQUIPMENT................................................................................................................ 78
7.3 CARE OF MODULES............................................................................................................................. 79
7.3.1 General Comments.......................................................................................................................... 79
7.3.2 Module Removal (LNA’s, general procedure):................................................................................. 79
7.3.3 Module Replacement (general): ....................................................................................................... 79
7.3.4 Power Amplifiers............................................................................................................................. 79
7.3.5 Low Power Amplifier Replacement.................................................................................................. 80
7.3.6 Module Transportation: ................................................................................................................... 80
APPENDIX A INITIAL EQUIPMENT SET-UP CALCULATIONS .......................................... 81

PBL UHF 1 & 2 Air Interface
Maintenance Handbook
H/book Number:-60-055900HBKM Issue No:-1 Date:-13/02/2003 Page:-5 of 5
AMENDMENT LIST RECORD SHEET
Issue
No. Date Incorporated
by Page No.’s
Amended Reason for new issue
1 06/02/03 CMH 1st Issue
Document Ref:-60-055900HBKM

PBL UHF 1 & 2 Air Interface
Maintenance Handbook
H/book Number:-60-055900HBKM Issue No:-1 Date:-13/02/2003 Page:-6 of 6
INTRODUCTION
Scope
This handbook is for use solely with the equipment identified by the AFL Part Number shown
on the front cover. It is not to be used with any other equipment unless specifically authorised
by Aerial Facilities Limited. This is a controlled release document and, as such, becomes a
part of Aerial Facilities’ Total Quality Management System. Alterations and modification may
therefore only be performed by Aerial Facilities Ltd.
Purpose
The purpose of this handbook is to provide the user/maintainer with sufficient information to
service and repair the equipment to the level agreed. Maintenance and adjustments to any
deeper level must be performed by AFL, normally at the company’s repair facility in
Chesham, England.
This handbook has been prepared in accordance with BS 4884, and AFL’s Quality
procedures, which maintain the company’s registration to ISO 9001: 1994 and to the
R&TTE Directive of the European Parliament. Copies of the relevant certificates and the
company Quality Manual can be supplied on application to the Quality Manager.
This document fulfils the relevant requirements of Article 6 of the R&TTE Directive.
Limitation of Information Notice
This manual is written for the use of technically competent operators/service persons. No
liability is accepted by AFL for use or misuse of this manual, the information contained
therein, or the consequences of any actions resulting from the use of the said information,
including, but not limited to, descriptive, procedural, typographical, arithmetical, or listing
errors.
Furthermore, AFL does not warrant the absolute accuracy of the information contained
within this manual, or it’s completeness, fitness for purpose, or scope.
AFL has a policy of continuous product development and enhancement, and as such, reserves
the right to amend, alter, update and generally change the contents, appearance and
pertinence of this document without notice.
All AFL products carry a twelve month warranty from date of shipment. The warranty is
expressly on a return to base repair or exchange basis and the warranty cover does not extend
to on-site repair or complete unit exchange.

PBL UHF 1 & 2 Air Interface
Maintenance Handbook
H/book Number:-60-055900HBKM Issue No:-1 Date:-13/02/2003 Page:-7 of 7
Glossary of Terms
Repeater or
Cell Enhancer A Radio Frequency (RF) amplifier which can simultaneously
amplify and re-broadcast Mobile Station (MS) and Base Transceiver
Station (BTS) signals.
Band Selective Repeater A Cell Enhancer designed for operation on a range of channels
within a specified frequency band.
Channel Selective
Repeater A Cell Enhancer, designed for operation on specified channel(s)
within a specified frequency band. Channel frequencies may be
factory set or on-site programmable.
BTS Base Transceiver Station
C/NR Carrier-to-Noise Ratio
Downlink (D.L.) RF signals transmitted from the BTS and to the MS
Uplink (U.L.) RF signals transmitted from the MS to the BTS
EMC Electromagnetic Compatibility
GND Ground
DC Direct Current
AC Alternating Current
ID Identification Number
OIP3 Output Third Order Intercept Point = RFout +(C/I)/2
LED Light Emitting Diode
M.S. Mobile Station
N/A Not Applicable
N/C No Connection
NF Noise Figure
RF Radio Frequency
Rx Receiver
Tx Transmitter
S/N Serial Number

PBL UHF 1 & 2 Air Interface
Maintenance Handbook
H/book Number:-60-055900HBKM Issue No:-1 Date:-13/02/2003 Page:-8 of 8
AFL Drawing Symbol Keys

PBL UHF 1 & 2 Air Interface
Maintenance Handbook
H/book Number:-60-055900HBKM Issue No:-1 Date:-13/02/2003 Page:-9 of 9
1. SAFETY CONSIDERATIONS
1.1 Electric Shock Hazard
Electrical shocks due to faulty mains driven power supplies.
Whilst ever potentially present in any electrical equipment, such a condition would be
minimised by quality installation practice and thorough testing at:
a) Original assembly.
b) Commissioning.
c) Regular intervals, thereafter.
All test equipment to be in good working order prior to its use. High current power supplies
can be dangerous because of the possibility of substantial arcing. Always switch off during
disconnection and reconnection.
1.2 RF Radiation Hazard
“CAUTION: This equipment is approved for antennas mounted on fixed outdoor permanent
structures. A minimum separation distance of 2 metres must be maintained between the
radiating elements and any nearby persons. A maximum antenna gain of 21 dBi may be used.
Operating this equipment without regard to these restrictions will result in RF exposure levels
above the limits allowed by FCC rules.”
This equipment complies with part 90 of the FCC rules. Any changes or modifications not
expressly approved by the manufacturer could void the user’s authority to operate the
equipment.
RF radiation, (especially at UHF frequencies) arising from transmitter outputs connected to
AFL’s equipment, must be considered a safety hazard.
This condition might only occur in the event of cable disconnection, or because a ‘spare’
output has been left unterminated. Either of these conditions would impair the system’s
efficiency. No investigation should be carried out until all RF power sources have been
removed. This would always be a wise precaution, despite the severe mismatch between the
impedance of an N type connector at 50?, and that of free space at 377?, which would
severely mitigate against the efficient radiation of RF power. Radio frequency burns could also
be a hazard, if any RF power carrying components were to be carelessly touched!
Antenna positions should be chosen to comply with requirements (both local & statutory)
regarding exposure of personnel to RF radiation. When connected to an antenna, the unit is
capable of producing RF field strengths, which may exceed guideline safe values especially if
used with antennas having appreciable gain. In this regard the use of directional antennas with
backscreens and a strict site rule that personnel must remain behind the screen while the RF
power is on, is strongly recommended.
Where the equipment is used near power lines, or in association with temporary masts not
having lightning protection, the use of a safety earth connected to the case-earthing bolt is
strongly advised.

PBL UHF 1 & 2 Air Interface
Maintenance Handbook
H/book Number:-60-055900HBKM Issue No:-1 Date:-13/02/2003 Page:-10 of 10
1.3 Chemical Hazard
Beryllium Oxide, also known as Beryllium Monoxide, or Thermalox™, is sometimes used in
devices within equipment produced by Aerial Facilities Ltd. Beryllium oxide dust can be toxic
if inhaled, leading to chronic respiratory problems. It is harmless if ingested or by contact.
Products that contain beryllium are load terminations (dummy loads) and some power
amplifiers. These products can be identified by a yellow and black “skull and crossbones”
danger symbol (shown above). They are marked as hazardous in line with international
regulations, but pose no threat under normal circumstances. Only if a component containing
beryllium oxide has suffered catastrophic failure, or exploded, will there be any danger of the
formation of dust. Any dust that has been created will be contained within the equipment
module as long as the module remains sealed. For this reason, any module carrying the yellow
and black danger sign should not be opened. If the equipment is suspected of failure, or is at
the end of its life-cycle, it must be returned to Aerial Facilities Ltd for disposal.
To return such equipment, please contact the Quality Department, who will give you a
Returned Materials Authorisation (RMA) number. Please quote this number on the packing
documents, and on all correspondence relating to the shipment.
PolyTetraFluoroEthylene, (P.T.F.E.) and P.T.F.E. Composite Materials
Many modules/components in AFL equipment contain P.T.F.E. as part of the RF insulation
barrier.
This material should never be heated to the point where smoke or fumes are evolved. Any
person feeling drowsy after coming into contact with P.T.F.E. especially dust or fumes should
seek medical attention.
1.4 Emergency Contact Numbers
The AFL Quality Department can be contacted on:
Telephone +44 (0)1494 777000
Fax +44 (0)1494 777002
e-mail qa@aerial.co.uk

PBL UHF 1 & 2 Air Interface
Maintenance Handbook
H/book Number:-60-055900HBKM Issue No:-1 Date:-13/02/2003 Page:-11 of 11
2. OVERVIEW/SYSTEM DESCRIPTION
The AFL Off air Amplifiers for the Pasadena Blue line project are 2 way on-band RF
amplifiers. Their application is as an interface between the donor radio sites and the Fibre optic
receivers and transmitters which will extend coverage to the locations via the fibre optic link.
There are two units one designated for the ‘UHF1’ frequencies the other for the ‘UHF2’
frequencies.
Each unit is housed in an environmentally protected IP65 steel wall-mount case. Handles are
provided for carrying the unit and the door is fitted with locks. The unit interfaces with ‘N’
type female connectors for RF connections and heavy duty connectors for routing of AC
power supply input and alarm output wiring. Cable glands are provided for routing of the
Fibre optic cable in to the unit.
To provide adequate selectivity in the Downlink and Uplink paths, combline design bandpass
quadplexers and duplexers are used at the air interface ports. In addition each channel to be
passed is selected by a 15kHz or 25KHz Channel module which provides a high level of
rejection at adjacent channels. To provide the required gain to reach the required signal levels,
low-noise amplifiers (LNA’s) are used in each path, these being followed by power amplifier
modules in the uplink to provide the required intermodulation performance. Gain adjustment is
available locally using switched attenuators.
Note that “Downlink” refers to the RF path from the base station (donor site) to the FO
transmitter and that “Uplink” refers to the RF path from the FO receiver to the remote base
station.

PBL UHF 1 & 2 Air Interface
Maintenance Handbook
H/book Number:-60-055900HBKM Issue No:-1 Date:-13/02/2003 Page:-12 of 12
3. SPECIFICATIONS
3.1 Parts Lists
3.1.1 UHF1 & UHF2 Location ONE 60-055900 Parts List
60-055901 PBL F/O AIR INTERFACE LOC1 UHF1 1
60-055902 PBL F/O AIR INTERFACE LOC1 UHF2 1
3.1.1.1 F/O Air Interface 60-055901 Location ONE-UHF1 Parts List
02-013401 6P CL FILTER (0.5 min BW) LARGE SMA ASSY 4
05-002603 UHF 3dB SPLITTER SMA 2
05-003401 4 WAY SPLITTER LOW POWER 2
10-000701 1/4W0-30dB SWITCHED ATTENUATOR 6
11-006102 LNA 380-500MHz 1W WITH RELAY 1
11-007302 LNA. 380-500MHz 20dB (C/W RELAY) GA 5
11-007402 LNA. 380-500MHz 30dB (C/W RELAY) GA 2
12-001801 UHF PWR AMP.450MHz 5W SMA ALARMS 1
12-002201 3 STAGE AMPLIFIER ALARM BOARD 1
12-002220 3 STAGE ALARM PCB COVER 1
12-002826 ALARM BOARD ACRYLIC LENS 1
13-003011 DC-DC CONVTR 24-12V 8A PCB SUB-ASS 1
17-000126 CELL ENHANCER LABEL 6 DIGIT 1
17-001523 GREY C.E. HEATSINK BLANKING PLATE 1
17-002020 CASE 620x620x250 SCHROFF CUSTOM 1
17-002021 BASE PLATE 585x570mm FOR 17-002020 1
17-002101 CHANNEL CONTROL MODULE 2
17-002103 26WAY RIBBON CABLE LEAD 0
17-003012 CHAN MOD 450MHz, 15kHz B/W 6
17-003022 MODULE PATTERNED LEAVE 6
17-003023 SUBRACK SIDE PANEL 2
17-003024 SUBRACK REAR BRACKET 6
17-003025 BOTTOM MODULE GUIDE 6
17-003028 MODULE SQUARE LEAVE 6
17-003029 TOP MODULE GUIDE 6
17-009723 EQUIP. MTG PLATE No.4 8
17-009727 EQUIP. MTG PLATE No.8 1
20-001602 24V RELAY BOARD 1
80-008902 24V RELAY PCB ASSEMBLY 1
80-032320 POWER AMP HEATSINK 10W 900MHz 1
80-032322 POWER SUPPLY HEATSINK 10W 1
90-010021 RF CABLE SUPFLEX SMA R/A MALE 100mm 15

PBL UHF 1 & 2 Air Interface
Maintenance Handbook
H/book Number:-60-055900HBKM Issue No:-1 Date:-13/02/2003 Page:-13 of 13
90-010022 RF CABLE SUPFLEX SMA R/A MALE 200mm 2
90-010026 RF CABLE HIFLEX SMA R/A MALE 150mm 6
90-010027 RF CABLE HIFLEX SMA R/A MALE 250mm 2
90-010028 RF CABLE HIFLEX SMA R/A MALE 350mm 1
90-010130 RF CABLE SMA R/A-N PANEL JACK 100mm 1
90-010131 RF CABLE SMA R/A-N PANEL JACK 200mm 3
90-010134 RF CABLE SMA R/A-N PANEL JACK 400mm 1
90-010135 RF CABLE SMA R/A-N PANEL JACK 500mm 2
91-030002 N ADAPTOR PANEL FEMALE:FEMALE 0
91-500011 PWR 3POLE PNL PLUG SEALED IP68 1
91-500015 PWR CON CAP SEALED with INT. THREAD 2
91-500016 PWR 6POLE PNL PLUG SEALED IP68 1
91-510010 PWR 3POLE FREE SOC.SEALED IP68 1
91-510013 PWR CON CAP SEALED with Ext. THREAD 2
91-510014 PWR 6POLE FREE SOC.SEALED IP68 1
91-600005 'D' 9 WAY SOCKET S/B TERM 0
91-600007 'D' 9 WAY BLACK SHELL 0
91-600014 'D' 9 WAY SOCKET S/B (NON FILTERED) 8
91-620002 'D' 25 WAY SOCKET/IDC TERMS 6
91-640003 MISC 26 WAY RIBBON CABLE SOCK. 6
91-700017 ICD 15 WAY 0.1' CONNECTOR 2
92-280033 Captive Screw 12
92-400017 GASKET FOR N TYPE CONNECTOR 3
93-540035 1K3 0.25W 1% RES MRS25 M:F 2
93-930003 SMA COAX TERMINATION [RADIAL] 2
96-300011 24 V 400 W FLATPACK PWR SUPPLY 1
96-500003 AC FILTER 110V 5A 1
96-500005 DC INPUT FILTERS 1
96-700002 LED.GREEN 5mm SEALED IP66 1
96-700005 LED.RED 5mm SEALED IP66 1
96-900018 AC TRIP SWITCH (5 AMP M.C.B.) 1
96-920011 PROXIMITY SWITCH 1
96-920012 PROXIMITY SWITCH MAGNET 1
97-000002 BLACK MODULE CAGE RUNNER 12
97-300010 SUPPLY I/P COVERS 1
97-400010 BLACK PLASTIC HANDLE 37311 2
97-600001 SUBRACK FRONT HORIZ 2
97-600002 SUBRACK M2.5 STD TAP 8
97-900004 RUBBER FOOT FOR CELL ENHANCERS 4

PBL UHF 1 & 2 Air Interface
Maintenance Handbook
H/book Number:-60-055900HBKM Issue No:-1 Date:-13/02/2003 Page:-14 of 14
3.1.1.2 F/O Air Interface 60-055902 Location ONE, UHF2 Parts List
02-013401 6P CL FLTR(0.5 min BW) LARGE SMA ASSY 2
05-002603 UHF 3dB SPLITTER SMA 1
05-003019 4 PORT THC 3dB 450MHz SMA TYPE 1
05-003401 4 WAY SPLITTER LOW POWER 4
10-000701 1/4W0-30dB SWITCHED ATTENUATOR 2
11-007302 LNA. 380-500MHz 20dB (C/W RELAY) GA 1
11-007402 LNA. 380-500MHz 30dB (C/W RELAY) GA 5
12-002201 3 STAGE AMPLIFIER ALARM BOARD 1
12-002220 3 STAGE ALARM PCB COVER 1
12-002826 ALARM BOARD ACRYLIC LENS 1
12-004201 PWR AMP.450MHz 20W version CLASS A 1
13-003011 DC/DC CONVERTER 24-12V 8A PCB SUB-ASS 1
17-000126 CELL ENHANCER LABEL 6 DIGIT 1
17-002020 CASE 620x620x250 SCHROFF CUSTOM 1
17-002021 BASE PLATE 585x570mm FOR 17-002020 1
17-002101 CHANNEL CONTROL MODULE 1
17-002103 26WAY RIBBON CABLE LEAD 0
17-002502 IF FILTER BOARD 21.4MHz 30kHz 1
17-003012 CHAN MOD 450MHz, 15kHz B/W 8
17-003022 MODULE PATTERNED LEAVE 7
17-003023 SUBRACK SIDE PANEL 2
17-003024 SUBRACK REAR BRACKET 8
17-003025 BOTTOM MODULE GUIDE 8
17-003028 MODULE SQUARE LEAVE 8
17-003029 TOP MODULE GUIDE 8
17-009723 EQUIP. MTG PLATE No.4 6
17-009726 EQUIP. MTG PLATE No.7 1
20-001602 24V RELAY BOARD 0
80-008902 24V RELAY PCB ASSEMBLY 1
80-031820 POWER AMP HEATSINK 20W 900MHz 1
80-032320 POWER AMP HEATSINK 10W 900MHz 0
80-032322 POWER SUPPLY HEATSINK 10W 2
90-010021 RF CABLE SUPFLEX SMA R/A MALE 100mm 20
90-010022 RF CABLE SUPFLEX SMA R/A MALE 200mm 3
90-010024 RF CABLE SUPFLEX SMA R/A MALE 400mm 1
90-010025 RF CABLE SUPFLEX SMA R/A MALE 500mm 3
90-010026 RF CABLE HIFLEX SMA R/A MALE 150mm 8
90-010027 RF CABLE HIFLEX SMA R/A MALE 250mm 2
90-010028 RF CABLE HIFLEX SMA R/A MALE 350mm 2
90-010030 RF CABLE HIFLEX SMA R/A MALE 600mm 3
90-010131 RF CABLE SMA R/A-N PANEL JACK 200mm 1
90-010135 RF CABLE SMA R/A-N PANEL JACK 500mm 2

PBL UHF 1 & 2 Air Interface
Maintenance Handbook
H/book Number:-60-055900HBKM Issue No:-1 Date:-13/02/2003 Page:-15 of 15
91-030002 N ADAPTOR PANEL FEMALE:FEMALE 0
91-500011 PWR 3POLE PNL PLUG SEALED IP68 1
91-500015 PWR CON CAP SEALED with INT. THREAD 2
91-500016 PWR 6POLE PNL PLUG SEALED IP68 1
91-510010 PWR 3POLE FREE SOC.SEALED IP68 1
91-510013 PWR CON CAP SEALED with Ext. THREAD 2
91-510014 PWR 6POLE FREE SOC.SEALED IP68 1
91-600005 'D' 9 WAY SOCKET S/B TERM 0
91-600007 'D' 9 WAY BLACK SHELL 0
91-600014 'D' 9 WAY SOCKET S/B (NON FILTERED) 6
91-620002 'D' 25 WAY SOCKET/IDC TERMS 8
91-640003 MISC 26 WAY RIBBON CABLE SOCK. 8
91-700017 ICD 15 WAY 0.1' CONNECTOR 2
91-800014 3 WAY TERMINAL BLOCK 1
91-800019 OPTICAL BARREL ADAPT 4
92-120009 M20 IP68 CABLE GLAND 2
92-280033 Captive Screw 16
92-400017 GASKET FOR N TYPE CONNECTOR 3
93-540035 1K3 0.25W 1% RES MRS25 M:F 2
93-930003 SMA COAX TERMINATION [RADIAL] 0
96-300011 24 V 400 W FLATPACK PWR SUPPLY 1
96-300045 JWS75-15/A PSU (COUTANT LAMBDA) 1
96-500003 AC FILTER 110V 5A 1
96-500005 DC INPUT FILTERS 1
96-700002 LED.GREEN 5mm SEALED IP66 1
96-700005 LED.RED 5mm SEALED IP66 1
96-900018 AC TRIP SWITCH (5 AMP M.C.B.) 1
96-920011 PROXIMITY SWITCH 1
96-920012 PROXIMITY SWITCH MAGNET 1
97-000002 BLACK MODULE CAGE RUNNER 16
97-300010 SUPPLY I/P COVERS 1
97-400010 BLACK PLASTIC HANDLE 37311 2
97-600001 SUBRACK FRONT HORIZ 2
97-600002 SUBRACK M2.5 STD TAP 8
97-900004 RUBBER FOOT FOR CELL ENHANCERS 4
98-100001 1x2 SINGLE MODE OPTICAL COUPLR 1310 1
98-200003 FIBRE OPTIC RX 6325 1310nm <2.2GHz 2
98-300003 FIBRE OPTIC TX 6325 1310nm <2.2GHz 1
98-500004 FC/APC-FC/APC FIBREOPTIC CABLE 0.5M 2

PBL UHF 1 & 2 Air Interface
Maintenance Handbook
H/book Number:-60-055900HBKM Issue No:-1 Date:-13/02/2003 Page:-16 of 16
3.2 Technical Specifications
3.2.1 UHF ONE to Tunnels 1 & 2 Technical Specification
Frequency Range: Downlink Channels:
470.2125MHz
470.2625MHz
482.2375MHz
Uplink Channels:
473.2125MHz
473.2625MHz
485.2375MHz
Band Width Downlink :15kHz
Uplink : 25kHz
No. of Paths 2
Downlink Gain 82 dB min
Uplink Gain 70 dB min
RF Connector N type female
RF Impedance 50Ω
VSWR Better than 1.5:1
Gain Adjustment 0 to 30 in 2dB steps
Downlink PA 470.2125MHz, 470.2125MHz: 5WClass A Linear PA
482.2375MHz :20W Class A Linear PA
Uplink PA 485.2375MHz : 1W Class A Linear
473.2625MHz, 473.2125MHz : 5W Class A Linear
Duplexer UP/DN Isolation >80 dB
Passband Ripple <±1.5 dB
Noise Figure Downlink <7 dB at maximum gain
Noise Figure Uplink <18 dB at maximum gain
In-Band Spurious Better than –13dBm downlink
Better than –13dBm uplink
(measure with 30KHz BW & max gain setting)
Out-band Spurious up to
3GHz: Better than –90dBc

PBL UHF 1 & 2 Air Interface
Maintenance Handbook
H/book Number:-60-055900HBKM Issue No:-1 Date:-13/02/2003 Page:-17 of 17
3.2.2 UHF ONE to Location TWO Technical Specification
Frequency Range:
Downlink Channels:
470.2125MHz
470.2625MHz
482.2375MHz
Uplink Channels:
473.2125MHz
473.2625MHz
485.2375MHz
Band Width: Downlink :15kHz
Uplink : 25kHz
No. of Paths
2
Downlink Gain
82 dB min
Uplink Gain
80 dB min
RF Connector
N type female
RF Impedance
50Ω
VSWR
Better than 1.5:1
Gain Adjustment
0 to 30dB in 2dB steps
Downlink PA 470.2125MHz, 470.2125MHz: 5WClass A Linear PA
482.2375MHz :20W Class A Linear PA
Uplink PA 485.2375MHz : 1W Class A Linear
473.2625MHz, 473.2125MHz : 5W Class A Linear
Duplexer UP/DN Isolation
>80 dB
Passband Ripple
<±1.5 dB
Noise Figure
Downlink <7dB at maximum gain
Noise Figure
Uplink <12dB
In-Band Spurious
Better than –13dBm downlink
Better than –13dBm uplink
(measure with 30KHz BW with max gain setting)
Out-band Spurious up to
3GHz Better than –90dBc

PBL UHF 1 & 2 Air Interface
Maintenance Handbook
H/book Number:-60-055900HBKM Issue No:-1 Date:-13/02/2003 Page:-18 of 18
3.2.3 UHF TWO to Tunnels 1 & 2 Technical Specification
Frequency Range:
Downlink Channels:
483.0625MHz
483.2875MHz
483.3125MHz
483.5625MHz
Uplink Channels:
486.0625MHz
486.2875MHz
486.3125MHz
486.5625MHz
Band Width: Downlink :15kHz
Uplink : 25kHz ,486.0625MHz, 486.5625MHz
15kHz ,486.2875MHz, 486.3125MHz
No. of Paths:
2
RF Connector:
N type female
RF Impedance:
50Ω
VSWR:
Better than 1.5:1
Downlink Gain:
90 dB min
Uplink Gain:
68 dB min
Gain Adjustment:
0 to 30 in 2dB steps
Downlink PA:
20W Class A Linear
Uplink PA:
20W Class A Linear
Duplexer UP/DN Isolation:
>80 dB
Passband Ripple:
<±1.5 dB
Noise Figure:
Downlink <5 dB at maximum gain
Noise Figure:
Uplink <12dB at maximum gain
In-Band Spurious: Better than –13dBm downlink
Better than –13dBm uplink
(measure with 30KHz BW with max gain setting)
Out-band Spurious up to 3GHz: Better than –90dBc

PBL UHF 1 & 2 Air Interface
Maintenance Handbook
H/book Number:-60-055900HBKM Issue No:-1 Date:-13/02/2003 Page:-19 of 19
3.2.4 UHF TWO to Location TWO Technical Specification
Frequency Range: Downlink Channels:
483.0625MHz
483.2875MHz
483.3125MHz
483.5625MHz
Uplink Channels:
486.0625MHz
486.2875MHz
486.3125MHz
486.5625MHz
Band Width: Downlink :15kHz
Uplink : 25kHz ,486.0625MHz, 486.5625MHz
15kHz ,486.2875MHz, 486.3125MHz
No. of Paths: 2
RF Connector: N type female
RF Impedance: 50Ω
VSWR: Better than 1.5:1
Downlink Gain: 90 dB min
Uplink Gain: 78 dB min
Gain Adjustment: 0 to 30 in 2dB steps
Downlink PA: 20W Class A Linear
Uplink PA: 20W Class A Linear
Duplexer UP/DN Isolation: >80 dB
Passband Ripple: <±1.5 dB
Noise Figure: Downlink <5 dB at maximum gain
Noise Figure: Uplink <12 dB at maximum gain
In-Band Spurious: Better than –13dBm downlink
Better than –13dBm uplink
(measure with 30KHz BW & max gain setting)
Out-band Spurious up to 3GHz: Better than –90dBc

PBL UHF 1 & 2 Air Interface
Maintenance Handbook
H/book Number:-60-055900HBKM Issue No:-1 Date:-13/02/2003 Page:-20 of 20
3.2.5 800MHz Bi-directional Amplifier to Location TWO Technical Specification
Frequency Range: Downlink Channels:
857.9375MHz
859.7625MHz
Uplink Channels:
812.9375MHz
814.7625MHz
Band Width: Downlink :15kHz
Uplink : 25kHz
No. of Paths: 2
No. of RF Ports: 2
No. of Fibre Connections: N/A
RF Connector: N type female
RF Impedance: 50Ω
VSWR: Better than 1.5:1
Downlink Gain: 78 dB min
Uplink Gain: 80 dB min
Gain Adjustment: 0 to 30 in 2dB steps
Downlink PA: 5W Class A Linear
Downlink Power: 2 Carriers at +18dBm
Uplink PA: 5W Class A Linear
Uplink Power: 2 Carriers at +18dBm
Duplexer UP/DN Isolation: >80 dB
Passband Ripple: <±1.5 dB
Noise Figure: Uplink <6 dB at maximum gain
Downlink <5 dB at maximum gain
In-Band Spurious: Better than –13dBm downlink
Better than –13dBm uplink
(measure with 30KHz BW with max gain setting)
MTBF: >50,000 hours
Supply Input Voltage: 110V AC
Alarms Fitted: Alarm:- Volts free contacts
Alarm indicator:- Red LED
Power Indicator:-Green LED
Door Intrusion:- Magnetic proximity switch

PBL UHF 1 & 2 Air Interface
Maintenance Handbook
H/book Number:-60-055900HBKM Issue No:-1 Date:-13/02/2003 Page:-21 of 21
3.3 Mechanical Specification (UHF 1 & 2 Wall Cases)
Height: 620mm
Width: 620mm
Case size
Depth: 250mm
(excluding heatsinks, connectors, handles and feet)
Fixings: 4 holes on 670(w) x 557(h)mm
operational:
-10°C to +55°C
Temperature Range:
storage:
-40°C to +70°C
Weight:
70kg (approximately)
RF Connectors:
N type female
Environmental Protection:
IP65 (with door closed and all ports terminated)
Case: To RAL 7032
Heatsinks: Matt black (where fitted)
Finish:
Handles: Black plastic
Supply Cable: Unit supplied with suitable supply input leads with
connector and appropriate length of cable

PBL UHF 1 & 2 Air Interface
Maintenance Handbook
H/book Number:-60-055900HBKM Issue No:-1 Date:-13/02/2003 Page:-22 of 22
4. SYSTEM DRAWINGS
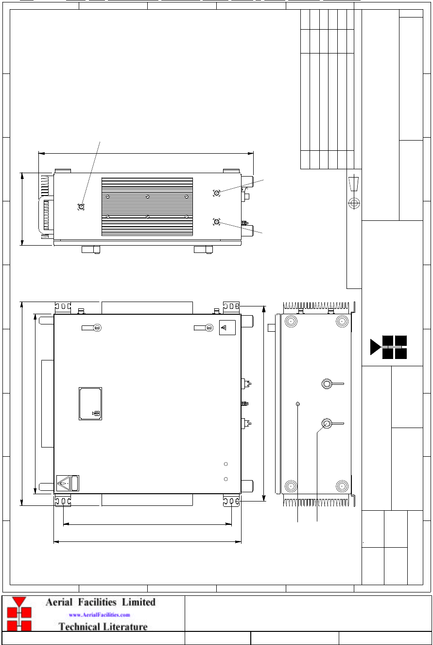
4.1 Drg. No. 60-055990, Location ONE, UHF 1 Case Outline Drawing
BYDATEDESCRIPTIONNo
1 2 345678 9
A
B
C
D
E
F
1 2 3 4 5 6 7 8 9
A
B
C
D
E
F
Fax : 01494 777002
Tel : 01494 777000
Aerial Facilities Limited
THIS IS A PROPRIETARY DESIGN OF AERIAL FACILITIES LTD.
REPRODUCTION OR USE OF THIS DESIGN BY OTHERS IS
PERMISSIBLE ONLY IF EXPRESSLY AUTHORISED IN WRITING
BY AERIAL FACILITIES LTD.
NO DECIMAL PLACE ± 1mm
ONE DECIMAL PLACE ± 0.3mm
TWO DECIMAL PLACES ± 0.1mm
ALL DIMENSIONS ARE IN mm
UNLESS OTHERWISE STATED
CHKD
DRAWN
APPD
DATE
TOLERANCES SCALE
England
CUSTOMER DRAWING.No
TITLE
ISSUE
3
A
PASADENA BLUE LINE. LOCATION 1.UHF1
OUTLINE DRAWING
60-055990
1A
1:5
DBS 15/10/02
620 [2'-0.4"]
England
Limited
Aerial Facilities
UHF 1
Product ref :
CE- / - N
Heavy
CAUTION
voltage
High
DANGER
THIRD ANGLE PROJECTION
700 [2'-3.6"]
620 [2'-0.4"]
250 [9.9"]
709 [2'-3.9"]
DOWNLINK INPUT/UPLINK
OUTPUT UHF 1 (ANTENNA)
UPLINK INPUT UHF 1
PRODUCTION ISSUE
15/10/02
DBS
M6 EARTH STUD
DOWNLINK OUTPUT UHF 1
115V AC INPUT
PSU ALARM
670 [2'-2.4"]
555 [1'-9.9"]
MATERIAL: MILD STEEL
FINISH: PAINTED TO RAL 9017 SEMI-
GLOSS TRAFFIC BLACK
WALL FIXINGS: M8 (5/16")
RF CONNECTORS: N TYPE FEMALE
ENVIRONMENTAL CLASS: IP65
DECIMAL EQUIV'S DBS
21/10/02
1B
2A ECN2746
30/10/02
DBS
ALARMS
PB GD

PBL UHF 1 & 2 Air Interface
Maintenance Handbook
H/book Number:-60-055900HBKM Issue No:-1 Date:-13/02/2003 Page:-23 of 23
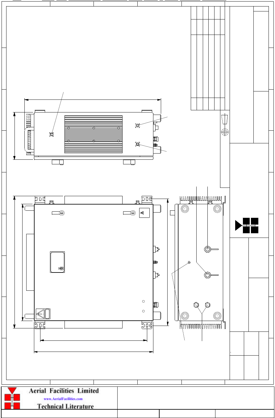
4.2 Drg. No. 60-055991, Location One, UHF 2 Case Outline Drawing
BYDATEDESCRIPTIONNo
1 2 345678 9
A
B
C
D
E
F
1 2 3 4 5 6 7 8 9
A
B
C
D
E
F
Fax : 01494 777002
Tel : 01494 777000
Aerial Facilities Limited
THIS IS A PROPRIETARY DESIGN OF AERIAL FACILITIES LTD.
REPRODUCTION OR USE OF THIS DESIGN BY OTHERS IS
PERMISSIBLE ONLY IF EXPRESSLY AUTHORISED IN WRITING
BY AERIAL FACILITIES LTD.
NO DECIMAL PLACE ± 1mm
ONE DECIMAL PLACE ± 0.3mm
TWO DECIMAL PLACES ± 0.1mm
ALL DIMENSIONS ARE IN mm
UNLESS OTHERWISE STATED
CHKD
DRAWN
APPD
DATE
TOLERANCES SCALE
England
CUSTOMER DRAWING.No
TITLE
ISSUE
3
A
PASADENA BLUE LINE. LOCATION 1.UHF2
OUTLINE DRAWING
60-055991
1A
1:5
DBS 15/10/02
620 [2'-0.4"]
England
Limited
Aerial Facilities
UHF 2
Product ref :
CE- / - N
Heavy
CAUTION
voltage
High
DANGER
THIRD ANGLE PROJECTION
700 [2'-3.6"]
620 [2'-0.4"]
250 [9.9"]
709 [2'-3.9"]
PRODUCTION ISSUE
15/10/02
DBS
M6 EARTH STUD
CABLE GLANDS
(FIBRE OPTICS)
115V AC INPUT
PSU ALARM
670 [2'-2.4"]
555 [1'-9.9"]
MATERIAL: MILD STEEL
FINISH: PAINTED TO RAL 9017 SEMI-
GLOSS TRAFFIC BLACK
WALL FIXINGS: M8 (5/16")
RF CONNECTORS: N TYPE FEMALE
ENVIRONMENTAL CLASS: IP65
DECIMAL EQUIV'S DBS
21/10/02
1B
DOWNLINK INPUT/UPLINK
OUTPUT UHF 2 (ANTENNA)
DOWNLINK INPUT UHF 1 UPLINK OUTPUT UHF 1
ECN2746
2A
30/10/02
DBS
ALARMS
PB GD

PBL UHF 1 & 2 Air Interface
Maintenance Handbook
H/book Number:-60-055900HBKM Issue No:-1 Date:-13/02/2003 Page:-24 of 24
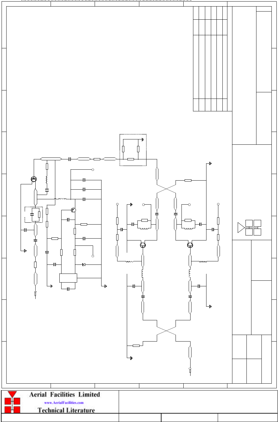
4.3 Complete System Sketch
dB
dB
857-860MHz
812-815MHz
857.9375MHz
859.7625MHz
812.9375MHz
814.7625MHz
800MHz
dB
dB
857-860MHz
812-815MHz
12-000201
12-000201 11-00670211-005902
11-00590211-006702
30dB 30dB
30dB 30dB
20dB
20dB
14dB
14dB
14dB
14dB
dB
dB
EO
470MHz
483MHz
473MHz
485-486MHz
UNIT 1
UNIT 2
470MHz
EO
AGC
AGC
DET
473MHz
dB
dB
483MHz
AGC
AGC
DET
485-486MHz
HL
VHF
LCX
02-007306
02-007306
02-007306
02-007306
02-011204
02-011204
02-011204
02-011204
12-00180111-007302
11-00740211-006102 11-007302
20dB 30dB
16dB 20dB 24dB
12-00420111-007302
11-00730111-006102 11-007302
20dB 30dB
16dB 20dB 20dB
HL
LCX
800MHz
LOCATION TWO
-15dBm
-15dBm
18dBm
20dBm
28dBm
26dBm 18dBm
21dBm
-60dBm
19dBm
-60dBm
-60dBm
-15dBm
-15dBm
25dBm
-65dBm
-17dBm
-65dBm
-62dBm
-63dBm
-65dBm
18dBm
60-056101
60-056102
60-056103
KL M
NOP
R
ST
J5
T8
T7
J6
-25dBm
-26dBm
483-486MHz
470-475MHz
02-007306
02-007306
T10
T11
3
dB
dB
dB
dB
dB
dB
dB
dB
dB
EO
EO
EO
482MHz
470MHz
473MHz
485MHz
483MHz
486MHz
482.2375MHz
470.2625MHz
470.2125MHz
473.2625MHz
473.2125MHz
485.2375MHz
483.3125MHz
483.2875MHz
483.0625MHz
483.5625MHz
486.3125MHz
486.2875MHz
486.0625MHz
486.5625MHz
UHF 1
UHF 2
02-013401
02-013401
02-013401
11-007401 11-007302
11-007401
11-007302
12-001801 11-007301
11-006101 11-007301
02-013401
02-013401
02-013401
32dB 20dB
32dB
20dB
20dB
20dB
30dB
16dB
15dB
20dB
20dB
5dB
5dB
15dB
11-007401
11-007401
32dB
32dB
12-004201 11-007301
20dB30dB
20dB
20dB
20dB
20dB
25dB
6dB
6dB
6dB
6dB
LOCATION ONE
-15dBm
11-007302
20dB
-11dBm
-3dBm
-62dBm
-72dBm
-82dBm
-72dBm
-3dBm
11-007401
32dB
11-007401
32dB
11-007401
32dB
-15dBm
-15dBm
-19dBm
+20dBm
-15dBm
+18dBm
-19dBm
-27dBm
60-055901
60-055902
B
C D
A
1
2
J1
J2
-23dBm
-23dBm
-23dBm
-22dBm
-22dBm
-12dBm
-35dBm
-35dBm
-35dBm
-35dBm
-20dBm
-20dBm
-20dBm
-20dBm
T1
T2
T3
T4
T9
5
6
dB
dB
EO
470MHz
483MHz
473MHz
485-486MHz
UNIT 1
UNIT 2
470MHz
EO
AGC
AGC
DET
473MHz
dB
dB
483MHz
AGC
AGC
DET
485-486MHz
HL
483-486MHz
470-475MHz
VHF
LCX
LCX
02-007306
02-007306
02-007306
02-007306
02-011204
02-011204
02-011204
02-011204
12-00180111-007302
11-007302
11-006102 11-007302
20dB 30dB
16dB 20dB 20dB
12-00420111-007302
11-00730211-006102 11-007302
20dB 30dB
16dB 20dB 20dB
02-007306
TUNNEL ONE & TWO
-15dBm
20dBm
20dBm
27dBm
30dBm
28dBm
18dBm
18dBm
-15dBm
-50dBm
-50dBm
-50dBm
-50dBm
-57dBm
-15dBm
-57dBm
-15dBm
-17dBm
60-056001
60-056002
EF G
H I J
3
4
J4
J3
U
T6
T5
02-007306

PBL UHF 1 & 2 Air Interface
Maintenance Handbook
H/book Number:-60-055900HBKM Issue No:-1 Date:-13/02/2003 Page:-25 of 25
5. SUB-UNIT MODULES
5.1 UHF 1 Air Interface (60-055901)
5.1.1 Bandpass Duplexers (02-013401)
5.1.1.1 Description
The bandpass filters are multi-section designs with a bandwidth dependent upon the passband
frequencies, (both tuned to customer requirements). The response shape is basically
Chebyshev with a passband design ripple of 0.1dB. The filters are of combline design, and are
carefully aligned during manufacture in order to optimise the insertion loss, VSWR and
intermodulation characteristics of the unit. The tuned elements are silver-plated to reduce
surface ohmic losses and maintain a good VSWR figure and 50? load at the input and output
ports. Note that the same filter is used for both UHF 1 & 2, but tuned differently depending
on the required frequencies and bandwidth for each air interface.
Being passive devices, the bandpass filters should have an extremely long operational life and
require no maintenance. Should a filter be suspect, it is usually most time efficient to replace
the module rather than attempt repair or re-tuning.
No adjustments should be attempted without full network sweep analysis facilities to monitor
both insertion loss and VSWR simultaneously.
5.1.1.2 Technical Specification
FILTER 1 483.2-483.6 MHz Passband
FILTER 2 486.2-486.6 MHz
FILTER 1 2.7 dB typical Insertion Loss
FILTER 2 2.7 dB typical
FILTER 1 483.2-483.6 MHz > 80 dB Rejection
FILTER 2 486.2-486.6 MHz > 80 dB
Power Rating 250 Watt
Impedance 50 ohm
VSWR Better than 1.2:1
Connectors SMA female

PBL UHF 1 & 2 Air Interface
Maintenance Handbook
H/book Number:-60-055900HBKM Issue No:-1 Date:-13/02/2003 Page:-26 of 26
5.1.2 2 & 4 Way UHF Splitters (05-002603 & 05-003401)
5.1.2.1 Description
The Splitter/Combiners used are UHF (300-500MHz) devices for accurately matching two or
more RF signals to single or multiple ports, whilst maintaining an accurate 50Ω load to all
inputs/outputs and ensuring that the VSWR and insertion losses are kept to a minimum. Any
unused ports will be terminated with an appropriate 50Ω load.
5.1.2.2 Technical Specification (05-002603)
Frequency Range:
380 - 520 MHz
Bandwidth:
140 MHz
Inputs:
1
Outputs:
2
Insertion Loss:
3.5 dB (typical)
Isolation:
>18 dB
Return Loss (VSWR) – Input:
Better than 1.3:1
Return Loss (VSWR) – Output:
Better than 1.3:1
Impedance:
50 ς
Power Rating – Splitter:
20 Watts
Power Rating – Combiner:
0.5 Watt
Connectors:
SMA female
Size:
54 x 44 x 21 mm (including connectors)
Weight:
200 g
5.1.2.3 Technical Specification 05-003401
Frequency range:
70 – 250MHz
Bandwidth:
180MHz
Rejection:
>14dB
Insertion loss:
(in band)
Connectors:
SMA
Weight:
<1.5Kgm
operational:
-10BC to +55BC Temperature
range:
storage
-40BC to +70BC

PBL UHF 1 & 2 Air Interface
Maintenance Handbook
H/book Number:-60-055900HBKM Issue No:-1 Date:-13/02/2003 Page:-27 of 27
5.1.3 ¼Watt 0- -30dB Switched Attenuator (10-000701)
5.1.3.1 General Application
In many practical applications for Cell Enhancers etc., the gain in each path is found to be
excessive. Therefore, provision is made within the unit for the setting of attenuation in
each path, to reduce the gain.
5.1.3.2 Switched Attenuators
The AFL switched attenuators are available in two different types; 0 – 30dB in 2 dB steps
(as in this case), or 0 – 15dB in 1 dB steps. The attenuation is simply set using the four
miniature toggle switches on the top of each unit. Each switch is clearly marked with the
attenuation it provides, and the total attenuation in line is the sum of the values switched
in. They are designed to maintain an accurate 50? impedance over their operating
5.1.4 Low Noise Amplifiers (11-006102, 11-007302 & 11-007402)
5.1.4.1 Description
The low noise amplifiers used are double or single stage solid-state low-noise amplifiers.
Class A circuitry is used in the units to ensure excellent linearity over a very wide dynamic
range. The active devices are very moderately rated to provide a long trouble-free working
life. There are no adjustments on these amplifiers, and in the unlikely event of failure then
the entire amplifier should be replaced. Note that all three amplifiers use similar DC power
circuit boards.
5.1.4.2 Technical Specification (11-006102)
Frequency range:
70 – 500MHz
Bandwidth:
<430MHz
Gain:
15.5dB (typical)
1dB Compression Point:
+31dBm (typical)
3rd order intercept:
+46dBm (typical)
Input return loss:
>20dB
Output return loss:
>20dB
VSWR:
Better than 1.5:1
Noise figure:
<4.8dB
Connectors:
SMA female
Supply:
530mA @ 10 to 24V DC (typical)
operational: -10°C to +60°C
Temperature range: storage: -40°C to +70°C
Weight:
260gms

PBL UHF 1 & 2 Air Interface
Maintenance Handbook
H/book Number:-60-055900HBKM Issue No:-1 Date:-13/02/2003 Page:-28 of 28
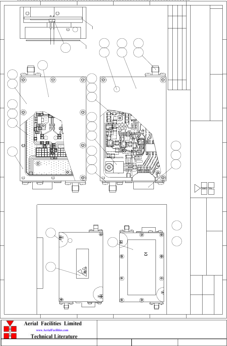
5.1.4.3 Drg. No. 11-006102, Low Noise Amplifier General Assembly
380-500MHz 1W AMPLIFIER
WITH RELAY ASSEMBLY
11-006102
1A
1.5:1
MNR 22/03/02
5 21
2
22
2
4 24
2
IN 2 PLACES
25
4
3
327
17 24
2
8 26 30 27
2
20
2
1533
2
27
5
16 23
5
1
6
IN 2 PLACES
2 25
10
34
see note 3
34
see note 2
35
see note 2
31
IN 4 PLACES
2819
BYDATEDESCRIPTIONNo
ISSUE
1 2 3 4 5 6 7 8 9
A
B
C
D
E
F
1
2
3
4
5
6
7
8
9
F
E
D
A
B
C
Fax : 01494 777002
Tel : 01494 777000
Aerial Facilities Ltd
TWO DECIMAL PLACES ± 0.1mm
ONE DECIMAL PLACE ± 0.3mm
NO DECIMAL PLACE ± 1mm
BY AERIAL FACILITIES LTD.
PERMISSIBLE ONLY IF EXPRESSLY AUTHORISED IN WRITING
REPRODUCTION OR USE OF THIS DESIGN BY OTHERS IS
THIS IS A PROPRIETARY DESIGN OF AERIAL FACILITIES LTD.
DRAWN
CHKD
ALL DIMENSIONS ARE IN mm
UNLESS OTHERWISE STATED
APPD
DATE
TOLERANCES SCALE
England
CUSTOMER DRG.No
TITLE
A
3
PRODUCTION ISSUE
22/03/02
MNR
J5
CON1
J4
REG3
ABC
R40 R50R51
R44R43
COMPONENTS TO BE ADDED TO 11-003912,ITEM 15,DC PCB SUB-ASSEMBLY
DC PCB
RF PCB
R45
R49
L12R12
R14
11-006125 Issue.1
L6
T2
L9
L10
C12
C14
C11
R13
L11
C15
R10
C9
R9
L13
R15
L14
C16
C17
R17
R16
RL1
AFL
S/N ********
IN
DATE **/**/20**
POWER
FREQ.
REF. 11-006102
1W 12-24vDC
380-500MHz
0086
AFL
OUT
SENSITIVE
DEVICES
ELECTROSTATIC
OBSERVE PRECAUTIONS
ATTENTION
FOR HANDLING
see note 2
AFL
LABEL DETAILS - SCALE 1:1
2. LIDS,ITEMS 2 & 3 AND LABELS,ITEMS 31,34 & 35,TO BE FITTED ON TEST
1. SOLDER JOINTS TO BE MADE USING OR

PBL UHF 1 & 2 Air Interface
Maintenance Handbook
H/book Number:-60-055900HBKM Issue No:-1 Date:-13/02/2003 Page:-29 of 29
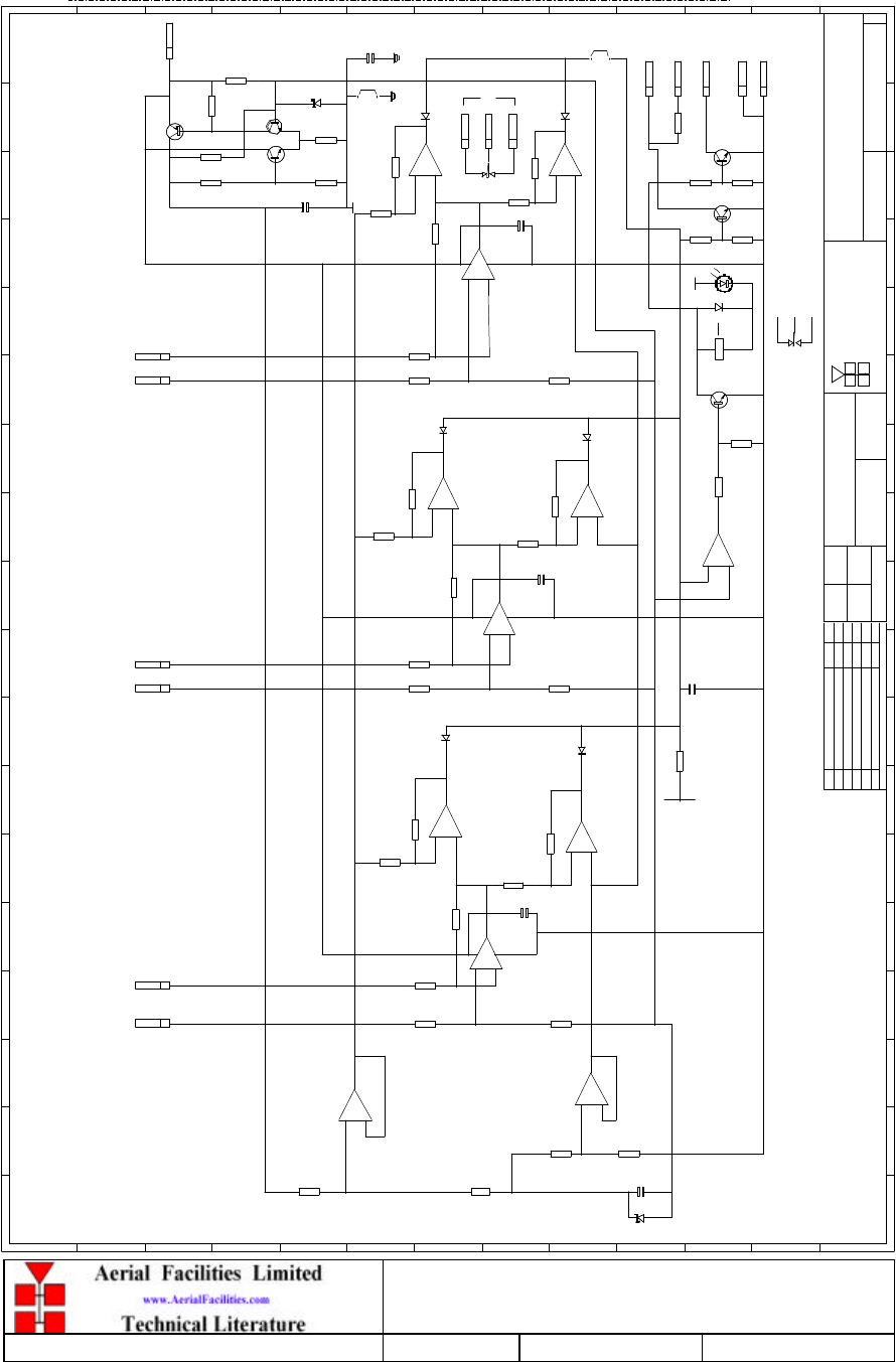
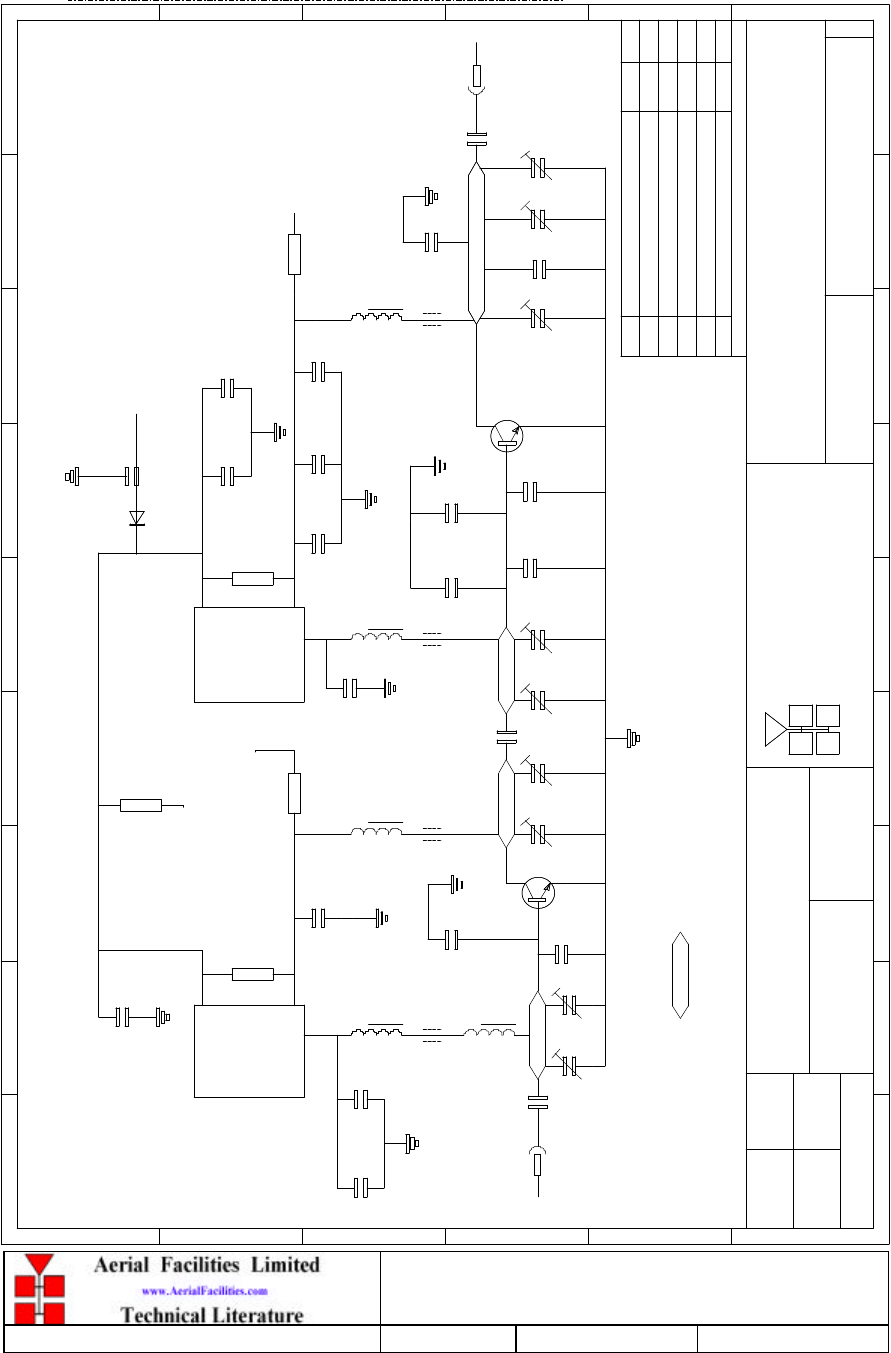
5.1.4.4 Drg. No. 11-006170, LNA RF Circuit Diagram
C1
C2
C3
C7
R6
C8
R11 R12
R5
C5
C6
R7 R8
R1
R2
R3
R4
C4
R13 R14
R9 R10
C10
C14
C13
R15 C16
C17
380-500MHz 1W AMPLIFIER
(RF) CIRCUIT DIAGRAM
11-006170
1A
N.T.S
MNR 23/01/02
C9
C11 C12
R16
R17
C15
DATEDESCRIPTIONNo
ISSUE
THIRD ANGLE PROJECTION
1 2 3 4 5 6 7 8 9 10 11 12
A
B
C
D
E
F
G
H
1 2 3 4 5 6 7 8 9 10 11 12
A
B
C
D
E
F
G
H
PERMISSIBLE ONLY IF EXPRESSLY AUTHORISED IN WRITING
REPRODUCTION OR USE OF THIS DESIGN BY OTHERS IS
THIS IS A PROPRIETARY DESIGN OF AERIAL FACILITIES LTD.
UNLESS OTHERWISE STATED
ALL DIMENSIONS ARE IN mm
DATEDRAWN
CHKD APPD
TWO DECIMAL PLACES ± 0.1mm
NO DECIMAL PLACE ± 1mm
ONE DECIMAL PLACE ± 0.3mm
BY AERIAL FACILITIES LTD.
TOLERANCES SCALE
CUSTOMER DRAWING No
Fax : 01494 777002
Tel : 01494 777000
Aerial Facilities Limited
England
TITLE
2
A
910R
5R6
910R
8.2pF
L1
L2
3.3pF 100R
18nH
L3
18nH
18nH
18nH
L4
6.8pF
220pF
1nF
56R
56R
1nF
220pF
220pF
220pF
220pF
220pF
10K 0R0
10K 0R0
6.8nH
L5
6.8nH
L6
T1
CYL5
G
D
S
G
D
S
CYL5
T2
L7
180nH
180nH
L9
7.5nH
L8
7.5nH
L10
18nH
L11
L12
18nH
18nH
L13
18nH
L14
6.8pF
6.8pF
100R 3.3pF
8.2pF
RF OUT
RF IN
ANY COMPONENTS IN ARE NOT USED IN THIS BUILD
PRODUCTION ISSUE
23/01/02
MNR
0R0
RF OUT
(OPTIONAL)
6.8pF
CB IB

PBL UHF 1 & 2 Air Interface
Maintenance Handbook
H/book Number:-60-055900HBKM Issue No:-1 Date:-13/02/2003 Page:-30 of 30
5.1.4.5 Drg. No. 11-006171, LNA DC Wiring Diagram
380-500MHz 1W AMPLIFIER
SCHEMATIC DIAGRAM
11-006171
1A
MNR 23/01/02
BYDATEDESCRIPTIONNo
ISSUE
1 2 345678 9
A
B
C
D
E
F
1 2 3 4 5 6 7 8 9
A
B
C
D
E
F
Fax : 01494 777002
Tel : 01494 777000
Aerial Facilities Limited
THIS IS A PROPRIETARY DESIGN OF AERIAL FACILITIES LTD.
REPRODUCTION OR USE OF THIS DESIGN BY OTHERS IS
PERMISSIBLE ONLY IF EXPRESSLY AUTHORISED IN WRITING
BY AERIAL FACILITIES LTD.
NO DECIMAL PLACE ± 1mm
ONE DECIMAL PLACE ± 0.3mm
TWO DECIMAL PLACES ± 0.1mm
ALL DIMENSIONS ARE IN mm
UNLESS OTHERWISE STATED
CHKD
DRAWN
APPD
DATE
TOLERANCES SCALE
England
CUSTOMER DRAWING.No
TITLE
3
A
LM7808CT
REG3
G
IO
+6V 220mA
-ve
+6V 220mA
-ve
J4 1
CON2 - J5
CON2 - J4
J4 2
J5 1
J5 2
DC INPUT DC OUTPUT
RF PCB
FOR CIRCUIT DIAGRAM
SEE 11-006170
SEE 11-003971
FOR CIRCUIT DIAGRAM
DC PCB
+8V C
BA
RF
IN
PRODUCTION ISSUE
23/01/02
MNR
OUT
RF
OC GOOD/0v BAD9 CON1
9
RELAY CONTACT GOOD
RELAY COMMON
RELAY CONTACT BAD
PIN OUTS
9 WAY 'D'
TTL VOLTAGE SET
TTL ALARM/0v GOOD
GROUND
+12V DC I/P
7 CON1
8 CON1
5 CON1
4 CON1
6
8
7
5
4
A
3 CON1
2 CON1
3
2
CON1
1
*
*
*
= ONLY APPLIES TO 11-006802
*
CB IB

PBL UHF 1 & 2 Air Interface
Maintenance Handbook
H/book Number:-60-055900HBKM Issue No:-1 Date:-13/02/2003 Page:-31 of 31
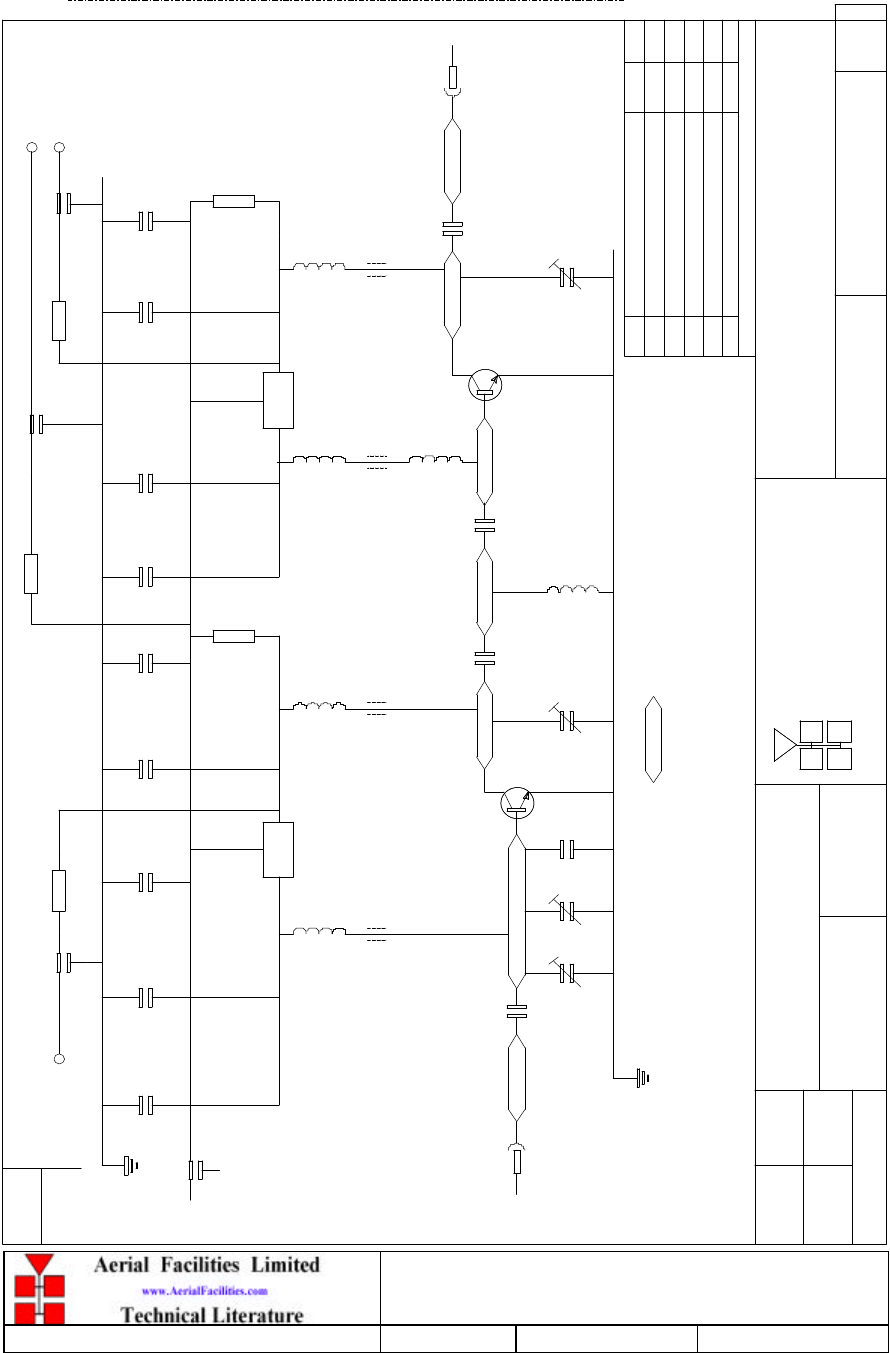
5.1.4.6 Drg. No. 11-003971, LNA DC Schematic Diagram
DC PCB FOR LNA's AND LPA's,
CIRCUIT DIAGRAM
11-003971
DJL 24/09/01
R33
TR7
R32
R31
TR8
R34
R21
R20
TR1
R24
TR2
R23
R22
TR3
R25
R11
R12
R10
R9
C2
R6
R4
R8
R7
C8 R47
C4 C5
R43 R44 R45
C10C11
C15
C17 C16
R52
C14
R49R51 R50
C13
R46
R48
R39 R40
R38
R42
VR1
R41 R53
R54
R55
RL1
1
R35
TR4
TR6
R16 R17
R18
R19R15
C3
R14
R3
R2 R5
R29
R1
R36
R27
R13
C12
C9
R56
R57
C19
C1
C7
C6
C18
R58
R28
BYDATEDESCRIPTIONNo
ISSUE
1 2 345678 9
A
B
C
D
E
F
1 2 3 4 5 6 7 8 9
A
B
C
D
E
F
Chesham(01494)778301
Fax (01494)778910
Aerial Facilities Limited
TWO DECIMAL PLACES ± 0.1mm
ONE DECIMAL PLACE ± 0.3mm
NO DECIMAL PLACE ± 1mm
BY AERIAL FACILITIES LTD.
PERMISSIBLE ONLY IF EXPRESSLY AUTHORISED IN WRITING
REPRODUCTION OR USE OF THIS DESIGN BY OTHERS IS
THIS IS A PROPRIETARY DESIGN OF AERIAL FACILITIES LTD.
DRAWN
CHKD
UNLESS OTHERWISE STATED
ALL DIMENSIONS ARE IN mm
APPD
DATE
TOLERANCES SCALE
England
CUSTOMER DRAWING.No
TITLE
A
3
PROTOTYPE ISSUEAA
24/9/01
DJL
THIRD ANGLE PROJECTION
4K7
BCW71
10K
BCW71
4K7
10K
4K7
10K
BCW71
4K7
10K
4K7
10K
BCW71
120R
3K6
270K
1K
100n
100K
100K
270K
1K
2
+
REG1
I O
A
1K
+ +
+
100n
IC2
8
5
3
4
10u
+
100n
+
3
4
IC3
28
51K REG2
I O
A+
1K
1K
100R
+
-
1
2
3
-
+
5
6
7
-
2
+
3
1
1K
1K 2K2
22K
560R2K4
+
3K
100K
120R
100K
0R
1K8
4K7
56R
4K7
TR5
FZT751
BCW71
1U
BCW71
3V3
D3
9-
+
10
8
12 +
-
13
14
6-
+
5
7
IC1:C
IC1:B
IC1:D
11
4
LM324M
LM324M
LM324M
IC1:A
LM324M
ZD1
1.23V
LL4148
D2 LED1
IC4:B
IC4:A
+
1u
10u
+
10u
1u 1u
>12V DC I/P
10u
ZD3
5.1V 10u
470R
D1
LL4148
CON 1 1
J2 2
9 CON 1
CON 18
4 CON 1
5 CON 1
CON 13
RL1/1
ZD2
100n
4
8
LM337LM
10u
10u
LL4148
1. * IF APPLICABLE, VALUES WILL BE DETERMINED AT A HIGHER LEVEL BOM
ICL7660C
ICL7660C
LM337LM
2
J2 1
1J1
2J5
2J1
1J5
1J3
2J4
2J3
1J4
CON 1
+
1u
470p
+
10u
+
1u
2. CONNECTORS J1-5 TO BE FITTED AS NECESSARY PRODUCTION ISSUE(ECN2359)
26/11/01
TAS1A
V_OUT
V_IN
B
C
A
*
**
* * *
* * *
*
P3
*
7 CON 1
R59
1K
CB IB
2A ECN2518
17/4/02
DJL
P5
P4
RL1/2 P8
P6
P7
P1
P2
0R
*
*
*
*
*
*
*
*
3A ECN2686
25/7/02
DJL

PBL UHF 1 & 2 Air Interface
Maintenance Handbook
H/book Number:-60-055900HBKM Issue No:-1 Date:-13/02/2003 Page:-32 of 32
5.1.4.7 Technical Specification (11-007302)
Frequency range:
380-500MHz
Bandwidth:
<140MHz
Gain:
20-22dB
1dB Compression Point:
+23.5dB (typical)
3rd order intercept:
+36dB (typical)
Input/Output return loss:
>20dB
Noise figure:
<1.3dB
Connectors:
SMA female
Supply:
200-230mA @ 24V DC
operational: -10°C to +55°C
Temperature range: storage: -30°C to +70°C
Weight:
<300gms
Size:
90 x 55 x 30.2 (case only)

PBL UHF 1 & 2 Air Interface
Maintenance Handbook
H/book Number:-60-055900HBKM Issue No:-1 Date:-13/02/2003 Page:-33 of 33
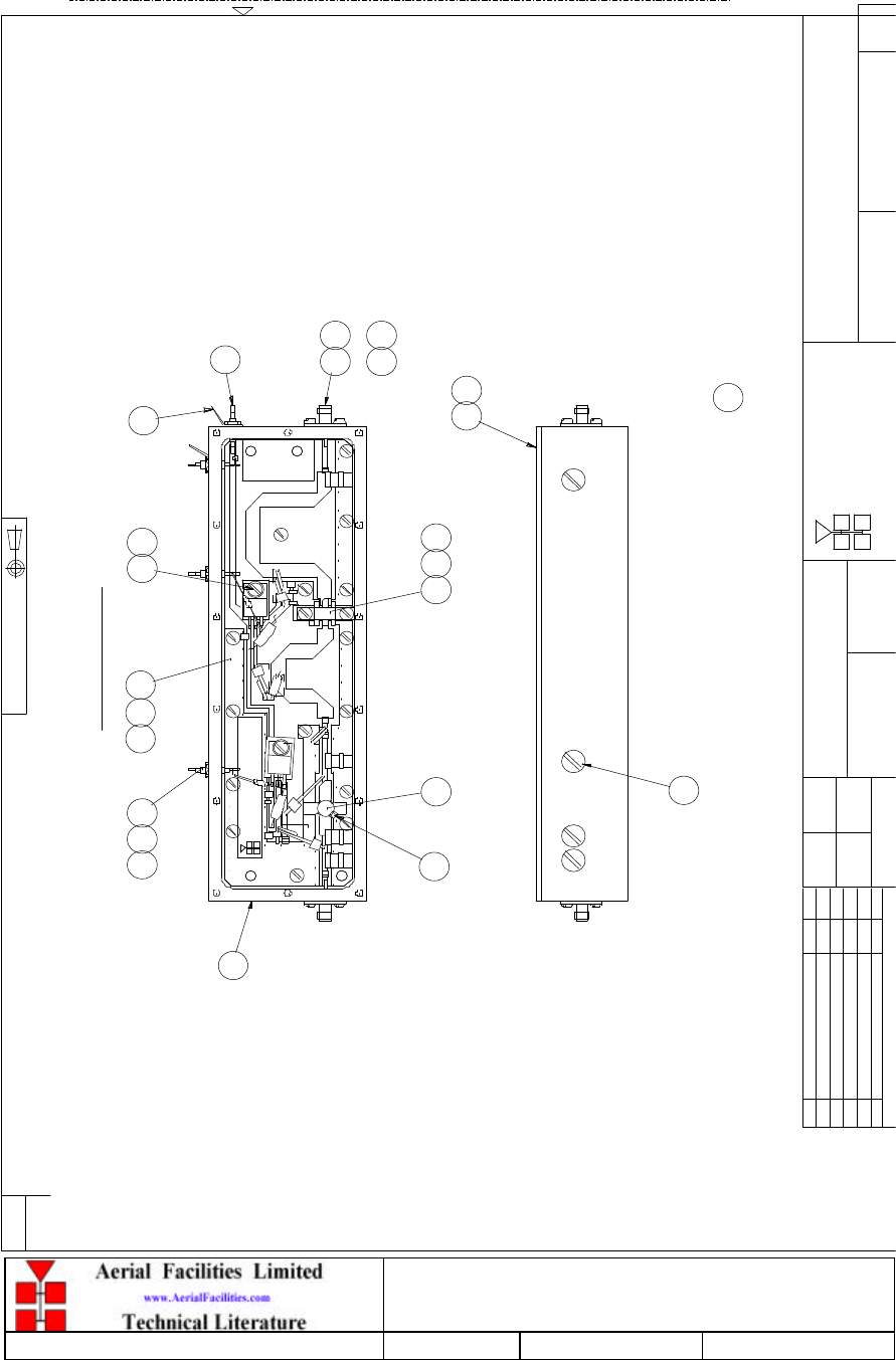
5.1.4.8 Drg. No. 11-007302, LNA Assembly With Alarm Relay
BYDATEDESCRIPTIONNo
ISSUE
1
2
3
4
5
6
7
8
9
A
B
C
D
E
F
1
2
3
4
5
6
7
8
9
F
E
D
A
B
C
Fax : 01494 777002
Tel : 01494 777000
Aerial Facilities Ltd
TWO DECIMAL PLACES ± 0.1mm
ONE DECIMAL PLACE ± 0.3mm
NO DECIMAL PLACE ± 1mm
BY AERIAL FACILITIES LTD.
PERMISSIBLE ONLY IF EXPRESSLY AUTHORISED IN WRITING
REPRODUCTION OR USE OF THIS DESIGN BY OTHERS IS
THIS IS A PROPRIETARY DESIGN OF AERIAL FACILITIES LTD.
DRAWN
CHKD
ALL DIMENSIONS ARE IN mm
UNLESS OTHERWISE STATED
APPD
DATE
TOLERANCES SCALE
England
CUSTOMER DRG.No
TITLE
A
3
LOW NOISE AMPLIFIER 380-500MHz
(20dB) ASSEMBLY DRAWING (WITH RELAY)
11-007302
1A
1.5:1
DBS 9/7/02
PRODUCTION ISSUE
9/7/02
DBS
COMPONENTS TO BE ADDED TO 11-003912,ITEM 15,DC PCB SUB-ASSEMBLY
AFL
SENSITIVE
DEVICES
ELECTROSTATIC
OBSERVE PRECAUTIONS
ATTENTION
FOR HANDLING
AFL
AFL
********
11-007302
380-500MHz
20dB 10-24V DC
**/**/20**
REF.
FREQ.
GAIN
S/N
DATE
0086
IN
34
see note 2
LABEL DETAILS - SCALE 1:1
35
see note 2
see note 2
31
IN 4 PLACES
2. LIDS,ITEMS 2 & 3 AND LABELS,ITEMS 31,34 & 35,TO BE FITTED ON TEST
1. SOLDER JOINTS TO BE MADE USING OR
2819
OUT
6
IN 3 PLACES
3
DC PCB
25
4
7 32
RF PCB
15
W6
21
2
C2
1
22
2
CPL1
R1
C1
RF OUT
R19
W7
C21
5
C9
R2
R16
C5
L1
L3
C4 C8
+
R4
TR1
L5 C12
J31 J32
W5
W2 W1
2 25
10
17 24
2
33
2
27
5
27
2
20
2
16 23
5
24
2
IN 2 PLACES
4
268 30
R39
REG3
J3 J1J2
R50 R49
R44R43
RL1
CON1
CB IB

PBL UHF 1 & 2 Air Interface
Maintenance Handbook
H/book Number:-60-055900HBKM Issue No:-1 Date:-13/02/2003 Page:-34 of 34
5.1.4.9 Drg. No. 11-007370, LNA RF Circuit Diagram
BYDATEDESCRIPTIONNo
ISSUE
1 2 345678 9
A
B
C
D
E
1 2 3 4 5 6 7 8 9
A
B
C
D
E
F
Fax : 01494 777002
Tel : 01494 777000
Aerial Facilities Limited
THIS IS A PROPRIETARY DESIGN OF AERIAL FACILITIES LTD.
REPRODUCTION OR USE OF THIS DESIGN BY OTHERS IS
PERMISSIBLE ONLY IF EXPRESSLY AUTHORISED IN WRITING
BY AERIAL FACILITIES LTD.
NO DECIMAL PLACE ± 1mm
ONE DECIMAL PLACE ± 0.3mm
TWO DECIMAL PLACES ± 0.1mm
ALL DIMENSIONS ARE IN mm
UNLESS OTHERWISE STATED
CHKD
DRAWN
FAPPD
DATE
TOLERANCES SCALE
England
CUSTOMER DRAWING.No
TITLE
3
A
LOW NOISE AMPLIFIER 380-500MHz
(20dB) RF PCB CIRCUIT DIAGRAM
11-007370
1A
-
DBS 5/7/02
CLY2
TR2
RF INPUT
R1
51R
11303-3
CPL1
1nF
C3
Ø1.6x6 turns
L2
3.3pF
C7
L4
330nH
R3
100R 10K
R6
1nF
C6
1nF
C1
C4
3.3pF
Ø1.6x6 turns
L1
330nH
L3
100R
R2 R5
10K
J31
C5
1nF
TR1
CLY2
560R
R7
100nH
L6
C10
1nF
C9
1nF
R4
560R
100nH
L5
1nF
C13
1nF
C12
51R
R8
11303-3
CPL2
R9
R11
0R0
R10
0R0
W1
W5
0R0
RF OUTPUT
0R0
W6
0R0
R19
HEADER PIN
HEADER PIN
J32
HEADER PIN
J12
HEADER PIN
J11
PRODUCTION ISSUE
5/7/02
DBS
0R0
W2
0R0
W7
ATTENUATOR GROUP
(Select values on Test)
D
G S
D
G S
ECN2718 DBS
19/9/02
2A
CB IB

PBL UHF 1 & 2 Air Interface
Maintenance Handbook
H/book Number:-60-055900HBKM Issue No:-1 Date:-13/02/2003 Page:-35 of 35
5.1.4.10 Drg. No. 11-007371, LNA DC Wiring Diagram
BYDATEDESCRIPTIONNo
ISSUE
1 2 345678 9
A
B
C
D
E
F
1 2 3 4 5 6 7 8 9
A
B
C
D
E
F
Fax : 01494 777002
Tel : 01494 777000
Aerial Facilities Limited
THIS IS A PROPRIETARY DESIGN OF AERIAL FACILITIES LTD.
REPRODUCTION OR USE OF THIS DESIGN BY OTHERS IS
PERMISSIBLE ONLY IF EXPRESSLY AUTHORISED IN WRITING
BY AERIAL FACILITIES LTD.
NO DECIMAL PLACE ± 1mm
ONE DECIMAL PLACE ± 0.3mm
TWO DECIMAL PLACES ± 0.1mm
ALL DIMENSIONS ARE IN mm
UNLESS OTHERWISE STATED
CHKD
DRAWN
APPD
DATE
TOLERANCES SCALE
England
CUSTOMER DRAWING.No
TITLE
3
A
LOW NOISE AMPLIFIER. 380-500MHz
(20dB) RF SCHEMATIC DIAGRAM
11-007371
1A
-
DBS 8/7/02
LM7808CT
REG3
G
IO
-ve
J11 - J12
DC INPUT DC OUTPUT
RF PCB
FOR CIRCUIT DIAGRAM
SEE 11-007370
SEE 11-003971
FOR CIRCUIT DIAGRAM
DC PCB
+8V C
BA
RF
IN
PRODUCTION ISSUE
8/7/02
DBS
OUT
RF
OC GOOD/0v BAD9 CON1
9
RELAY CONTACT GOOD
RELAY COMMON
RELAY CONTACT BAD
PIN OUTS
9 WAY 'D'
TTL VOLTAGE SET
TTL ALARM/0v GOOD
GROUND
10-24V DC I/P
7 CON1
8 CON1
5 CON1
4 CON1
6
8
7
5
4
A
3 CON1
2 CON1
3
2
CON1
1
5V 75mA
-ve
J31 - J32
J31 1
J32 2
J12 2
J11 15V 75mA
CB IB

PBL UHF 1 & 2 Air Interface
Maintenance Handbook
H/book Number:-60-055900HBKM Issue No:-1 Date:-13/02/2003 Page:-36 of 36
5.1.4.11 Technical Specification (11-007402)
Frequency range:
380-500MHz
Bandwidth:
<140MHz
Gain:
30-32dB
1dB Compression Point:
+22dB (typical)
3rd order intercept:
+34dB (typical)
Input/Output return loss:
>19dB
Noise figure:
<1.3dB
Connectors:
SMA female
Supply:
300-330mA @ 10-24V DC
operational: -10°C to +55°C
Temperature range: storage: -30°C to +70°C
Weight:
<300gms
Size:
90 x 55 x 30.2 (case only)

PBL UHF 1 & 2 Air Interface
Maintenance Handbook
H/book Number:-60-055900HBKM Issue No:-1 Date:-13/02/2003 Page:-37 of 37
5.1.4.12 Drg. No. 11-007402, LNA General Assembly
LOW NOISE AMPLIFIER 380-500MHz
(30dB) ASSEMBLY DRAWING (WITH RELAY)
11-007402
1A
1.5:1
DBS 9/7/02
2819
31
IN 4 PLACES
34
see note 2
35
see note 2
26
15
21
2
8
2 25
10
17 24
2
33
2
6
IN 3 PLACES
27
5
27
2
20
2
16 23
5
3 25
4
7 32
30
24
2
IN 2 PLACES
4
1
22
2
5
BYDATEDESCRIPTIONNo
ISSUE
1
2
3
4
5
6
7
8
9
A
B
C
D
E
F
1
2
3
4
5
6
7
8
9
F
E
D
A
B
C
Fax : 01494 777002
Tel : 01494 777000
Aerial Facilities Ltd
TWO DECIMAL PLACES ± 0.1mm
ONE DECIMAL PLACE ± 0.3mm
NO DECIMAL PLACE ± 1mm
BY AERIAL FACILITIES LTD.
PERMISSIBLE ONLY IF EXPRESSLY AUTHORISED IN WRITING
REPRODUCTION OR USE OF THIS DESIGN BY OTHERS IS
THIS IS A PROPRIETARY DESIGN OF AERIAL FACILITIES LTD.
DRAWN
CHKD
ALL DIMENSIONS ARE IN mm
UNLESS OTHERWISE STATED
APPD
DATE
TOLERANCES SCALE
England
CUSTOMER DRG.No
TITLE
A
3
PRODUCTION ISSUE
9/7/02
DBS
COMPONENTS TO BE ADDED TO 11-003912,ITEM 15,DC PCB SUB-ASSEMBLY
2. LIDS,ITEMS 2 & 3 AND LABELS,ITEMS 31,34 & 35,TO BE FITTED ON TEST
1. SOLDER JOINTS TO BE MADE USING OR
LABEL DETAILS - SCALE 1:1
AFL
S/N ********
DATE **/**/20**
see note 2
GAIN
FREQ.
REF.
30dB 10-24V DC
380-500MHz
11-007402
OUT
0086
AFL
IN
SENSITIVE
DEVICES
ELECTROSTATIC
OBSERVE PRECAUTIONS
ATTENTION
FOR HANDLING
AFL
W6
C2
CPL1
R1
C1
C23
TR3
C24
RF OUT
R19
C22
W7
C21
C9
R2
C15
R17C20
R16
C5
L1
L3
R18
C4 C8
+
R4
TR1
L5 C12
J31 J32
R15 R12
R13
L7 W5 W3
C19
W4
R14
W2
C18
C16
C17
ZD1
IC1
C14
W1 +
DC PCB RF PCB
R39
REG3
IC4
R41
J3 J1J2
R49R50
R57
R44R43
CON1
RL1
R53
R54
R55
ECN2722 DBS
24/9/02
2A
CB IB

PBL UHF 1 & 2 Air Interface
Maintenance Handbook
H/book Number:-60-055900HBKM Issue No:-1 Date:-13/02/2003 Page:-38 of 38
5.1.4.13 Drg. No. 11-007470, LNA RF Circuit Diagram
LOW NOISE AMPLIFIER 380-500MHz
(30dB) RF PCB CIRCUIT DIAGRAM
11-007470
1A
-
DBS 5/7/02
BYDATEDESCRIPTIONNo
ISSUE
1 2 345678 9
A
B
C
D
E
1 2 3 4 5 6 7 8 9
A
B
C
D
E
F
Fax : 01494 777002
Tel : 01494 777000
Aerial Facilities Limited
THIS IS A PROPRIETARY DESIGN OF AERIAL FACILITIES LTD.
REPRODUCTION OR USE OF THIS DESIGN BY OTHERS IS
PERMISSIBLE ONLY IF EXPRESSLY AUTHORISED IN WRITING
BY AERIAL FACILITIES LTD.
NO DECIMAL PLACE ± 1mm
ONE DECIMAL PLACE ± 0.3mm
TWO DECIMAL PLACES ± 0.1mm
ALL DIMENSIONS ARE IN mm
UNLESS OTHERWISE STATED
CHKD
DRAWN
FAPPD
DATE
TOLERANCES SCALE
England
CUSTOMER DRAWING.No
TITLE
3
A
CLY2
G S
D
TR2
RF INPUT
R1
51R
11303-3
CPL1
1nF
C3
Ø1.6x6 turns
L2
3.3pF
C7
L4
330nH
R3
100R 10K
R6
1nF
C6
1nF
C1
C4
3.3pF
Ø1.6x6 turns
L1
330nH
L3
100R
R2 R5
10K
J31
C5
1nF
TR1
CLY2
560R
R7
100nH
L6
C10
1nF
C9
1nF
R4
560R100nH
L5
1nF
C13
1nF
C12
51R
R8
11303-3
CPL2
HEADER PIN
HEADER PIN
J32
HEADER PIN
J12
HEADER PIN
J11
PRODUCTION ISSUE
5/7/02
DBS
HEADER PIN
R11
22R
R10
R9
240R
240R
W1
0R0
1nF
W2
510R
R13
CLY2
W7
1nF
4 8
J22
HEADER PIN
ZD1
4V7
5
10uF
C14 +
7660
IC1
2
RF OUTPUT
+
C15
10uF
1K5
R12
10K
R16
C18
R19
0R0
1nF
BCW61B
C17
1nF
R18
1K5
TR3
C22C23
1nF 1nF
C2
1nF
C20
10nF
0R0
R15
1K2
10K
R17 1K2
R14 W3
1.5pF
W6
330nH
L7
220pF
C19
68nH
W4
S
D
G
2.2pF
C21
W5
J21
ATTENUATOR GROUP
(Select values on test)
SG
D
5R6
ECN2722 DBS
24/9/02
2A
CB IB

PBL UHF 1 & 2 Air Interface
Maintenance Handbook
H/book Number:-60-055900HBKM Issue No:-1 Date:-13/02/2003 Page:-39 of 39
5.1.4.14 Drg. No. 11-007471 LNA DC Wiring Diagram
LOW NOISE AMPLIFIER. 380-500MHz
(30dB) SCHEMATIC DIAGRAM
11-007471
1A
-
DBS 8/7/02
BYDATEDESCRIPTIONNo
ISSUE
1 2 345678 9
A
B
C
D
E
F
1 2 3 4 5 6 7 8 9
A
B
C
D
E
F
Fax : 01494 777002
Tel : 01494 777000
Aerial Facilities Limited
THIS IS A PROPRIETARY DESIGN OF AERIAL FACILITIES LTD.
REPRODUCTION OR USE OF THIS DESIGN BY OTHERS IS
PERMISSIBLE ONLY IF EXPRESSLY AUTHORISED IN WRITING
BY AERIAL FACILITIES LTD.
NO DECIMAL PLACE ± 1mm
ONE DECIMAL PLACE ± 0.3mm
TWO DECIMAL PLACES ± 0.1mm
ALL DIMENSIONS ARE IN mm
UNLESS OTHERWISE STATED
CHKD
DRAWN
APPD
DATE
TOLERANCES SCALE
England
CUSTOMER DRAWING.No
TITLE
3
A
LM7808CT
REG3
G
IO
8V
-ve
J11 - J12
J21 - J22
DC INPUT DC OUTPUT
RF PCB
FOR CIRCUIT DIAGRAM
SEE 11-007470
SEE 11-003971
FOR CIRCUIT DIAGRAM
DC PCB
+8V C
BA
RF
IN
PRODUCTION ISSUE
8/7/02
DBS
OUT
RF
OC GOOD/0v BAD9 CON1
9
RELAY CONTACT GOOD
RELAY COMMON
RELAY CONTACT BAD
PIN OUTS
9 WAY 'D'
TTL VOLTAGE SET
TTL ALARM/0v GOOD
GROUND
10-24V DC I/P
7 CON1
8 CON1
5 CON1
4 CON1
6
8
7
5
4
A
3 CON1
2 CON1
3
2
CON1
1
5V 75mA
-ve
J31 - J32
J31 1
J32 2
J22 2
J21 1
J12 2
J11 1
5V
5V 75mA
CB IB

PBL UHF 1 & 2 Air Interface
Maintenance Handbook
H/book Number:-60-055900HBKM Issue No:-1 Date:-13/02/2003 Page:-40 of 40
5.1.5 5Watt Power Amplifier (12-001801)
5.1.5.1 Description
The power amplifier fitted to this unit is a multi-stage, solid state class A power amplifier.
All the semi-conductor devices are very conservatively rated to ensure low device junction
temperatures and a long, trouble free working lifetime.
The power amplifier should require no maintenance over its operating life. Under no
circumstances should the cover be removed or the side adjustments disturbed unless it is
certain that the amplifier has failed; since it is critically aligned during manufacture and any
re-alignment will require extensive test equipment.
5.1.5.2 Technical Specification
Frequency Range:
400 - 500MHz (tuned to spec.)
Bandwidth:
20MHz (typical, tuneable)
Maximum Output Power:
>5W
Gain:
30dB
3rd Order Intercept Point:
<+37dBm
1dB Compression Point:
<+48dBm
VSWR:
better than 1.45:1
Connectors:
SMA female
Supply:
1.25A @ 24V DC
operational:
-10°C to +55°C
Temperature range: storage:
-40°C to +70°C
Size:
276 x 78 x 40mm (case only)
Weight:
1.5 kg (excluding heatsink)

PBL UHF 1 & 2 Air Interface
Maintenance Handbook
H/book Number:-60-055900HBKM Issue No:-1 Date:-13/02/2003 Page:-41 of 41
5.1.5.3 Drg. No. 12-001801, 5Watt PA General Assembly Drawing
POWER AMPLIFIER,450MHz,5W
GENERAL ASSEMBLY
12-001801 2B
1:1
DBS 14/09/92
15 14
20
1
2 P0SNS
24
1
11
8
1
18
4
9
1
18
4
18
2
23
2
12
23
15
18
15
1
4
5 19
21
1
IN 4 POSNS
26
111325
IN 3 PLACES
16
IN 2 PLACES
DATEDESCRIPTIONNo
ISSUE
THIRD ANGLE PROJECTION
USED ON
DRAWN DATE
CHKD APPD
ALL DIMENSIONS ARE IN mm
UNLESS OTHERWISE STATED
THIS IS A PROPRIETARY DESIGN OF AERIAL FACILITIES LTD.
REPRODUCTION OR USE OF THIS DESIGN BY OTHERS IS
PERMISSIBLE ONLY IF EXPRESSLY AUTHORISED IN WRITING
BY AERIAL FACILITIES LTD.
TOLERANCES
NO DECIMAL PLACE ± 1mm
ONE DECIMAL PLACE ± 0.3mm
TWO DECIMAL PLACES ± 0.1mm
SCALE
TITLE
CUSTOMER DRG.No ISS
Aerial Facilities Ltd
England
Little Chalfont(0494)763636
Fax (0494)764838
2
A
Issue 1
12-1825-3Aerial Facilities
Limited
+
+
++
L5
24V DC INPUT
FB2
FB1
FB4
FB3
C11
+
+
++
C8
INPUT OUTPUT
TR2
C9
L3
C10C12
R2
C13 REG2
C4
L6
C7C6
C5C3
C2
C1 TR1
L4
REG1
L1 L2
R1
C18
C17
C16 C15
C14
TRIM 2 TABS
TO SUIT PCB.
FIT WITH CHAMFERED
TAB IN DIRECTION
SHOWN -->
FIT WITH CHAMFERED
TAB IN DIRECTION
SHOWN -->
IN 2 POSNS
OR
PLAN VIEW WITH LID REMOVED
1 PRODUCTION ISSUE
16/9/92
DBS
COMPLETE ALL SOLDERING USING ITEM
2 CR0521
27/1/94
DJL
2A PRODUCTION ISSUE (CR0962)
23/12/98
SEW
2B TITLE EDITED
08/11/01
TAS

PBL UHF 1 & 2 Air Interface
Maintenance Handbook
H/book Number:-60-055900HBKM Issue No:-1 Date:-13/02/2003 Page:-42 of 42
5.1.5.4 Drg. No. 12-001870, 5Watt PA Circuit Diagram
POWER AMPLIFIER,450MHz,10W
CIRCUIT DIAGRAM
12-001870 2A
DBS 19/09/92
C14
C19
TR1
L5
FB4
R1
C1
RF INPUT
C5
L4
C6 C7
L6
FB2
L2
TR2
C9 RF OUTPUT
L3
FB3
C8
FB1
L1
C13
R2
C11C17 C18 C12C16 C10C15
C4
C21
R4
C22
R5
R3
C20
BYDATEDESCRIPTIONNo
ISSUE
USED ON
Fax (0494)764838
Little Chalfont(0494)763636
England
Aerial Facilities Ltd
ISSCUSTOMER DRG.No
TITLE
SCALE
TWO DECIMAL PLACES ± 0.1mm
ONE DECIMAL PLACE ± 0.3mm
NO DECIMAL PLACE ± 1mm
TOLERANCES
BY AERIAL FACILITIES LTD.
PERMISSIBLE ONLY IF EXPRESSLY AUTHORISED IN WRITING
REPRODUCTION OR USE OF THIS DESIGN BY OTHERS IS
THIS IS A PROPRIETARY DESIGN OF AERIAL FACILITIES LTD.
UNLESS OTHERWISE STATED
ALL DIMENSIONS ARE IN mm
APPD
CHKD
DATEDRAWN
A
3
+ +
C2
C3
+ +
REG1 REG2
24V DC INPUT
CONDUCTORS SHOWN THUS: ARE 50 ohm STRIPLINES
REFER TO 12-1801-2 & 12-1802-3 FOR COMPONENT POSITIONS
REFER TO COMPONENT LISTS 12-1870-C1 & C2 FOR COMPONENT VALUES
12-1801
in
out
adj
in
adj
out
1 PRODUCTION ISSUE
19/9/92
DBS
2 CR0521 DJL
27/1/94
1n 1n
1n
1K
1K
1K
REF.
MONITOR
2nd STAGE
MONITOR
1st STAGE
1u220p 1u 560p 10n 220p 10n1u 1u
5R6 1R2
LM337TLM337T
1u
TCC596
TP5015
56p
1-14p1-14p1-14p
1-14p
56p
56p 120p
27p
2A PRODUCTION ISSUE (CR0962)
19/1/99
SEW

PBL UHF 1 & 2 Air Interface
Maintenance Handbook
H/book Number:-60-055900HBKM Issue No:-1 Date:-13/02/2003 Page:-43 of 43
5.1.5.5 Drg. No. 12-001870C1, 5W PA Component List(1)

PBL UHF 1 & 2 Air Interface
Maintenance Handbook
H/book Number:-60-055900HBKM Issue No:-1 Date:-13/02/2003 Page:-44 of 44
5.1.5.6 Drg. No. 12-001870C2, 5W PA Component List(2)

PBL UHF 1 & 2 Air Interface
Maintenance Handbook
H/book Number:-60-055900HBKM Issue No:-1 Date:-13/02/2003 Page:-45 of 45
5.1.5.7 Drg. No. 80-008450, Power Amplifier/Alarm Board DC Wiring Details

PBL UHF 1 & 2 Air Interface
Maintenance Handbook
H/book Number:-60-055900HBKM Issue No:-1 Date:-13/02/2003 Page:-46 of 46
5.1.6 3 Stage Amplifier Alarm Boards (12-002201)
5.1.6.1 Description
Amplifier Alarm Boards are fitted to monitor the bias conditions of AFL Class A amplifiers
which remain constant in normal operation. Any departure from normal bias conditions is a
result of device failure, excess temperature, over-driving or oscillation (excessive power).
In normal operation, the Class A bias circuit of the amplifier develops a constant voltage of
1.20V across the collector current setting resistor. The Amplifier Alarm Board is a
window comparator device, which is adjusted to sense a departure from this condition.
Several different alarm outputs are provided to simplify interfacing, (Relay Contact, Open
Collector, and TTL Logic Levels)
The basic version of the Alarm Board (12-002801) monitors a single amplifier stage. A
three-stage version (12-002201) is used on complex amplifiers where three separate
comparators have their outputs logically combined to a common output stage. Failure of
any one stage will activate the alarms.
Note that the alarm board has a green Light Emitting Diode located near to the centre of
the printed circuit board, which is illuminated on ‘Good’, and extinguished on ‘Alarm’. It
is therefore a simple matter to identify an active module failure, by searching for an Alarm
Board which has its green LED extinguished. A simple test of the alarm board is possible
by shorting across the monitor inputs, pins 1 and 2, 3 and 4 or across pins 5 and 6. This
last monitor input is inactive if the board has been converted to a two way alarm board.
(Refer to relevant amplifier alarm wiring diagram.)
1) Volt-free change over relay contacts.
2) Open collector NPN transistor pulls low on alarm.
3) TTL driver.
The use of precision voltage sources and resistors has eliminated the need for initial
adjustment or calibration, and the board will function correctly with a wide variation in
power supply voltage (8 to 30 volts, nominal supply is 12 or 24Volts).
There are two selectable link options on the three-way board:
LINK1 - Removed to convert to two-way alarm board.
LINK2 - Removed to isolate 0V from chassis earth.
The one way alarm board only has the 0V isolation link (LINK2) fitted.

PBL UHF 1 & 2 Air Interface
Maintenance Handbook
H/book Number:-60-055900HBKM Issue No:-1 Date:-13/02/2003 Page:-47 of 47
5.1.6.2 Technical Specification
Operating voltage: 8 to 30V (floating earth)
Alarm Threshold: Vcc - 1.20 volt +15%
Alarm output relay contacts:
Max. switch current: 1.0Amp
Max. switch volts: 120Vdc/60VA
Max. switch power: 24W/60VA
Min. switch load: 10.0µA/10.0mV
Relay isolation: 1.5kV
Mechanical life: >2x107 operations
Relay approval: BT type 56
Connector details: 15-way 0.1" pitch
operational: :-10°C to +55°C
Temperature range: storage: :-40°C to +70°C
74 x 56mm (3 stage)
PCB Size: 54 x 56mm (1 stage)

PBL UHF 1 & 2 Air Interface
Maintenance Handbook
H/book Number:-60-055900HBKM Issue No:-1 Date:-13/02/2003 Page:-48 of 48
5.1.6.3 Drg. No. 12-002201, 3 Stage Alarm Board Assembly Drawing & Parts List

PBL UHF 1 & 2 Air Interface
Maintenance Handbook
H/book Number:-60-055900HBKM Issue No:-1 Date:-13/02/2003 Page:-49 of 49
5.1.6.4 Drg. No. 12-002270, 3 Stage Alarm Board Circuit Diagram
3 STAGE AMPLIFIER ALARM BOARD
CIRCUIT DIAGRAM
12-002270
1
N.T.S
MRB 11/8/93
BYDATEDESCRIPTIONNo
ISSUE
1 2 3 4 5 67 8 9 10 11 12 13 14 15 16 17 18
A
B
C
D
E
F
G
H
I
J
K
L
M
A
B
C
D
E
F
G
H
I
J
K
L
1 2 3 4 5 6 7 8 9 10 11 12 13 14 15 16
17
18
M
UNLESS OTHERWISE STATED
ALL DIMENSIONS ARE IN mm
DRAWN
CHKD
CUSTOMER DRAWING No
PERMISSIBLE ONLY IF EXPRESSLY AUTHORISED IN WRITING
THIS IS A PROPRIETARY DESIGN OF AERIAL FACILITIES LTD.
NO DECIMAL PLACE ± 1mm
TWO DECIMAL PLACES ± 0.1mm
ONE DECIMAL PLACE ± 0.3mm
BY AERIAL FACILITIES LTD.
REPRODUCTION OR USE OF THIS DESIGN BY OTHERS IS
APPD
DATE
TOLERANCES SCALE Tel : 01494 777000
Fax : 01494 777002
Aerial Facilities Limited
England
TITLE
1
A
+
-
IC1
+
-
IC1
+
-
IC1
+
-
IC1
CONN11
TTL ALARM
CONN
+5v TTL IN
12
CONN
0V
15
CONN
ALARM 0v
14
CONN
O/C ALARM
13
7
+8v TO +30v
CONN
1CONN
CONN2
CONN3
CONN4
CONN5
CONN6
MONITOR 1
INPUT
HI LOW HI
MONITOR 2
INPUT
LOW HI
MONITOR 3
INPUT
LOW
9 CONN
CONN10
CONN8
CONTACTS
ALARM
R1
1K8
+
-
IC3
5
6
7
R2
120R
R3
120R
R4
3K6
R6
100K
R5
100K
R7
100K
R9
1K
2
3
1
+
-
IC3
4
11
R11
1K
100K
R15
1K
R17
100K
R23
100K
R22
1K
R19
100K
R14
100K
R13
100K
R21
R25
1K
R27
1K
R37
2K4
R39
560R
R26
270K
270K
R18
R24
100K
R28
270K
R20
270K
R16
100K
R10
270K
R8
100K
R12
270K
R42
4K7
R29
4K7
R35
1K
R40
2K2
R41
22K
R38
1K
R36
3K
2K2
R30
4K7
R32 4K7
R34
10K
R33
10K
R31
TR3
BCW71BCW71
TR2
BCW71
TR1
6
5
7
+
-
IC2
10
9
8
+
-
IC3
3
2
4
11
1
12
13
14
+
-
IC3
+
-
IC2
12
13
14
10
9
8
3
2
4
1
11
+
-
IC2
+
-
IC2
5
6
7
10
9
8
12
13
14
D1
1.23v
SR12D
+C1
1uF
C2
100n
1u
C7
100n
C3
100n
C4
1.0
C8
3v3
D9
TR6
FZT751
TR4
BCW71 BCW71
TR4
100n
C6
LK2
D7
D6
LK1
D4
D5
D2
D3
D8
LED1
REL
-
RL1
+
OP AMP
6
7
RL1/2
8
+7.5v
+7.5v
2
+7.5v +7.5v
VCC VCC
0v 0v
CR0508 14/1/94 MRB
IC1 , IC2 & IC3 = LM324AM
ALL DIODES = LL4148 UNLESS MARKED OTHERWISE
4
RL2/2 3
2
NOT USED
VCC
PRODUCTION ISSUE 11/9/93 MRB
PRODUCTION ISSUE 29/8/00 MNR
2
2A
0v
RB RB

PBL UHF 1 & 2 Air Interface
Maintenance Handbook
H/book Number:-60-055900HBKM Issue No:-1 Date:-13/02/2003 Page:-50 of 50
5.1.6.5 Generic Wall Enclosure Alarm Wiring Sketch

PBL UHF 1 & 2 Air Interface
Maintenance Handbook
H/book Number:-60-055900HBKM Issue No:-1 Date:-13/02/2003 Page:-51 of 51
5.1.7 DC/DC Converter, 24V in, 12V 8A out (13-003011)
5.1.7.1 Description
The DC/DC converter fitted is an AFL assembled, high power PCB unit with an 8 amp @
12V output capability. The circuit is basically an O.E.M semiconductor regulator (one side of
which has a heatsink mounting plate, that is usually bolted to the casing of a Cell Enhancer)
and smoothing components built onto a printed circuit board with screw block terminations.
Note: no circuit diagram of the O.E.M. regulator is available. This unit should not be
repaired, only replaced.
5.1.7.2 Technical Specification
Input Voltage Range: 18-28V DC
Output Voltage: 12V±0.5V
Max. Current Load: 8.0Amps
Operation: -10°C to +55°C Temperature
Range: Storage: -40°C to +70°C
Size(PCB): 190 x 63mm
Weight (Loaded PCB): 291gms

PBL UHF 1 & 2 Air Interface
Maintenance Handbook
H/book Number:-60-055900HBKM Issue No:-1 Date:-13/02/2003 Page:-52 of 52
5.1.8 Channel Selective & Channel Control Modules (17-003012 & 17-002101)
5.1.8.1 Channel Selective Module Description
The channel selectivity module is employed when the Cell Enhancer requirement dictates that
very narrow bandwidths (single operating channels), must be selected from within the
operating passband. One channel selectivity module is required for each channel.
The Channel Selectivity Module is an Up/Down frequency converter that mixes the incoming
channel frequency with a synthesised local oscillator, so that it is down-converted to an
Intermediate Frequency (IF) in the upper HF range. An eight pole crystal filter in the IF
amplifier provides the required selectivity to define the operating passband of the Cell
Enhancer to a single PMR channel. The same local oscillator then converts the selected IF
signal back to the channel frequency.
Selectivity is obtained from a fixed bandwidth block filter operating at an intermediate
frequency (IF) in the low VHF range. This filter may be internal to the channel selectivity
module (Crystal or SAW filter) or an externally mounted bandpass filter, (LC or Helical
Resonator). Various IF bandwidths can therefore be accommodated. A synthesized Local
Oscillator is employed in conjunction with high performance frequency mixers, to translate
between the signal frequency and IF.
The operating frequency of each channel selectivity module is set by the programming of
channel selectivity module frequencies and is achieved digitally, via hard wired links, banks of
DIP switches, or via an onboard RS232 control module, providing the ability to remotely set
channel frequencies.
Automatic Level Control (ALC) is provided within each channel selectivity module such that
the output level is held constant for high level input signals. This feature prevents saturation of
the output mixer and of the associated amplifiers.
Alarms within the module inhibit the channel if the synthesised frequency is not locked. The
synthesiser will not usually go out of lock unless a frequency far out of band is programmed.
The channel selectivity module is extremely complex and, with the exception of channel
frequency programming within the design bandwidth, it cannot be adjusted or repaired without
extensive laboratory facilities and the necessary specialised personnel. If a fault is suspected
with any channel selectivity module it should be tested by substitution and the complete,
suspect module should then be returned to AFL for investigation.

PBL UHF 1 & 2 Air Interface
Maintenance Handbook
H/book Number:-60-055900HBKM Issue No:-1 Date:-13/02/2003 Page:-53 of 53
5.1.8.2 Drg. No. 17-003080, Generic Channel Module Block Diagram

PBL UHF 1 & 2 Air Interface
Maintenance Handbook
H/book Number:-60-055900HBKM Issue No:-1 Date:-13/02/2003 Page:-54 of 54
5.1.8.3 Channel Selectivity Control Module Description
The control module consists of a bank of four, in-line data switches each of which control
one channel module frequency setting. One controller can therefore control four channel
modules. The following list shows the frequencies available for each switch setting.
5.1.8.4 Channel Controller DIP Switch Configuration Frequencies
IDC PIN 25-way Connector Function
1 13 Freq. bit 1 (12.5kHz)
2 25 Freq. bit 2 (25kHz)
3 12 Freq. bit 3 (50kHz)
4 24 Freq. bit 4 (100kHz)
5 11 Freq. bit 5 (200kHz)
6 23 Freq. bit 6 (400kHz)
7 10 Freq. bit 7 (800kHz)
8 22 Freq. bit 8 (1.6MHz)
9 9 Freq. bit 9 (3.2MHz)
10 21 Freq. bit 10 (6.4MHz)
11 8 Freq. bit 11 (12.8MHz)
12 20 Freq. bit 12 (25.6MHz)
13 7 Freq. bit 13 (51.2MHz)
14 19 Freq. bit 14 (102.4MHz)
15 6 Freq. bit 15 (204.8MHz)
16 18 Freq. bit 16 (409.6MHz)
17 5 Module alarm
18 17 Gain bit 1
19 4 Gain bit 2
20 16 Gain bit 3
21 3 Gain bit 4
22 15 +5V
23 2 0V
24 14 Switched 12V
25 1 0V
26 --- ---

PBL UHF 1 & 2 Air Interface
Maintenance Handbook
H/book Number:-60-055900HBKM Issue No:-1 Date:-13/02/2003 Page:-55 of 55
5.1.8.5 UHF1 Downlink Channel Module Configuration Table
Setting D/L(1) D/L(2) D/L(3)
Frequency 482.2375MHz 470.2625MHz 470.2125MHz
Gain 15dB 20dB 20dB
ALC -23dB -23dB -23dB
DIP (off) No.’s 1,2,13,16 1,3,7,11,12,16 1,7,11,12,16
B/W 15KHz 15KHz 15KHz
5.1.8.6 UHF1 Uplink Channel Module Configuration Table
Setting U/L(1) U/L(2) U/L(3)
Frequency 473.2625MHz 470.2125MHz 485.2375MHz
Gain 5dB 5dB 15dB
ALC -22dBm -22dBm -12dBm
DIP (off) No.’s 1,3,5,6,9,11,12,1
6 1,5,6,9,11,12,16 1,2,5,6,7,8,13,16
B/W 30KHz 30KHz 30KHz
5.1.8.7 UHF2 Downlink Channel Module Configuration Table
Setting D/L(1) D/L(2) D/L(3) D/L(4)
Frequency 483.3125MHz 483.2875MHz 483.0625MHz 483.5265MHz
Gain 20dB 20dB 20dB 20dB
ALC -35dBm -35dBm -35dBm -35dBm
DIP (off) No.’s 1,4,5,7,13,16 1,2,3,5,7,13,16 1,3,7,13,16 1,3,4,6,7,13,16
B/W 15KHz 15KHz 15KHz 15KHz
5.1.8.8 UHF2 Uplink Channel Module Configuration Table
Setting D/L(1) D/L(2) D/L(3) D/L(4)
Frequency 486.3125MHz 486.2875MHz 486.0625MHz 486.5265MHz
Gain 6dB 6dB 6dB 6dB
ALC -20dBm -20dBm -20dBm -20dBm
DIP (off) No.’s 1,4,7,9,13,16 1,2,3,7,9,13,16 1,3,5,6,9,13,16 1,3,4,5,7,9,13,16
B/W 15KHz 15KHz 15KHz 15KHz

PBL UHF 1 & 2 Air Interface
Maintenance Handbook
H/book Number:-60-055900HBKM Issue No:-1 Date:-13/02/2003 Page:-56 of 56
5.1.9 Single & Dual 24Volt Relay Boards (20-001602 & 80-008902)
5.1.9.1 24V Relay Boards (20-001602 & 80-008902) Description
The General Purpose Dual Relay Board (20-001602) allows the inversion of signals and the
isolation of circuits. It is equipped with two dual pole change-over relays RL1 and RL2, with
completely isolated wiring, accessed via screw terminals.
Both relays are provided with polarity protection diodes and diodes for suppressing the
transients caused by "flywheel effect" which can destroy switching transistors or induce
spikes on neighbouring circuits. It’s common use is to amalgamate all the alarm signals into
one, volts-free relay contact pair for the main alarm system.
Note that the board is available for different voltages (12 or 24V) depending on the type of
relays fitted at RL1 and RL2.
The single relay board (80-008902) is electrically identical to the dual version but is
proportionately smaller in size. It also has a single in-line IDC connector in place of the screw
terminal blocks of the dual model and performs similar summary alarm functions.

PBL UHF 1 & 2 Air Interface
Maintenance Handbook
H/book Number:-60-055900HBKM Issue No:-1 Date:-13/02/2003 Page:-57 of 57
5.1.9.2 Drg. No. 20-001602, Dual 24V Relay Board Assembly Drawing

PBL UHF 1 & 2 Air Interface
Maintenance Handbook
H/book Number:-60-055900HBKM Issue No:-1 Date:-13/02/2003 Page:-58 of 58
5.1.9.3 Drg. No. 20-001671, Dual 24V Relay Board Circuit Diagram

PBL UHF 1 & 2 Air Interface
Maintenance Handbook
H/book Number:-60-055900HBKM Issue No:-1 Date:-13/02/2003 Page:-59 of 59
5.1.9.4 Drg. No. 80-008970, Single Relay Board Circuit Diagram

PBL UHF 1 & 2 Air Interface
Maintenance Handbook
H/book Number:-60-055900HBKM Issue No:-1 Date:-13/02/2003 Page:-60 of 60
5.1.10 SMA coaxial termination (93-930003)
5.1.10.1 Description
When a combiner system is used to split or combine RF signals, in many cases it is most cost
effective to use a standard stock item 4, 6 or 8 port device where, in fact, only a 3 - 6 port
device is needed. In this case the splitter/combiner module has one of its ports terminated
(both uplink & downlink) with an appropriate load in order to preserve the correct impedance
of the device over the specified frequency range. This has the advantage of allowing future
expansion capability should extra channels or other functions become necessary.
Terminations are available for every type of RF connector that may be used, N type, 7/16th
or SMA, in this case SMA.
5.1.11 24V 400W Flat-Pack Power Supply (96-300011)
5.1.11.1 Description
The power supply unit is a switched-mode type capable of supplying 24V DC at 16.0Amps
continuously. Equipment of this type typically requires approximately 10.0 Amps at 24V
DC, so the PSU will be used conservatively ensuring a long operational lifetime.
No routine maintenance of the PSU is required. If a fault is suspected, then the output
voltage from the power supply may be measured on its output terminals. This is typically
set to 24.5V.
All the PSU’s used in AFL Cell Enhancers are capable of operation from either 110 or
220V nominal AC supplies. The line voltage is sensed automatically, so no adjustment or
link setting is needed by the operator. No drawings of the PSU are available.
5.1.11.2 Technical Specification
AC Input Supply:
Voltage:
110 or 220V nominal - 90 to 132 or 180 to
264V (single phase, absolute limits)
Frequency:
47 to 63Hz
DC Output Supply:
Voltage:
24V DC (nominal), 22 to 26V (absolute
limits)
Current:
16.0A
operational: -10BC to +55BC Temperature
range: storage: -40BC to +70BC

PBL UHF 1 & 2 Air Interface
Maintenance Handbook
H/book Number:-60-055900HBKM Issue No:-1 Date:-13/02/2003 Page:-61 of 61
5.2 UHF 2 Air Interface (60-055902)
5.2.1 Bandpass Filter (02-013401) See section 5.1.1
5.2.2 4 Port Tx Hybrid Combiner (05-003019)
5.2.2.1 Description
The 3dB Hybrid Combiner used is a device for accurately matching two or more RF
signals to single or multiple ports, whilst maintaining an accurate 50Ω load to all
inputs/outputs and ensuring that the VSWR and insertion losses are kept to a minimum.
Any unused ports will be terminated with an appropriate 50Ω load. In UHF 2 this hybrid
is used to combine the signals from the channel selective modules (from both UHF 1 & 2)
in the downlink direction for onward transmission by fibre, and similar signals for both
UHF 1 & 2 are combined before being further split into the uplink channel modules.
5.2.2.2 Technical Specification
Frequency Range:
ƒo ± 10% (50 – 500 MHz)
Bandwidth:
ƒo ± 10%
Inputs:
2
Outputs:
2
Insertion Loss:
<3.5 dB
Isolation between Input or Output ports: >27 dB
Return Loss (VSWR) – Input:
1.3:1
Return Loss (VSWR) – Output:
1.3:1
Impedance:
50 ?
operation:
-10°C to +55°C
Temperature Range
storage:
-20°C to +70°C
MTBF:
>180,000 hours
Power Rating – Splitter:
Up to 150 Watts (load dependant)
Power Rating – Combiner:
Available up to 100 Watts
Environmental:
IP54
Connectors:
‘N’ female
Dimensions:
118 x 102 x 35 mm (including connectors)
Weight:
0.5 kg

PBL UHF 1 & 2 Air Interface
Maintenance Handbook
H/book Number:-60-055900HBKM Issue No:-1 Date:-13/02/2003 Page:-62 of 62
5.2.3 Four Way Low Power Splitter (05-003401) See section 5.1.2
5.2.4 ¼Watt 0- -30dB Switched Attenuator (10-000701) See section 5.1.3
5.2.5 Low Noise Amplifiers (11-007302 & 11-007402) See section 5.1.4
5.2.6 3 Stage Amplifier Alarm Boards (12-002201) See section 5.1.6
5.2.7 20Watt Power Amplifier (12-004201)
5.2.7.1 Description
The power amplifiers fitted to this unit are multi-stage, solid state power amplifiers. Class
A circuitry is employed throughout the units to ensure excellent linearity over a wide
dynamic frequency range. All the semi-conductor devices are very conservatively rated to
ensure low device junction temperatures and a long, trouble free working lifetime.
The power amplifiers should require no maintenance over their operating lives. Under no
circumstances should the cover be removed or the side adjustments disturbed unless it is
certain that an amplifier has failed; since they are critically aligned during manufacture and
any re-alignment will require extensive test equipment.
5.2.7.2 Technical Specification
Frequency Range: 350 – 550MHz (tuned to spec.)
Bandwidth: 20MHz (tuned to spec.)
Maximum Output Power: >20W
Gain: 30dB
1dB Compression Point: <+43dBm
3rd Order Intercept Point: <+54dBm
VSWR: better than 1.45:1
Connectors: SMA female
Supply: 3.50A @ 24V DC
Size: 276 x 78 x 40mm (ex. connectors & heatsink)
Weight: 1.5 kg (approximately, excluding heatsink)
operational: -10°C to +55°C Temperature
range: storage: -40°C to +70°C

PBL UHF 1 & 2 Air Interface
Maintenance Handbook
H/book Number:-60-055900HBKM Issue No:-1 Date:-13/02/2003 Page:-63 of 63
5.2.7.3 Drg. No. 12-004201, PA General Assembly

PBL UHF 1 & 2 Air Interface
Maintenance Handbook
H/book Number:-60-055900HBKM Issue No:-1 Date:-13/02/2003 Page:-64 of 64
5.2.7.4 Drg. No. 12-004270, PA Circuit Diagram
1A
12-004270
POWER AMPLIFIER 450MHz 10/20W CLASS A
CIRCUIT DIAGRAM
-
3/8/98DBS
BYDATEDESCRIPTIONNo
ISSUE
1 2 3 4 5 6 7 8 9
A
B
C
D
E
F
1
2
3
4
5
6
7
8
9
A
B
C
D
E
F
PRODUCTION ISSUE PDC
3/8/98
+
RF INPUT
+
+
+
+
RF OUTPUT
+24v
ALARM
REF
ALARM
DET.1
ALARM
DET.2
R1
1R2
1KR
R2
R3
470R
REG.1
ADJ
OUT
IN
ADJ
REG.2
OUT
IN
C3
1uF
1nF
C7
1uF
C9
220pF
C8
L1 L3 L4 L5
FB4FB3FB2FB1
L2
47pF
C5
47pF
C6
1-14pF
C4
1-14pF
C2
C10
1-14pF C11
1-14pF
TR1
TP5012
PTB20031
TR2
C13
1-14pF C15
1-14pF 1-14pF
C25 C26
1-14pF
C22
1-14pF
18pF
C28 27pF
C16
C17
27pF
C29
18pF
56pF
C12
4.7uF
C14
R5
R47
C19
56pF 1uF
C18
C20
1uF 56pF
C21 1000pF
C30
1KR
R4
1uH
D1
2OCTQ45
C24
15pF
C23
15pF
56pF
C27
C1
56pF
LM337T LM337T
CONDUCTORS SHOWN THUS: ARE 50 ohm STRIPLINES
REFER TO 12-004211 FOR COMPONENT POSITIONS EXCEPT FOR THOSE MARKED
(THEY ARE SPECIFIED ON 12-004201)
*
*
*
*
**
*
*
CR1679
16/5/00
DBS1B
Fax (01494)777002
Tel: (01494) 777000
Aerial Facilities Limited
THIS IS A PROPRIETARY DESIGN OF AERIAL FACILITIES LTD.
REPRODUCTION OR USE OF THIS DESIGN BY OTHERS IS
PERMISSIBLE ONLY IF EXPRESSLY AUTHORISED IN WRITING
BY AERIAL FACILITIES LTD.
NO DECIMAL PLACE ± 1mm
ONE DECIMAL PLACE ± 0.3mm
TWO DECIMAL PLACES ± 0.1mm
ALL DIMENSIONS ARE IN mm
UNLESS OTHERWISE STATED
CHKD
DRAWN
APPD
DATE
TOLERANCES SCALE England
CUSTOMER DRAWING.No
TITLE
3
A
C31
1nF
*
GB BB

PBL UHF 1 & 2 Air Interface
Maintenance Handbook
H/book Number:-60-055900HBKM Issue No:-1 Date:-13/02/2003 Page:-65 of 65
5.2.7.5 Drg. No. 12-004270C1, PA Parts List(1)
CIRC. DESCRIPTION
AFL STOCK REF.
REF.
CHANGE NoCHANGE NoCHANGE NoCHANGE No DATEDATE
DATE
DATE ISSUEISSUEISSUE
ISSUE
1
2
3
4
5
5
4
3
2
1
A
B
C
D
E
F
G
A
B
C
D
E
F
G
Aerial Facilities Limited
DRAWN DATE APPD
CHKD CUSTOMER
TITLE
COMPONENT LIST FOR
POWER AMPLIFIER,450MHz,10/20W
CIRCUIT COMPONENT LIST
12-004270C1
1A
PDC
5/8/98
5/8/98
PROD. ISS.
C1
C2
C3
C4
C5
C6
C7
C8
C9
C10
C11
C12
C13
C14
C15
C16
C17
C18
C19
C20
C21
C22
C23
C24
C25
C26
C27
C28
C29
C30
93-200006 56pF CHIP CAP 10% TOL.(MIN)
56pF CHIP CAP 10% TOL.(MIN)93-200006
93-200006 56pF CHIP CAP 10% TOL.(MIN)
93-200006 56pF CHIP CAP 10% TOL.(MIN)
93-200006 56pF CHIP CAP 10% TOL.(MIN)
93-130023 PCB MOUNT AIR TRIMMER 1-14pF
93-130023 PCB MOUNT AIR TRIMMER 1-14pF
93-130023 PCB MOUNT AIR TRIMMER 1-14pF
93-130023 PCB MOUNT AIR TRIMMER 1-14pF
93-130023 PCB MOUNT AIR TRIMMER 1-14pF
93-130023 PCB MOUNT AIR TRIMMER 1-14pF
93-130023 PCB MOUNT AIR TRIMMER 1-14pF
93-240003 1uF TANTALUM CHIP CAP 35V
93-240004 1uF TANTALUM CHIP CAP 35V
93-240003 1uF TANTALUM CHIP CAP 35V
93-240004 1uF TANTALUM CHIP CAP 35V
REFER TO GA 12-004201 FOR DETAILS
93-200020 1nF CHIP CAP 63V 10%
93-200014 220pF CHIP CAP 10% TOL (MIN)
NOT FITTEDNOT FITTED
4.7uF TANTALUM CHIP CAP 35V93-240006
REFER TO GA 12-004201 FOR DETAILS
15pF CHIP CAP 10% TOL.(MIN)93-200005
93-200005 15pF CHIP CAP 10% TOL.(MIN)
93-200004 18pF CHIP CAP 10% TOL.(MIN)
18pF CHIP CAP 10% TOL.(MIN)93-200004
93-200016 1000pF (1nF) CHIP CAP 10% TOL.(MIN)
REFER TO GA 12-004201 FOR DETAILS
93-130023
5/5/00
CR1679
2A
PCB MOUNT AIR TRIMMER 1-14pF
REFER TO GA 12-004201 FOR DETAILS
C31 REFER TO GA 12-004201 FOR DETAILS
GB BB

PBL UHF 1 & 2 Air Interface
Maintenance Handbook
H/book Number:-60-055900HBKM Issue No:-1 Date:-13/02/2003 Page:-66 of 66
5.2.7.6 Drg. No. 12-004270C2, PA Parts List(2)
CIRC. DESCRIPTION
AFL STOCK REF.
REF.
CHANGE NoCHANGE NoCHANGE NoCHANGE No DATEDATE
DATE
DATE ISSUEISSUEISSUE
ISSUE
1
2
3
4
5
5
4
3
2
1
A
B
C
D
E
F
G
A
B
C
D
E
F
G
Aerial Facilities Limited
DRAWN DATE APPD
CHKD CUSTOMER
TITLE
COMPONENT LIST FOR
POWER AMPLIFIER,450MHz,10\20W
CIRCUIT COMPONENT LIST
12-004270C2
PDC
5/8/98
5/8/98
PROD. ISS.
REG1
REG2
94-300002 LM337T, VOLTAGE REGULATOR
LM337T, VOLTAGE REGULATOR94-300002
D1 94-120006 2OTQ45 45V DUAL SCHOTTKY DIODE
R1
R2
R4
R3
R5
93-540075 1R2 2.5W RESISTOR
1KR CHIP RESISTOR93-630037
47R 6W RESISTOR93-540083
1KR CHIP RESISTOR93-630037
470R CHIP RESISTOR93-630032
L2 93-400004 1.0uH CHOKE SIGMA SC10 SERIES
93-910001 FERRITE BEAD
FERRITE BEAD93-910001
FERRITE BEAD93-910001
FERRITE BEAD93-910001
L1
L4
L5
90-500012 1.25 ENAMELLED COPPER WIRE
1.25 ENAMELLED COPPER WIRE90-500012
1.25 ENAMELLED COPPER WIRE90-500012
1.25 ENAMELLED COPPER WIRE90-500012
5/5/002A CR1679
1A
L3
TR1
TR2
REFER TO GA 12-004201 FOR DETAILS
REFER TO GA 12-004201 FOR DETAILS
GB BB

PBL UHF 1 & 2 Air Interface
Maintenance Handbook
H/book Number:-60-055900HBKM Issue No:-1 Date:-13/02/2003 Page:-67 of 67
5.2.7.7 Drg. No. 12-003670, PA to Alarm Wiring Details

PBL UHF 1 & 2 Air Interface
Maintenance Handbook
H/book Number:-60-055900HBKM Issue No:-1 Date:-13/02/2003 Page:-68 of 68
5.2.8 DC/DC Converter, 24V in, 12V 8A out (13-003011) See section 5.1.7
5.2.9 Chan. Selec. & Chan. Contr. Mdls (17-003012 & 17-002101) See section 5.1.8
5.2.10 21MHz IF Filter Board (17-002502)
5.2.10.1 Description
The above channel selective modules are fitted with a 21MHz filter board to narrow the
channel bandwidth from 30kHz to 15kHz.
5.2.11 Single & Dual 24Volt Relay Boards (20-001602 & 80-008902) See section 5.1.9
5.2.12 SMA Coaxial Termination (93-930003) See section 5.1.10
5.2.13 24V 400W Flat-Pack Power Supply (96-300011) See section 5.1.11
5.2.14 JWS75-15/A PSU (96-300045)
5.2.14.1 Description
The power supply unit is a switched-mode type capable of supplying 24V DC at 6.25Amps
continuously. This PSU is used to provide power for the fibre optic modules which will
typically require approximately 3.0 Amps at 24V DC, so the PSU will be used conservatively
ensuring a long operational lifetime.
No routine maintenance of the PSU is required. If a fault is suspected, then the output
voltage from the power supply may be measured on its output terminals. This is typically set
to 24.5V.
All the PSU’s used in AFL Cell Enhancers are capable of operation from either 110 or 220V
nominal AC supplies. The line voltage is sensed automatically, so no adjustment or link
setting is needed by the operator.
5.2.14.2 Technical Specification
AC Input Supply:
Voltage: 110 or 220V nominal
90 to 132 or 180 to 264V
(absolute limits)
Frequency: 47 to 63Hz
DC Output Supply:
Voltage: 24V DC (nominal)
22 to 26V (absolute limits)
Current: 6.25A

PBL UHF 1 & 2 Air Interface
Maintenance Handbook
H/book Number:-60-055900HBKM Issue No:-1 Date:-13/02/2003 Page:-69 of 69
5.2.15 Single Mode Optical Coupler (98-100001)
5.2.15.1 Description
Single or dual optical couplers are used whenever it is required to split optical signals for
transmission to more than one destination or combine them to a single common input. The
couplers are O.E.M devices and are not considered repairable. Any suspected faulty
coupler should be replaced.
5.2.16. Fibre Optic Receiver & Transmitter (98-200003 & 98-300003)
5.2.16.1 Description
The F/O units consist of a receiver & transmitter, which modulates the RF signal onto a laser
carrier and transmits it via fibre/optic cable to a receiver unit some distance away where it is
demodulated back to the original RF signal with very small values of accrued attenuation.
Both transmitter and receiver modules have their own dedicated alarm outputs (volt-free relay
contacts) which are integrated into the main alarm system. Being O.E.M devices, no drawings
or circuit diagrams are available.
Caution: The FO units are NOT weather proof.

PBL UHF 1 & 2 Air Interface
Maintenance Handbook
H/book Number:-60-055900HBKM Issue No:-1 Date:-13/02/2003 Page:-70 of 70
5.2.16.2 Technical Specification
Tx: 120mA @ 15V DC (320mA @ -10BC)
Power Consumption: Rx: 330mA @ 15V DC
Frequency Range:
0.1 – 2.2GHz
Link noise figure:
40dB (typical)
Link noise figure (max.):
<45dB
Total link gain:
0dB
@30KHz B/W:
>84dB
@200KHz B/W:
>76dB
CNR @ 5 Km link length:
@1.2MHz B/W:
>69dB
RF total input power:
0dBm
Input IP3:
26dBm
Optical budget:
2 – 9.0dB
Max. link length:
20Km
Response Flatness:
<±1.0 dB
Optical Output Power (Tx):
2.4 – 4.0mW
Optical Wavelength:
1310±10nm
Fibre loss:
0.38dB/Km
Optical return loss:
-60dB
Optical Connector loss:
0.5dB per mated pair
Rx ‘D’ Type Female Connector
Pin No. Signal Description
1 +15V DC Power
2 Optional Data Output
3 Power Ground
4 RF Signal Strength Monitor
5 Optical Power Monitor
6 O.C. Alarm
7 Optional Data Output
8 Relay Alarm Contact 1
9 Relay Alarm Contact 2
Tx ‘D’ Type Female Connector
Pin No. Signal Description
1 +15V DC Power
2 Optional Data Input
3 Power Ground
4 RF Signal Strength Monitor
5 Laser Photodiode Current Monitor
6 Laser Current Monitor
7 Optional Data Input
8 Relay Alarm Contact 1
9 Relay Alarm Contact 2

PBL UHF 1 & 2 Air Interface
Maintenance Handbook
H/book Number:-60-055900HBKM Issue No:-1 Date:-13/02/2003 Page:-71 of 71

PBL UHF 1 & 2 Air Interface
Maintenance Handbook
H/book Number:-60-055900HBKM Issue No:-1 Date:-13/02/2003 Page:-72 of 72

PBL UHF 1 & 2 Air Interface
Maintenance Handbook
H/book Number:-60-055900HBKM Issue No:-1 Date:-13/02/2003 Page:-73 of 73

PBL UHF 1 & 2 Air Interface
Maintenance Handbook
H/book Number:-60-055900HBKM Issue No:-1 Date:-13/02/2003 Page:-74 of 74
6. INSTALLATION
6.1 Initial Installation Record
When this equipment is initially commissioned, please use the equipment set-up record sheet
in Appendix A. This will help both the installation personnel and AFL should these figures be
needed for future reference or diagnosis.
6.2 General
The size and weight of the wall units mean that they represent a significant health hazard
unless they are mechanically installed in the correct manner. In the interests of safety this
should be done before any electrical, RF, or optical connections are made.
It is important in determining the location of the wall units that space is allowed for access to
the front and underneath of the equipment. To enable maintenance to be carried out, the door
must be able to fully open. The location must be served with a duct to allow the entry of
cables into the unit.
6.3 Electrical Connections
The mains power supply and the alarms are connected through an IP65 connector which
should need no further attention once connected. It is recommended that the AC power
connection is approved by a qualified electrician, who must satisfy himself that the supply will
be the correct voltage and of sufficient capacity.
All electrical and RF connection should be completed and checked prior to power being
applied for the first time.
6.4 Optical Connections
The optical input and output ports are be located on a bracket fixed to the lower inside of the
case. The optical fibres from the tunnels enter through a cable gland on the case underside
The ports are supplied with a green plastic cover, which must be removed prior to the
connection of the fibre cable. Ensure that transmitter and receiver fibre cable are identified to
prevent misconnection. At the master site, the fibre transmitters are in the downlink path with
the receivers in the uplink. At the remote sites the fibre transmitters are in the uplink with the
receivers in the downlink. Where some of the fibre optic transmitter outputs are split with
optical couplers to provide a connection to more than one remote site, care must be taken to
ensure that the correct connections are made.
Ensure that connections are kept clean and are fully tightened.

PBL UHF 1 & 2 Air Interface
Maintenance Handbook
H/book Number:-60-055900HBKM Issue No:-1 Date:-13/02/2003 Page:-75 of 75
6.5 RF Connections
All RF connections are made to the cable termination, located on the right-hand side of the
wall enclosure. Care must be taken to ensure that the correct connections are made with
particular attention made to the base station TX/RX ports. In the event that the base
transmitter is connected to the RX output of the rack, damage to the equipment may be done
if the base station transmitter is then keyed. If the environment where the equipment is
installed is deemed to be ‘wet’ i.e. water seepage through roofs or walls, then suitable
methods to seal the RF N type connectors should be used, for example self amalgamating
sealant tape.
Ensure that connections are kept clean and are fully tightened.
6.6 Commissioning
Once all connections are made the equipment is ready for commissioning.
To commission the system the test equipment detailed in section 7.2 will be required.
Using the system diagrams and the end-to-end test specification, the equipment should be
tested to ensure correct operation. Typical RF levels that are not listed in the end-to-end
specification, such as input levels to the fibre transmitters are detailed in the whole system
diagram in section 4.
On initial power up the system alarm indicators on the door of the equipment should be
checked. A red LED illuminated indicates a fault and that particular module must be
investigated before proceeding with the commissioning. A green LED illuminates, to indicate
that the power supply is connected and valid.
The individual fibre optic units are fitted with a pair of status indicators on their front panels.
One is a green LED, which indicates that the unit is connected to a 15 Volt power supply.
This indicator is common to both transmit and receive units. The second LED on the
transmitter indicates that the laser is operating. On the receive unit the second LED indicates
that a light signal is being received.
When all the fibre connections are completed and power to each site is connected each fibre
unit should show two illuminated indicators.
In the event that any part of the system does not function correctly as expected, check all
connections to ensure that they are to the correct port, that the interconnecting cables are not
faulty and that they are tightened. The majority of commissioning difficulties arise from
problems with the interconnecting cables and connectors.

PBL UHF 1 & 2 Air Interface
Maintenance Handbook
H/book Number:-60-055900HBKM Issue No:-1 Date:-13/02/2003 Page:-76 of 76
7. MAINTENANCE
7.1 General Procedures
7.1.1 Fault Finding
In the event that the performance of the system is suspect, a methodical and logical approach
to the problem will reveal the cause of the difficulty. The System consists of modules within a
wall mounted, environmentally protected enclosure.
Transmissions from the main base stations are passed though the system to the mobile radio
equipment; this could be a handheld walkie-talkie, mobile telephone or a transceiver in a
vehicle. This path is referred to as the downlink. The return signal path from the mobile radio
equipment to the base station is referred to as the uplink.
The first operation is to check the (optional) alarms of each of the active units and determine
that the power supplies to the equipment are connected and active.
This can be achieved remotely (via CEMS, the digital RS232 Cell Enhancer Management
System, if fitted), or locally with the front door LED’s. The green LED on the front door
should be illuminated, while the red alarm indicator should be off.
If an Alarm is on, then that individual module must be removed and tested against the original
test specification.
The individual amplifier units have a green LED showing through a hole in their piggy-back
alarm board (or directly through a hole in the the amplifier lid), which is illuminated if the unit
is working correctly.
If an amplifier is suspect, check the DC power supply to the unit. If no other fault is apparent
use a spectrum analyser to measure the incoming signal level at the input and then after
reconnecting the amplifier input, measure the output level. Consult with the system diagram
and amplifier specification to determine the expected gain and compare result.
In the event that there are no alarms on and all units appear to be functioning it will be
necessary to test the system in a logical manner to confirm correct operation.

PBL UHF 1 & 2 Air Interface
Maintenance Handbook
H/book Number:-60-055900HBKM Issue No:-1 Date:-13/02/2003 Page:-77 of 77
7.1.2 Downlink
Confirm that there is a signal at the expected frequency and strength from the base station. If
this is not present then the fault may lay outside the system. To confirm this, inject a
downlink frequency signal from a known source at the master site BTS input and check for
output at the remote site feeder output.
If a signal is not received at the output it will be necessary to follow the downlink path
through the system to find a point at which the signal is lost. The expected downlink output
for the given input can be found in the end-to-end test specification.
7.1.3 Uplink
Testing the uplink involves a similar procedure to the downlink except that the frequencies
used are those transmitted by the mobile equipment.
7.1.4 Fault repair
Once a faulty component has been identified, a decision must be made on the appropriate
course to carry out a repair. A competent engineer can quickly remedy typical faults such as
faulty connections or cables. The exceptions to this are cable assemblies connecting bandpass
filter assemblies that are manufactured to critical lengths to maintain a 50-ohm system. Care
should be taken when replacing cables or connectors to ensure that items are of the correct
specification. The repair of component modules such as amplifiers, tuned cavities or bandpass
filters will not usually be possible in the field, as they frequently require specialist knowledge
and test equipment to ensure correct operation. It is recommended that items of this type are
replaced with a spare unit and the faulty unit returned to AFL for repair. If spare parts need
to be ordered from AFL, be sure to quote the serial number of the Cell Enhancer/Repeater
and the serial number [and frequencies] of the module(s) to be replaced.

PBL UHF 1 & 2 Air Interface
Maintenance Handbook
H/book Number:-60-055900HBKM Issue No:-1 Date:-13/02/2003 Page:-78 of 78
7.1.5 Checking service
Following the repair of any part of the system it is recommended that a full end-to-end test is
carried out in accordance with the test specification and that the coverage is checked by
survey.
It is important to bear in mind that the system includes a radiating cable network and base
stations that may be faulty or may have been damaged.
7.1.6 Service Support
Advice and assistance with maintaining and servicing this system are available by contacting
Aerial Facilities Ltd.
7.2 Tools & Test Equipment
The minimum tools and test equipment needed to successfully service this AFL product are as
follows:-
Spectrum analyser: 100kHz to 2GHz (Dynamic range = 90dB).
Signal Generator: 30MHz to 2GHz (-120dBm to 0dBm o/p level).
Attenuator: 20dB, 10W, DC-2GHz, (N male – N female).
Test Antenna: Yagi or dipole for operating frequency.
Optical power meter: 1310 – 1550nM (-40 - +10dB)
Digital multi-meter: Universal Volt-Ohm-Amp meter.
Test cable x 2: N male – N male, 2M long RG214.
Test cable x 2: SMA male – N male, 1m long RG223.
Hand tools: Philips #1&2 tip screwdriver.
3mm flat bladed screwdriver.
SMA spanner and torque setter.

PBL UHF 1 & 2 Air Interface
Maintenance Handbook
H/book Number:-60-055900HBKM Issue No:-1 Date:-13/02/2003 Page:-79 of 79
7.3 Care of Modules
7.3.1 General Comments
Many of the active modules contain semiconductor devices utilising MOS technology, which
can be damaged by electrostatic discharge. Correct handling of such modules is mandatory to
ensure their long-term reliability.
To prevent damage to a module, it must be withdrawn/inserted with care. The module may
have connectors on its underside, which might not be visible to the service operative.
7.3.2 Module Removal (LNA’s, general procedure):
The following general rules should be followed to remove a module:
1 Remove power to the unit
2 Remove all visible connectors (RF, DC & alarm)
3 Release module retaining screws.
4 Slowly but firmly, pull the module straight out of its position. Take care not to twist/turn
the module during withdrawal. (When the module is loose, care may be needed, as there
may be concealed connections underneath).
7.3.3 Module Replacement (general):
1 Carefully align the module into its location then slowly push the module directly straight
into its position, taking care not to twist/turn it during insertion.
2 Reconnect all connectors, RF, alarm, power etc.,(concealed connectors may have to be
connected first).
3 Replace retaining screws (if any).
4 Double-check all connections before applying power.
7.3.4 Power Amplifiers
1) Remove power to the unit. (Switch off @ mains/battery, or remove DC in connector)
2) Remove alarm wires from alarm screw terminal block or disconnect multi-way alarm
connector.
3) Carefully disconnect the RF input and output coaxial connectors (usually SMA)
If alarm board removal is not required, go to step 5.
4) There is (usually) a plate attached to the alarm board which fixes it to the amplifier,
remove its retaining screws and the alarm board can be withdrawn from the amplifier in its
entirety. On certain types of amplifier the alarm board is not mounted on a dedicated
mounting plate; in this case it will have to firstly be removed by unscrewing it from the
mounting pillars, in most cases, the pillars will not have not have to be removed before
lifting the amplifier.

PBL UHF 1 & 2 Air Interface
Maintenance Handbook
H/book Number:-60-055900HBKM Issue No:-1 Date:-13/02/2003 Page:-80 of 80
5) If the amplifier to be removed has a heatsink attached, there may be several different ways
it can have been assembled. The most commonly used method, is screws through the front
of the heatsink to threaded screw holes (or nuts and bolts), into the amplifier within the
main case. If the heatsink is mounted on the rear of the main case (e.g., against a wall in
the case of wall mounted enclosures), then the fixing method for the heatsink will be from
within the case, (otherwise the enclosure would have to be removed from the wall in order
to remove the heatsink).
When the heatsink has been removed, the amplifier may be unscrewed from the main
casing by its four corner fixings and gently withdrawn.
Fitting a new power amplifier module will be the exact reverse of the above.
Note: Do not forget to apply fresh heatsink compound to the heatsink/main case
joint and also between the amplifier and the main case.
7.3.5 Low Power Amplifier Replacement
1 Disconnect the mains power supply and disconnect the 24V dc supply connector for the
LPA.
2 Disconnect the RF input and output cables from the LPA.
3 Disconnect the alarm connector.
4 Remove the alarm monitoring wires from (D type connector) pins 9 and 10.
5 Remove the LPA module by removing the four retaining screws, replace with a new LPA
module and secure it with the screws.
6 Connect the RF cables to the LPA input and output connectors. Reconnect the wires to
the alarm board connector pins 9 and 10.
7 Reconnect the DC supply connector and turn the mains switch on.
Note: Tighten SMA connectors using only a dedicated SMA torque spanner. If
SMA connectors are over-tightened, irreparable damage will occur. . Do not use
adjustable pliers to loosen/tighten SMA connectors.
Also take care not to drop or knock the module as this can damage (or misalign in the
case of tuned passive modules) sensitive internal components. Always store the modules
in an environmentally friendly location
7.3.6 Module Transportation:
To maintain the operation, performance and reliability of any module it must be stored and
transported correctly. Any module not installed in a whole system must be kept in an anti-
static bag or container. These bags or containers are normally identified by being pink or
black, and are often marked with an ESD label. Any module sent back to AFL for
investigation/repair must be so protected. Please contact AFL’s quality department before
returning a module.

PBL UHF 1 & 2 Air Interface
Maintenance Handbook
H/book Number:-60-055900HBKM Issue No:-1 Date:-13/02/2003 Page:-81 of 81
APPENDIX A INITIAL EQUIPMENT SET-UP CALCULATIONS
GENERAL INFORMATION
Site Name: Client Name:
Date: AFL Equip. Model No.
ANTENNA SYSTEMS
Model Gain Azimuth Comments
A - Service Antenna
B – Donor Antenna
Type Loss Length Comments
C – Service Feeder
D – Donor Feeder
INITIAL PARAMETERS
E – CE Output Power dBm
F – Antenna Isolation dB
G – Input signal level from donor BTS dBm
Operating Voltage V
DOWNLINK CALCULATIONS
Parameter Comments Value
Input signal level (G)
dBm
CE max. o/p power (E)
dBm
Gain setting
E - G dB
Isolation required
(Gain + 10dB) dB
Service antenna gain (A)
dB
Service antenna feeder loss (C)
dB
Effective radiated power (ERP)
E+A-C dBm
Attenuator setting
CE gain-gain setting dB
If the input signal level in the uplink path is known and steady, use the following calculation
table to determine the gain setting. If the CE features Automatic Gain Control the attenuator
should be set to zero and if not, then the attenuation setting for both uplink and downlink
should be similar.
UPLINK CALCULATIONS
Parameter Comments Value
Input signal level
dBm
CE max. o/p power (E)
dBm
Gain setting
dB
Required isolation
dB
Donor antenna gain (B)
dB
Donor antenna feeder loss (D)
dB
Effective radiated power (ERP)
E+B-D dBm
Attenuator setting
(CE gain-gain setting) dB