Siemens Canada Siemens Milltronics Process Instruments LR250 SITRANS LR 250 TANK LEVEL PROBING RADAR User Manual SITRANS LR250 HART
Siemens Canada Ltd. - Siemens Milltronics Process Instruments SITRANS LR 250 TANK LEVEL PROBING RADAR SITRANS LR250 HART
Contents
User Manual

SITRANS
Radar Transmitters
SITRANS LR250 (HART)
Operating Instructions 01/2014

© Siemens AG 2013
Safety Guidelines
Warning notices must be observed to ensure personal safety as well as that of others, and to protect the product and the connected equipment.
These warning notices are accompanied by a clarification of the level of caution to be observed.
Qualified Personnel
This device/system may only be set up and operated in conjunction with this manual. Qualified personnel are only authorized to install and
operate this equipment in accordance with established safety practices and standards.
Unit Repair and Excluded Liability:
The user is responsible for all changes and repairs made to the device by the user or the user’s agent.
All new components are to be provided by Siemens Milltronics Process Instruments.
Restrict repair to faulty components only.
Do not reuse faulty components.
Warning: Cardboard shipping package provides limited humidity and moisture protection. This product can only function properly and safely if
it is correctly transported, stored, installed, set up, operated, and maintained.
This product is intended for use in industrial areas. Operation of this equipment in a residential area may cause interference to several
frequency based communications.
Note: Always use product in accordance with specifications.
Copyright Siemens AG 2013. All Rights Reserved Disclaimer of Liability
This document is available in bound version and in
electronic version. We encourage users to purchase
authorized bound manuals, or to view electronic versions as
designed and authored by Siemens Milltronics Process
Instruments. Siemens Milltronics Process Instruments will
not be responsible for the contents of partial or whole
reproductions of either bound or electronic versions.
While we have verified the contents of this
manual for agreement with the instrumentation
described, variations remain possible. Thus we
cannot guarantee full agreement. The contents of
this manual are regularly reviewed and
corrections are included in subsequent editions.
We welcome all suggestions for improvement.
Technical data subject to change.
MILLTRONICS®is a registered trademark of Siemens Milltronics Process Instruments.
Contact SMPI Technical Publications European Authorized Representative
at the following address:
Technical Publications Siemens AG
Siemens AG Industry Sector
Siemens Milltronics Process Instruments 76181 Karlsruhe
1954 Technology Drive, P.O. Box 4225 Deutschland
Peterborough, Ontario, Canada, K9J 7B1
Email: techpubs.smpi@siemens.com
For a selection of Siemens Milltronics level measurement manuals, go to:
www. siemens.com/processautomation. Under Process Instrumentation, select
Level Measurement
and then go to the manual archive
listed under the product family.
For a selection of Siemens Milltronics weighing manuals, go to:
www. siemens.com/processautomation. Under Weighing Technology, select
Continuous Weighing Systems
and then go to the manual
archive listed under the product family.

SITRANS LR250 (HART)
___________________
___________________
___________________
___________________
___________________
___________________
___________________
___________________
___________________
___________________
___________________
___________________
___________________
___________________
___________________
___________________
___________________
SITRANS
Radar Transmitters
SITRANS LR250 (HART)
Operating Instructions
01/2014
A5E32220602
-AB
Introduction
1
Safety notes
2
Description
3
Installing/mounting
4
Connecting
5
Commissioning
6
Remote operation
7
Parameter reference
8
Service and maintenance
9
Diagnosing and
troubleshooting
10
Technical data
11
Dimension drawings
12
Appendix A: Technical
reference
A
Appendix B: HART
communications
B
Appendix C: Certificates and
support
C
List of abbreviations
13
LCD menu structure
14

Siemens AG
Industry Sector
Postfach 48 48
90026 NÜRNBERG
GERMANY
Order number: A5E32220602
Ⓟ
09/2013 Technical data subject to change
Copyright © Siemens AG 2013.
All rights reserved
Legal information
Warning notice system
This manual contains notices you have to observe in order to ensure your personal safety, as well as to prevent
damage to property. The notices referring to your personal safety are highlighted in the manual by a safety alert
symbol, notices referring only to property damage have no safety alert symbol. These notices shown below are
graded according to the degree of danger.
DANGER
indicates that death or severe personal injury will result if proper precautions are not taken.
WARNING
indicates that death or severe personal injury may result if proper precautions are not taken.
CAUTION
indicates that minor personal injury can result if proper precautions are not taken.
NOTICE
indicates that property damage can result if proper precautions are not taken.
If more than one degree of danger is present, the warning notice representing the highest degree of danger will be
used. A notice warning of injury to persons with a safety alert symbol may also include a warning relating to property
damage.
Qualified Personnel
The product/system described in this documentation may be operated only by
personnel qualified
for the specific task
in accordance with the relevant documentation, in particular its warning notices and safety instructions. Qualified
personnel are those who, based on their training and experience, are capable of identifying risks and avoiding
potential hazards when working with these products/systems.
Proper use of Siemens products
Note the following:
WARNING
Siemens products may only be used for the applications described in the catalog and in the relevant technical
documentation. If products and components from other manufacturers are used, these must be recommended
or approved by Siemens. Proper transport, storage, installation, assembly, commissioning, operation and
maintenance are required to ensure that the products operate safely and without any problems. The permissible
ambient conditions must be complied with. The information in the relevant documentation must be observed.
Trademarks
All names identified by ® are registered trademarks of Siemens AG. The remaining trademarks in this publication may
be trademarks whose use by third parties for their own purposes could violate the rights of the owner.
Disclaimer of Liability
We have reviewed the contents of this publication to ensure consistency with the hardware and software described.
Since variance cannot be precluded entirely, we cannot guarantee full consistency. However, the information in this
publication is reviewed regularly and any necessary corrections are included in subsequent editions.
SITRANS LR250 (HART)
Operating Instructions, 01/2014, A5E32220602-AB 3
Table of contents
1 Introduction ............................................................................................................................................. 9
1.1 The manual .................................................................................................................................... 9
1.2 Firmware revision history ............................................................................................................. 10
2 Safety notes .......................................................................................................................................... 11
2.1 Safety marking symbols ............................................................................................................... 11
2.2 FCC Conformity ........................................................................................................................... 11
2.3 CE Electromagnetic Compatibility (EMC) Conformity.................................................................. 12
3 Description ............................................................................................................................................ 13
3.1 SITRANS LR250 overview ........................................................................................................... 13
3.2 Programming ................................................................................................................................ 14
3.3 Applications .................................................................................................................................. 14
3.4 Approvals and certificates ............................................................................................................ 14
4 Installing/mounting ................................................................................................................................ 15
4.1 Pressure applications ................................................................................................................... 16
4.1.1 Pressure Equipment Directive, PED, 97/23/EC ........................................................................... 16
4.2 Mounting location ......................................................................................................................... 17
4.2.1 Nozzle design ............................................................................................................................... 17
4.2.2 Nozzle Location............................................................................................................................ 18
4.2.3 Orientation in a vessel with obstructions ..................................................................................... 20
4.2.4 Mounting on a Stillpipe or Bypass Pipe ....................................................................................... 20
4.2.5 Device orientation ........................................................................................................................ 21
4.3 Installation instructions ................................................................................................................. 21
4.4 Flange bolting, Flanged encapsulated antenna only ................................................................... 22
5 Connecting ........................................................................................................................................... 25
5.1 Power ........................................................................................................................................... 25
5.2 Connecting SITRANS LR250 ....................................................................................................... 26
5.3 Wiring setups for hazardous area installations ............................................................................ 28
5.3.1 Intrinsically safe wiring ................................................................................................................. 28
5.3.2 Non-sparking wiring ..................................................................................................................... 30
5.3.3 Non-incendive wiring (US/Canada only) ...................................................................................... 30
5.3.4 Flameproof wiring......................................................................................................................... 31
5.3.5 Increased safety wiring ................................................................................................................ 32

Table of contents
SITRANS LR250 (HART)
4 Operating Instructions, 01/2014, A5E32220602-AB
5.3.6 Explosion-proof wiring (US/Canada only) ................................................................................... 32
5.4 Instructions specific to hazardous area installations ................................................................... 33
5.4.1 (Reference European ATEX Directive 94/9/EC, Annex II, 1/0/6)................................................ 33
6 Commissioning ..................................................................................................................................... 35
6.1 Operating via the handheld programmer .................................................................................... 35
6.1.1 Power up ..................................................................................................................................... 35
6.1.2 Handheld programmer functions ................................................................................................. 35
6.1.2.1 The LCD display .......................................................................................................................... 36
6.1.2.2 Handheld programmer (Part No. 7ML1930-1BK) ....................................................................... 38
6.1.3 Programming ............................................................................................................................... 40
6.1.3.1 Quick Start Wizard via the handheld programmer ...................................................................... 46
6.1.3.2 Auto False Echo Suppression ..................................................................................................... 50
6.1.3.3 Requesting an Echo Profile......................................................................................................... 51
6.2 Application examples .................................................................................................................. 52
6.2.1 Liquid resin in storage vessel, level measurement ..................................................................... 53
6.2.2 Horizontal vessel with volume measurement .............................................................................. 55
6.2.3 Application with stillpipe .............................................................................................................. 57
7 Remote operation ................................................................................................................................. 61
7.1 Operating via SIMATIC PDM ...................................................................................................... 61
7.1.1 Functions in SIMATIC PDM ........................................................................................................ 61
7.1.1.1 PDM function overview ............................................................................................................... 61
7.1.1.2 Features of SIMATIC PDM Rev. 6.0, SP4 or higher ................................................................... 62
7.1.1.3 Features of SIMATIC PDM Rev. 5.2, SP1 .................................................................................. 62
7.1.1.4 SIMATIC PDM Version ............................................................................................................... 62
7.1.2 Initial setup .................................................................................................................................. 62
7.1.2.1 Deactivating buffers .................................................................................................................... 63
7.1.3 Updating the Electronic Device Description (EDD) ..................................................................... 64
7.1.3.1 Configuring a new device ............................................................................................................ 64
7.1.4 Quick Start Wizard via SIMATIC PDM ........................................................................................ 65
7.1.5 Changing parameter settings using SIMATIC PDM ................................................................... 70
7.1.6 Parameters accessed via pull-down menus ............................................................................... 71
7.1.6.1 Echo profile utilities ..................................................................................................................... 72
7.1.6.2 Echo profile ................................................................................................................................. 73
7.1.6.3 View saved echo profiles ............................................................................................................ 74
7.1.6.4 TVT Shaper ................................................................................................................................. 75
7.1.6.5 Auto false echo suppression ....................................................................................................... 76
7.1.6.6 Echo setup .................................................................................................................................. 79
7.1.6.7 Maintenance ................................................................................................................................ 80
7.1.6.8 Select analog output ................................................................................................................... 81
7.1.6.9 Self test ....................................................................................................................................... 81
7.1.6.10 Loop test...................................................................................................................................... 82
7.1.6.11 Configuration flag reset ............................................................................................................... 82
7.1.6.12 Master reset ................................................................................................................................ 82
7.1.6.13 Wear ............................................................................................................................................ 83
7.1.6.14 HART Communication ................................................................................................................ 83

Table of contents
SITRANS LR250 (HART)
Operating Instructions, 01/2014, A5E32220602-AB 5
7.1.6.15 Process variables ......................................................................................................................... 84
7.1.6.16 Trend ............................................................................................................................................ 85
7.1.6.17 Device status ................................................................................................................................ 86
7.1.6.18 Update .......................................................................................................................................... 86
7.1.6.19 Security ........................................................................................................................................ 87
7.2 Operating via AMS Device Manager............................................................................................ 88
7.2.1 Functions in AMS Device Manager.............................................................................................. 88
7.2.1.1 AMS function overview ................................................................................................................ 88
7.2.1.2 Features of AMS Device Manager ............................................................................................... 89
7.2.1.3 Electronic Device Description (EDD) ........................................................................................... 89
7.2.1.4 Configuring a new device ............................................................................................................. 89
7.2.1.5 Startup .......................................................................................................................................... 90
7.2.1.6 Pull-down menu access ............................................................................................................... 91
7.2.1.7 Device configuration .................................................................................................................... 91
7.2.1.8 Quick Start Wizard via AMS Device Manager ............................................................................. 92
7.2.2 Maintenance and diagnostics .................................................................................................... 100
7.2.3 Communication .......................................................................................................................... 101
7.2.4 Security ...................................................................................................................................... 102
7.2.5 Device Diagnostics .................................................................................................................... 103
7.2.5.1 Process variables ....................................................................................................................... 104
7.2.5.2 Password protection .................................................................................................................. 105
7.2.5.3 User Manager utility ................................................................................................................... 106
7.2.6 AMS menu structure ..................................................................................................................
107
7.3 Operating via FDT (Field Device Tool) ...................................................................................... 111
7.3.1 Device Type Manager (DTM) ..................................................................................................... 111
7.3.2 SITRANS DTM ........................................................................................................................... 111
7.3.3 The device EDD ......................................................................................................................... 111
7.3.4 Configuring a new device via FDT ............................................................................................. 112
8 Parameter reference ........................................................................................................................... 113
8.1 Alphabetical parameter list ......................................................................................................... 165
9 Service and maintenance .................................................................................................................... 169
9.1 Unit repair and excluded liability ................................................................................................ 169
9.2 Part replacement ........................................................................................................................ 169
10 Diagnosing and troubleshooting .......................................................................................................... 171
10.1 Communication troubleshooting ................................................................................................ 171
10.2 Device status icons .................................................................................................................... 172
10.3 General fault codes .................................................................................................................... 174
10.4 Operation troubleshooting .......................................................................................................... 178
11 Technical data .................................................................................................................................... 181
11.1 Power ......................................................................................................................................... 181

Table of contents
SITRANS LR250 (HART)
6 Operating Instructions, 01/2014, A5E32220602-AB
11.2 Performance .............................................................................................................................. 182
11.3 Interface .................................................................................................................................... 183
11.4 Mechanical ................................................................................................................................ 184
11.5 Environmental ........................................................................................................................... 186
11.6 Process ..................................................................................................................................... 186
11.7 Approvals .................................................................................................................................. 187
11.8 Programmer (infrared keypad) .................................................................................................. 189
12 Dimension drawings ............................................................................................................................. 191
12.1 Threaded horn antenna ............................................................................................................. 191
12.2 Threaded horn antenna with extension ..................................................................................... 194
12.3 Flanged horn antenna ............................................................................................................... 196
12.4 Flanged horn antenna with extension ....................................................................................... 198
12.5 Flanged encapsulated antenna (2"/DN50/50A sizes only) ....................................................... 200
12.6 Flanged encapsulated antenna (3"/DN80/80A sizes and larger) .............................................. 202
12.7 Threaded PVDF antenna .......................................................................................................... 204
12.8 Threaded connection markings ................................................................................................. 205
12.9 Raised-Face flange per EN 1092-1 for flanged horn antenna .................................................. 206
12.10 Raised-Face flange per EN 1092-1 for flanged encapsulated antenna .................................... 208
12.11 Flat-Face flange ........................................................................................................................ 211
12.12 Process connection tag (pressure rated versions).................................................................... 214
A Appendix A: Technical reference .......................................................................................................... 215
A.1 Principles of operation ............................................................................................................... 215
A.2 Echo Processing ....................................................................................................................... 216
A.2.1 Process Intelligence .................................................................................................................. 216
A.2.2 Echo Selection .......................................................................................................................... 217
A.2.3 CLEF Range ............................................................................................................................. 220
A.2.4 Echo Threshold ......................................................................................................................... 220
A.2.5 Echo Lock.................................................................................................................................. 220
A.2.6 Auto False Echo Suppression ................................................................................................... 221
A.2.7 Measurement Range ................................................................................................................. 223
A.2.8 Measurement Response ........................................................................................................... 223
A.2.9 Damping .................................................................................................................................... 224
A.3 Analog Output ........................................................................................................................... 224
A.3.1 Sensor Mode ............................................................................................................................. 225
A.3.2 Current Output Function ............................................................................................................ 226
A.3.3 Loss of Echo (LOE) ................................................................................................................... 226

Table of contents
SITRANS LR250 (HART)
Operating Instructions, 01/2014, A5E32220602-AB 7
A.3.4 Fail-safe Mode ........................................................................................................................... 227
A.4 Maximum Process Temperature Chart ...................................................................................... 228
A.5 Process Pressure/Temperature derating curves ....................................................................... 229
A.5.1 Horn antenna ............................................................................................................................. 230
A.5.2 Flanged horn antenna ................................................................................................................ 231
A.5.3 Flanged encapsulated antenna .................................................................................................. 233
A.5.4 PVDF antenna............................................................................................................................ 235
A.6 Loop power ................................................................................................................................ 236
A.6.1 Allowable operating area of SITRANS LR250 ........................................................................... 237
A.6.2 Curve 1 (General Purpose, Intrinsically Safe, Non-Sparking, Non-incendive) .......................... 237
A.6.3 Curve 2 (Flameproof, Increased Safety, Explosion-proof) ........................................................ 238
A.7 Startup behavior ......................................................................................................................... 238
B Appendix B: HART communications .................................................................................................... 239
B.1 SIMATIC PDM ............................................................................................................................ 239
B.2 HART Electronic Device Description (EDD) .............................................................................. 239
B.3 HART Handheld 375/475 ........................................................................................................... 239
B.4 HART Communicator 375 menu structure ................................................................................. 240
B.5 HART version ............................................................................................................................. 242
B.5.1 Burst Mode ................................................................................................................................. 242
B.5.2 HART Multidrop Mode ............................................................................................................... 242
C Appendix C: Certificates and support .................................................................................................. 243
C.1 Certificates ................................................................................................................................. 243
C.2 Technical support ....................................................................................................................... 243
13 List of abbreviations ............................................................................................................................ 245
14 LCD menu structure ............................................................................................................................ 247
Glossary ............................................................................................................................................. 253
Index................................................................................................................................................... 259

Table of contents
SITRANS LR250 (HART)
8 Operating Instructions, 01/2014, A5E32220602-AB

SITRANS LR250 (HART)
Operating Instructions, 01/2014, A5E32220602-AB 9
Introduction
1
1.1
The manual
This manual will help you set up your radar device for optimum performance. For other Siemens
Milltronics level measurement manuals, go to:
Siemens level (http://www.siemens.com/level)
Follow these operating instructions for quick, trouble-free installation, and maximum accuracy
and reliability of your device.
We always welcome suggestions and comments about manual content, design, and
accessibility. Please direct your comments to:
Technical publications (mailto:techpubs.smpi@siemens.com)
Note
This manual applies to the SITRANS LR250 mA/HART version only.
Application examples
The application examples used in this manual illustrate typical installations. [See Application
examples (Page 52).] Because there is often a range of ways to approach an application, other
configurations may also apply.
In all examples, substitute your own application details. If the examples do not apply to your
application, check the applicable parameter reference for the available options.
Note
For industrial use only
This product is intended for use in industria
l areas. Operation of this equipment in a
residential area may cause interference to several frequency based communications.

Introduction
1.2 Firmware revision history
SITRANS LR250 (HART)
10 Operating Instructions, 01/2014, A5E32220602-AB
1.2
Firmware revision history
This history establishes the correlation between the current documentation and the valid
firmware of the device.
The documentation of this edition is applicable for the following firmware:
Firmware
rev.
PDM EDD
rev.
Date
Changes
1.00.03 1.00.03 25 Feb 2007 • Initial release
1.01.00 1.01.00 27 Jul 2007 • EDD a)/SIMATIC PDM:
View > Display > Distance
b)
correctly reported
• EDD/SIMATIC PDM: Improved rendering of the
echo profile and TVT
1.01.01 1.01.01 10 Jun 2008 • Maintenance release of firmware and EDD a)
1.01.01 1.01.03 17 Jun 2008 • The internal EDD revision has been incremented
1.02.01 1.02.01 2 Apr 2009 • AMS EDD Rev. 1.02.01
• Support NAMUR NE 43
• Harmonization of menu structures and parameter
names across products
• Display indicates progress towards first
measurement
1.02.03 1.02.01 16 June 2010 • Display contrast improvement
• Antenna type parameter cannot be modified
1.03.02
(requires
HW 2.0.0)
1.02.01 16 June 2010 • Low current
HW 2.0.0 supported
1.03.03
(requires
HW 2.0.0)
1.02.01 19 May 2011 • Threaded PVDF antenna supported
1.03.04 1.02.03 31 Oct 2012 • LUI updated version (new startup,
progress bars, quick
start updated to latest version,
echo profile pan/zoom on display)
• antenna parameter removed, default near range
set at factory
a) Electronic Device Description
b) See
Sensor Mode (2.2.2.)
for an illustration of
Distance
.

SITRANS LR250 (HART)
Operating Instructions, 01/2014, A5E32220602-AB 11
Safety notes
2
2.1
Safety marking symbols
In manual
On product
Description
(Label on product: yellow background.) WARNING: refer to
accompanying documents (manual) for details.
2.2
FCC Conformity
US Installations only: Federal Communications Commission (FCC) rules
WARNING
Changes or modifications not expressly approved by Siemens Milltronics could void the
user’s authority to operate the equipment.
Note
•
This equipment has been tested and found to comply with the limits for a Class A digital
device, pursuant to Part 15 of the FCC Rules. These limits are designed to provide
reasonable protection against harmful interference when the equipment is operated in a
commercial environment.
•
This equipment generates, uses, and can radiate radio frequency energy and, if not
installed and used in accordance with the operating instructions, may cause harmful
interference to radio communications. Operation of this equipment in a residential area is
likely to cause harmful interference to radio communications, in which case the user will
be required to correct the interference at his own expense.

Safety notes
2.3 CE Electromagnetic Compatibility (EMC) Conformity
SITRANS LR250 (HART)
12 Operating Instructions, 01/2014, A5E32220602-AB
2.3
CE Electromagnetic Compatibility (EMC) Conformity
This equipment has been tested and found to comply with the following EMC Standards:
EMC Standard
Title
CISPR 11:2004/EN
55011:1998+A1:1999&A2:2002, CLASS B
Limits and methods of measurements of radio
distu
rbance characteristics of industrial, scientific, and
medical (ISM) radio-frequency equipment.
EN 61326:1997+A1:1998+A2:2001+A3:2003
(IEC 61326:2002)
Electrical Equipment for Measurement, Control and
Laboratory Use – Electromagnetic Compatibility.
EN61000-4-2:2001 Electromagnetic Compatibility (EMC) Part 4-2:
Testing and measurement techniques – Electrostatic
discharge immunity test.
EN61000-4-3:2002 Electromagnetic Compatibility (EMC) Part 4-3:
Testing and measurement techniques – Radiated,
radio-frequency, electromagnetic field immunity test.
EN61000-4-4:2004 Electromagnetic Compatibility (EMC) Part 4-4:
Testing and measurement techniques – Electrical fast
transient/burst immunity test.
EN61000-4-5:2001 Electromagnetic Compatibility (EMC) Part 4-5:
Testing and measurement techniques – Surge
immunity test.
EN61000-4-6:2004 Electromagnetic Compatibility (EMC) Part 4-6:
Testing and measurement techniques – Immunity to
conducted disturbances, induced by radio-frequency
fields.
EN61000-4-8:2001 Electromagnetic Compatibility (EMC) Part 4-8:
Testing and measurement techniques – Power
frequency magnetic field immunity test.

SITRANS LR250 (HART)
Operating Instructions, 01/2014, A5E32220602-AB 13
Description
3
3.1
SITRANS LR250 overview
WARNING
SITRANS LR250 is to be used only in the manner outlined in this manual, otherwise
protection provided by the device may be impaired.
SITRANS LR250 is a 2-wire 25 GHz pulse radar level transmitter for continuous monitoring of
liquids and slurries in storage vessels including high pressure and high temperature, to a range
of 20 meters (66 feet). It is ideal for small vessels and low dielectric media.
The device consists of an electronic circuit coupled to an antenna and either a threaded or
flange type process connection.
This device supports HART communication protocol. HART® is a registered trademark of the
HART Communication Foundation. Signals are processed using Process Intelligence which has
been field-proven in over 1,000,000 applications worldwide (ultrasonic and radar).

Description
3.2 Programming
SITRANS LR250 (HART)
14 Operating Instructions, 01/2014, A5E32220602-AB
3.2
Programming
This device is very easy to install and configure via a graphical local user interface (LUI). You
can modify the built in parameters either locally via the Siemens infrared handheld programmer,
or from a remote location using one of the following options:
● SIMATIC PDM
● AMS Device Manager
● FDT/DTM platform (such as PACTware™ or FieldCare)
● HART Handheld 375/475
3.3
Applications
● liquids and slurries
● bulk storage vessels
● simple process vessels
3.4
Approvals and certificates
Note
For further details see
Approvals (Page 187).
SITRANS LR250 is available with General Purpose approval, or for hazardous areas. In all
cases, check the nameplate on your device, and confirm the approval rating.
Process Connections
A wide range of process connections and antenna options are available to suit virtually any
vessel configuration.

SITRANS LR250 (HART)
Operating Instructions, 01/2014, A5E32220602-AB 15
Installing/mounting
4
WARNING
• Installation shall only be performed by qualified personnel and in accordance with local
governing regulations.
• Handle the device using the enclosure, not the process connection tag, to avoid
damage.
• Take special care when handling the threaded PVDF and Flanged encapsulated
antennas. Any damage to the antenna surface, particularly to the tip/lens, could affect
performance.
• Materials of construction are chosen based on their chemical compatibility (or inertness)
for general purposes. For exposure to specific environments, check with chemical
compatibility charts before installing.
Note
•
For European Union and member countries, installation must be according to ETSI EN
302372.
•
Refer to the device nameplate for approval information.

Installing/mounting
4.1 Pressure applications
SITRANS LR250 (HART)
16 Operating Instructions, 01/2014, A5E32220602-AB
4.1
Pressure applications
WARNING
Pressure applications
• Never attempt to loosen, remove, or disassemble process connection or device housing
while vessel contents are under pressure.
• The user is responsible for the selection of bolting and gasket (except for Flanged
encapsulated antenna) materials which will fall within the limits of the process
connection and its intended use and which are suitable for the service conditions.
• For Flanged encapsulated antenna, lens acts as integral gasket, no other required
• Use spring washers for Flanged encapsulated antenna.
• Improper installation may result in loss of process pressure.
Note
•
The process connection tag shall remain with the process pressure boundary assembly.
(The process pressure boundary assembly comprises the components that act as a
barrier against pressure loss from the process vessel: that is, the combination of process
connection body and emitter, but normally excluding the electrical enclosure).
•
SITRANS LR250 units are hydrostatically tested, meeting or exceeding the requirements
of the ASME Boiler and Pressure Vessel Code and the European Pressure Equipment
Directive.
4.1.1
Pressure Equipment Directive, PED, 97/23/EC
Siemens Level Transmitters with flanged, threaded, or sanitary clamp type process mounts have
no pressure-bearing housing of their own and, therefore, do not come under the Pressure
Equipment Directive as pressure or safety accessories (see EU Commission Guideline 1/8 and
1/20).

Installing/mounting
4.2 Mounting location
SITRANS LR250 (HART)
Operating Instructions, 01/2014, A5E32220602-AB 17
4.2
Mounting location
Note
•
Correct location is key to a successful application.
•
Avoid reflective interference from vessel walls and obstructions by following the
guidelines below:
4.2.1
Nozzle design
Threaded PVDF antenna
Stainless steel horn antenna
Flanged encapsulated antenna
①
Minimum clearance: 10 mm (0.4")
②
Minimum diameter: 50 mm (2")
③
Maximum nozzle length: 500
mm (20")
● The end of the antenna must protrude a minimum of 10 mm (0.4") to avoid false echoes
being reflected from the nozzle1).
● Minimum recommended nozzle diameter for the threaded PVDF antenna is 50 mm (2").
● An antenna extension (100 mm/3.93") is available for any version except the Threaded PVDF
and Flanged encapsulated antenna (FEA).
● The maximum nozzle length for the FEA is 500 mm (20").
1) Not applicable for FEA

Installing/mounting
4.2 Mounting location
SITRANS LR250 (HART)
18 Operating Instructions, 01/2014, A5E32220602-AB
4.2.2
Nozzle Location
● Avoid central locations on tall, narrow vessels
● Nozzle must be vertical
Preferred
Undesirable
Environment
● Provide an environment suitable to the housing rating and materials of construction.
● Provide a sunshield if the device will be mounted in direct sunlight.
①
Ambient temperature
②
Process temperature (at process connection)
Antenna
①
②
Horn -40 to +80 °C
(-40 to +176 °F)
with FKM O-ring:-40 to +200 °C (-40 to
392 °F)
with FFKM O-ring:-20 to +200 °C (-4 to
+392 °F)
PVDF -40 to +80 °C
(-40 to +176 °F)
-40 to +80 °C
(-40 to +176 °F)
Flanged encapsulated -40 to +80 °C
(-40 to +176 °F)
-40 to +170 °C
(-40 to +338 °F)
Access for programming
● Provide easy access for viewing the display and programming via the handheld programmer.

Installing/mounting
4.2 Mounting location
SITRANS LR250 (HART)
Operating Instructions, 01/2014, A5E32220602-AB 19
Beam angle
Note
•
Beam width depends on antenna size: see below.
•
For details on avoiding false echoes, see Auto False Echo Suppression (Page 221).
● Beam angle is the width of the cone where the energy density is half of the peak energy
density.
● The peak energy density is directly in front of and in line with the antenna.
● There is a signal transmitted outside the beam angle, therefore false targets may be
detected.
①
Emission cone
Size
Beam angle
②
Horn
1.5"
19°
2"
15°
3"
10°
4"
8°
③
Flanged encapsulated
2"/DN50/50A
12.8°
3"/DN80/80A
9.6°
4"/DN100/100A
9.6°
6"/DN150/150A
9.6°
④
Threaded PVDF
19°
Emission cone
● Keep emission cone free of interference from ladders, pipes, I-beams, or filling streams.

Installing/mounting
4.2 Mounting location
SITRANS LR250 (HART)
20 Operating Instructions, 01/2014, A5E32220602-AB
4.2.3
Orientation in a vessel with obstructions
Polarization reference point
For best results on a vessel with obstructions, or a stillpipe with openings, orient the front or
back of the device toward the obstructions. For an illustration, see Device orientation (Page 21).
①
Polarization axis
②
Polarization reference point
③
Display
4.2.4
Mounting on a Stillpipe or Bypass Pipe
A stillpipe or bypass pipe is used for products with a low dK, or when vortex or extremely
turbulent conditions exist. It can also be used to provide optimum signal conditions on foaming
materials. See Dielectric constant of material measured in Performance (Page 182) for more
information.
● The pipe diameter must be matched with the antenna size. Use the largest antenna size that
will fit the stillpipe/bypass pipe1). See Threaded Horn dimensions or Raised-Face Flange per
EN 1092-1 (Page 208).
● One continuous length of metallic pipe is preferred, without joints. Bad joints create
reflections.
● Joints (if unavoidable) must be machined to ± 0.25 mm (± 0.010") and must have welded
connecting sleeve on the outside.
1) Mounting in a pipe greater than 100 mm (4") can cause large errors, and therefore is not
recommended.
Suitable pipe diameters:
Horn antenna
40 to 100 mm (1.5 to 4")
PVDF antenna
50 mm (2") only
Flanged encapsulated antenna
50 to 100 mm (2 to 4")
Not recommended:
> 100 mm (4")
Bypass vent:
Required at the upper end of the bypass
1)
1)
To equalize pressure and keep the liquid level in the bypass constant with the liquid level in the
vessel.

Installing/mounting
4.3 Installation instructions
SITRANS LR250 (HART)
Operating Instructions, 01/2014, A5E32220602-AB 21
4.2.5
Device orientation
Bypass pipe installation
Stillpipe installation
①
Vent
①
Align front or back of device with stillpipe slots
1)
②
Align front or back of device with
vents
1)
②
Slots
1) Horn antenna version shown as example
4.3
Installation instructions
WARNING
For pressure applications, it will be necessary to use PTFE tape or other appropriate thread
sealing compound, and to tighten the process connection beyond hand-tight. (The
maximum recommended torque for Threaded versions is 40 N-m (30 ft.lbs.) See Flange
bolting, Flanged encapsulated antenna only (Page 22) for FEA recommended torque
values.)
Note
•
On devices with a removable head, there is no limit to the number of times a device can
be rotated without damage.
•
When mounting, orient the front or back of the device towards the closest wall.
•
Do not rotate the enclosure after programming and vessel calibration, otherwise an error
may occur, caused by a polarity shift of the transmit pulse.

Installing/mounting
4.4 Flange bolting, Flanged encapsulated antenna only
SITRANS LR250 (HART)
22 Operating Instructions, 01/2014, A5E32220602-AB
Threaded versions
1. Before inserting the device into its mounting connection, check to ensure the threads are
matching, to avoid damaging them.
2. Simply screw the device into the process connection, and hand tighten, or use a wrench.
For pressure applications see Warning above.
Flanged versions
See Flanged Horn with extension (Page 196), Raised-Face Flange per EN 1092-1 (Page 208),
Flat-Face Flange (Page 211), and Flanged encapsulated antenna (3"/DN80/80A sizes and
larger) (Page 202) for dimensions.
4.4
Flange bolting, Flanged encapsulated antenna only
Note
•
Use spring washers
•
Do not use additional gasket
•
Use recommended torque values for tightening bolts
Flange bolting: recommended torque
Pressure class
Nominal pipe size
(NPS)
Number of bolts
Recommended torque
(Nm)
ASME B16.5, Class
150
2"
4
30 – 50
3"
50 – 70
4"
8
40 – 60
6" 70 – 90
EN1092-1, PN16 /
JIS B 2220, 10K
DN50/50A
4
30 – 50
DN80/80A
8
DN100/100A
DN150/150A
60 – 80

Installing/mounting
4.4 Flange bolting, Flanged encapsulated antenna only
SITRANS LR250 (HART)
Operating Instructions, 01/2014, A5E32220602-AB 23
Recommendations for flange bolting:
● Use cross-pattern sequence as shown
● Check uniformity of the flange gap
● Apply adjustments by selective tightening if required
● Torque incrementally until desired value is reached
● Check/re-torque after 4 to 6 hours
● Check bolts periodically, re-torque as required
● Use new lens, O-ring and spring washers after removal from installation.
For instructions on replacing the lens, see Part replacement (Page 169).

Installing/mounting
4.4 Flange bolting, Flanged encapsulated antenna only
SITRANS LR250 (HART)
24 Operating Instructions, 01/2014, A5E32220602-AB

SITRANS LR250 (HART)
Operating Instructions, 01/2014, A5E32220602-AB 25
Connecting
5
5.1
Power
WARNING
The DC input terminals shall be supplied from a source providing electrical isolation
between the input and output, in order to meet the applicable safety requirements of IEC
61010-1.
Note
All field wiring must have insulation suitable for rated voltages.

Connecting
5.2 Connecting SITRANS LR250
SITRANS LR250 (HART)
26 Operating Instructions, 01/2014, A5E32220602-AB
5.2
Connecting SITRANS LR250
WARNING
• Check the nameplate on your device, to verify the approval rating.
• Use appropriate conduit seals to maintain IP or NEMA rating.
• See Wiring setups for hazardous area installations (Page 28).
Note
•
Separate cables and conduits may be required to conform to standard instrumentation
wiring practices or electrical codes.
①
Use a 2 mm Allen key to loosen the lid
-lock set screw
④
Cable shield
②
Plug (IP 68)
⑤
Ground terminal
③
Optional cable gland
a) b) (or NPT cable entry)b)
a)
May be shipped with the device.
b)
If cable is routed through conduit, use only approved suitable-size hubs for waterproof
applications.

Connecting
5.2 Connecting SITRANS LR250
SITRANS LR250 (HART)
Operating Instructions, 01/2014, A5E32220602-AB 27
Wiring instructions
1. Strip the cable jacket for approximately 70 mm (2.75") from the end of the cable, and thread
the wires through the gland. (If cable is routed through conduit, use only approved suitable-
size hubs for waterproof applications.)
2. Connect the wires to the terminals as shown: the polarity is identified on the terminal block.
3. Ground the device according to local regulations.
4. Tighten the gland to form a good seal.
5. Close the lid and secure the locking screw before programming and device configuration.
Connecting HART
Typical PLC/mA configuration with HART
①
Power supply
④
Active PLC
②
SITRANS LR250
⑤
HART modem
③
R = 250 Ω
⑥
HART communicator
Note
•
Depending on the system design, the power supply may be separate from the PLC, or
integral to it.
•
HART resistance (total loop resistance, that is, cable resistance plus 250 Ohm [resistor])
must be limited according to the allowable operating area as shown in either Curve 1
(Page 237) (General Purpose, Intrinsically Safe, Non-Sparking, Non-incendive) or Curve
2 (Page 238) (Flameproof, Increased Safety, Explosion-proof).

Connecting
5.3 Wiring setups for hazardous area installations
SITRANS LR250 (HART)
28 Operating Instructions, 01/2014, A5E32220602-AB
5.3
Wiring setups for hazardous area installations
There are six wiring options for hazardous area installations:
● Intrinsically Safe wiring (Page 28)
● Non-Sparking wiring (Page 30)
● Non-incendive wiring (US/Canada only) (Page 30)
● Flameproof wiring (Page 31)
● Increased safety wiring (Page 32)
● Explosion-proof wiring (US/Canada only) (Page 32)
In all cases, check the nameplate on your instrument, confirm the approval rating, and perform
installation and wiring according to your local safety codes.
5.3.1
Intrinsically safe wiring
Device nameplate (ATEX/IECEX/INMETRO/C-TICK)
①
ATEX certificate
The ATEX certificate listed on the nameplate can be downloaded from our website:
Product page (http://www.siemens.com/LR250)
Go to
Support > Approvals / Certificates.
The IECEx certificate listed on the nameplate can be viewed on the IECEx website. Go to:
IECEx (http://iecex.iec.ch/)
Click on
Certified Equipment
then enter the certificate number IECEx SIR 05.0031X.

Connecting
5.3 Wiring setups for hazardous area installations
SITRANS LR250 (HART)
Operating Instructions, 01/2014, A5E32220602-AB 29
Device nameplate (FM/CSA)
①
FM/CSA Intrinsically Safe connection drawing
FM/CSA Intrinsically Safe connection drawing number 23650653 can be downloaded from our
website:
Product page (http://www.siemens.com/LR250)
Go to
Support > Installation Drawings > Level Measurement > SITRANS LR250
.
● For power demands see Curve 1 (General Purpose, Intrinsically Safe, Non-Sparking, Non-
incendive) (Page 237).
● For wiring requirements: follow local regulations.
● Approved dust-tight and water-tight conduit seals are required for outdoor NEMA 4X / type 4X
/ NEMA 6, IP67, IP68 locations.
● Refer to Instructions specific to hazardous area installations (Page 33).
Note
Selecting a suitable PLC input module or power supply requires knowledge about Intrinsic
Safety and the application. It is the responsibility of the installer to ensure that the intrinsically
safe installation complies with both the apparatus ap
proval requirements and the relevant
national code of practice.

Connecting
5.3 Wiring setups for hazardous area installations
SITRANS LR250 (HART)
30 Operating Instructions, 01/2014, A5E32220602-AB
5.3.2
Non-sparking wiring
①
ATEX certificate
The ATEX certificate listed on the nameplate can be downloaded from our website:
Product page (http://www.siemens.com/LR250)
Go to:
Support > Approvals / Certificates
.
● For power demands see Curve 1 (General Purpose, Intrinsically Safe, Non-Sparking/Energy
Limited, Non-incendive) (Page 237).
● For wiring requirements follow local regulations.
5.3.3
Non-incendive wiring (US/Canada only)
①
FM/CSA Class 1, Div 2 connection drawing number 23650673
FM/CSA Class 1, Div 2 connection drawing number 23650673 can be downloaded from our
website:
Product page (http://www.siemens.com/LR250)
Go to
Support > Installation Drawings > Level Measurement > SITRANS LR250.
● For power demands see Curve 1 (General Purpose, Intrinsically Safe, Non-Sparking, Non-
incendive) (Page 237).

Connecting
5.3 Wiring setups for hazardous area installations
SITRANS LR250 (HART)
Operating Instructions, 01/2014, A5E32220602-AB 31
5.3.4
Flameproof wiring
①
ATEX certificate
The ATEX certificate listed on the nameplate can be downloaded from our website:
Product page (http://www.siemens.com/LR250)
Go to
Support > Approvals / Certificates
.
The IECEx certificate listed on the nameplate can be viewed on the IECEx website. Go to:
IECEx (http://iecex.iec.ch/)
Click on
Certified Equipment
then enter the certificate number IECEx SIR 08.0107X.
● For power demands see Curve 2 (Flameproof, Increased Safety, Explosion-proof)
(Page 238).
● For wiring requirements follow local regulations.
● See also Instructions specific to hazardous area installations (Page 33) and the ATEX
certificate listed above.

Connecting
5.3 Wiring setups for hazardous area installations
SITRANS LR250 (HART)
32 Operating Instructions, 01/2014, A5E32220602-AB
5.3.5
Increased safety wiring
①
Certificate
The ATEX certificate can be downloaded from the product page of our website:
Product page (http://www.siemens.com/LR250)
Go to
Support > Approvals / Certificates
.
The IECEx certificate listed on the nameplate can be viewed on the IECEx website:
IECEx (http://iecex.iec.ch/)
Click on
Certified Equipment
then enter the certificate number IECEx SIR 08.0107X.
● For power demands see Curve 2 (Flameproof, Increased Safety, Explosion-proof)
(Page 238).
● For wiring requirements follow local regulations.
● See also Instructions specific to hazardous area installations (Page 33) and the ATEX
certificate listed above.
5.3.6
Explosion-proof wiring (US/Canada only)
①
FM/CSA Explosion Proof connection drawing
FM/CSA Explosion Proof connection drawing number A5E02257843 can be downloaded from
our website:
Product page (http://www.siemens.com/LR250)
Go to
Support > Installation Drawings > Level Measurement > SITRANS LR250
● For power demands see Curve 2 (Flameproof, Increased Safety, Explosion-proof)
(Page 238).

Connecting
5.4 Instructions specific to hazardous area installations
SITRANS LR250 (HART)
Operating Instructions, 01/2014, A5E32220602-AB 33
5.4
Instructions specific to hazardous area installations
5.4.1
(Reference European ATEX Directive 94/9/EC, Annex II, 1/0/6)
The following instructions apply to equipment covered by certificate number SIRA
06ATEX2358X, SIRA 08ATEX1301X, and SIRA 09ATEX4153X.
1. For use and assembly, refer to the main instructions.
2. The equipment is certified for use as Category 1GD equipment per SIRA 06ATEX2358X;
Category 1/2 GD, 1D, 2D equipment per SIRA 08ATEX1301X; and Category 3G equipment
per SIRA 09ATEX4153X.
3. The equipment may be used with flammable gases and vapors with apparatus group IIC, IIB
and IIA and temperature classes T1, T2, T3 and T4.
4. The equipment has a degree of ingress protection of IP67 and a temperature class of T100
°C and may be used with flammable dusts.
5. The equipment is certified for use in an ambient temperature range of –40 °C to +80 °C.
6. The equipment has not been assessed as a safety related device (as referred to by Directive
94/9/EC Annex II, clause 1.5).
7. Installation and inspection of this equipment shall be carried out by suitably trained personnel
in accordance with the applicable code of practice (EN 60079-14 and EN 60079-17 in
Europe).
8. The equipment is non-repairable.
9. The certificate numbers have an ‘X’ suffix, which indicates that special conditions for safe use
apply. Those installing or inspecting this equipment must have access to the certificates.
10.If the equipment is likely to come into contact with aggressive substances, then it is the
responsibility of the user to take suitable precautions that prevent it from being adversely
affected, thus ensuring that the type of protection is not compromised.
– Aggressive substances: for example, acidic liquids or gases that may attack metals, or
solvents that may affect polymeric materials.
– Suitable precautions: for example, establishing from the material’s data sheet that it is
resistant to specific chemicals.

Connecting
5.4 Instructions specific to hazardous area installations
SITRANS LR250 (HART)
34 Operating Instructions, 01/2014, A5E32220602-AB

SITRANS LR250 (HART)
Operating Instructions, 01/2014, A5E32220602-AB 35
Commissioning
6
6.1
Operating via the handheld programmer
6.1.1
Power up
Power up the device. A transition screen showing first the Siemens logo and then the current
firmware revision is displayed while the first measurement is being processed. The first time the
device is configured, you will be prompted to select a language (English, German, French, or
Spanish). To change the language again, see
Language (7.)
.
Press
Mode
to toggle between Measurement and Program mode.
6.1.2
Handheld programmer functions
The radar device carries out its level measurement tasks according to settings made via
parameters. The settings can be modified locally via the Local User Interface (LUI) which
consists of an LCD display and a handheld programmer.
A Quick Start Wizard provides an easy step-by-step procedure to configure the device for a
simple application. Access the wizards:
● locally [see Quick Start Wizard via the handheld programmer (Page 46)]
● or from a remote location [see Quick Start Wizard via SIMATIC PDM (Page 65),
or Quick Start Wizard via AMS Device Manager (Page 92)]
For more complex setups see Application Examples (Page 52), and for the complete range of
parameters see Parameter Reference (Page 113).

Commissioning
6.1 Operating via the handheld programmer
SITRANS LR250 (HART)
36 Operating Instructions, 01/2014, A5E32220602-AB
6.1.2.1
The LCD display
Measurement mode display
Normal operation
①
Toggle indicator
a)
for linear units or %
②
Selected operation: level, space, distance, or volume
③
Measured value (level, space, distance, or volume)
④
Units
⑤
Bar graph indicates level
⑥
Secondary region indicates on request b) electronics temperature, echo confidence, loop
current, or distance
⑦
Text area displays status messages
⑧
Device status indicator, see Device status icons (Page 172)
a)
Press UP or DOWN arrow to switch.
b) In response to a key press request. For details, see Handheld Programmer (Page 38) for key
functions in Measurement mode.
Fault present
①
Device status indicator, see Device status icons (Page 172)
②
Text area displays status messages

Commissioning
6.1 Operating via the handheld programmer
SITRANS LR250 (HART)
Operating Instructions, 01/2014, A5E32220602-AB 37
PROGRAM mode display
Navigation view
①
Item band
④
Current item number
②
Menu bar
⑤
Current item
③
Current menu
● A visible menu bar indicates the menu list is too long to display all items.
● A band halfway down the menu bar indicates the current item is halfway down the list.
● The depth and relative position of the item band on the menu bar indicates the length of the
menu list, and approximate position of the current item in the list.
● A deeper band indicates fewer items.
Parameter view
Edit view
①
Parameter name
②
Parameter number
③
Parameter value/selection

Commissioning
6.1 Operating via the handheld programmer
SITRANS LR250 (HART)
38 Operating Instructions, 01/2014, A5E32220602-AB
6.1.2.2
Handheld programmer (Part No. 7ML1930-1BK)
The programmer is ordered separately.

Commissioning
6.1 Operating via the handheld programmer
SITRANS LR250 (HART)
Operating Instructions, 01/2014, A5E32220602-AB 39
Key functions in measurement mode
Key
Function
Result
Updates the loop current New value is displayed in LCD secondary
region.
Updates internal enclosure temperature
reading
Updates echo confidence value New value is displayed in LCD secondary
region.
Updates distance measurement
Mode
opens PROGRAM mode Opens the menu level last displayed in this
power cycle, unless power has been cycled
since exiting PROGRAM mode or more than
10 minutes have elapsed since PROGRAM
mode was used. Then top level menu will be
displayed.
RIGHT arrow
opens PROGRAM mode Opens the top level menu.
UP
or
DOWN arrow
toggles between
linear units and percent
LCD displays measured value in either linear
units or percent.

Commissioning
6.1 Operating via the handheld programmer
SITRANS LR250 (HART)
40 Operating Instructions, 01/2014, A5E32220602-AB
6.1.3
Programming
Note
•
While the device is in PROGRAM mode the output remains fixed and does not respond to
changes in the device.
•
The device automatically returns to Measurement mode after a period of inactivity in
PROGRAM mode (between 15 seconds and 10 minutes, depending on the menu level).
Change parameter settings and set operating conditions to suit your specific application. For
remote operation see Operating via SIMATIC PDM (Page 61) or Operating via AMS Device
Manager (Page 88).
Parameter menus
Note
For the complete list of parameters with instructions, see
Parameter Reference (Page 113).
Parameters are identified by name and organized into function groups. See LCD menu structure
(Page 247).
1. QUICK START
2. SETUP
2.1. DEVICE
............
2.7. LINEARIZATION
2.7.1. VOLUME
2.7.1.1. VESSEL SHAPE

Commissioning
6.1 Operating via the handheld programmer
SITRANS LR250 (HART)
Operating Instructions, 01/2014, A5E32220602-AB 41
1. Enter PROGRAM mode
● Point the programmer at the display from a maximum distance of 300 mm (1 ft).
●
RIGHT arrow
activates PROGRAM mode and opens menu level 1.
●
Mode
opens the menu level last displayed in PROGRAM mode within the last 10 minutes,
or menu level 1 if power has been cycled since then.
①
Handheld programmer
②
Display
③
Maximum distance: 300 mm ( 1 ft)

Commissioning
6.1 Operating via the handheld programmer
SITRANS LR250 (HART)
42 Operating Instructions, 01/2014, A5E32220602-AB
2. Navigating: key functions in Navigation mode
Note
•
In Navigation mode
ARROW
keys move to the next menu item in the direction of the
arrow.
•
For Quick Access to parameters via the handheld programmer, press Home , then
enter the menu number, for example:
2.7.1.
(Volume).
Key
Name
Menu level
Function
UP
or
DOWN arrow
menu or
parameter
Scroll to previous or next menu or
parameter
RIGHT arrow
menu Go to first parameter in the selected
menu, or open next menu.
parameter
Open Edit mode.
LEFT arrow
menu or
parameter
Open parent menu.
Mode
menu or
parameter
Change to
MEASUREMENT
mode.
Home
menu or
parameter
Open top level menu: menu 1.

Commissioning
6.1 Operating via the handheld programmer
SITRANS LR250 (HART)
Operating Instructions, 01/2014, A5E32220602-AB 43
3. Editing in PROGRAM mode
1. Navigate to the desired parameter.
2. Press
RIGHT
arrow
to open parameter view.
3. Press
RIGHT arrow
again to open
Edit
mode. The current selection is highlighted. Scroll
to a new selection.
4. Press
RIGHT arrow
to accept it.
The LCD returns to parameter view and displays the new selection.
①
Parameter name
②
Parameter number
③
Current selection

Commissioning
6.1 Operating via the handheld programmer
SITRANS LR250 (HART)
44 Operating Instructions, 01/2014, A5E32220602-AB
Changing a numeric value
1. Navigate to the desired parameter.
2. Press
RIGHT arrow
to open parameter view. The current value is displayed.
3. Press
RIGHT arrow
again to open
Edit
mode. The current value is highlighted.
4. Key in a new value.
5. Press
RIGHT arrow
to accept it.
The LCD returns to parameter view and displays the new selection.
①
Parameter name
②
Parameter number
③
Current selection

Commissioning
6.1 Operating via the handheld programmer
SITRANS LR250 (HART)
Operating Instructions, 01/2014, A5E32220602-AB 45
Key functions in edit mode
Key
Name
Function
UP
or
DOWN arrow
Selecting
options
Scrolls to item.
Numeric
editing
• Increments or decrements digits
• Toggles plus and minus sign
RIGHT arrow
Selecting
options
• Accepts the data (writes the
parameter)
• Changes from
Edit
to
Navigation
mode
Numeric
editing
• Moves cursor one space to the right
• or, with cursor on Enter sign, accepts
the data and changes from
Edit
to
Navigation
mode
LEFT arrow:
Selecting
options
Cancels
Edit
mode without changing the
parameter.
Numeric
editing
• Moves cursor to plus/minus sign if this
is the first key pressed
• or moves cursor one space to the left
Clear
Numeric
editing
Erases the display.
Decimal point
Numeric
editing
Enters a decimal point.
Plus or minus sign
Numeric
editing
Changes the sign of the entered value.
to
Numeral
Numeric
editing
Enters the corresponding character.

Commissioning
6.1 Operating via the handheld programmer
SITRANS LR250 (HART)
46 Operating Instructions, 01/2014, A5E32220602-AB
6.1.3.1
Quick Start Wizard via the handheld programmer
Note
•
A reset to factory defaults should be performed before running the Quick Start Wizard if
the device has been used in a previous application. See
Master Reset (4.1.)
.
•
The Quick Start wizard settings are inter-related and changes apply only after you select
Finish
in the Wizard Complete step.
•
Do not use the Quick Start wizard to modify parameters: see instead Parameter
Reference (Page 113). (Perform customization for your application only after the Quick
Start has been completed).
•
Default settings in the parameter tables are indicated with an asterisk (*).
1. Quick Start
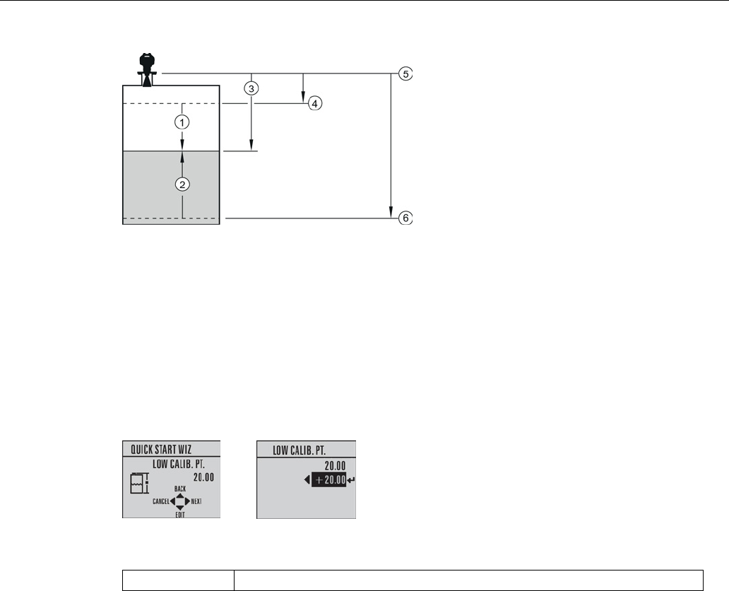
1.1. Quick Start Wiz
1. Point the programmer at the display from a maximum distance of 300 mm (1 ft), then press
RIGHT arrow
to activate PROGRAM mode and open menu level 1.
2. Press
RIGHT arrow
twice to navigate to menu item 1.1 and open parameter view.
3. Press
RIGHT arrow
to open Edit mode or DOWN arrow to accept default values and
move directly to the next item.
4. To change a setting, scroll to the desired item or key in a new value.
5. After modifying a value, press
RIGHT arrow
to accept it and press
DOWN arrow
to
move to the next item.
6. Quick Start settings take effect only after you select
Finish.

Commissioning
6.1 Operating via the handheld programmer
SITRANS LR250 (HART)
Operating Instructions, 01/2014, A5E32220602-AB 47
Material
Selects the appropriate echo processing algorithms for the material [see
Position Detect
(2.8.4.2.)
for more detail].
Options
*
LIQUID
LIQUID LOW DK
a)
(low dielectric liquid – CLEF algorithm enabled)
a) dK < 3.0
Response Rate
Sets the reaction speed of the device to measurement changes in the target range. Use a
setting just faster than the maximum filling or emptying rate (whichever is greater).
Options
Response Rate (1.3.)
Fill rate per Minute (2.4.2.)/Empty rate per
Minute (2.4.3.)
*
SLOW
0.1 m/min (0.32 ft/min)
MED
1.0 m/min (3.28 ft/min)
FAST
10.0 m/min (32.8 ft/min)

Commissioning
6.1 Operating via the handheld programmer
SITRANS LR250 (HART)
48 Operating Instructions, 01/2014, A5E32220602-AB
Units
Sensor measurement units.
Options
m, cm, mm, ft, in.
Default: m
Operation
Operation
Description
NO SERVICE Measurement and associated loop current are not updated, and the device
defaults to Fail-safe mode
a)
.
LEVEL
*
Distance to material surface referenced from Low Calibration Point
SPACE
Distance to material surface referenced from High Calibration Point
DISTANCE
Distance to material surface referenced from Sensor reference point
a) See Material Level (2.5.1.) for more detail.

Commissioning
6.1 Operating via the handheld programmer
SITRANS LR250 (HART)
Operating Instructions, 01/2014, A5E32220602-AB 49
①
Space
④
High Calibration Point (process full level)
②
Level
⑤
Sensor reference point
a)
③
Distance
⑥
Low Calibration Point (process empty level)
a) The point from which High and Low Calibration points are referenced: see Dimensions
(Page 191).
Low Calibration Point
Distance from Sensor Reference to Low Calibration Point: usually process empty level. (See
Operation
for an illustration.)
Values
Range: 0.00 to 20.00 m

Commissioning
6.1 Operating via the handheld programmer
SITRANS LR250 (HART)
50 Operating Instructions, 01/2014, A5E32220602-AB
High Calibration Point
Distance from Sensor reference point to High Calibration Point: usually process full level. (See
Operation
for an illustration.)
Values
Range: 0.00 to 20.00 m
Wizard complete
Options
BACK, CANCEL, FINISH (Display returns to 1.1 Quick Start Wiz menu when
Quick Start is successfully completed.)
Press
DOWN arrow (Finish).
Then press
LEFT arrow
to return to
Measurement
mode.
SITRANS LR250 is now ready to operate.
6.1.3.2
Auto False Echo Suppression
If you have a vessel with known obstructions, we recommend using Auto False Echo
Suppression to prevent false echo detection. See
TVT setup (2.8.7.)
for instructions
.
This feature can also be used if the display shows a false high level, or the reading is fluctuating
between the correct level and a false high level.

Commissioning
6.1 Operating via the handheld programmer
SITRANS LR250 (HART)
Operating Instructions, 01/2014, A5E32220602-AB 51
6.1.3.3
Requesting an Echo Profile
•
In
PROGRAM
mode, navigate to:
Level Meter > 3. > 3.1
.
•
Press
RIGHT arrow
to request a profile.
①
Confidence
⑦
Zoom
②
Distance from Low Calibration Point to vertical cross
-hair
⑧
Measure
③
Algorithm: tF
(trueFirst)
⑨
Exit
④
Distance from flange face to target
⑩
Exit icon selected
⑤
Pan left/right
- selected
⑪
Exit icon deselected
⑥
Pan up/down
● Use
UP
or
DOWN arrow
to scroll to an icon. When an icon is highlighted, that feature
becomes active.
● To move a cross-hair, press
RIGHT arrow
to increase the value,
LEFT arrow
to
decrease.
● To Zoom into an area, position the intersection of the cross-hairs at the center of that area,
select
Zoom
, and press
RIGHT arrow.
Press
LEFT arrow
to Zoom out.
● To update the profile, select
Measure
and press
RIGHT arrow.
● To return to the previous menu, select
Exit
then press
RIGHT arrow.

Commissioning
6.2 Application examples
SITRANS LR250 (HART)
52 Operating Instructions, 01/2014, A5E32220602-AB
6.2
Application examples
Note
In the applications illustrated below, values are for example purposes only.
You can use these examples as setup references. Enter the values in the parameter tables to
select the corresponding functions.
Configure the basic settings using the Quick Start wizard parameters. (These parameters are
inter-related, and changes take effect only after you select
FINISH
to apply changes in the final
step.)
In each example, after performing a Quick Start, navigate to the other required parameters either
via the handheld programmer, or using a Device Management tool (SIMATIC PDM or AMS
Device Manager) and enter the appropriate values.

Commissioning
6.2 Application examples
SITRANS LR250 (HART)
Operating Instructions, 01/2014, A5E32220602-AB 53
6.2.1
Liquid resin in storage vessel, level measurement
Note
Minimum distance from flange face to target is limited by Near Range (2.8.1.)
.
To obtain level measurement/4 to 20 mA output proportional to resin levels:
● Low Calibration Pt. = 5 m (16.5 ft) from sensor reference point
● High Calibration Pt.= 0.5 m (1.64 ft) from sensor reference point
● Max.fill/empty rate = 0.2 m/min (0.65 ft/min)
In the event of a loss of echo:
● SITRANS LR250 is to go into Fail-safe High after 2 minutes.
①
Sensor reference point
⑤
5 m
②
High calibration point
⑥
Low calibration point
③
0.5
m
⑦
0% level
④
100% level
Parameter type
Parameter No. /Name
Options/
Values
Function
Quick Start
Wizard
parameters
Introduction
NEXT
Continue with Wizard.
Language
NEXT
Continue with current language.
Material
LIQUID
Response Rate
MED
Medium =1 m/minute

Commissioning
6.2 Application examples
SITRANS LR250 (HART)
54 Operating Instructions, 01/2014, A5E32220602-AB
Parameter type
Parameter No. /Name
Options/
Values
Function
Units
M
meters
Operation
LEVEL
Level
Low Calibration Point
5
5 m (16.5 ft)
High Calibration Point
0.5
0.5 m (1.64 ft)
Wizard Complete
FINISH
Transfers Quick Start settings to
device.
Independent
parameters
LOE Timer (2.5.2.)
2
2 minutes
Material Level (2.5.1.)
HI
Fail-safe level set to High
Return to
Measurement
: press
Mode
to start normal operation.

Commissioning
6.2 Application examples
SITRANS LR250 (HART)
Operating Instructions, 01/2014, A5E32220602-AB 55
6.2.2
Horizontal vessel with volume measurement
Note
The minimum distance from the flange face to the target is limited by Near Range (2.8.1.)
.
To obtain level measurement/4 to 20 mA output proportional to vessel volume in a chemical
vessel:
● Low Calibration Point = 3.5 m (11.48 ft) from sensor reference point
● High Calibration Point = 0.5 m (1.64 ft) from sensor reference point
● Max. fill/empty rate = 0.2 m/min (0.65 ft/min)
Select vessel shape, Parabolic Ends, and enter values for A and L, to obtain a volume reading
instead of level.
In the event of a loss of echo: SITRANS LR250 is to go into Fail-safe High after 2 minutes.
①
Sensor reference point
⑥
A = 0.8 m
②
0.5 m
⑦
L = 6 m
③
High Calibration Point
⑧
100% = 8000 L
④
3.5. m
⑨
Volume reading
⑤
Low Calibration Point
Parameter type
Parameter No./Name
Options/
Values
Function
Quick Start
Wizard
parameters
Introduction
NEXT
Continue with Wizard.
Language
NEXT
Continue with current
language.
Material
LIQUID
Response Rate
MED
Medium =1 m/minute
Units
M
meters
Operation
LEVEL
Level is reported as
Volume when a vessel
shape is selected.
Low Calibration Point
3.5
3.5 m (11.48 ft)

Commissioning
6.2 Application examples
SITRANS LR250 (HART)
56 Operating Instructions, 01/2014, A5E32220602-AB
Parameter type
Parameter No./Name
Options/
Values
Function
High Calibration Point
0.5
0.5 m (1.64 ft)
Wizard Complete
FINISH
Transfers Quick Start
settings to device.
Independent
parameters
Vessel Shape (2.7.1.1.)
PARABOLIC
ENDS
Defines vessel shape.
Maximum Volume (2.7.1.2.)
8000
8000 liters
Vessel Dimension A (2.7.1.3.)
0.8
0.8 m (2.62 ft)
Vessel Dimension L (2.7.1.4.)
6
6 m (19.68 ft)
LOE Timer (2.5.2.)
2
2 minutes
Material Level (2.5.1.)
HI
Fail-safe level set to High
Return to
Measurement:
press
Mode
to start normal operation.

Commissioning
6.2 Application examples
SITRANS LR250 (HART)
Operating Instructions, 01/2014, A5E32220602-AB 57
6.2.3
Application with stillpipe
Note
•
Near Range (2.8.1.)
(Blanking) will be set at the factory. Check the process connection
tag for specific values.
•
Suitable pipe diameters are 40 mm (1.5") to 100 mm (4").
•
The pipe diameter must be matched with the antenna size. Use the largest antenna size
that will fit the stillpipe/bypass pipe. See Dimensions (Page 191).
•
See Mounting on a Stillpipe or Bypass Pipe (Page 20) for installation guidelines.
This application is to obtain a level measurement and corresponding 4 to 20 mA output
proportional to the oil level in a fuel storage vessel.
● Low Calibration Pt. is 5 m (16.5 ft) from the sensor reference point.
● High Calibration Pt. is 0.5 m (1.65 ft) from the sensor reference point.
● The stillpipe inside diameter is 50 mm (1.96").
● The maximum rate of filling or emptying is about 0.1 m (4")/min.
①
sensor reference point
⑤
5 m
②
high calibration point
⑥
50 mm I.D.
③
0.5 m
⑦
low calibration point
④
vent hole
Parameter type
Parameter No./Name
Options/Values
Function
Quick Start Wizard
Introduction
NEXT
Continue with Wizard.
Language
NEXT
Continue with current
language.
Material
LIQUID LOW DK
Response Rate
MED
Medium =1 m/minute
Units
M
meters

Commissioning
6.2 Application examples
SITRANS LR250 (HART)
58 Operating Instructions, 01/2014, A5E32220602-AB
Parameter type
Parameter No./Name
Options/Values
Function
Operation
LEVEL
Level is reported as
Volume when a vessel
shape is selected.
Low Calibration Point
5
5 m (16.5 ft)
High Calibration Point
0.5
0.5 m (1.64 ft)
Wizard Complete
FINISH
Transfers Quick Start
settings to device.
Independent
parameters
Propagation Factor
(2.8.3.)
a)
0.988
P.F. for a 50 mm
(1.96") I.D. stillpipe
Position Detect
(2.8.4.2.)
HYBRID
CLEF Range
(2.8.4.4.)
a)
4.3 Low calibration point -
0.7 m = 4.3 m (14.1 ft)
a)
The recommended values for the propagation factor and for CLEF range are dependent on the
stillpipe diameter. Refer to the next table for values.

Commissioning
6.2 Application examples
SITRANS LR250 (HART)
Operating Instructions, 01/2014, A5E32220602-AB 59
Propagation Factor/Stillpipe Diameter
①
sensor reference point
③
low calibration point
②
air gap
④
CLEF range 2.8.4.4.
A
700 or 1000 mm (see CLEF Range settings in table below)
Values
Range
0.3 to 1.0 depending on pipe size
Default
1.0000
Nominal Pipe Size
a)
40 mm (1.5")
50 mm (2")
80 mm (3")
100 mm (4")
Propagation Factor
0.9844
0.988
0.9935
0.9965
CLEF Range (2.8.4.4.) settings
Low
calibration
point -
700 mm
(2.29 ft)
b)
Low
calibration
point -
700 mm
(2.29 ft)
b)
Low calibration
point -1000 mm
(3.28 ft)b)
Low calibration
point -1000 mm
(3.28 ft)b)
a)
Since pipe dimensions may vary slightly, the propagation factor may also vary.
b)
CLEF range covers the whole measurement range except first 700 or 1000 mm from sensor
reference point
Note
Flanged encapsulated antenna
For Flange
d encapsulated antenna (7ML5432) match the process connection size to the
pipe diameter.
For example, DN 80/3" flange to DN 80/3" pipe.

Commissioning
6.2 Application examples
SITRANS LR250 (HART)
60 Operating Instructions, 01/2014, A5E32220602-AB

SITRANS LR250 (HART)
Operating Instructions, 01/2014, A5E32220602-AB 61
Remote operation
7
7.1
Operating via SIMATIC PDM
SIMATIC PDM is a software package used to commission and maintain process devices. Please
consult the operating instructions or online help for details on using SIMATIC PDM. You can find
more information at our website:
SIMATIC PDM (www.siemens.com/simatic-pdm).
7.1.1
Functions in SIMATIC PDM
Note
•
For a complete list of parameters, see Parameter Reference (Page 113).
•
While the device is in
PROGRAM
mode the output remains fixed and does not respond to
changes in the device.
7.1.1.1
PDM function overview
SIMATIC PDM monitors the process values, alarms and status signals of the device. It allows
you to display, compare, adjust, verify, and simulate process device data; also to set schedules
for calibration and maintenance.
Parameters are identified by name and organized into function groups. See LCD menu structure
(Page 247) for a chart and Changing parameter settings using SIMATIC PDM (Page 70) for
more details. The menu structure for SIMATIC PDM is almost identical to that for the LCD.
See Parameters accessed via pull-down menus (Page 71) for parameters that do not appear in
the menu structure in SIMATIC PDM.

Remote operation
7.1 Operating via SIMATIC PDM
SITRANS LR250 (HART)
62 Operating Instructions, 01/2014, A5E32220602-AB
7.1.1.2
Features of SIMATIC PDM Rev. 6.0, SP4 or higher
The graphic interface in the device makes monitoring and adjustments easy.
Feature
Function
Quick Start (Page 65)
Device configuration for simple applications
Echo Profile Utilities (Page 72)
Easy access to echo profile viewing/comparison, TVT shaping,
auto false echo suppression and echo setup
Auto False Echo Suppression
(Page 76)
Screen out false echoes
TVT Shaper (Page 75)
Manual TVT adjustment
Process Variables (Page 84)
Monitor process variables and level trend
Security (Page 87)
Protect security and communication parameters from
modification by the maintenance user
7.1.1.3
Features of SIMATIC PDM Rev. 5.2, SP1
SIMATIC PDM Rev. 5.2 SP1 is supported only for basic configuration and troubleshooting. For
advanced features such as the Quick Start wizard, Rev. 6.0 SP3 HF2 or higher is required.
7.1.1.4
SIMATIC PDM Version
Check the support page of our website to make sure you have the latest version of SIMATIC
PDM, the most recent Service Pack (SP) and the most recent hot fix (HF): SIMATIC PDM
Version (https://support.automation.siemens.com). Browse to
Product Information > Automation
Technology > Process control systems > SIMATIC PCS 7 > System components > SIMATIC
PDM.
7.1.2
Initial setup
To ensure that SIMATIC PDM connects properly, complete the following two processes:
1. De-activate buffers
2. Update the Electronic Device Description (EDD)

Remote operation
7.1 Operating via SIMATIC PDM
SITRANS LR250 (HART)
Operating Instructions, 01/2014, A5E32220602-AB 63
7.1.2.1
Deactivating buffers
This deactivation is required to align SIMATIC PDM with the HART modem for Windows 2000®
and Windows® XP operating Systems. Windows® is a registered trademark of the Microsoft
Corporation.
Note
•
This deactivation is only necessary when you're connecting via RS232 (COM1) as
opposed to USB.
•
You will need administrative rights on your operating system to deactivate buffers.
•
SIMATIC PDM operates only in the Windows XP Professional version, not in the Home
version.
1. Click
Start/Settings/Control Panel
to begin configuration.
2. Double click
System
, select the
Hardware
tab, and click the
Device Manager
button.
3. Open
Ports
folder and double click the COM Port used by the system to open the
Communications Port Properties
window.
4. Select the
Port Settings
tab and double click the
Advanced
button.
5. If the
Use FIFO buffers
radio box is selected, click to deselect.
①
Deselect Use FIFO buffers radio box
6. Click
OK
to close out. Close all screens and then reboot.

Remote operation
7.1 Operating via SIMATIC PDM
SITRANS LR250 (HART)
64 Operating Instructions, 01/2014, A5E32220602-AB
7.1.3
Updating the Electronic Device Description (EDD)
You can locate the EDD in Device Catalog, under
Sensors/Level/Echo/SiemensMilltronics/SITRANS LR250
. The EDD revision must match the
Firmware revision in the device.
To install a new EDD:
1. Download the most current EDD from our website: Product page
(http://www.siemens.com/LR250)
2. Save files to your computer, and extract the zipped file to an easily accessed location.
3. Launch
SIMATIC PDM – Manage Device Catalog
, browse to the unzipped EDD file and
select it.
7.1.3.1
Configuring a new device
Note
•
Clicking on
Cancel
during an upload from device to SIMATIC PDM will result in some
parameters being updated.
•
Application Guides for setting up HART devices with SIMATIC PDM can be downloaded
from our website:
Product page (http://www.siemens.com/LR250).
1. Check that you have the most recent EDD, and if necessary update it. [See Updating the
Electronic Device Description (EDD) (Page 64) above].
2. Launch SIMATIC Manager and create a new project for the device.
3. Open the menu
Device – Master Reset
and click on
OK
to perform a reset to Factory
Defaults.
4. After the reset is complete upload parameters to the PC/PG.
5. Configure the device via the Quick Start wizard.

Remote operation
7.1 Operating via SIMATIC PDM
SITRANS LR250 (HART)
Operating Instructions, 01/2014, A5E32220602-AB 65
7.1.4
Quick Start Wizard via SIMATIC PDM
The graphic Quick Start Wizard provides an easy step-by-step procedure that configures the
device for a simple application.
Please consult the operating instructions or online help for details on using SIMATIC PDM.
1. If you have not already done so, check that you have the most up-to-date Electronic Device
Description (EDD) for your device. [See Configuring a new device (Page 64).]
2. Launch SIMATIC Manager and create a new project. Application Guides for setting up HART
and PROFIBUS PA devices with SIMATIC PDM can be downloaded from the product page of
our website:
Product page (http://www.siemens.com/LR250)
Quick start
Note
•
A reset to
Factory Defaults
should be performed before running the Quick Start Wizard if
device has been used in a previous application. See Master Reset via SIMATIC PDM
(Page 82).
•
The Quick Start wizard settings are inter-related and changes apply only after you click
on
FINISH AND DOWNLOAD
at the end of the last step to save settings offline and
transfer them to the device.
•
Do not use the Quick Start Wizard to modify individual parameters: for quick access to
echo profile parameters, see Echo Profile via SIMATIC PDM (Page 73) or see
Parameter
Reference (Page 113) for a complete list. (Perform customization only after the Quick
Start has been completed.)
•
Click on
BACK
to return and revise settings or
CANCEL
to exit the Quick Start.
•
For a vessel with obstructions see Auto False Echo Suppression via SIMATIC PDM
(Page 76).
Launch SIMATIC PDM, open the menu
Device – Wizard - Quick Start
, and follow steps 1 to 5.
①
Quick Start

Remote operation
7.1 Operating via SIMATIC PDM
SITRANS LR250 (HART)
66 Operating Instructions, 01/2014, A5E32220602-AB
Step 1 – Identification
Note
•
The layout of the dialog boxes shown may vary according to the resolution setting for
your computer monitor.
•
SITRANS PDM limits the TAG field to a maximum of 24 characters.
1. Click on
Read Data from Device
to upload Quick Start parameter settings from the device to
the PC/PG and ensure PDM is synchronized with the device.
2. If required, change the language for the local user interface.
3. Click on
NEXT
to accept the default values. (Description, Message, and Installation Date
fields can be left blank.)

Remote operation
7.1 Operating via SIMATIC PDM
SITRANS LR250 (HART)
Operating Instructions, 01/2014, A5E32220602-AB 67
Step 2 – Application
Select the application type (level or volume) and the material, then click on
NEXT
.
See Application with Stillpipe (Page 57) for a Low Dielectric Liquid application.

Remote operation
7.1 Operating via SIMATIC PDM
SITRANS LR250 (HART)
68 Operating Instructions, 01/2014, A5E32220602-AB
Step 3 – Vessel Shape
The vessel shapes shown are
predefined.
For a vessel with obstructions, see
Auto False Echo Suppression via
SIMATIC PDM
(Page 76).
Select the vessel shape, and click on
NEXT
.

Remote operation
7.1 Operating via SIMATIC PDM
SITRANS LR250 (HART)
Operating Instructions, 01/2014, A5E32220602-AB 69
Step 4 – Ranges
Set the parameters, and click on
NEXT
.
Step 5 – Summary
Check parameter settings, and click on
BACK
to return and revise values,
FINISH
to save
settings offline, or
FINISH AND DOWNLOAD
to save settings offline and transfer them to the
device.
The message
Quick Start was successful
will appear. Click on
OK
.

Remote operation
7.1 Operating via SIMATIC PDM
SITRANS LR250 (HART)
70 Operating Instructions, 01/2014, A5E32220602-AB
7.1.5
Changing parameter settings using SIMATIC PDM
Note
•
For a complete list of parameters, see Parameter Reference (Page 113).
•
Clicking on
Cancel
during an upload from device to SIMATIC PDM will result in some
parameters being updated.
Many parameters are accessed via pull-down menus in PDM. See Parameters accessed via
pull-down menus (Page 71) for others.
1. Launch SIMATIC PDM, connect to device, and upload data from device.
2. Adjust parameter values in the parameter value field then
Enter
. The status fields read
Changed
.
3. Open the Device menu, click on
Download to device
, then use
File - Save
to save settings
offline. The status fields are cleared.
①
Value fields

Remote operation
7.1 Operating via SIMATIC PDM
SITRANS LR250 (HART)
Operating Instructions, 01/2014, A5E32220602-AB 71
7.1.6
Parameters accessed via pull-down menus
Click on
Device
or
View
to open the associated pull-down menus.
①
pull-down menus
Pull-down menus
Device menus
View menus
Communication path
Process Variables (Page 84)
Device Status (Page 86)
Download to device
Upload to PC/PG
Update Diagnostic Status
Toolbar
Status bar
Wizard - Quick Start (Page 65)
Update
Echo Profile Utilities (Page 72)
Maintenance (Page 80)
Wear (Page 83)
Select Analog Output (Page 81)
Self Test (Page 81)
Loop Test (Page 82)
Configuration Flag Reset (Page 82)
Master Reset (Page 82)
HART Communication (Page 83)

Remote operation
7.1 Operating via SIMATIC PDM
SITRANS LR250 (HART)
72 Operating Instructions, 01/2014, A5E32220602-AB
7.1.6.1
Echo profile utilities
Open the menu
Device – Echo Profile Utilities
and click on the appropriate tab for easy access
to:
● Echo profile (Page 73)
● View Saved Echo Profiles (Page 74)
● TVT Shaper (Page 75)
● Auto False Echo Suppression (Page 76)
● Echo Setup (Page 79)

Remote operation
7.1 Operating via SIMATIC PDM
SITRANS LR250 (HART)
Operating Instructions, 01/2014, A5E32220602-AB 73
7.1.6.2
Echo profile
Note
•
Double click on each axis to see the Xscale and Data Scale values.
•
To zoom in to a section of the profile, left-click and drag a marquee around it. Right click
inside the window to zoom out.
•
Expand or compress the x and/or y axes:
– Left-click on the axis and drag in either direction to reposition the low end of the scale.
– Right-click on the axis and drag in either direction to reposition the high end of the
scale.
•
After saving a profile click on
OK
, not the
x
button, to close the Echo Profile Utilities
window, otherwise the profile will not be saved.
● In the
Echo Profile Utilities
window click the
Echo Profile
tab.
● Initial profile graph is blank upon entry to dialog. Click
Measure
to update the profile.
● It is recommended to use the
Detailed
resolution view of the echo profile for troubleshooting.
For faster and more coarse views, the
Standard
resolution may be used.
● Click
Save
and in the new window enter a name and click
OK
.
● Click
OK
to exit.
①
Resolution
②
Echo Profile Time Based Storage

Remote operation
7.1 Operating via SIMATIC PDM
SITRANS LR250 (HART)
74 Operating Instructions, 01/2014, A5E32220602-AB
7.1.6.3
View saved echo profiles
To view a saved profile, click on the tab
View Saved Echo Profiles
.
Echo profile data logging
You can store up to 60 profiles at a selected interval (maximum 60 minutes). Inside Echo Profile
Utilities, in the
Echo Profile Time Based Storage
window:
● Enter the desired interval between stored profiles.
● Enter the maximum number of profiles to be stored (maximum 60).
● Click on
Start
. A message appears warning of the time delay and warning that all previous
saved profiles will be overwritten. Click on
OK
to proceed. The new profiles will be saved with
their date and time.
● Click on the tab
View Saved Echo Profiles
to view the stored profiles.

Remote operation
7.1 Operating via SIMATIC PDM
SITRANS LR250 (HART)
Operating Instructions, 01/2014, A5E32220602-AB 75
7.1.6.4
TVT Shaper
Note
Double click on each axis to see the X scale and data scale values. Right
-click or Left-click
on the axis and drag to reposition the scale.
This feature allows you to manually adjust the TVT to avoid false echoes caused by
obstructions. For an explanation see Auto False Echo Suppression (Page 221).
Open the menu
Device – Echo Profile Utilities
and click the tab
TVT Shaper
.
①
TVT
②
Cursor
③
Echo profile
● Initial profile graph is blank upon entry to dialog. Click on
Measure
to view and upload the
current TVT from device.
● Change the position of the cursor on the TVT using the
Point+
and
Point–
buttons: raise and
lower the TVT using
Offset+
and
Offset
-.
● Alternatively, enter values for
Point
and
Offset
directly into the dialog boxes.
● Click on
Transfer to Device
.

Remote operation
7.1 Operating via SIMATIC PDM
SITRANS LR250 (HART)
76 Operating Instructions, 01/2014, A5E32220602-AB
7.1.6.5
Auto false echo suppression
Note
•
Ensure material level is below all known obstructions when using Auto False Echo
Suppression to learn the echo profile. An empty or almost empty vessel is recommended.
•
Note the distance to material level when learning the echo profile, and set Auto False
Echo Suppression Range to a shorter distance to avoid the material echo being screened
out.
•
Set Auto False Echo Suppression and Auto False Echo Suppression Range during
startup, if possible.
•
If the vessel contains an agitator it should be running.
•
Before adjusting these parameters, rotate the device for best signal (lower false-echo
amplitude).
If you have a vessel with known obstructions, use Auto False Echo Suppression to prevent false
echo detection. This feature can also be used if the device displays a false high level, or the
reading is fluctuating between the correct level and a false high level.
The device learns the echo profile over the whole measurement range and the TVT is shaped
around all echoes present at that moment. See Auto False Echo Suppression (Page 221)
for a
more detailed explanation.

Remote operation
7.1 Operating via SIMATIC PDM
SITRANS LR250 (HART)
Operating Instructions, 01/2014, A5E32220602-AB 77
The learned TVT will be applied over a specified range. The default TVT is applied over the
remainder of the measurement range.
1. Make sure the material level is below all known obstructions.
2. Determine
Auto False Echo Suppression Range
. Measure the actual distance from the
sensor reference point to the material surface using a rope or tape measure. Subtract 0.5 m
(20") from this distance, and use the resulting value.
3. Open the menu
Device – Echo Profile Utilities
and click on the tab
Auto False Echo
Suppression
.
4. Make sure
Auto False Echo Suppression Range
is
On
.
5. Enter the value for
Auto False Echo Suppression Range.
6. Click
Learn
. The message appears:
'This will learn a new echo profile. Once done it cannot
be undone'
. Click
OK
.
7. Once Auto TVT is complete click
Transfer to Device
. To exit click
Close
. Auto TVT is enabled
and the learned TVT will be used.
8. To turn
Auto False Echo Suppression
off or on, reopen the
Auto False Echo Suppression
window, change the Auto False Echo Suppression to
Off
or
On
, click on
Transfer to Device.

Remote operation
7.1 Operating via SIMATIC PDM
SITRANS LR250 (HART)
78 Operating Instructions, 01/2014, A5E32220602-AB
Before Auto False Echo Suppression
①
TVT Hover Level
④
Echo marker
②
Default TVT
⑤
Material level
③
False echo
After Auto False Echo Suppression
①
False echo
④
Material level
②
Learned TVT
⑤
Default TVT
③
Auto False Echo Suppression Range
⑥
Echo marker

Remote operation
7.1 Operating via SIMATIC PDM
SITRANS LR250 (HART)
Operating Instructions, 01/2014, A5E32220602-AB 79
7.1.6.6
Echo setup
Provides quick access to echo selection, filtering, and response rate parameters.
Open the menu
Device – Echo Profile Utilities
and click on
Echo Setup
.

Remote operation
7.1 Operating via SIMATIC PDM
SITRANS LR250 (HART)
80 Operating Instructions, 01/2014, A5E32220602-AB
7.1.6.7
Maintenance
You can set schedules and reminders for:
● device maintenance based on its projected lifetime
● sensor maintenance based on its projected lifetime
● service
● calibration
To set Device/Sensor Maintenance schedules:
1. Open the menu
Device – Maintenance
, and click on the
Remaining Device/Sensor Lifetime
tab.
2. Modify desired values, and if desired, set reminders for either or both of
Reminder 1 before
Lifetime (Required)
/
Reminder 2 before Lifetime (Demanded)
.
3. Click
Write.
4. Click
Read
, to see the effects of your modification.
5. Click
Snooze
to add a year to the Total Expected Device Life.

Remote operation
7.1 Operating via SIMATIC PDM
SITRANS LR250 (HART)
Operating Instructions, 01/2014, A5E32220602-AB 81
To set Service/Calibration schedules:
1. Open the menu
Device – Maintenance
, and click on the
Service/Calibration Schedule
tab.
2. Modify desired values and if desired, set reminders for either or both of
Reminder 1 before
Lifetime (Required)
/
Reminder 2 before Lifetime (Demanded)
.
3. Click
Write.
4. Click
Read
, to see the effects of your modification.
5. Click
Service/Calibration Performed
to reset the schedule.
7.1.6.8
Select analog output
Allows you to set the mA Output to report Level, Distance, Space, or Volume. See
Current
Output Function (2.6.1.)
for an illustration.
If a volume application is selected, mA Output is automatically set to
Volume
. See Analog
Output (Page 224) for more details.
1. Open the menu
Device – Select Analog Output
.
2.
Select Analog Output
window displays the current setting: click
OK
.
3. Select a different setting and click
OK
.
4.
Select Analog Output
window displays the new setting: click
OK
.
7.1.6.9
Self test
Checks memory (RAM and Flash). If there are no errors, returns the message 'Self Test OK.' If
errors are found, returns the message 'Self Test Fails'.
Open the menu
Device – Self Test
, select
Yes
and click
OK
.

Remote operation
7.1 Operating via SIMATIC PDM
SITRANS LR250 (HART)
82 Operating Instructions, 01/2014, A5E32220602-AB
7.1.6.10
Loop test
Note
The simulated AO (Analog Output) value influences output to the contro
l system.
Allows you to input a simulated value (4 mA, 20 mA, or a user-defined value) in order to test the
functioning of the mA connections during commissioning or maintenance of the device. The
range is 3.56 mA to 22.6 mA, see
mA Output Value (2.6.6.).
To simulate a user-defined mA value:
1. Open the menu
Device – Loop Test
.
2. Select
Other
, enter the new value, and click on
OK
. The message ’Field Device fixed at [new
value]’ appears. Click on
OK
. The Loop Test window remains open.
3. When you are ready to end simulation, select
End
and click on
OK
to return the device to the
actual output value.
7.1.6.11
Configuration flag reset
To reset the configuration flag to zero, open the menu
Device – Configuration Flag Reset
and
perform a reset.
7.1.6.12
Master reset
Factory Defaults
Factory Defaults resets all parameters to the default settings with the following exceptions:
●
Device Address (5.1.)
remains unchanged if the reset command is sent remotely (via AMS,
PDM, DTM, FC375) but is reset to 0 if the reset command is sent via LUI.
●
Write Protect (6.2.1.)
and
PIN to Unlock (6.2.2.)
●
Learned TVT curve, see Auto False Echo Suppression (2.8.7.1)
1. Open the menu
Device – Master Reset
, select
Yes
, and click on
OK
to perform a reset to
Factory Defaults.
2. After the reset is complete upload parameters to the PC/PG. (If you are performing a reset
after replacing the device with a different instrument, do not upload parameters to the
PC/PG).

Remote operation
7.1 Operating via SIMATIC PDM
SITRANS LR250 (HART)
Operating Instructions, 01/2014, A5E32220602-AB 83
7.1.6.13
Wear
Reports the number of hours the device has been operating, and the number of times it has
been powered up.
Open the menu
Device – Wear
to view:
● Powered Days
● Power-on Resets
Note
Powered days are whole days only.
Fractional days are truncated.
7.1.6.14
HART Communication
Sets the number of request/response preambles (default 5).
The preamble consists of three or more hexadecimal FF characters (all 1s). This allows the
receiving modem to get its frequency-detection circuits synchronized to the signal after any
pause in transmission.
We recommend you do not change the default value (5).

Remote operation
7.1 Operating via SIMATIC PDM
SITRANS LR250 (HART)
84 Operating Instructions, 01/2014, A5E32220602-AB
7.1.6.15
Process variables
To compare outputs in real time open the menu
View – Process Variables
and click on
Overview
to see reading (level, space, distance, volume); analog output; device status; and current
electronics temperature.
To see highest and lowest electronics temperatures, navigate to
Level Meter > Maintenance and
Diagnostics > Electronics Temperature
.

Remote operation
7.1 Operating via SIMATIC PDM
SITRANS LR250 (HART)
Operating Instructions, 01/2014, A5E32220602-AB 85
7.1.6.16
Trend
Open the menu
View – Process Variables
and click on
Trend
.
Four trend lines can be monitored (distinguished by color in SIMATIC PDM):
①
Space
②
Distance
③
Level
④
Volume

Remote operation
7.1 Operating via SIMATIC PDM
SITRANS LR250 (HART)
86 Operating Instructions, 01/2014, A5E32220602-AB
7.1.6.17
Device status
Open the menu
View – Device Status
to view Diagnostics, Device Status, Hardware/ Firmware
(HW/FW) Status, and Maintenance status.
①
update diagnostics
In the Diagnostics window, click on
Update diagnostics
to update diagnostic information and
refresh linked icons.
7.1.6.18
Update
Open the menu
View – Update
to refresh the screen.

Remote operation
7.1 Operating via SIMATIC PDM
SITRANS LR250 (HART)
Operating Instructions, 01/2014, A5E32220602-AB 87
7.1.6.19
Security
A password option protects security and communication control parameters from modification by
a maintenance user.
When you open a project the
User
dialog window provides two options: maintenance or
specialist. If a password has been set it will not be possible to open the project as a specialist
without it. A maintenance user will be able to open the project without a password but will not
have access to security and communication control parameters.
1. Open a project, double-click on the device icon, and in the
User
window select
Specialist
.
2. Open the menu
Options – Settings
and click on the
Password
tab.
3. Enter a new password and re-enter it in the
Confirmation
window. Click on
OK
.

Remote operation
7.2 Operating via AMS Device Manager
SITRANS LR250 (HART)
88 Operating Instructions, 01/2014, A5E32220602-AB
7.2
Operating via AMS Device Manager
AMS Device Manager is a software package that monitors the process values, alarms and
status signals of the device. Please consult the operating instructions or online help for details
on using AMS Device Manager. You can find more information at:
Emerson (http://www.emersonprocess.com/AMS/)
Application Guides for setting up Siemens HART devices with AMS Device Manager are
available on our website:
Process automation (www.siemens.com/processautomation)
7.2.1
Functions in AMS Device Manager
Note
While the device is in PROGRAM mode the output
remains fixed and does not respond to
changes in the device.
7.2.1.1
AMS function overview
AMS Device Manager monitors the process values, alarms and status signals of the device. It
allows you to display, compare, adjust, verify, and simulate process device data.
Parameters organized into three main function groups allow you to configure and monitor the
device:
● Configure/Setup
● Device Diagnostics (read only)
● Process Variables (read only)
See AMS Menu Structure (Page 107) for a chart and Changing parameter settings using AMS
Device Manager (Page 95) for more details. The menu structure for AMS Device Manager is
almost identical to that for the LCD.

Remote operation
7.2 Operating via AMS Device Manager
SITRANS LR250 (HART)
Operating Instructions, 01/2014, A5E32220602-AB 89
7.2.1.2
Features of AMS Device Manager
The graphic interface in the radar device makes monitoring and adjustments easy.
Feature
Function
Quick Start (Page 92)
Device configuration for simple applications
Echo Profile (Page 100)
Echo profile viewing
TVT (Page 99)
Screen out false echoes
Linearization (Page 93)
Volume measurement in an irregular vessel
Process Variables (Page 104)
Monitor process variables and level trend
Security (Page 102) Protect security and communication parameters from
modification by the maintenance user
7.2.1.3
Electronic Device Description (EDD)
The EDDs are linked to the type, version of configuration software, and protocol being used.
Select the LR250 AMS EDD for the version of AMS installed. EDDs can be downloaded from our
website, see Product page (http://www.siemens.com/LR250).
The HART EDD for LR250 is labeled as supporting AMS Device Manager version 9.5. This EDD
is also operational with AMS version 9.0 and 10.1. There is also an application guide that details
how to use the Hart Communication Foundation EDDs in AMS version 11.5 and above. There is
no EDD for the LR250 for AMS version 10.5 to 11.1.
Please check the product page for updated EDDs and application guide.
7.2.1.4
Configuring a new device
1. Check our website to make sure you have the most recent EDD.
Product page (http://www.siemens.com/LR250)
Go to
Support > Software Downloads
and if necessary download it. Save the files to your
computer, and extract the zipped file to an easily accessed location.
2. Launch
AMS Device Manager– Add Device Type
, browse to the unzipped EDD file and select
it.

Remote operation
7.2 Operating via AMS Device Manager
SITRANS LR250 (HART)
90 Operating Instructions, 01/2014, A5E32220602-AB
7.2.1.5
Startup
1.
Launch AMS Device Manager
. (Application Guides for setting up HART devices with AMS
Device Manager can be downloaded from our website:
Product page (http://www.siemens.com/LR250)
2. In
Device Connection View
right-click on the device icon and select
Scan Device
to upload
parameters from the device.
3. Double click the device icon to open the startup screen. The startup screen shows device
identification details, and a navigation window on the left-hand side of the screen.
Master reset
Note
Device Address (5.1.)
remains unchanged if the reset command is sent remotely (via AMS,
PDM, DTM, FC375) but is reset to 0 if the reset command is sent via LUI.
● Navigate to
Configure/Setup > Operation
● In the
General
field click on
Master Reset
and accept the option
Factory Defaults
.

Remote operation
7.2 Operating via AMS Device Manager
SITRANS LR250 (HART)
Operating Instructions, 01/2014, A5E32220602-AB 91
7.2.1.6
Pull-down menu access
①
Action menu items
A pull-down menu under
Actions
gives alternative access to several features.
Scan Device
• Open the menu
Actions – Scan Device
.
•
Scan Device
uploads parameters from the device (synchronizes parameters).
7.2.1.7
Device configuration
1. Navigate to
Configure/Setup > Operation
and click to open the dialog window.
2. In the
General
field, click on
Master Reset
and perform a reset to Factory Defaults.
3. Open the pull-down menu
Actions – Scan Device
to synchronize parameters (upload
parameters from the device to AMS).
4. Configure the device via the Quick Start wizard.
①
Master reset

Remote operation
7.2 Operating via AMS Device Manager
SITRANS LR250 (HART)
92 Operating Instructions, 01/2014, A5E32220602-AB
7.2.1.8
Quick Start Wizard via AMS Device Manager
Note
•
A reset to Factory Defaults should be performed before running the Quick Start Wizard if
device has been used in a previous application. See Master Reset (Page 90).
•
The layout of the dialog boxes shown may vary according to the resolution setting for
your computer monitor.
•
At each step, you can accept the default values without modification and click on the next
step to proceed.
•
After modifying parameters click on
Apply
inside the Quick Start window to write the new
values to the device.
•
Click on
OK
only if you wish to update all parameters to the device and close AMS.
A Wizard provides an easy 5-step Quick Start procedure that configures the device for a simple
application.
Quick Start
Step 1 – Identification
1. Navigate to
Configure/Setup > Wizard > Quick Start
.
2. Click on
Step 1
.
3. You can accept the default values without modification. (Description, Message, and
Installation Date fields can be left blank.) If desired, make changes then click on
Apply
.

Remote operation
7.2 Operating via AMS Device Manager
SITRANS LR250 (HART)
Operating Instructions, 01/2014, A5E32220602-AB 93
Step 2 – Application
1. Click on
Step 2
.
2. Select the application type (Level/vessel, Level/stillpipe, Level/bypass pipe, Volume/vessel,
Volume/stillpipe, or Volume/bypass pipe) and the material (Liquid or Low dielectric liquid).
3. Click on
Apply
.
Step 3 – Vessel Shape
1. Click on
Step 3
.
2. Select a predefined vessel shape. To describe a more complex shape see Linearization
(Page 93).
3. Click on
Apply
.
Step 4 – Ranges
1. Click on
Step 4
.
2. Change units if desired (in meters by default).
3. Set High and Low Calibration points.
4. To convert the reading from level to volume enter a value for Maximum Volume.
5. If a vessel shape with parabolic ends has been selected, set dimensions
A
and
L
.
6. Click on
Apply
.
Step 5 – Summary
Check parameter settings, and click on
Cancel
to abort, or
Apply
to transfer values to the device.
Linearization
You can use the linearization feature to define a more complex vessel shape and enter up to 32
level breakpoints where the corresponding volume is known. The values corresponding to 100%
and 0% levels must be entered. The breakpoints can be ordered from top to bottom, or the
reverse.

Remote operation
7.2 Operating via AMS Device Manager
SITRANS LR250 (HART)
94 Operating Instructions, 01/2014, A5E32220602-AB
Using linearization via the Quick Start wizard
Navigate to
Configure/Setup > Wizard > Quick Start
.
In
Step 1 – Identification,
make any desired modifications and click on
Apply
.
In
Step 2 – Application,
select a level application and liquid as a material.
In
Step 3 – Vessel Shape
, choose the vessel shape option
Linearization Table
.
In
Step 4 – Ranges
, enter a value for maximum volume.
①
Breakpoints
②
Maximum volume
1. Click on the
Breakpoints
tab and enter values for level and volume for up to
32
breakpoints.
2. Navigate to
Configure/Setup > Setup > Linearization
and click on
Characteristic
to preview
the characteristic curve of the vessel breakpoints. (The conversion will function correctly even
if not all breakpoints are entered, but the curve will display correctly only if all breakpoints are
entered.)
3. In
Step 5 – Summary
, check parameter values. Click on the appropriate step menu to return
and revise values, or click on a different menu to exit
Quick Start.

Remote operation
7.2 Operating via AMS Device Manager
SITRANS LR250 (HART)
Operating Instructions, 01/2014, A5E32220602-AB 95
Changing parameter settings using AMS Device Manager
Note
For a complete list of parameters, see
Parameter Reference (Page 113).
For more detailed explanations of the parameters listed below see the pages referenced.
1. Adjust parameter values in the parameter value field in Configure/Setup view, then click on
Apply
to write the new values to the device. The parameter field will display in yellow until the
value has been written to the device.
2. Click on
OK
only if you wish to update all parameters and exit AMS.
Operation
Navigate to
Configure/Setup > Operation
and click on
Operation
to open the dialog window for
access to:
General
● Select Analog Output [see Select Analog Output (Page 81)]
● Master Reset [see Master Reset (Page 82)]
Simulation/Test
● Self Test [see Self Test (Page 81)]
● Loop Test [see Loop Test (Page 82)]

Remote operation
7.2 Operating via AMS Device Manager
SITRANS LR250 (HART)
96 Operating Instructions, 01/2014, A5E32220602-AB
Setup
Note
For more detailed explanations of the para
meters listed below see the pages referenced.
Sensor
Navigate to
Configure/Setup > Setup
and click on
Sensor
for access to:
General [see Sensor (2.2.)]
● Units
● Operating Mode
● Material
● Damping Filter
Calibration [see Calibration (2.3.)]
● Low Calibration Point
● High Calibration Point
● Sensor Offset

Remote operation
7.2 Operating via AMS Device Manager
SITRANS LR250 (HART)
Operating Instructions, 01/2014, A5E32220602-AB 97
Rate [see Rate (2.4.)]
● Response Rate
● Fill Rate per Minute
● Empty Rate per Minute
Fail-safe [see Fail-safe (2.5.)]
● Material level
● Timer
● Level
Analog Output Scale
Navigate to
Configure/Setup > Setup
and click on
Analog Output Scaling
for access to:
Analog Output Scaling [see
Analog Output Scaling (2.6.)
]
● Current Output Function
● 4 mA Setpoint
● 20 mA Setpoint
● Minimum mA Limit
● Maximum mA Limit

Remote operation
7.2 Operating via AMS Device Manager
SITRANS LR250 (HART)
98 Operating Instructions, 01/2014, A5E32220602-AB
Signal Processing
General
Navigate to
Configure/Setup > Setup > Signal Processing
and click on
General
for access to:
Range
[see
Signal Processing (2.8.)
]
● Near Range
● Far Range
● Propagation Factor
Echo Select [see Echo Select (2.8.4.)]
● Algorithm
● Position Detect
● Echo Threshold
● CLEF Range
Sampling [see Sampling (2.8.5.)]
● Echo Lock
● Sampling Up
● Sampling Down

Remote operation
7.2 Operating via AMS Device Manager
SITRANS LR250 (HART)
Operating Instructions, 01/2014, A5E32220602-AB 99
Signal Quality
● Confidence
● Echo Strength
● Noise Average
TVT
Modify the TVT to screen out false echoes. See Auto False Echo Suppression (2.8.7.1.)
(Page 221).
Navigate to
Configure/Setup > Setup > Signal Processing
and click on
TVT
. Click on one of the
two tabs to access the parameters listed:
TVT Setup [see TVT setup (2.8.7.)]
● Auto False Echo Suppression
● Auto False Echo Suppression Range
● Hover Level
● Shaper Mode
TVT Shaper
● Shaper breakpoints 1 to 40. (Turn
TVT Setup/Shaper Mode
on to activate.)

Remote operation
7.2 Operating via AMS Device Manager
SITRANS LR250 (HART)
100 Operating Instructions, 01/2014, A5E32220602-AB
Manual TVT Curve
Displays the effects of the TVT shaper modifications. Navigate to
Configure/Setup > Setup >
Signal Processing
and click on
Manual TVT Curve
.
Echo Profile
● Navigate to
Configure/Setup > Setup > Signal Processing
and click on
Echo Profile
.
● Select
Standard
operation for faster display.
Local Display
Navigate to
Configure/Setup > Setup > Local Display
for access to:
● Language
● LCD Fast Mode [see
LCD Fast Mode (4.9.)
]
● LCD Contrast [see
LCD Contrast (4.10.)
]
7.2.2
Maintenance and diagnostics
Navigate to
Maintenance and Diagnostics
for access to:
Remaining Device Lifetime [see Remaining Device Lifetime (4.2.)]
● Lifetime (expected)
● Time in Operation
● Remaining Lifetime
● Activation of Reminders
● Reminder 1 before Lifetime (Required)
● Reminder 2 before Lifetime (Demanded)
Remaining Sensor Lifetime [see Remaining Sensor Lifetime (4.3.)]
● Lifetime (expected)
● Time in Operation
● Remaining Lifetime
● Activation of Reminders
● Reminder 1 before Lifetime (Required)
● Reminder 2 before Lifetime (Demanded)

Remote operation
7.2 Operating via AMS Device Manager
SITRANS LR250 (HART)
Operating Instructions, 01/2014, A5E32220602-AB 101
Service Schedule [see Service Schedule (4.4.)]
● Service Interval
● Time Since Last Service
● Time Until Next Service
● Activation of Reminders
● Reminder 1 before Service (Required)
● Reminder 2 before Service (Demanded)
Calibration Schedule [see Calibration Schedule (4.5.)]
● Calibration Interval
● Time Since Last Calibration
● Time Until Next Calibration
● Activation of Reminders
● Reminder 1 before Calibration (Required)
● Reminder 2 before Calibration (Demanded)
Electronic Temperature
● Electronic Temperature
● Lowest Value
● Highest Value
Wear
● Powered Days
● Poweron Resets
See Wear via SIMATIC PDM (Page 83) for more detail.
7.2.3
Communication
Navigate to
Communication
to read the following:
Tag; Manufacturer’s ID; Device ID; Product ID; Device Revision; EDD Revision; Universal
Command Revision

Remote operation
7.2 Operating via AMS Device Manager
SITRANS LR250 (HART)
102 Operating Instructions, 01/2014, A5E32220602-AB
7.2.4
Security
Navigate to
Configure/Setup > Security
to access:
Remote Access [see Remote Access (6.1.)]
Note
If access control is changed to limit remote access, it can only be reset via the handheld
programmer.
See
Access Control (6.1.1.)
.
● Write Protect (read only)
● Access Control
Local Access [see Local Access (6.2.)]
● Local Write Protected
● PIN to Unlock
See also Password Protection (Page 105).

Remote operation
7.2 Operating via AMS Device Manager
SITRANS LR250 (HART)
Operating Instructions, 01/2014, A5E32220602-AB 103
7.2.5
Device Diagnostics
Click on the
Device Diagnostics
bar at the bottom of the navigation window, for access to:
Device Status
Hardware/Firmware Status

Remote operation
7.2 Operating via AMS Device Manager
SITRANS LR250 (HART)
104 Operating Instructions, 01/2014, A5E32220602-AB
7.2.5.1
Process variables
To compare outputs in real time click on
Process Variables
at the bottom of the navigation
window for access to:
Process Variables
● Values (level, volume, space, distance)
● Analog Output
● Trend View
Echo Profile

Remote operation
7.2 Operating via AMS Device Manager
SITRANS LR250 (HART)
Operating Instructions, 01/2014, A5E32220602-AB 105
7.2.5.2
Password protection
An AMS Device Manager administrator can configure the user to require a password. The use of
passwords is recommended. A password should be assigned to the ’admin’ username
immediately after installing AMS Device Manager.
Each user is given an AMS Device Manager username and password and required to enter
them when they start AMS Device Manager. Access to functions depends on the level of
permissions granted.
Login types
● standard, local, or domain
A standard user can change their password in AMS Device Manager. A Local or Domain
Windows user cannot change their password using AMS Device Manager and must request
their network administrator to do so.

Remote operation
7.2 Operating via AMS Device Manager
SITRANS LR250 (HART)
106 Operating Instructions, 01/2014, A5E32220602-AB
7.2.5.3
User Manager utility
Usernames, passwords, and permissions, are assigned to users by an AMS Device Manager
administrator, using the User Manager utility on the Server Plus Station. Only a user with AMS
Device Manager System Administration rights can log in to User Manager.
To configure a new user/edit existing user:
1. From the Windows taskbar select:
Start > AMS Device Manager > User Manager
.
2. In the User Manager window click on
Add User
.
The Add User Wizard dialog allows you to:
● select a user type, standard (AMS Device Manager) or Window user.
● enter the username and password, and set permissions
● edit existing users

Remote operation
7.2 Operating via AMS Device Manager
SITRANS LR250 (HART)
Operating Instructions, 01/2014, A5E32220602-AB 107
7.2.6
AMS menu structure

Remote operation
7.2 Operating via AMS Device Manager
SITRANS LR250 (HART)
108 Operating Instructions, 01/2014, A5E32220602-AB

Remote operation
7.2 Operating via AMS Device Manager
SITRANS LR250 (HART)
Operating Instructions, 01/2014, A5E32220602-AB 109

Remote operation
7.2 Operating via AMS Device Manager
SITRANS LR250 (HART)
110 Operating Instructions, 01/2014, A5E32220602-AB

Remote operation
7.3 Operating via FDT (Field Device Tool)
SITRANS LR250 (HART)
Operating Instructions, 01/2014, A5E32220602-AB 111
7.3
Operating via FDT (Field Device Tool)
FDT is a standard used in several software packages designed to commission and maintain field
devices. Two commercially available FDTs are PACTware and Fieldcare.
Functionally FDT is very similar to PDM. See Operating via SIMATIC PDM (Page 61) for more
detail.
● To configure a field device via FDT you need the DTM (Device Type Manager) for the device.
● To configure a field device via SIMATIC PDM, you need the EDD (Electronic Data
Description) for the device.
7.3.1
Device Type Manager (DTM)
A DTM is a type of software that ’plugs into’ FDT. It contains the same information as an EDD
but an EDD is independent of the operating system.
7.3.2
SITRANS DTM
● SITRANS DTM is an EDDL interpreter developed by Siemens to interpret the EDD for that
device.
● To use SITRANS DTM to connect to a device, you must first install SITRANS DTM on your
system and then install the device EDD written for SITRANS DTM.
● You can download SITRANS DTM from the Siemens service and support website. Go to
Service & Support (http://www.siemens.com/automation/service&support), click on
Product
Support
, and drill down to
Product Information/Automation Technology/Sensor
systems/Process Instrumentation/Software & Communications
.
7.3.3
The device EDD
The SITRANS LR250 HART EDD for SITRANS DTM can be downloaded from our website:
Product page (http://www.siemens.com/LR250).
Go to
Support > Software Downloads
.

Remote operation
7.3 Operating via FDT (Field Device Tool)
SITRANS LR250 (HART)
112 Operating Instructions, 01/2014, A5E32220602-AB
7.3.4
Configuring a new device via FDT
The full process to configure a field device via FDT is outlined in an Application Guide which can
be downloaded from our website under
Support
> Application Guides
.
Product page (http://www.siemens.com/LR250)